Kai Zenkō-ji

Der Zenkō-ji (jap. 善光寺), oder um ihn von anderen gleichnamigen Tempeln zu unterscheiden Kai Zenkō-ji (甲斐善光寺), und dem Bergnamen Jōgaku-zan (定額山), ist ein Tempel der Jōdo-Richtung des Buddhismus in Kōfu in der japanischen Präfektur Yamanashi (früher Provinz Kai). Er ist einer der Kai Hyakuhachi Reijō, der 108 spirituellen Orte von Kai.
Geschichte
Als Takeda Shingen im Kampf mit Uesugi Kenshin in Bedrängnis geriet, brachte er die Tempelschätze des Zenkō-ji in Nagano in diese Gegend und errichtete ab 1558 einen neuen Tempel gleichen Namens. Nach 6 Jahren Bauzeit waren 1565 die ersten Gebäude fertig, 1568 hatte die Tempelanlage Gestalt angenommen. Nach Shingens Tod 1573 wurde der Tempel nicht ganz fertiggestellt, die Tempelschätze bleiben nicht zusammen. Hauptkultfigur wurde ein stehender Buddha (前立仏 Maedachi-butsu), und der Tempel wurde zum Haupt des Jōdo-shū in der Provinz. Auch die Tokugawa unterstützten den Tempel.
1754 brannte die Anlage größtenteils nieder, wurde allerdings bis 1796 im Baustil der Epoche wieder aufgebaut. 1937 wurde sie der Stadt Kōfu eingemeindet.
Die Anlage
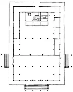
Das Haupttor (山門 Sammon) zum Tempelgelände ist als zweistöckiges Rōmon ausgeführt. Es ist 16,88 m breit, 6,758 m tief und 15 m hoch, wobei Dachbreite 22,9 m beträgt. Es ist im gemischten Stil aus japanischen und chinesischen Elementen ausgeführt. Unten stehe rechts und links verteilt die beiden Wächterfiguren (仁王 Niō). Das Tor ist als Wichtiges Kulturgut Japans registriert.
Die gegenwärtige Haupthalle (金堂 Kondō) wurde nach dreißigjähriger Bauzeit 1796 fertiggestellt. Sie ist 23 m breit, 38 m tief und 26 m hoch und gehört damit zu den größeren Tempelgebäuden in Japan. Das Gebäude ähnelt mit der Tiefenerstreckung dem originalen Zenko-ji und besitzt das gleiche Dach im Shumoku-Stil (撞木造り -zukuri). Die Haupthalle ist, wie das Tor, als Wichtiges Kulturgut registriert.
Tempelschätze
In der Haupthalle befindet sich in einem Schrein (厨子 Zushi; ◎) auf dem Altar die Hauptkultfigur, ein Amida-Buddha (◎) aus Bronze, der von je einem Begleiter rechts und links geschützt wird. Der Buddha ist mit 1,42 m ungewöhnlich groß. Eine Beschriftung besagt, dass er aus dem Jahr 1195 stammt. In der Halle stehen zwei weitere Amida mit Begleitern, die ebenfalls als wichtiges Kulturgut registriert sind.
Weiter gehören zu den Schätzen eine Tempelglocke (梵鐘 Bonshō) aus dem Jahr 1313, ein Bild des Minamoto no Yoritomo aus dem Jahr 1336.
Sonstiges
Am Tempel befindet sich das Grab von Katō Mitsuyasu (加藤 光泰; 1537–1593), der 1591 Herrscher über die Provinz Kai geworden war. Er starb 1593 während des Korea-Feldzugs von Toyotomi Hideyoshi.
Literatur
- Yamanashi-ken kotogakko kyoiku kenkyukai chireki-ka, kominka-bukai (Hrsg.): Zenko-ji. In: Yamanashi-ken no rekishi sampo. Yamakawa Shuppan, 2007, ISBN 978-4-634-24619-5, S. 113–114.
Weblinks
- Website des Tempels (japanisch)
Koordinaten: 35° 39′ 57,4″ N, 138° 35′ 34,4″ O