Ste-Marie-Madeleine (Vézelay)

Ste-Marie-Madeleine, Fassade mit romanischen und gotischen Elementen, 2019 renoviert[1]

Die Basilika Sainte-Marie-Madeleine ist eine romanische Kirche mit frühgotischem Umgangschor und die ehemalige Abteikirche des einstigen Benediktinerklosters in Vézelay im Département Yonne in Burgund. Der Standort der Kirche geht auf eine erste karolingische Klosterkirche zurück, die auf dem 250 Meter hoch gelegenen Hügel der kleinen Gemeinde Vézelay (mit 448 überwiegend katholischen Einwohnern, Stand 1. Januar 2021) in der heutigen Region Bourgogne-Franche-Comté errichtet worden war. Die Kirche Sainte-Marie-Madeleine trägt seit 1925 den Titel einer Basilica minor.[2] Der Hügel und die Kirche von Vézelay zählen seit 1979 zum kulturellen UNESCO-Welterbe. Seit 1998 ist die Kirche auch als Teil des UNESCO-Welterbes „Jakobsweg in Frankreich“ ausgezeichnet.

Geschichte

Südseite des Langhauses mit Kreuzgang
Chor und Vierung
Luftaufnahme

Die heutige Basilika Sainte-Marie-Madeleine ist nicht die erste Kirche an diesem Ort, zuvor stand hier eine karolingische Kirche. Abt Artaud ersetzte den karolingischen Chor durch einen romanischen, er wurde 1104 geweiht. Im Jahre 1120 wurde das karolingische Kirchenschiff durch einen Brand beschädigt. Daraufhin begann man mit der Errichtung des heutigen Hauptschiffs und seiner Fassade mit den drei figürlich gestalteten Portalen. Spätestens gegen 1140, vielleicht auch schon 1132 (für dieses Jahr ist die Weihe einer ecclesia peregrinorum in Anwesenheit des Papstes überliefert), waren die Arbeiten am Schiff und der Fassade beendet. Anschließend (1145–50) folgte die Vorhalle (Vorschiff), der sog. Narthex, mit einer eigenen Fassade nach außen hin. Die heutige, monumentale und nach außen hin geschlossene Anlage ist dabei erst der zweite Plan, zuvor war eine offene und deutlich niedrigere Vorhalle geplant.[3] Die Abtei von Vézelay war ein wichtiges Zentrum der Christenheit. Die Abtei und später die Basilika wurde zum Ziel einer aufblühenden Wallfahrt zum angeblichen Grab der Maria Magdalena, das man der Überlieferung nach ab der Mitte des 12. Jahrhunderts hier verortete und welches weitere Reliquien bergen soll, die Maria Magdalena zugeschrieben werden; hingegen soll sich der Schädel der Wegbegleiterin von Jesu in einem Schrein in der unvollendeten Basilika Sainte-Marie-Madeleine in Saint-Maximin-la-Sainte-Baume befinden und nicht in Vézelay. Dieser Ort wurde auch Ausgangspunkt von einer der vier wichtigsten Pilgerstraßen nach Santiago de Compostela zum angeblichen Grab des Jakobus der Ältere. Die Stiftungen der Pilger sorgten für einen stetigen Fluss von Geld in die Kassen der Abtei, während die politische Unabhängigkeit von lokalen Autoritäten (dem Bischof von Autun, dem Graf von Nevers) ihre lokale Machtstellung sicherte. Die Relevanz der Abtei lässt sich daran ablesen, dass sie als Schauplatz zahlreicher Ereignisse von welthistorischer Bedeutung diente: 1146 etwa wurde in Vézelay der zweite Kreuzzug ausgerufen.[4]

„Kurz nach Fertigstellung des Langhauses erlebte Vézelay den Höhepunkt seiner Geschichte: Ostern 1146 ruft Bernhard von Clairvaux auf Geheiß Papst Eugens III. vor einer riesigen Menschenmenge, die die Kirche nicht fassen kann und sich daher auf dem Hang südlich der Kirche versammelt hat, im Beisein von König Ludwig VII., der Königin Eleonore von Aquitanien und der Großen des Reiches zum Zweiten Kreuzzug auf. Mehr als ein halbes Jahrhundert später, 1190, treffen sich in Vézelay die Könige Philippe-Auguste und Richard Löwenherz mit ihren Armeen zum Dritten Kreuzzug nach Palästina […] Vézelay wird nicht nur Sammelort der Pilger, sondern auch der Ritter aus ganz Europa. 1166 flüchtet hier Thomas Becket vor der Verfolgung des englischen Königs. Der hl. Franziskus gründet hier 1217 seine erste Niederlassung in Frankreich.“

Klaus Bußmann: Burgund, Köln 1977, S. 171

Franz von Assisi ließ seine Franziskaner, in Frankreich Cordeliers genannt, abseits der heutigen Basilika bei der Kapelle Ste.-Croix ein Kloster namens La Cordelle errichten, das später bis auf die Kapelle etwas verfiel; um diesen Ort sind Franziskaner-Mönche noch immer ansässig.

Zu Bernhard von Clairvaux, Begründer des Zisterzienserordens, und dessen in Vézelay ausgerufenem Zweiten Kreuzzug ist anzumerken, dass er als Demagoge und suggestiv predigender Kirchenlehrer und ob seiner einflussreichen Persönlichkeit durch ganz Europa für den (gar nicht so erfolgreichen) Kreuzzug warb, für den sich auch der deutsche König Konrad III. im Dom zu Speyer im Jahr 1146 überzeugen ließ.[5]

Nach erneutem Brand wurden 1185–1215 der Chor und das Querschiff in bereits frühgotischem Stil errichtet. Noch später (1260) folgten der Südwestturm (St. Michel) mit einer 15 m hohen hölzernen Spitze und die hochgotische Westfassade. Der Nordturm wurde nicht weiter aufgebaut. In den Revolutionsjahren 1789 bis 1799 wurde durch die Garden das Westportal baulich beschädigt. 1819 brannte die Turmspitze ab. Der Architekt und beamtete Bauinspektor (franz. Titel: ‘‘Inspecteur général des édifices diocésains‘‘) Viollet-le-Duc restaurierte die stark baufällige Kirche ab 1840 bis in das Jahr 1842 und wurde sodann abberufen und mit der vier Jahre währenden Restaurierung der Basilika minor Saint-Andouche in Saulieu beauftragt.[6] Die wesentlichen Restaurierungsarbeiten an der sehr baufällig gewordenen Kirche in Vézelay führte aber über die sechsjährigen Bauarbeiten der Werksinspektor François-Nicolas Comynet durch, der zwei Jahre nach Fertigstellung in Saint-Père-sous-Vézelay verstarb.[7] Unter der Leitung von Viollet-le-Duc und Comynet wurde unter anderem das äußere Westportal, das wahrscheinlich das Weltgericht mit einer Majestas Domini zeigte und in der französischen Revolution fast vollständig zerstört worden war, durch eine Neuschöpfung ersetzt.[4][8] Für solche von der ursprünglichen Gestaltung abweichende Neugestaltungen im Wege „denkmalpflegerischer Rekonstruktion“ wurde Eugène Viollet-le-Duc von anderen Fachleuten im Bereich des Denkmalschutzes in Frankreich stark kritisiert. Dies gilt auch für das Wirken von Viollet-le-Duc bei Restaurierungsarbeiten an anderen Objekten wie Kirchen und denkmalgeschützten Bauwerken.[9]

Die Kirche wurde 1993 vom Ortsbischof an die französischen Brüder- und Schwesterngemeinschaft Fraternité de Jérusalem zur Nutzung übergeben. Vézelay ist weltberühmt für die Kapitelle der Säulen, die biblische Geschichten veranschaulichen, sowie für das Hauptportal.

Hauptkirche

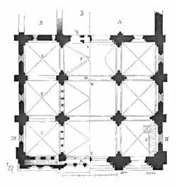
Grundrißauszug der Basilika
Kreuzgratgewölbe und zweifarbige Bögen des romanischen Schiffs
Westportal mit Saint-Michel-Turm um 1836

Die Kirche Sainte Marie-Madeleine ist eine dreischiffige Basilika mit einer Außenlänge von 120 m und mit sehr lang gezogenem Langhaus (zehn schmalrechteckige Travéen), einem kaum auskragenden Querhaus und einem Umgangschor mit Kranzkapellen. Das 1120–1140 errichtete Langhaus zeigt rein romanische Formen. Die von 1145 bis 1260 (Südwestturm) gestaltete Westfassade befindet sich im Übergang von der Romanik zu Gotik. Der von 1185 bis 1215 geschaffene Chor ist frühgotisch mit leichten romanischen Reminiszenzen.

Die Herkunft der für den Bau der Abtei und Basilika Ste. Marie Madeleine verwendeten Gesteine, aus denen die Natursteinquader und das Säulenmaterial gewonnen wurde, ist unbekannt. Für die Restaurierungsarbeiten von 1840 bis 1946 ergründete Architekt Viollet-le-Duc mehrere infrage kommende Steinbrüche, deren Gesteinsvorkommen dem ursprünglichen Material am nächsten kamen, wobei für die Auswahl nicht nur die Farbe, sondern auch die Gesteinshärte eine bedeutende Rolle spielte. Ein grobes, hartes Gestein konnte in einem Steinbruch sowohl in der Nähe von Vézelay und aus dem Steinbruch La Mance als auch in der Region Courson-les-Carrières gewonnen werden. Der erstgenannte Steinbruch dürfte ein entscheidender Grund für die ursprüngliche Auswahl eines Standortes für das Kirchenbauvorhaben in Vézelay gespielt haben. Für die Restaurierungsarbeiten von Pfeilern und monolithischen Säulen, insbesondere im Chor-Bereich, wurde harter, gelblich-weißer Kalkstein aus dem Steinbruch Coutarnoux gewählt. Dieser Kalkstein ist fein polierbar, was für das Kircheninnere von Bedeutung ist.[10]

Die Architektur der Westfassade macht deutlich, dass ein Kirchenbauwerk mit zwei westlich ausgerichteten Türmen beabsichtigt war; das Fehlen des nordwestlichen Turmes macht eine für französische Kirchen ungewohnte Asymmetrie in der Fassadenfront aus. Der rechte, südwestliche Saint-Michel-Turm ist rechteckig ausgebildet und besitzt eine Höhe von nur noch 38 m, da bei der Restaurierung die höhere Turmspitze nicht wieder hergestellt worden war. Die Kirche verfügt an der Nordseite über einen Vierungsturm, den Saint-Antoine-Turm mit einer Höhe von 35 m.

Langhaus

Kirchenschiff mit Blickrichtung zum Chor (Foto mit Genehmigung für WP von François Walch)
Chorumgang mit Kreuz­rippen­gewölben und Chor mit Empore

Im Langhaus von Vézelay sind Mittelschiff wie Seitenschiffe mit rundbogigen Kreuzgratgewölben gedeckt, entsprechend den klassischen Formen der überregionalen Romanik. Demgegenüber wird in Vézelay nur der Rundbogen verwendet, der Wandaufbau ist zweigeschossig und das Langhaus ist mit einem Kreuzgratgewölbe überdeckt. Als Vorbild dieser Baustruktur gilt die Kirche in Anzy-le-Duc. Vergleichbar ist auch St. Lazare im benachbarten Avallon. Der farbige Wechsel der Steinschichten in Arkaden und Gurtbögen hat Vorbilder bis in die Karolingerzeit, beispielsweise in der zwischen 795 und 803 nach byzantinischen Vorbildern errichteten Aachener Pfalzkapelle oder der näher gelegenen, um 1020 begonnenen Abteikirche Saint-Philibert in Tournus. Der Aufriss der Mittelschiffswand ist zweizonig, die einzelnen kreuzgratgewölbten Travéen werden von einem differenzierten System von Wandvorlagen voneinander geschieden. Im Mittel- und den Seitenschiffen befinden sich zahlreiche aufwändige, figürlich oder floral gestaltete Kapitelle.

Rechtes Nebenportal: Geburt und Anbetung Jesu

Damit nimmt Vézelay im Burgund eine Sonderstellung ein. Die romanische Architektur der Kirche folgte dem Vorbild der seit 1088 errichteten (dritten) Kirche der mächtigen Benediktinerabtei Cluny. Das cluniazensische Architektursystem, noch gut in der Prioratskirche Sacré-Cœur in Paray-le-Monial und der Kathedrale St. Lazare in Autun zu erkennen, unterscheidet sich von der übrigen Romanik durch die Verwendung des Spitzbogens in den Arkaden und in den Tonnen- und Kreuzgratgewölben, nicht aber in den Fenstern, und einem dreiteiligen Wandaufbau aus Arkaden, Triforium und Obergaden. Eine auffällige Gemeinsamkeit des Langhauses von Vézelay mit dem (verlorenen) Langhaus von Cluny III ist die Verwendung von Strebebögen, die gerne als Kennzeichen gotischer Basiliken gesehen werden, schon in der Romanik.

Die Abmessungen des Langhauses betragen 62,5 m in der Länge des Kirchenschiffs und 50 m in der Breite (19 m in der Breite des Mittelschiffs und je 12 m bei den Seitenschiffen).[11] Die Angaben zur Innenhöhe variieren von 18,6 m Gewölbehöhe im Mittelschiff bis zu 22 m.[12]

Bei der Restaurierung ab 1840 vom Rahmen-, Binder- und Tragwerk aus Holz einschließlich dessen für Gerüste achtete Viollet-le-Duc sehr auf wirtschaftliche Auswahl der Holzarten und der Ausbeute aus Stammholz. Die einst bevorzugte getrocknete Eiche kam wegen des Holzpreises nicht in die alleinige Auswahl; es wurden je nach konstruktiven Anforderungen Kombinationen aus Eiche und sogenanntes Grünholz aus Tanne und Pappel verwendet. Für die Ausbeute aus angekauftem Stammholz legte der Architekt strenge Maßstäbe an, wobei sich in Vézelay 7/8 effektiver Holzausbeute für Nutzholz nicht halten ließen, so dass man 1/5 Verlust in Kauf nehmen musste.[13]

Umgangschor

Im Chor der Basilika Sainte-Marie-Madeleine (mit Blickrichtung Langhaus)
Chor-Grundriss Basilika Sainte-Marie-Madeleine

Der frühgotische Chor von Vézelay hat im Unterschied zum Schiff einen dreigeschossigen Wandaufbau, bestehend aus den Arkaden des Chorumgangs, den Arkaden des Emporengeschosses und den Obergaden. Die Umgangsarkaden sind spitzbogig. Die Arkaden der Empore sind als Biforien gestaltet, mit spitzbogigen Öffnungen aber noch rundbogigen Überfangbögen. Die Obergadenfenster sind spitzbogig, wenn auch noch ohne Maßwerk, aber die Schildbögen darüber sind rundbogig. Wie bei vielen gotischen Kirchen Frankreichs, nicht zuletzt Notre-Dame de Paris, sind die Stützen im Erdgeschoss Säulen, fangen die für die gotische Architektur typischen Dienste erst auf deren Kapitellen an.

Die Abmessungen vom Chor betragen 26,6 m in der Länge des Chores und 10,65 m in der Breite sowie 22 m in der Höhe unter dem Chorgewölbe.

Krypta

Krypta

Die Krypta befindet sich unter dem erhöhten Chor. Sie ist 19 m lang und 9,20 m breit. Sie besitzt ein Kreuzgratgewölbe, das auf zwölf Säulen unterschiedlicher Größe ruht. Die Krypta enthielt angebliche Reliquien der Maria Magdalena. Aufgrund einer vertraglichen Vereinbarung der Kirche von Vézelay und der Kirche von Saint-Maximin-la-Sainte-Baume befindet sich der mutmaßliche Schädel von Maria Magdalena in einem Reliquiar in der Krypta der gotischen Basilika von Saint-Maximin-la-Sainte-Baume.

Vorhalle

Grundrißauszug des Narthex
Die Vorhalle (Blick vom Kirchenschiff in den Narthex)

Im Westen ist dem Bau ein ebenfalls dreischiffiger, drei Joche langer Narthex vorgelagert, stilistisch im Übergang von der Romanik zur Gotik. Ihm verdanken die Tympana und die Kapitelle ihren hervorragenden Erhaltungszustand. Eine solche Vorhalle wurde u. a. als zusätzliche Station für die raumgreifenden Prozessionen des cluniazensischen Ritus genutzt.[14]

Die Innenabmessungen des Narthex betragen 22 m in der Länge und 23,5 m in der Breite sowie 19,5 m in der Höhe.

Das große Mittelportal (errichtet schon im Zusammenhang mit dem Kirchenschiff, zwischen 1120 und 1140)[3] stellt im Tympanon die Spende des Heiligen Geistes an die Apostel durch Christus dar, also das Pfingstereignis. Es ist zugleich Gründung der Kirche wie die Aussendung der Apostel zur Mission in aller Welt.[15] In den kastenartig gerahmten Feldern sind die Völker der Erde dargestellt, zu denen die Apostel das Evangelium bringen sollen. In den Medaillons der Archivolten sind die Tierkreiszeichen und Monatsarbeiten wiedergegeben. Die Nebenportale zeigen Anfang und Ende des irdischen Lebens Jesu: links Verkündigung, Geburt und Anbetung der Heiligen Drei Könige, rechts die Emmaus-Erscheinung und die Himmelfahrt.

Kapitelle

Die Kapitelle von Vézelay stammen aus der Zeit zwischen 1120 und 1140. Von den 99 Kapitellen im Kirchenschiff sind nur wenige im 19. Jahrhundert durch Kopien der Originale ersetzt worden. Leitthemen der Kapitelle von Vézelay sind die Darstellungen des Guten und des Bösen in vielfältigen Beispielen.

Das berühmteste Kapitell in Vézelay ist Die mystische Mühle. Ein Mann im kurzen Gewand mit Schuhen an den Füßen schüttet Korn in eine Mühle, während ein barfüßiger anderer, bekleidet mit einer weißen Toga, das Mehl auffängt. In der ersten Gestalt muss man Moses sehen; im Korn, das er in die Mühle schüttet, das Gesetz des Alten Testamentes, das er von Gott am Berg Sinai erhalten hat. In der Mühle, die das Korn mahlt, wird symbolisch Christus dargestellt (das Rad ist mit einem Kreuz bezeichnet). In dem Menschen, der das Korn auffängt, wird der Apostel Paulus gezeigt, und im Mehl selbst das Gesetz des Neuen Bundes, die neue Gerechtigkeit. Das Gesetz des Moses enthielt zwar die Wahrheit, aber es war eine verborgene Wahrheit, so verborgen wie das Mehl im Korn. Erst durch das Opfer Christi am Kreuz ist es in dieses Mehl verwandelt worden, das man in sich aufnehmen kann, indem man es zu Brot weiterverarbeitet: und das ist das neue Gesetz des Evangeliums Jesu Christi, das der hl. Paulus durch Gottes Auftrag annahm, um es weiter zu verbreiten.

Berühmt ist auch das Kapitell, auf dem zu sehen ist, wie der erhängte Judas vom guten Hirten auf seinen Schultern fortgetragen wird. Papst Franziskus sagte zu diesem Bild, das ihn nach eigener Aussage „zutiefst berührt“ hat: „Das war die Theologie des Mittelalters, wie die Mönche sie lehrten. Der Herr vergibt bis zuletzt.“[16]

Orgel

Die mechanische Orgel der Basilika

Die Orgel wurde 1922 von dem Orgelbauer Reygaërt (Auxerre) erbaut; das Gehäuse wurde von dem Künstler Lebrun (Vézelay) geschaffen. Das rein mechanische Instrument hat 16 Register auf zwei Manualen und Pedal. Die Pedalregister sind Transmissionen.[17]

I Grand Orgue C–g3
Bourdon 16′
Montre 8′
Bourdon 8′
Salicional 8′
Prestant 4′
Doublette 2′
Fourniture
Trompette 8′
II Récit C–g3
Flûte traversière 8′
Viole de Gambe 8′
Voix céleste 8′
Flûte 4′
Trompette harmonique 8′
Basson/Hautbois 8′
Pédalier C–f1
Soubasse (aus G.O.) 16′
Basse (aus Récit) 8′

Kunsthistorische Fachliteratur

  • Peter Diemer: Stil und Ikonographie der Kapitelle von Ste.-Madeleine, Vézelay. Dissertation. Heidelberg 1975.
  • Bernhard Rupprecht: Romanische Skulptur in Frankreich. Aufnahmen von Max Hirmer und Albert Hirmer, 2. Auflage. Hirmer, München 1995, ISBN 3-7774-3750-6.
  • Francis Salet: La Madeleine de Vézelay. Étude iconographique de Jean Adhémar. Melun 1948.
  • Stéphane Büttner: La mise en œuvre de la façade et du grand portail de la nef de Vézelay. Nouvelles données archéologiques. In: Les Cahiers de Saint-Michel de Cuxa XLV, 2014. Le portail roman – XIe-XIIe siècles. Nouvelles approches, nouvelles perspectives. S. 145–156.
  • Marcel Angheben: Apocalypse XXI–XXII et l'iconographie du portail central de la nef de Vézelay. In: Cahiers de civilisation médiévale 41, 1998. S. 209–240.
  • Peter Diemer: Das Pfingstportal von Vézelay. Wege, Umwege und Abwege einer Diskussion. In: Jahrbuch des Zentralinstituts für Kunstgeschichte 1, 1985. S. 77–114.
  • Arnaud Timbert: Vézelay: le chevet de la Madeleine et le premier gothique bourguignon. Rennes 2009.

Kunstreiseführer

  • Klaus Bußmann: Burgund. DuMont, Köln 1988, ISBN 3-7701-0846-9.
  • Thorsten Droste: Burgund. Kernland des europäischen Mittelalters. Hirmer, München 2001, ISBN 3-7774-8980-8.
  • Sibylle Lauth: Kunstdenkmäler in Burgund. Wissenschaftliche Buchgesellschaft, Darmstadt 2004, ISBN 3-534-14908-4.

Siehe auch

Commons: Ste-Marie-Madeleine (Vézelay) – Sammlung von Bildern

Einzelnachweise

  1. fertiggestellt 2019 zum 40. Jahrestag der Eintragung Vezelays in die Liste des UNESCO-Weltkulturerbes
  2. Basilique Sainte-Marie-Madeleine auf gcatholic.org
  3. a b Stéphane Büttner: La mise en œuvre de la façade et du grand portail de la nef de Vézelay. Nouvelles données archéologiques. In: Les Cahiers de Saint-Michel de Cuxa. Le portail roman – XIe-XIIe siècles. Nouvelles approches, nouvelles perspectives. Band XLV, 2014, S. 145–156, hier S. 146.
  4. a b Francis Salet: La Madeleine de Vézelay. Melun 1948, S. 33 f.
  5. [1] Internetseite Stift Heiligenkreuz Zisterzienserabtei "Wer war der heilige Bernhard? ", abgerufen am 18. April 2024.
  6. [2] Internetseite zu Architekt Viollet-le-Duc "Ziff, 4 und 5 Die Quellen", abgerufen am 19. April 2024.
  7. [https:// data.bnf.fr/fr/15033720/francois-nicolas_comynet] Internetseite zu François-Nicolas Comynet "Lebensdaten vom Buchhändler zum Bauinspektor", abgerufen am 19. April 2024.
  8. [3] Internetseite zu Westportal und zu den Portalen im Allgemeinen, abgerufen am 21. April 2024.
  9. [4] Internetseite zur "Kritik am Wirken von Eugène-Emmanuel Viollet-le-Duc", abgerufen am 21. April 2024.
  10. [5] Internetseite Gestein für das Kirchenbaumaterial "Ziff. 7 bis 18" Entscheidungen von Viollet-le-Duc für das Gestein, abgerufen am 19. April 2024.
  11. [6] Internetseite archONFORM Basilique Sainte-Madeleine "Angaben", abgerufen am 19. April 2024.
  12. [7] Internetseite Kirchenbau.de Vézelay "Kenndaten Innenhöhe", abgerufen am 19. April 2024.
  13. [8] Internetseite Kirchenbaumaterial "Ziff. 30 bis 32" Entscheidungen von Viollet-le-Duc für die Holz-Verwendung, abgerufen am 19. April 2024.
  14. Peter Diemer: Das Pfingstportal von Vézelay. Wege, Umwege und Abwege einer Diskussion. In: Jahrbuch des Zentralinstituts für Kunstgeschichte. Nr. 1, 1985, S. 77–114, hier S. 102 f.
  15. Marcel Angheben: Apocalypse XXI–XXII et l’iconographie du portail central de la nef de Vézelay. In: Cahiers de civilisation médiévale. Band 41, 1998, S. 209–240, hier S. 213 ff.
  16. Interview mit Giovanni di Lorenzo, in: Die Zeit Nr. 11, 9. März 2017, S. 15.
  17. Informationen zur Orgel (französisch)

Koordinaten: 47° 27′ 59″ N, 3° 44′ 55″ O