St. Johannes Nepomuk (Brodenbach)
Die ehemalige Katholische Filialkirche St. Johannes Nepomuk war ab 1806 eine Filiale von St. Michael (Alken).[1] Seit 1993 ist die ehemalige Kirche der „Bürgersaal Ahl Kersch“ (Ortsdialekt für „alte Kirche“) der Gemeinde Brodenbach.
Lage
Die ehemalige Kirche steht im Ortskern der Gemeinde Brodenbach, an der „Rhein-Mosel-Straße“, die zur L 206 in das Ehrbachtal führt. Das Gebäude befindet sich im Hochwasserbereich der Mosel und wird bei extremen Hochwasserständen geflutet.
Bauwerk
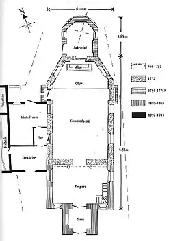
Das Kirchengebäude ist ein Saalbau, in massiver Bauweise aus Bruchsteinen unter Putz gebaut. Turmdach und Kirchenschiff haben eine Schieferdeckung. Die Außenmaße des Gebäudes (ohne Turm und Sakristei) sind: 6 Meter Breite und 16 Meter Länge. Der ehemalige Altarraum im Inneren wird von einer dreigeteilten Apsis abgeschlossen. Gebäude und Grundstück sind Eigentum der Ortsgemeinde.
Geschichte
Zu Beginn des 18. Jahrhunderts gehörten die damaligen Einwohner der heutigen Ortschaft Brodenbach kirchlich zur Pfarrei Löf auf der gegenüberliegenden Seite der Mosel. Die Zivilverwaltung war die Reichsritterschaftliche Herrschaft Ehrenberg. 1732 waren die Freiherrn von Clodt (auch Cloedt, Cloth) im Lehensbesitz der Herrschaft, zu der auch Brodenbach gehörte. Ein Raban von Clodt ließ an der Stelle einer dort vermuteten früheren Kapelle, gegen den Widerstand der Pfarrei Löf und der Trierer Bistumsverwaltung, eine Kapelle errichten.
Die Kapelle wurde dem böhmischen, als „Brückenheiliger“ populär gewordenen Priester Johannes Nepomuk, geweiht. Sein Namensfest ist der 16. Mai. Erst 1756 wurde der Familie von Clodt gestattet dort die Messe zu feiern, mit der Auflage, für alle Kosten eines künftigen Pfarrdienstes aufzukommen. 1775 erfolgte der Anbau einer Sakristei an den Chor und eines Dachreiters mit Glocke. Die Einrichtung der Kirche mit u. a. barocken Heiligenfiguren und die liturgische Ausstattung wurde größtenteils von der herrschaftlichen Familie gestiftet.

Letzter Patronatsherr der Kirche war Benedict, Baron von Clodh, kurfürstlicher Gerichtspräsident in Koblenz, gestorben 1798. 1856 wurde der unmittelbar an der Kirche liegende Friedhof aufgelassen. 1889 wurde das Gebäude von der Gemeinde um ein Drittel nach Süden vergrößert, eine Empore wurde innen errichtet und ein dreigeschossiger Glockenturm in neuromanischem Stil an der Kirchenschiffsüdseite angebaut. Wände und Decke des Innenraums wurden farbig ornamental ausgemalt. Ein Altar mit Kreuzigungsgruppe eines säkularisierten Klosters aus dem Rheinland wurde Hauptaltar.
In den 1960er Jahren wurde dem Kircheninneren alles Dekorative genommen, bzw. vollständig weiß übermalt und kunsthistorisch als wertlos beurteilte Heiligenfiguren entfernt.
1973 wurde die letzte Messe in der Kirche gefeiert und die Pfarrgemeinde zog in die neuerbaute, größere „Vom Heilig Kreuz Kirche“.[2] Das alte Kirchengebäude erfuhr danach unterschiedliche Nutzungen. Die Liturgiegeräte und Teile der Inneneinrichtung erhielt die neuerbaute „Heilig-Kreuz-Kirche“.[3]
1984 wurde die Kirche „St. Johann Nepomuk“ vom Trierer Bischof Hermann Josef Spital profaniert. Das Kirchengebäude wurde wieder Eigentum der Zivilgemeinde.
1991 beschloss der Gemeinderat Brodenbachs, aus der alten Kirche eine Veranstaltungs- und Versammlungsstätte zu machen. Das Gebäude wurde renoviert und erhielt auf der Westseite einen Anbau für Betriebs- und Versorgungseinrichtungen.[4]

Literatur
- Generaldirektion Kulturelles Erbe Rheinland-Pfalz (Hrsg.): Nachrichtliches Verzeichnis der Kulturdenkmäler – Kreis Mayen-Koblenz. Mainz 2025, S. 24 (PDF; 5,8 MB).
- Bürgerbuch Brodenbach (= Deutsche Ortssippenbücher. Band 00.880). Band 1. Plaidt 2015, ISBN 978-3-86424-242-7.
Einzelnachweise
- ↑ Die Katholiken von Brodenbach gehörten zur Pfarrei St. Luzia (Löf). Dagegen ist für die Kirche St. Nepomuk nicht belegt, eine Filialkirche von St. Luzia in Löf gewesen zu sein.
- ↑ Volkshochschule Untermosel: Eine Katholische Kirche des 20. Jahrhunderts – „Vom Heiligen Kreuz“ in Brodenbach. Band 3. Moselkiesel, Kobern-Gondorf 2002, ISBN 3-9806059-1-4, S. 87–98.
- ↑ lt. Bürgerbuch Brodenbach u. a. die Figuren Mutter Anna mit Jesuskind (15. Jh.), Pieta (Anfang 16. Jh.), Marienfigur Unbefleckte Empfängnis und St. Johannes Nepomuk (beide Rokoko des 18. Jh. auf einer Konsole mit Stifterwappen Cloth) und ein Altar mit Kreuzigungsgruppe im Stil des Rokokos aus einem um 1800 aufgelösten Franziskanerkloster in Jülich.
- ↑ Bürgerbuch Brodenbach (= Deutsche Ortssippenbücher. Band 00.880). Band 1. Plaidt 2015, ISBN 978-3-86424-242-7, S. 70–102.
Koordinaten: 50° 13′ 36,5″ N, 7° 26′ 43,3″ O