St. Fridolin (Lörrach)

Die Kirche St. Fridolin im Lörracher Stadtteil Stetten ist eine römisch-katholische Kirche unter dem Patrozinium des Fridolin von Säckingen. Der klassizistische Außenbau der Fridolinskirche im Stil von Friedrich Weinbrenner steht auf einem kleinen Hügel im Kern des ehemaligen Dorfes Stetten. Die zwischen 1821 und 1822 erbaute Fridolinskirche geht auf Entwürfe des Architekten Christoph Arnold zurück und ähnelt stark der 1829 errichteten Wallfahrtskirche in Bad Rippoldsau-Schapbach. Im Kircheninneren ist die klassizistische Architektur mit Rokoko-Elementen angereichert.
Geschichte
Politische Verhältnisse
Das Dorf Stetten gehörte nach 774 zum Säckinger Besitz. Ein Kirchenbau in Stetten wurde erstmals 1275 in einem Verzeichnis des für einen Kreuzzug abzuliefernden Zehnten erwähnt. 1360 wurde die ecclesia Stethin cum filia Hiltolingen in decanatu Warembach erwähnt. Da Stetten zusammen mit Säckingen im Oberamt Breisgau zu Vorderösterreich gehörte, blieb die Gemeinde katholisch im Gegensatz zu Lörrach, das sich 1556 entsprechend seiner Zugehörigkeit zur Markgrafschaft Baden zum reformierten Glauben bekannte (→ Reformation im Markgräflerland). Bis 1803 blieb Stetten eine vorderösterreichische Exklave, als es durch Napoléon aufgrund des Reichsdeputationshauptschlusses Baden zugesprochen wurde. Mit dieser besonderen Stellung Stettens war die katholische Kirche St. Fridolin dort bis 1867 gleichzeitig auch die einzige Pfarrkirche, deren Einzugsgebiet sich bis ins vordere Wiesental erstreckte.[1]
Vorgängerbau
Die Anzahl der Vorgängerbauten der heutigen St.-Fridolin-Kirche ist unbekannt. Es gilt jedoch als wahrscheinlich, dass sich diese stets am selben Platz befanden. Der unmittelbare Vorgängerbau entstand vermutlich in der zweiten Hälfte des 14. Jahrhunderts und war ebenfalls dem Heiligen Fridolin geweiht. Für die Jahre 1440 und 1539 sind größere Instandsetzungsarbeiten und Umbauten dokumentiert.[2] Auskunft über diese Vorgängerkirche geben eine Landkarte aus der Vogelperspektive des Basler Malers Hans Bock aus dem Jahr 1620[3] und eine Federzeichnung von Emanuel Büchel mit topografisch genauen Ansichten von Lörrach und Stetten.[4] Außerdem sind Notizen des zur Zeit des Abrisses amtierenden Pfarrers und weitere schriftliche Überlieferungen erhalten. Es handelte sich um eine Chorturmanlage. Einem kleinen, rund 13 Meter langen Kapellraum schloss sich im Osten ein wuchtiger Turm mit quadratischem Grundriss an mit 6,5 Meter Seitenlänge und 21 Meter Höhe, der den Chor enthielt. Der Turm befand sich an der Stelle der rechten Eingangstür der heutigen Kirche. Trotz ihrer geringen Größe hatte diese Kirche drei Eingänge und im hinteren Teil eine Holzempore.[5] Nach Schätzungen fasste sie etwa 250 Personen, die Hälfte der damaligen Einwohner des Dorfes Stetten. In den Jahren 1758/59 wurde ein neues barockes Pfarrhaus anstelle des alten erbaut und gleichzeitig der Neubau einer Pfarrkirche vorangetrieben. Das Säckinger Damenstift war zwar baupflichtig, lehnte aber den Antrag auf einen Neubau nach dem Großbrand des Fridolinsmünsters 1751 zunächst ab. Allerdings verzögerte auch die Säkularisation das Bauvorhaben erheblich. 1803 wurde Stetten dem Großherzogtum Baden angegliedert; durch den Wechsel waren die bisherigen Behörden nicht mehr zuständig und die neuen Ämter hatten vorerst kein Interesse an einem Neubau.[6]
Planungsgeschichte
Erst 1808 setzte die Planungsphase für den Neubau von St. Fridolin ein. Diese gestaltete sich aufgrund jahrelanger Querelen um die Baupflicht und deren Verteilung sowie einer Anzahl von Gutachten äußerst schwierig. An der Planung beteiligte sich eine Reihe von Baumeistern, die zu jener Zeit im Großherzogtum Baden tätig waren.
Entwürfe für die neue Pfarrkirche in Stetten kamen der Reihe nach von den Architekten Rebstock (?–1818), Friedrich Weinbrenner, Friedrich Rief, Christoph Arnold, Johann Ludwig Weinbrenner sowie dem Vorarlberger Jodok Friedrich Wilhelm (1797–1843). Rebstock plante ein breites, kurzes Langhaus auf einem neuen Bauplatz außerhalb des Ortes. Auf Geheiß der Behörden fertigte Rebstock einen zweiten Entwurf unter Beibehaltung des alten Bauplatzes an. Baudirektor Friedrich Weinbrenner hielt sich aus anderen Gründen 1813 in Lörrach und Stetten auf und behielt in seinem Plan die Kirche zwar am alten Platz, zog aber eine Verlegung des Friedhofes in Betracht. Sein Entwurf sah einen gedrungen-rechteckigen Kirchenraum mit umlaufender Empore vor. Das Grundschema ähnelte vielen ausgeführten kleineren Kirchenbauten, wie z. B. der evangelischen Kirche Langensteinbach. Der Weinbrennersche Entwurf überzeugte allerdings Gemeinde und Behörde nicht, da die Änderungswünsche vom klassizistischen hin zum barocken Grundcharakter die ursprüngliche Konzeption grundlegend verändert hätten.[7]

Rebstock wurde daraufhin aufgefordert, den Weinbrennerschen Entwurf nach den Erfordernissen der Gemeinde umzuarbeiten. Da er sich weigerte, entwarf der Behördenarchitekt Friedrich Rief neue Pläne. Diese sahen einen einheitlichen Saalraum mit rückwärtiger Empore und eine mächtige klassizistische Doppelturmfassade vor. Friedrich Weinbrenner, dem der Entwurf vorgelegt wurde, kritisierte, dass dieser keine Rücksicht auf die Örtlichkeit nähme und im Inneren keine ausreichend sakrale Wirkung erreichte.[8] Auch Riefs Plan wurde verworfen; es gingen jedoch Teile seiner Gestaltungsvorschläge in den endgültigen Entwurf von Christoph Arnold ein. Arnold, ein Neffe Friedrich Weinbrenners, war der zuständige Kreisbaumeister für das gesamte öffentliche Bauwesen im Südwesten des Großherzogtums. Sein Entwurf wird in den Akten als Verschmelzung der beiden früheren Pläne beschrieben. Mit Riefs Entwurf hat der Arnoldsche die massive Doppelturmfassade gemeinsam, die Arnold ein paar Jahre später bei der der St.-Fridolins-Kirche sehr ähnlichen katholischen Kirche in Bad Rippoldsau verwirklichte.
Baugeschichte
Am 3. Juli 1821 wurde der Grundstein der Fridolinskirche, ein Eckquader des Turmes, gelegt. An der Feierlichkeit nahmen neben mehreren Pfarrern aus dem Umland 2000 Gäste teil.[9] Fidel Oberle, ein Zimmermeister aus Waldshut, übernahm als Generalunternehmer für 16.860 Gulden den Bau.[10] Als Vorbild für den Hochaltar dienten Entwürfe von Johann Ludwig Weinbrenner, ebenfalls ein Neffe von Friedrich Weinbrenner, der für die katholische Kirche von Istein Altäre entworfen hatte. Die Kanzel sollte sich an die der evangelischen Kirche (heute: Evangelische Stadtkirche) anlehnen. Der Stuckateur und Altarbauer Jodokus Wilhelm fertigte die Ausstattungsstücke an, deren Kosten sich auf 900 Gulden beliefen. Der badische Staat beteiligte sich an mehr als der Hälfte der Baukosten.[11] Am 15. Juli 1822 wurden die Kreuze und die Turmkugeln auf den beiden Türmen angebracht; am 25. August desselben Jahres erfolgte die Weihe der Kirche.
Die katholische Kirche selbst hatte kaum eigene Mittel. Da sie von den staatlichen Ämtern abhängig war, wurde den liturgischen und religiösen Bedürfnissen kaum Rechnung getragen. So sollte beispielsweise ein Beichtstuhl im Unterbau des Hochaltars untergebracht werden.[12] In den Jahren 1826 bis 1843 waren bereits Reparaturarbeiten an der Kirche notwendig, die Jodokus Wilhelm neben anderen Handwerkern ausführte. Erst 1829 erhielt die Fridolinskirche eine Orgel durch den Oberhauser Orgelbauer Merklin. Da die Kirche auch von zahlreichen auswärtigen Katholiken besucht wurde, reichten die Plätze bereits 1841 nicht mehr aus.[13] Von Amts wegen wurde daher angeordnet, auf der Empore Kirchenstühle einzubauen. In der zweiten Hälfte des 19. Jahrhunderts wurden die ursprünglichen Bilder durch neue ersetzt. Am Hochaltar wurde ein großes Tafelbild ohne Rahmen direkt an der Wand befestigt und 1899 wurden architektonische Muster ausgemalt und die Fenster verkleinert. 1952 wurden die meisten dieser Veränderungen rückgängig gemacht und das ursprüngliche Aussehen wiederhergestellt. 1954 kam eine geschnitzte Pietà von Franz Spiegelhalter in die Kriegergedächtniskapelle unter dem Südturm und 1964 stiftete die Familie Trikes das bronzene Eingangsportal, das in deren Gießerei nach einem Entwurf von Alfred Erhard angefertigt worden war. Bei einer umfangreichen Renovierung wurde 1974 der Hochaltar originalgetreu rekonstruiert.[14]
Infolge des starken Einwohnerwachstums von Stetten wurde in den Jahren 1965 bis 1967 die zur Pfarrei angeschlossene Filialkirche Heilige Familie errichtet.
Beschreibung
Außenbau

Die Fridolinskirche mit der massiven rund 30 Meter hohen Doppelturmfassade erhebt sich auf einem Hügel über dem Ortskern Stettens. Man gelangt zu ihr über eine ausladende Freitreppenanlage am Sockel der Kirche. Die Umgebung der Kirche ist dicht mit Wohnhäusern bebaut. Vor dem Haupteingang befindet sich der kopfsteingepflasterte Kirchplatz. Nordwestlich schließt sich das barocke Pfarrhaus an, in dessen Kellergewölberäumen Veranstaltungen der Gemeinde stattfinden. Das Pfarrhaus wurde von den Architekten Beck und Hohenauer entworfen. Größere Renovierungsmaßnahmen an diesem Haus fanden 1871, 1884 und 1923 statt.[15]
Die beiden Türme flankieren den dreigeschossigen Hauptkörper der Kirche, dessen Vorbau mit einem Konsolengesims nach oben abgeschlossen ist und in dessen oberen Drittel zwischen zwei größeren Rechteckfenstern eine Uhr angebracht ist. Der Innenkreis des Zifferblatts ist hellblau, der äußere Kreis zum Kontrast schwarz. Die Zeiger und die römischen Zahlen sind goldfarben. Die Glockengeschosse der Türme springen leicht zurück und sind mit Eckpilastern und rundbogigen Langarkaden versehen. Die beiden Türme haben Pyramidendächer und tragen goldene Turmkugeln und Kreuze. Eine Treppe im Nordturm führt zum für die Öffentlichkeit nicht zugänglichen Glockengeschoss. Im leicht zurückspringenden Mittelteil der Fassade befindet sich eine verglaste Rundbogenöffnung. Zwei rechteckige Fenster über einem Konsolengesims im Obergeschoss sind von Eckpilastern gerahmt. Der Mittelteil wird von einem Satteldach abgeschlossen. Der Eindruck der Gedrungenheit wird durch die zurückgesetzten Gliederungselemente und Bauteile im Mittelteil erreicht. Dieser Stil ist sowohl für Christoph Arnold als auch für andere Bauwerke aus der Weinbrennerzeit typisch.[16]

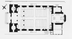
Der Grundriss der Saalkirche ist etwa 40 Meter lang und 18,5 Meter breit. Der Chor ist nach Nordosten ausgerichtet. Das Langhaus ist, ebenso wie der Mittelteil der Frontfassade, durch ein Satteldach abgeschlossen. Ein Konsolenfries begleitet den Dachansatz. Der Chor verfügt über ein Walmdach mit niedrigem First.
Das Kirchenportal aus Bronzeguss am Haupteingang wurde 1964 von dem Freiburger Alfred Erhard geschaffen und in der Gießerei Trikes in Stetten hergestellt. Es enthält auf sechs Tafeln Reliefs mit Szenen aus dem Leben des Heiligen Fridolin. In der unteren linken Tafel ist neben dem Patron die Inschrift „St. Fridolin – ora pro nobis“ (Heiliger Fridolin – bete für uns) angebracht. Daneben ist die stilisierte Kirche mit den umliegenden Häusern und das Ortswappen von Stetten dargestellt.
Der Haupteingang wird von einer rechteckigen Vordachkonstruktion geschützt. Die zwei stämmigen Pfeiler mit quadratischem Grundriss und dorisierenden Kapitellen tragen einen Balkon mit Gesims.
Innenraum

Durch die 1935 dem damaligen Stil angepasste Vorhalle gelangt man in den Kirchensaal, der wegen der fehlenden Seitenschiffe ungewöhnlich weit und großzügig erscheint. An der Decke des Langhauses (Zahnfries und Profilstäbe) und des Chors sowie oberhalb der Rundbogenfenster ist flacher Stuck angebracht. Die Fensterbänke aller Rundbogenfenster sind auffallend schräg herabgezogen. Diese Formgebung hatte Christoph Arnold bereits in der katholischen Kirche St. Blasius in Zähringen gewählt. Neben dem besseren Lichteinfall ins Kircheninnere unterstrich Arnold mit dem ausgeprägten Vertikalismus eine repräsentative und formale Erscheinung. Im Scheitel der Rundbogenfenster im Chor erscheinen Engelsköpfe aus Stuck, die an den Seiten von Girlanden flankiert werden; unterhalb der Fenster sieht man Lorbeerzweige mit Früchten. Die Stuckarbeiten gehen größtenteils auf Jodokus Wilhelm zurück. Der sparsame Stuck umrahmt die Decke und ist an den Ecken jeweils zur Innenseite eingezogen. Innerhalb der Umrandung befinden sich ein großes ovales Blendfeld und vier kleinere runde Blendmedaillons, die von Blattgirlanden und Akanthusstäben umgeben sind.

An der Eingangsseite unterschreitet man eine eingeschossige Orgelempore mit geschlossener, girlandengeschmückter Brüstung. Die Empore wird von zwei Säulenreihen getragen. In Richtung des Langhauses sind es vier dorische Säulen und zwei Wandpilaster. Zum Eingangsportal hin ruht die Empore auf zwei Säulen und zwei Wandpilastern. Es handelt sich dabei um eines der wenigen antikischen Elemente der Kirche.
Die Fridolinskirche besitzt drei Altäre aus Stuckmarmor. Die beiden Seitenaltäre wurden von Christoph Arnold entworfen und von Jodokus Wilhelm handwerklich umgesetzt. Die Stipites der Altarbauten verjüngen sich sargähnlich nach unten; die Sockelzonen sind von je zwei Pfeilern eingefasst, auf denen die Hauptteile der Altare stehen. Die ursprünglichen Altarbilder sind nicht mehr vorhanden. Ihre Stelle nehmen zwei Bilder des Schweizer Malers Melchior Paul von Deschwanden ein. Sie stammen aus dem Jahr 1871 und stellen den Heiligen Joseph und Maria Immaculata dar. Die Bilder wurden von der Stettener Bürgerin Josephine Müller gestiftet.[17] Die Stifterin bestellte beim Maler noch ein weiteres Bild mit dem Titel Maria mit dem Kinde, allerdings ist sein Verbleib unbekannt.
Der ursprüngliche Hochaltar bestand nach den Akten aus einem detachierten[18] Stipes mit Tabernakel und Anbetungsengeln sowie einer an der Chorwand befestigen Ädikula. Der Sockel des Hochaltars musste 1832 wegen Holzschwammbefalls erneuert werden. Der Hofmaler von Baden Wilhelm Dürr (1815–1890) schuf 1871 ein großes Tafelbild, das Christi Himmelfahrt darstellte. Es wurde anstelle des damals entfernten Hochaltars ohne Umrahmung an der Chorrückwand aufgehängt. Dieses Gemälde wich bei der Renovierung 1952, um für den rekonstruierten Hochaltar Platz zu machen. Einzelne Teile des ursprünglichen Hochaltars, wie beispielsweise ein Ensemble von sitzenden Putten, waren bis 1975 an den Seitenaltären angebracht. Im rekonstruierten Hochaltar befindet sich ein lebensgroßes Holzkruzifix aus der Zeit um 1660.
Altar, Ambo und Tabernakel am Sockel des Hochaltars bestehen aus weiß glasiertem Ton. Sie zeigen Reliefs von Blumen, Laubzweigen, Weintrauben und Vögeln. Diese Prinzipalstücke aus dem Jahr 1974 stammen von dem Kölner Bildhauer Elmar Hillebrand.
Die von Christoph Arnold entworfene und von Jodokus Wilhelm ausgeführte Kanzel ist ein zylindrischer Corpus und steht am Muttergottes-Altar an der Nordwand der Kirche. Sie ist mit vergoldeten Girlanden geschmückt und wird von Basis- und Kranzgesimsen begleitet. Den Korb der Kanzel schließt ein vergoldeter Pinienzapfen nach unten ab. Der Schalldeckel trägt eine vergoldete, diademartige Krone. Zwischen Korb und Schalldeckel ist ein karminroter Vorhang, flankiert von zwei Säulen aus Stuckmarmor, angebracht. Eine fast identische Kanzel befindet sich in der Pfarrkirche von Zähringen. Auf der gegenüberliegenden Langhauswand steht als Pendant eine Ädikula aus Stuck mit einem Wandbild des Heiligen Fridolin, des Kirchenpatrons. Das Bild stammt von einem unbekannten Maler aus der Erbauungszeit der Kirche.[19] Unterhalb der Ädikula steht das Taufbecken.
Orgel

Auch der klassizistische Orgelprospekt mit antikischen Ornamenten und goldfarbenen Zierstücken geht auf Jodokus Wilhelm zurück. Er ist fünfteilig aufgebaut und mit Dreiecksgiebeln waagerecht abgeschlossen. Mittig trägt es auf der Stirnseite eine analoge Uhr mit hellgrauem Ziffernblatt, schwarzen Zeigern sowie einem goldfarbenen Rand mit schwarzen römischen Zahlschriften.
Das ursprüngliche Orgelwerk aus dem Jahr 1829 stammt von dem Orgelbauer Franz Joseph Merklin aus Oberhausen bei Freiburg. Das Orgelgehäuse besteht aus Eichenholz. Das Instrument hatte zwei Manuale, ein Pedal und umfasste 19 Register. 1966 wurde die Orgel von Johann Klais aus Bonn mit einer französischen Disposition neu gebaut. Sie weist drei Manuale, Pedal und 32 Register auf.[20]
Die Orgel wurde im Jahr 2007/08 von der Orgelbauwerkstatt Thomas Jann geringfügig umdisponiert und neu intoniert.[21] Die Orgel von St. Fridolin hat folgende Disposition (Zustand: Juli 2019):[22][23]
|
|
|
| ||||||||||||||||||||||||||||||||||||||||||||||||||||||||||||||||||||||
Das Windwerk arbeitet dabei wie folgt: I. Manual: 55 mm WS, II. Manual: 62 mm WS, II Manual: 65 mm WS sowie das Pedal mit 80 mm WS.
Glocken
Das Glockengeläut von St. Fridolin besteht aus fünf Kirchenglocken aus Bronze, die sich auf die beiden Türme verteilen. Nach den beiden Weltkriegen blieb nur die Schutzengelglocke erhalten. Sie wurde 1920 von der Glockengießerei Grüninger in Villingen gegossen. Die restlichen Glocken stammen ebenfalls von Grüninger. Sie wurden 1951 am neuen Firmensitz Straß bei Neu-Ulm gegossen. Die drei großen Glocken hängen im linken (Nordwest-)Turm, die anderen im rechten (Südost-)Turm. Die Glocken 1, 2 und 3 sind in den Uhrschlag der Turmuhr einbezogen.[20][24]
| Glocke | Name | Durchmesser | Gewicht | Schlagton | Gussjahr | Verwendung / Anlässe |
|---|---|---|---|---|---|---|
| 1 | St. Nikolaus | 1191 mm | 1100 kg | e′-1 | 1951 | |
| 2 | Christus König | 1001 mm | 600 kg | g′±0 | 1951 | Angelus und Wandlung an Festtagen |
| 3 | Sancta Maria | 895 mm | 400 kg | a′-1 | 1951 | Beerdigung und Wandlung |
| 4 | St. Fridolin | 800 mm | 300 kg | h′±0 | 1951 | Angelus |
| 5 | Schutzengelglocke | 700 mm | 210 kg | d″-3 | 1920 | Todesfall |
Gemälde

Farbige Akzente in den in weiß und ocker gehaltenen Kirchenraum bringen die Gemälde der Kreuzwegstationen. Die Ölgemälde auf Leinwand mit Stuckrahmen stammen wahrscheinlich von dem Maler Wendelin Moosbrugger.[25] Der nachbarocke Stationsweg ist wegen seiner Reihenfolge bemerkenswert, da er, von Ignaz Heinrich von Wessenberg beeinflusst, in ikonologischer Weise von der traditionellen Reihenfolge abweicht. Die Reihenfolge ist: Gethsemane, Judaskuss, Gefangennahme, Jesus vor Kaiphas, Verleugnung des Petrus, Verspottung, Dornenkrönung, Ecce homo, Händewaschung, Jesus begegnet seiner Mutter und Kreuzigung und Grablegung.
Über den beiden Türen zur Sakristei befinden sich zwei ovale barocke Medaillons. Über der linken Tür ist Maria Magdalena dargestellt, über der rechten Petrus. Die Ölgemälde auf Leinwand und in Stuckrahmen stammen von einem unbekannten Maler und sind die einzigen erhaltenen spätbarocken Bilder in Lörracher Kirchen.
Literatur
- Hans Jakob Wörner: Lörrach–Stetten, St. Fridolin. Verlag Schnell und Steiner 1975, ISBN 978-3-7954-4786-1.
- Otto Wittmann et al., Stadt Lörrach (Hrsg.): Lörrach: Landschaft – Geschichte – Kultur. Verlag Stadt Lörrach, Lörrach 1983, ISBN 3-9800841-0-8, S. 623–627.
- Gerhard Moehring: Stetten und seine Geschichte (= Lörracher Hefte Nr. 8). Verlag Waldemar Lutz, Lörrach 2008, ISBN 978-3-922107-78-1, S. 76–91.
- Arno Herbener, Rolf Rubsamen, Dorothee Philipp, Jost Grosspietsch: Kunst. Thermen. Wein. Entdeckungsreisen durch das Markgräflerland. Kunstverlag Josef Fink, 2006, ISBN 978-3-89870-273-7, S. 29.
- Anton Utz: Chronik der St. Fridolinskirche Stetten. In: Walter Jung, Gerhard Moehring (Hrsg.): Unser Lörrach 1975. Eine Grenzstadt im Spiegel der Zeit. Kropf & Herz, Lörrach-Tumringen 1975, S. 58–81.
- Johannes Helm: Kirchen und Kapellen im Markgräflerland. Müllheim/Baden 1989, ISBN 3-921709-16-4, S. 165–167.
Weblinks
- Deutsche Digitale Bibliothek: Aufnahmen von St. Fridolin Lörrach
- Orgel St. Fridolin Lörrach – Beitrag auf Orgel-Verzeichnis
Einzelnachweise
- ↑ Otto Wittmann et al.: Lörrach: Landschaft – Geschichte – Kultur, Seite 625
- ↑ Wörner: Lörrach–Stetten, St. Fridolin, Seite 3
- ↑ Staatsarchiv Basel
- ↑ Kupferstichkabinett Basel
- ↑ Wörner: Lörrach–Stetten, St. Fridolin, Seite 4
- ↑ Wörner: Lörrach–Stetten, St. Fridolin, Seite 7
- ↑ Wörner: Lörrach–Stetten, St. Fridolin, Seite 8
- ↑ Wörner: Lörrach–Stetten, St. Fridolin, Seite 9
- ↑ Moehring: Stetten und seine Geschichte, Seite 78
- ↑ Moehring: Stetten und seine Geschichte, Seite 77
- ↑ Knebel, Leonhard (Hrsg.): Die beiden kath. Gemeinden in Lörrach – St. Bonifaz, St. Fridolin. Erolzheim 1955, Seite 5
- ↑ Joseph Sauer: Die kirchliche Kunst der ersten Hälfte des 19. Jahrhunderts in Baden, Freiburg 1933, Seite 482
- ↑ Otto Wittmann et al.: Lörrach: Landschaft – Geschichte – Kultur, Seite 626
- ↑ Otto Wittmann et al.: Lörrach: Landschaft – Geschichte – Kultur, Seite 627
- ↑ Wörner: Lörrach–Stetten, St. Fridolin, Seite 19
- ↑ Wörner: Lörrach–Stetten, St. Fridolin, Seite 11
- ↑ Wörner: Lörrach–Stetten, St. Fridolin, Seite 15
- ↑ eine handwerkliche Behandlung, um Flecken zu entfernen
- ↑ Wörner: Lörrach–Stetten, St. Fridolin, Seite 16
- ↑ a b Helm: Kirchen und Kapellen im Markgräflerland, S. 166
- ↑ Lörrach / Stetten – St. Fridolin – Orgel Verzeichnis – Orgelarchiv Schmidt. Abgerufen am 24. Oktober 2021 (deutsch).
- ↑ Antwort vom 1. Juli 2019 auf E-Mailanfrage an Johannes Klais Orgelbau, Bonn
- ↑ Änderung der Disposition gem. E-Mail von Kirchenmusiker Andreas Mölder am 5. Juli 2019
- ↑ Glockeninspektion Erzbistum Freiburg: Kath. Pfarrkirche St. Fridolin in Lörrach-Stetten
- ↑ Michael Bringmann, Sigrid von Blanckenhagen, Konrad Weissenhorn: Die Mosbrugger: die Konstanzer Maler Wendelin, Friedrich, Joseph Mosbrugger, 1974, ISBN 3-87437-100-X, Seiten 63, 108
Koordinaten: 47° 36′ 6,7″ N, 7° 39′ 54″ O
