Santi Quattro Coronati
| Santi Quattro Coronati al Laterano[1]
| |
|---|---|
| Patrozinium: | Die Heiligen Vier Gekrönten |
| Weihetag: | 4. Jahrhundert |
| Rang: | Basilica minor |
| Orden: | Augustinerinnen |
| Kardinalpriester: | Roger Michael Mahony |
| Pfarrgemeinde: | San Giovanni in Laterano |
| Anschrift: | Via dei SS. Quattro, 20 00184 Roma |

Die Basilika Santi Quattro Coronati (lateinisch Sanctorum Quattuor Coronatorum, deutsch Basilika der Vier Gekrönten), vollständig Santi Quattro Coronati al Laterano, gehört zu einem Gebäudekomplex mit einem Kloster, der bis ins 4. Jahrhundert zurückgeht. Sie steht auf dem Hügel Celio (lat. Caelius) zwischen dem Kolosseum und dem Lateran. Obwohl die Kirche heute wenig beachtet in einer Seitenstraße liegt, spielte sie doch eine bedeutende Rolle in der Geschichte Roms.
Die Kirche gehört zu einem im selben Kirchen- und Klosterensemble beheimateten und in Klausur lebenden Schwesternkonvent von kontemplativen Augustinerinnen.
Vorgeschichte
In der Antike, zu Beginn der Geschichte Roms, war der Caelius ein grüner Hügel mit Heiligtümern in Hainen und an Quellen. Daran erinnern der ursprüngliche Name Mons Querquetulanus („Eichenhügel“)[2] und die Porta Querquetulana in der Servianischen Mauer, durch die die Via Tusculana die Stadt in Richtung der Albaner Berge verließ. Der Bergsporn, auf dem die heutige Kirche steht, war der Caeliolus („kleiner Caelius“) oberhalb der Senke Caput Africae, heute um die Via Capo d’Africa. Auf diesem Caeliolus befand sich ein uraltes Heiligtum der Diana, das schon Cicero erwähnte. Ob dies ein unmittelbarer Vorgängerbau der Kirche ist, ist nicht gesichert. Schon in vorchristlicher Zeit entwickelte sich der Caelius zu einem dichtbebauten innerstädtischen Wohnviertel.
Für das 4. Jahrhundert ist durch Mauerreste unter der Apsis ein erster Kirchenbau bezeugt. Wahrscheinlich ist dieser mit dem Titulus Aemilianae identisch, der 499 erstmals erwähnt wurde.[3]
Heiligenlegende
Die Geschichte der namensgebenden Heiligen ist sehr kompliziert, denn eigentlich handelt es sich um 13 Personen in drei Gruppen, deren Geschichten mit der Zeit zur Legende der Vier Gekrönten, der Quatuor coronati, verschmolzen.
Die ersten vier waren Soldaten aus der Ehrengarde Diokletians, der Cornicularii, die nicht dem Äskulap opfern wollten und daher 311 bei den Trajansthermen, auf dem gegenüberliegenden Hügel, hingerichtet wurden. Ihre Körper wurden darauf in die Kirche Santi Quattro Coronati überführt.
Etwa zur gleichen Zeit erlitten in Albano vier Personen mit den Namen Severus, Victorinus, Carpophorus und Severianus das Martyrium. Sie wurden auf dem dortigen Friedhof beigesetzt. Ab dem 7. Jahrhundert übertrug man ihre Namen, vielleicht auf Grund einer Verwechslung, auf die anonymen Soldaten in Rom.
Die dritte Gruppe bestand aus vier pannonischen Steinmetzen, Claudius, Nicostratos, Castorius und Sempronianus. Sie sollen sich geweigert haben, eine von Diokletian befohlene Äskulapstatue herzustellen, und wurden daraufhin um 304 bei Sirmium in der Save ertränkt.[4] Nach einer anderen Fassung der Legende gehörte auch Simplicius dazu, der aber verschont wurde und die Körper seiner Gefährten bergen konnte. Ihre Reliquien wurden nach Rom gebracht und zusammen mit den vier anonymen Soldaten unter Papst Leo IV. in der Krypta von SS. Quattro Coronati bestattet. Ob und welche dieser Gruppen mit Eisenkronen gemartert wurden, deren Zacken ihnen in den Schädel getrieben wurden, ist Spekulation.
Baugeschichte

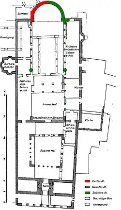
Der Titulus Aemilianae war vermutlich ursprünglich eine Hauskirche, die auf dem Celio in einem Raum eines Privathauses eingerichtet war, das wahrscheinlich einer sonst unbekannten Stifterin Aemilia gehörte. Möglicherweise wurde ein erster Kirchenbau von Papst Melchiades (311–314) initiiert, der aus einem Versammlungsraum, einer Aula, bestand, die in etwa dem heutigen Mittelschiff entsprach. Vermutlich war diese Aula aber identisch mit der Hauskirche, die bereits bestand. Aus den römischen Synodalakten von 499 ist zu entnehmen, dass die vier Märtyrer seit dem frühen 5. Jahrhundert im Titulus Aemilianae verehrt worden sind. Seit der römischen Synode von 595 lautete die Bezeichnung für diese frühchristliche Kirche Titulus sanctorum quattuor Coronatorum. Unter Papst Honorius I. (625–638) wurde die Kirche den „Vier Gekrönten“ geweiht. Papst Leo IV. (847–855) veranlasste den Neubau einer großen dreischiffigen Säulenbasilika mit Vorbau und Atrium.[5] Dabei entstand eine Krypta zur Aufnahme der Reliquien der Heiligen. Leo selbst hatte vor seiner Papstwahl seinen Wohnsitz als Titularkardinal bei der Kirche.[6] Dies kann als Keimzelle des Klosters gelten.
Als 1084 Robert Guiscard Rom eroberte, um Papst Gregor VII. gegen den Willen der Römer und des Kaisers wieder in sein Amt einzusetzen, brannte er das Stadtviertel auf dem Celio nieder, um ein freies Schussfeld vor dem Lateran zu haben. Dabei wurden auch San Clemente und SS. Quattro Coronati zerstört. Der Celio war nun entvölkert und bis ins 19. Jh. ein ländliches Gebiet mit Weingärten, Wiesen und Landgütern. Die Kirche hatte keine Gemeinde mehr.
Papst Paschalis II. (1099–1118) ließ die zwei Kirchen jedoch neu erbauen. SS. Quattro Coronati wurde dabei allerdings im Umfang stark verkleinert. Das Schiff wurde verkürzt und dafür der erste Innenhof errichtet. Die Seitenschiffe wurden aufgegeben, dafür das Mittelschiff mit zwei Seitenemporen gegliedert. So entstand eine EmporenHalle mit einer großen Chorapsis, die alle drei Schiffe abschließt (Pläne auf der Homepage des Klosters, Link siehe unten). Aufgewertet wurde die Kirche jedoch dadurch, dass sie Paschalis zur Papstresidenz erklärte. Bis zur Fertigstellung der Renovierung des Papstpalastes im Lateran bezog er Quartier in den späteren Klostergebäuden.
1138 wurde die Betreuung der Kirche an die Benediktiner von Sassovivo übergeben, die mit dem Ausbau des Klosters und des Kreuzgangs begannen. Der Gebäudekomplex wurde als Festung ausgebaut und diente zeitweilig als Papstresidenz oder als Residenz für gekrönte Häupter, die in Rom weilten, wie Karl von Anjou.
1246 ließ Papst Innozenz IV. die Kapelle des Heiligen Silvester in das Kloster einbauen. In eindrucksvollen Fresken wird die Legende der Konstantinischen Schenkung dargestellt. Silvester soll Kaiser Konstantin vom Aussatz geheilt haben und dafür die Stadt Rom geschenkt bekommen haben. – Eine Legende des ausgehenden 8. Jahrhunderts, deren faktische Grundlage das gesamte Hochmittelalter hindurch nicht mehr angezweifelt wurde. Innozenz, der sich im Konflikt mit dem 1239 erneut gebannten Kaiser Friedrich II. befand, wollte mit dem Freskenzyklus die Überordnung des Papsttums über den Kaiser betonen. Deutlich wird dies vor allem in der Darstellung des Stratordienstes (Zügelhalten) des Kaisers für den Papst. Möglicherweise war ein Treffen von Innozenz und Friedrich in SS. Quattro Coronati geplant. Die Bilder hätten dann als direktes kirchenpolitisches Programm gedient. Friedrich hat die Fresken allerdings nie gesehen.
Während des Avignonesischen Exils der Päpste (1309–1377) verlor die Kirche ihre Bedeutung und zerfiel zusehends. 1564 wurde das Kloster den Augustinerinnen übergeben, die mit der Versorgung der Waisenmädchen betraut waren. Von 1607 bis 1627 wurden Kirche und Kloster grundlegend renoviert und dabei die romanischen Malereien in der Apsis mit Fresken von Giovanni da San Giovanni übermalt, die das Martyrium der Vier Gekrönten darstellen.
Rundgang
Außen
Einen eindrucksvollen Blick auf die Apsis und die Westfassade der Kirche hat man, wenn man sich ihr, vom Kolosseum kommenden, über die Via Capo d'Africa nähert. Von hier sieht das Bauwerk eher wie eine Burg als wie eine Kirche aus. An der Apsis sind am Mauerwerk noch gut die Bauphasen des 4., 9. und 12. Jh. ablesbar. Entlang des Refektoriums steigt man zum Eingang hinauf. Über der schlichten, verputzten Ostfassade erhebt sich der wuchtige Glockenturm. Die Vierbogenfenster wurden 1912 rekonstruiert, nachdem sie durch den Einbau einer Uhr im 17. Jh. teilweise zerstört wurden.
-
Eingang zur Kirche
-
Eingangsfassade
-
Blick auf die Apsis
-
Säulen aus dem Vorgängerbau
Erster Hof
Der erste Vorhof stellt wahrscheinlich das überbaute Atrium des Leo-Baus (9. Jahrhundert) dar. (vgl. San Clemente). Rechts führt eine Tür in die Silvester-Kapelle.
Zweiter Hof
Durch einen barocken Portikus (1632) erreicht man den zweiten Vorhof. Er entstand bei der Verkürzung der Kirche zum Paschalis-Bau im 11. Jh. Auf der rechten Seite ist noch der Rest einer Rundbogenarkade mit drei ionischen Säulen erhalten, die ursprünglich das Mittelschiff vom nördlichen Seitenschiff trennten. Den Eingang zur Kirche verziert ein barockes Fresko, das die Verehrung der Vier Heiligen durch Nonnen und Waisenmädchen zeigt.
Innenraum der Kirche

Der Innenraum ist das verkürzte, umgebaute Mittelschiff der Leo-Kirche. An den Außenwänden sind noch Reste der Säulenarkaden sichtbar, die einst die Seitenschiffe abteilten. Paschalis ließ im frühen 12. Jahrhundert Emporen einbauen, die wieder den Eindruck einer Dreischiffigkeit erzeugten. Der Fußboden stammt von den Cosmaten. An den Seiten sind Reste von Fresken des 14. Jahrhunderts freigelegt, die Anklänge an die Sieneser Schule zeigen.
Die Apsis entspricht dagegen in etwa der alten Apsis und ist damit eigentlich von der Proportion zu groß für die heutige Kirche. 1632 malte sie der Fiorentiner Giovanni Menozzi da San Giovanni mit der Heiligenlegende aus. Die oberen vier Bilder zeigen dabei das Martyrium der vier anonymen Soldaten. Die unteren sieben Szenen stellen die Legende der pannonischen Steinmetze dar. In der Wölbung sind die Heiligen im Paradies vereint. Die vier Märtyrer aus Albano bleiben unerwähnt.
Die Krypta unter dem Chor wurde ebenfalls von San Giovanni ausgemalt. In ihr sieht man vier, teilweise antike, Steinsarkophage.
Silvester-Kapelle

Am ersten Vorhof liegt die Kapelle des hl. Silvester. An den Wänden des rechteckigen Raumes mit seinem aufwändigen Kosmaten-Fußboden sind steinerne Sitzbänke entlanggeführt. Das Tonnengewölbe trägt eine einfache Verzierung mit Kreuzen und Balkensternen. Darunter umläuft ein Freskenzyklus den Raum. An der Rückwand das Jüngste Gericht mit Christus auf dem Thron, Maria, Johannes dem Täufer, die Apostel und mit zwei Engeln, von denen der eine die Posaune des Gerichtes bläst, der andere sorgfältig das Firmament einrollt. Durch zwei Öffnungen im Gewölbe konnten die Nonnen im Stock darüber akustisch dem Gottesdienst folgen.
Die Fresken an den Wänden der Kapelle wurden 1246 von byzantinischen Meistern ausgeführt. Dargestellt sind Szenen einer mittelalterlichen Legende, der Legenda Aurea, wonach Kaiser Konstantin, vom Aussatz befallen, Silvester I. gerufen habe, nachdem ihn im Traum die Heiligen Petrus und Paulus dazu aufgefordert hätten. Silvester habe ihn durch ein wundersames Bad (Taufe) geheilt und habe dafür zum Dank die Stadt Rom beziehungsweise Italien und den Okzident als Geschenk erhalten.[7]
1570 wurde die Kapelle von der Zunft der Steinmetzen erworben, die den Chor und die Apsis von Raffaellino da Reggio ausmalen ließen.
- Eingangswand
-
Kaiser Konstantin, von Aussatz befallen beruhigt die Mütter, die um Gnade für ihre Söhne bitten. -
Die Apostel Petrus und Paulus erscheinen dem Kaiser im Traum. -
Boten des Kaisers reiten zum Monte Soratte.
- Linke Wand
-
Die Boten steigen auf den Berg zu Silvester. -
Silvester kehrt nach Rom zurück und zeigt Konstantin die Bilder der Apostel. -
Konstantin wird von Silvester getauft. -
Konstantin, vom Aussatz geheilt, reicht Silvester das Phrygium (Vorgänger der Tiara) und gemeinsam mit den Römern auch die Stadt Rom (Konstantinische Schenkung). -
Der Kaiser leistet den Stratordienst und führt Papst Silvester auf einem Schimmel nach Rom.
- Rechte Wand
-
Silvester erweckt den vom jüdischen Priester getöteten Stier zum Leben. -
Die heilige Helena findet in Jerusalem das wahre Kreuz Christi.
Aula Gotica
Im ersten Stock über der Kapelle befindet sich ein als Aula Gotica bekannt gewordener Saal, dessen Fresken 1997 wiederentdeckt und bis 2006 restauriert worden sind. Der repräsentative Saal im gotischen Stil hat einen Grundriss von 17,3 × 9,2 m, die beiden kreuzgewölbten Joche sind 11,5 m hoch und gliedern den Raum in zwei Teile.
Der untere Zyklus der Fresken im südlichen Teil des Saales schildert den Ablauf des Jahres in zwölf Monatsbildern gegen den Uhrzeigersinn. Die Darstellungen der sieben freien Künste darüber sind nur teilweise erhalten (Grammatik, Geometrie, Musik und Astronomie). Die Fresken der Gewölbe sind weitgehend zerstört, die Wände des nördlichen Teil des Saales zeigen Verkörperungen der Laster und Tugenden sowie antike Elemente wie eine Darstellung des Mithraskults.
Kreuzgang

Im linken Seitenschiff ist der Zugang zum Kreuzgang, der Anfang des 13. Jahrhunderts von Pietro de'Maria geschaffen wurde. Die Arkaden ruhen auf schlichten Doppelsäulen mit Lotuskapitellen. Der Brunnen in der Mitte stand einst im Atrium des Leo-Baus. Darum herum stehen Orangenbäumchen. Der Kreuzgang ist einer der intimsten und friedvollsten Orte in Rom und lässt die Hektik der Großstadt sofort vergessen.
Vom Kreuzgang aus gelangt man zur Barbarakapelle. Sie ist einer der wenigen Reste des ursprünglichen Baus. Einige Fresken aus dem 9. und 13. Jahrhundert haben die Zeit überdauert. Einige Gebälkstücke des 9. Jahrhunderts sind als Konsolen des Gewölbes verbaut.
Kardinalpriester
Literatur
- Heinz-Joachim Fischer: Rom. Zweieinhalb Jahrtausende Geschichte, Kunst und Kultur der Ewigen Stadt. DuMont Buchverlag, Köln 2001, ISBN 3-7701-5607-2, S. 236–237.
- Frank Kolb: Rom, die Geschichte der Stadt in der Antike. C.H. Beck, München 1995, ISBN 3-406-39666-6.
- Maria Giulia Barberini: Santi Quattro Coronati in Rom. Fratelli Palombi Editori, Roma 1997, ISBN 88-7621-379-1.
- Thomas Noll: Die Silvester-Kapelle in SS. Quattro Coronati in Rom. Ein Bildzyklus im Kampf zwischen Kaiser und Papst. Deutscher Kunstverlag, München 2011, ISBN 978-3-422-07064-6. (Abstract)
- Claudio Redina: Le Chiese di Roma. Newton & Compton, 2004, ISBN 88-541-0205-9, S. 320 ff.
- Reclams Kunstführer Italien – Rom und Latium. Philipp Reclam, 1962, S. 260.
- Guida d’Italia – Roma. Touring Club Italiano 2006, ISBN 88-365-4134-8.
- Werner Goez: Ein Konstantin- und Silvesterzyklus in Rom. In: Helmut Altrichter (Hrsg.): Bilder erzählen Geschichte. Freiburg i. Br. 1995 (= Rombach Wissenschaft, Reihe Historiae. 6). ISBN 3-7930-9121-X, S. 133–145.
- Lia Barelli: Il complesso monumentale dei Ss. Quattro Coronati a Roma. Viella 2009, ISBN 978-88-8334-425-1, S. 96.
- Andreina Draghi: Gli affreschi dell’Aula gotica nel Monastero dei Santi Quattro Coronati. Una storia ritrovata. Skira, Mailand 2006, ISBN 88-7624-936-2.
Weblinks
- offizielle Homepage (englisch, italienisch)
- Seite bei der Diözese Rom (italienisch)
- Seite bei der Touristeninformation Rom (italienisch)
Einzelnachweise
- ↑ Diözese Rom
- ↑ Tacitus: Annalen 4, 65.
- ↑ Liber Pontificalis, herausgegeben, übersetzt und kommentiert von Louis Duchesne, Band 2. Ernest Thorin, Paris 1892, S. 43 und 77.
- ↑ Hans Georg Wehrens: ROM – die christlichen Sakralbauten vom 4. bis zum 9. Jahrhundert, Herder, Freiburg, 2. Auflage, 2017, S. 236f.
- ↑ Hans Georg Wehrens: ROM – die christlichen Sakralbauten vom 4. bis zum 9. Jahrhundert, Herder, Freiburg, 2. Auflage, 2017, S. 237.
- ↑ Liber Pontificalis
- ↑ Claudio Rendina: Le chiese di Roma. 2004, S. 320.
Koordinaten: 41° 53′ 17,5″ N, 12° 29′ 54,3″ O
