SKGLB TCa 51
| SKGLB TCa 51 | |
|---|---|
| Nummerierung: | SKGLB TCa 51 ab 1932: TCa 672 |
| Anzahl: | 1 |
| Hersteller: | Grazer Waggonfabrik Werkstatt der SKGLB Itzling |
| Baujahr(e): | Umbau 1927 |
| Ausmusterung: | 1957 |
| Achsformel: | Bo' Bo' |
| Spurweite: | 760 mm (Bosnische Spur) |
| Länge über Puffer: | 10.600 mm |
| Länge: | 9.800 mm |
| Höhe: | 3.400 mm |
| Breite: | 2.440 mm |
| Drehzapfenabstand: | 7.450 mm |
| Drehgestellachsstand: | 1.350 mm |
| Gesamtradstand: | 8.800 mm |
| Dienstmasse: | 14.000 kg |
| Reibungsmasse: | 14.000 kg |
| Radsatzfahrmasse: | 3.500 kg |
| Höchstgeschwindigkeit: | 35 km/h |
| Installierte Leistung: | urspr. 45 PS |
| Raddurchmesser: | 530 mm |
| Motorbauart: | urspr. Vierzylinder-Viertakt-Dieselmotor später mehrere Umbauten |
| Nenndrehzahl: | urspr. 1.100/min |
| Leistungsübertragung: | elektrisch System GEBUS |
| Bremse: | Hardy-Bremse 2 Spindelhandbremsen auf je ein Drehgestell |
| Sitzplätze: | 28 |
| Klassen: | 3. |
Der TCa 51 der Salzkammergut-Lokalbahn (SKGLB), später als TCa 672 bezeichnet, war ein vierachsiger dieselelektrischer Triebwagen in Bosnischer Spurweite.
Das Fahrzeug entstand durch Umbau eines ehemaligen Salonwagens, dem eine Antriebsanlage nach dem System GEBUS eingebaut wurde. Der Wagen wurde im Lauf seines Einsatzes mehrfach umgebaut und stand bis zum Ende der Salzkammergut-Lokalbahn im Einsatz. Danach wurde er an die Steiermärkische Landesbahnen als Personenwagen verkauft und wird als Barwagen bei der Murtalbahn verwendet.[1]
Geschichte

Der Spenderwagen hatte eine wechselvolle Geschichte hinter sich: ursprünglich 1894 von der Grazer Waggonfabrik als Hofsalonwagen S51 für Kaiser Franz Joseph I. gebaut, war er der erste vierachsige Wagen der Gesellschaft. Die Fahrwerksanordnung mit an den Drehgestell-Fronten angeschlagenen Drehzapfen und mittig gelegenem Rollenkranz bewährte sich jedoch nicht, so dass das Fahrzeug zum Entgleisen neigte. 1906 wurde er daher durch einen moderneren (zweiachsigen) Salonwagen ersetzt und in einen normalen Wagen der 1./3. Klasse mit der Nummer AC51 umgebaut. 1916 die erste in die zweite Klasse abgeändert und er fuhr fortan als BCa 51. Er war die meiste Zeit auf der Stichstrecke St.Lorenz–Mondsee eingesetzt.[1]
Die Salzkammergut-Lokalbahn sah sich in den 1920er Jahren gezwungen, ihren Betrieb auf Grund des höheren Verkehrsaufkommens ökonomisch anzupassen, besonders auf der Zweigstrecke St. Lorenz–Mondsee. Daher wurde beschlossen, den überzähligen Vierachser mit Unterstützung der Salzburger Firma GEBUS in einen Triebwagen umzubauen.
Nach dem Umbau in einen dieselelektrischen Triebwagen in der Hauptwerkstätte der SKGLB in Itzling wurde der Wagen am 2. März 1928 erprobt und für den regulären Verkehr freigegeben.[1] Zunächst wurde er im Bäderverkehr von Bad Ischl nach Strobl eingesetzt, wo er bei den Fahrgästen großen Anklang fand.[1] Haupteinsatzgebiet war jedoch von Beginn an die Zweigstrecke St. Lorenz–Mondsee.
Die Maschinenanlage zeigte sich bald den Anforderungen nicht gewachsen, und so wurde der Triebwagen bis zum Ausbruch des Zweiten Weltkrieges mehrfach in der Hauptwerkstatt der SKGLB umgebaut.[2] 1932 erhielt er seine bis zum Ende des Betriebes gültige Bezeichnung TCa 672. Mangels Treibstoff musste er 1942 abgestellt werden.[1]
Der Triebwagen überstand den Zweiten Weltkrieg unbeschadet. Nach einem erneuten Umbau der Antriebsanlage wurde er 1949 wieder auf seiner Stammstrecke in Betrieb genommen. Zusätzlich wurde er nun für den Schülerverkehr von Mondsee nach Sankt Gilgen benutzt, wobei er an einen planmäßigen Zug angehängt wurde und auf dem Rückweg solo verkehrte. Er konnte in der Ebene bis zu drei zweiachsige Beiwagen mitführen.
Auf Grund seines eher behäbig wirkenden Aussehens und des tiefen Brummtones seines Signalhorns erhielt der Triebwagen der Spitzname Mondseer Kuh.[2] Bei einem Unfall an einem Bahnübergang kollidierte der Triebwagen mit einem Lastkraftwagen und wurde dabei erheblich beschädigt.[3]
Nach der Betriebseinstellung der SKGLB wurde er (nach Ausbau der Maschinenanlage) an die Steiermärkische Landesbahnen verkauft. Ein Einsatz kam hier jedoch nicht zustande. Nach einer längeren Abstellphase konnte er 1970 bei der Murtalbahn nach einem Umbau als Barwagen wieder in Betrieb genommen werden.[1] So steht das Fahrzeug bis heute im Einsatz.[4][5]
Technische Merkmale

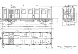
Beim Umbau des Salonwagens zum Triebwagen wurde der alte Wagenkasten verschrottet und durch einen neu gefertigten, 9,80 m langen Kasten mit geschlossenen Plattformen ersetzt. Der Maschinenraum hatte eine Länge von 3.455 mm. Darin war neben der Maschinenanlage der vordere Führerstand und der Gepäckraum untergebracht. Auf der anderen Fahrzeugseite befand sich im Bereich der Plattform der 785 mm breite Führerstand mit Einstiegsraum. Dazwischen lag das 5,36 m lange Fahrgastabteil mit 28 Sitzplätzen in Lattenbauweise sowie eine Toilette.
Das Kastengerippe war aus Holz mit Winkeleisenrippen hergestellt und außen mit Blech verkleidet. Am Untergestell war die Zug- und Stoßeinrichtung in einer Höhe von 570 mm über Schienenoberkante befestigt. Das Laufwerk bestand aus den zwei weiterverwendeten Drehgestellen mit Rädern von 530 mm Laufkreisdurchmesser, die Achsen waren in Stahlgussbüchsen mit Bronzelagern gelagert. Auf jeder Drehgestellseite befand sich eine Blattfeder mit elf Lagen als primäre Federung. Ferner war je eine Blattfeder je Drehgestellseite die Abstützung des Wagenkastens gegen seitliche Schwankungen vorhanden.[6]
Die Maschinenanlage bestand (ursprünglich) aus einem Vierzylinder-Viertakt-Dieselmotor von MAN mit einer Leistung von 45 PS und einem mit ihm verbundenen Gleichstrom-Nebenschlussgenerator von ELIN, der quer zur Fahrtrichtung im Maschinenraum eingebaut war. Als Antriebsmotoren wurden aufgrund der beengten Dimensionen der weitergenutzten Drehgestelle vier kleine Gleichstromnebenschlussmotore mit einer Leistung von je 8 kW und Eigenlüftung verwendet, die quer zur Achse saßen und diese über Schneckengetriebe antrieben. Auf Grund der gedrungenen Bauweise des Fahrzeuges betrug der Abstand der Motorachse zur Radachse lediglich 130 mm.[6]
Da Dieseleinspritzpumpen noch nicht ausgereift waren, war der Dieseltank an der Unterseite des Wagenkastens befestigt. Der Triebwagenführer musste den Treibstoff mit einer Handpumpe in einen Behälter mit Schauglas über dem Motor pumpen, von wo der Kraftstoff durch Schwerkraft zum Motor floss.[1] Diese nicht bahnfeste Konstruktion wurde bald wieder beseitigt und der Triebwagen erhielt einen Benzinmotor.
Diese Variante hielt ebenso nur einige Jahre, 1933 wurde der Triebwagen zur Kraftstoffeinsparung zum Betrieb mit Holzgas umgerüstet. Der Holzvergaserkessel wurde auf der eigens angebauten vorderen Plattform aufgesetzt.[7] Allerdings arbeitete dieser ebenso nicht zufriedenstellend. So wurde der Triebwagen in den späten 1930er Jahren erneut mit einem Dieselmotor ausgerüstet. Die frei gewordene Plattform wurde mit einer Holzwand versehen und nun als Fahrradständer verwendet.[1] 1949 wurde ein weiteres Mal der Motor getauscht. Der Triebwagen erhielt als fünften und letzten Motor einen auf 45 PS gedrosselten Dieselmotor Typ WD 413 von Steyr-Daimler-Puch.[1]
Auf dem Führerstand besaß der Wagen den Brennstoffhebel, das Führerbremsventil der Vakuumbremse und die Spindel für die Handbremse. Ferner waren noch Hebel für das Signalhorn und die Sandstreueinrichtung sowie Instrumente wie Geschwindigkeitsmesser, Strom- und Spannungsmesser vorhanden. Ein Drehzahlmesser für den Dieselmotor befand sich im Maschinenraum. Die Abgase des Motors wurden durch ein Rohr und mit einem längs angeordneten Auspuffstopf über das Dach in das Freie geführt.[6]
Siehe auch
Literatur
- Ing. Otto Judtmann, Wien: Motortriebwagen mit elektrischer Kraftübertragung nach dem System GEBUS, Verkehrstechnik, Jahrgang 1928
- Josef Otto Slezak, Wien: Von Salzburg nach Bad Ischl, Verlag Otto Slezak, Wien 1959
- Werner Schleritzko: Mythos Ischlerbahn, Band 3, Verlag Railway-Media-Group, Wien 2016, ISBN 978-3-902894-23-6
Weblinks
Einzelnachweise
- ↑ a b c d e f g h i Internetseite über den Triebwagen TCa 51 auf www.schmalspur-europa.at, Stand 2011
- ↑ a b Werner Schleritzko, Horn: Mythos Ischlerbahn Band 1, 2014, Railway-Media-Group, ISBN 978-3-902894-21-2, Seite 99
- ↑ Werner Schleritzko, Horn: Mythos Ischlerbahn Band 2, 2016, Railway-Media-Group, ISBN 978-3-902894-21-2, Seite 103
- ↑ Dampfzugfahrten Murtalbahn. In: stlb.at. Abgerufen am 27. März 2019.
- ↑ Foto der Murtalbar auf schmalspur.bahnen.at
- ↑ a b c Ing. Otto Judtmann, Wien: Motortriebwagen mit elektrischer Kraftübertragung nach dem System GEBUS in Verkehrstechnik Jahrgang 1928, Seite 475
- ↑ Foto des TCa 672 mit Holzvergaser