Radjedef-Pyramide
| Radjedef-Pyramide | |||||||||||||||
|---|---|---|---|---|---|---|---|---|---|---|---|---|---|---|---|
![]() | |||||||||||||||
| Ägyptischer Name | |||||||||||||||
Sḥdw Rˁ ḏd=f (ḏd=f Rˁ) Sternenzelt des Radjedef[1] (mit Determinativ für Pyramide) | |||||||||||||||
| Daten | |||||||||||||||
| Ort | Abu Roasch | ||||||||||||||
| Erbauer | Radjedef | ||||||||||||||
| Bauzeit | 4. Dynastie (≈2580 bis ≈2570 v. Chr.[2]) | ||||||||||||||
| Typ | Pyramide | ||||||||||||||
| Baumaterial | Kalkstein mit teilweiser Granitverkleidung | ||||||||||||||
| Basismaß | 106 m | ||||||||||||||
| Höhe (ursprünglich) | 67 m | ||||||||||||||
| Höhe (heute) | 11,4 m | ||||||||||||||
| Volumen | 131.043 m³ | ||||||||||||||
| Neigung | 52° | ||||||||||||||
| Kultpyramide | ja (?)[A 1] | ||||||||||||||
| Königinnenpyramiden | 1 (oder 2 ?)[A 1] | ||||||||||||||
Die Radjedef-Pyramide (auch als Djedefre-Pyramide bekannt) ist die Ruine einer altägyptischen Pyramide, deren Bau in der 4. Dynastie um 2580 bis 2570 v. Chr.[2] für König (Pharao) Radjedef (Djedefre), Sohn und Nachfolger des Königs Cheops, begonnen, aber vermutlich nicht vollendet und später exzessiv ihrer Steine beraubt wurde. Sie befindet sich beim heutigen Ort Abu Roasch und ist nach der nicht mehr vorhandenen Pyramide von Athribis und der benachbarten Lepsius-I-Pyramide die drittnördlichste bekannte Pyramide Ägyptens.
In populärwissenschaftlichen Darstellungen wird die Radjedef-Pyramide oft fälschlich als „vierte Pyramide von Gizeh“ bezeichnet, obwohl sie etwa 8 km von der Nekropole von Gizeh entfernt liegt.[3]
Erforschung
Die Forschungsgeschichte erstreckt sich über weit mehr als 150 Jahre. Zum ersten Mal erforscht wurde die erste Hauptpyramide um 1840 von John Shae Perring; er konzentrierte sich mit seiner Arbeit auf ihre Substruktur. Karl Richard Lepsius katalogisierte die Pyramide und eine mögliche Königinnenpyramide in seiner Pyramidenliste unter den Nummern Lepsius II und III. In den 1880er Jahren untersuchte Flinders Petrie das Bauwerk. Eine systematische Untersuchung des Komplexes fand jedoch erst zu Beginn des 20. Jahrhunderts statt, als 1901 Émile Gaston Chassinat mit weiteren Forschungen begann. In den 1920er Jahren folgten Pierre Montet und Fernand Bisson de la Roque. Weitere Forschungen wurden erst wieder in den 1960er Jahren von Vito Maragioglio und Celeste Rinaldi unternommen. Ein französisch-schweizerisches Team der Expedition des Institut Francais d’Archéologie Orientale, unter Leitung von Michel Valloggia, begann ab 1995 mit der bislang genauesten Ausgrabung des Komplexes.[4]
Bauumstände

Der Pyramidenkomplex wurde von König Radjedef (auch unter der Schreibweise Djedefre bekannt), dem Sohn des Cheops, während seiner vermutlich nur achtjährigen Herrschaft[2] erbaut. Die Länge der Regierungszeit ist allerdings umstritten und kann nach anderen Theorien bis zu 25 Jahre betragen haben.[5]
Radjedef führte die Bestattung seines Vaters in der Cheops-Pyramide in Gizeh durch, was durch Inschriften in den dortigen Schiffsgruben belegt ist. Für sein eigenes Grabmal wählte er einen etwa 8 km weiter nordwestlich gelegenen Ort bei der heutigen Ortschaft Abu Roasch.[6] Die Pyramide war deutlich kleiner als die Bauten seiner beiden Vorgänger, wobei die Gründe für die Größenreduktion ungeklärt sind. Das Grabmal steht auf einer Anhöhe, die das Gizeh-Plateau um etwa 80 m[7] überragt, was trotz der kleineren Pyramide eine prominente und weithin sichtbare Platzierung des Bauwerks ermöglichte, die in der Gesamthöhe somit mit der Cheops-Pyramide vergleichbar war. Für den Ortswechsel könnten theologische Gründe im Rahmen des zunehmenden Sonnenkults verantwortlich sein. Radjedef war der erste König, der den Titel Sohn des Re (Sa Ra) führte. Früher angenommene Streitigkeiten mit seinen Geschwistern um die Thronfolge hat es neueren Forschungen zufolge nicht gegeben.[4][8][9] Die neue Ortswahl bedingte einen sehr langen Aufweg zum Pyramidenbezirk, dessen Länge auf ca. 1700 m geschätzt wird.
Der Steinbruch für das Material des Pyramidenkerns befand sich etwa 2 km östlich, in der Nähe der Lepsius-I-Pyramide und eines Mastaba-Friedhofs. Die Dicke der Schichten des dort vorkommenden Kalksteins stimmen mit den Steingrößen der Pyramide überein.[10]
Grad der Fertigstellung
Ob die Radjedef-Pyramide wirklich fertiggestellt und später bis zum heutigen Zustand abgetragen wurde, ist nach wie vor Gegenstand der wissenschaftlichen Kontroverse. Als Tatsache kann festgestellt werden, dass der Komplex so weit fertiggestellt wurde, dass ein funktionierender Totenkult möglich war, da Priester des Radjedef-Kults bis in die 6. Dynastie nachgewiesen sind.[11] Die eigenartige Integration von Werkstattgebäuden in den Totentempel spricht dafür, dass die Fertigstellung der Tempelanlagen überstürzt vonstattengegangen sein muss, da keine neuen Gebäude errichtet, sondern die bestehende Bausubstanz umfunktioniert wurde.[12]
Abtragung durch Steinraub
Die Radjedef-Pyramide ist als einzige der großen Pyramiden der 4. Dynastie fast vollständig von Steinräubern abgetragen worden, während die meisten anderen Bauwerke dieser Epoche einen ausnehmend gut erhaltenen Kernbereich besitzen. Der Steinraub begann vermutlich bereits in der Ramessidenzeit und setzte sich durch das Mittelalter hinweg bis ins 19. Jahrhundert fort. Der Höhepunkt der Zerstörung lag aber in römischer Zeit. Petrie berichtete, dass selbst in den 1880er Jahren immer noch Steinmaterial in der Menge von etwa 300 Kamelladungen pro Tag abtransportiert wurde. Nicht nur das Kernmauerwerk, sondern auch fast der gesamte Unterbau der Pyramide wurden so zerstört. Begünstigt wurde dies zum einen durch die abgeschiedene Lage des Bauwerks und zum anderen dadurch, dass die Pyramide eine große Menge des wertvollen Rosengranits enthielt.[4]
Die Pyramide
Die ursprüngliche Basislänge betrug etwa 106,2 m (etwa 200 Königsellen), wovon heute noch 97 m erhalten sind. Bei einem vermuteten Neigungswinkel von 52° hätte die Pyramide eine Höhe von 67 m und ein Gesamtvolumen von 131.043 m³ erreicht.[8] Die Ausrichtung der Pyramide weicht nur um etwa 0,8° von den exakten Himmelsrichtungen ab.[10] Sie war über einem kleinen Hügel errichtet worden, der etwa 44 % des Gesamtvolumens der Pyramide ausmachte und so zu einer deutlichen Arbeits- und Materialersparnis führte und möglicherweise zudem als Symbol des Urhügels der altägyptischen Schöpfungsmythologie diente.[13] Durch den freiliegenden Schacht der Substruktur ist dieser Hügel gut erkennbar. Fertiggestellt entsprach das Bauwerk in der Größe etwa der Mykerinos-Pyramide in Gizeh.
Das Kernmauerwerk bestand aus in horizontalen Schichten verlegten Kalksteinblöcken. Diese waren von unterschiedlicher Größe und teilweise unregelmäßiger Form, wobei dadurch entstandene Lücken teilweise mit Gipsmörtel verfüllt wurden. Aufgrund der starken Zerstörung ist heute nicht mehr ersichtlich, ob der Pyramidenkern eine Stufenstruktur, wie sie z. B. bei der Mykerinos-Pyramide nachgewiesen ist, besaß.

Die Verkleidung der Pyramide bestand im unteren Bereich erstmals aus Rosengranit, der dazu aus Assuan heran transportiert werden musste. Der obere Bereich sollte vermutlich mit der üblichen Verkleidung aus feinem Tura-Kalkstein versehen werden, jedoch fehlt dafür der Fundbeleg. Bei Ausgrabungen im Bereich der Pyramide fanden sich nur Granit-Verkleidungssteine, die einen Außenwinkel von 60° bis 64° aufwiesen, woraus ursprünglich gefolgert wurde, dass es sich hier um eine überdurchschnittlich steile Pyramide handelte. Allerdings ergaben Grabungen an der Pyramidenbasis ein um 12° nach innen geneigtes Fundament der Verkleidung. Diese Technik diente zur Verbesserung des Halts der Verkleidung und wurde bereits zuvor an den Königinnenpyramiden der Cheops-Pyramide angewandt. Durch die geneigte Anbringung der Verkleidungssteine, nicht aber des Kernmauerwerks, verringerte sich der Neigungswinkel der Pyramide auf 48° bis 52°. Heute geht man von einem Seitenwinkel von 52° aus, was dem Neigungswinkel der Cheops-Pyramide entspricht.[14] Die Neigung des Fundaments wird an den Ecken der Pyramide geringer und geht schließlich in die Horizontale über. Dadurch wird eine komplizierte Formung der Ecksteine vermieden.[15]
Das Fehlen von Bruchstücken von Tura-Kalkstein-Verkleidungsblöcken in der Trümmerhalde lässt die Vermutung zu, dass der Bau der Pyramide nicht über den etwa 20 Steinlagen hohen, mit Rosengranit verkleideten Bereich hinausgekommen ist.
Der Name der Pyramide, „Sternenzelt des Radjedef“, wurde auf Inschriften gefunden.[4] Eine alternative Übersetzung lautet „Zum Firmament gehört Djedefre“.[16]
-
Ansicht der Pyramidenruine von Nordosten. Im Vordergrund Teile der Mauer des Werkstattgebäudes -
Ostseite der Pyramide mit einigen Überresten des Totentempels -
Das um 12° nach innen geneigte Fundament der Verkleidungssteine (links), das gegen die Ecke der Pyramide in die Waagerechte übergeht (Mitte).
Die Substruktur
Der Unterbau (Substruktur) der Radjedef-Pyramide markiert eine Abkehr von dem seit Snofru zu beobachtenden Trend, die Grabkammer immer höher in den Pyramidenkörper zu verlegen. Hier wurde erneut eine komplett unterirdische Anordnung der Grab- und Vorkammern verwirklicht, wobei der Bau in einem offenen Graben erfolgte und nach Fertigstellung aufgemauert wurde.[8]

A = Graben der Substruktur, später mit Kalkstein ausgemauert. Ausmauerung nicht mehr erhalten
B = Kammern der Substruktur, Rosengranit, nicht mehr erhalten
C = Gang, vermutlich mit Kalkstein ausgekleidet, nicht mehr erhalten, mündete in etwas höher gelegene Vorkammer
D = Kalksteinmauerwerk des Pyramidenkorpus, noch erhalten
E = Reste der Pyramidenverkleidung, Rosengranit
F = Oberfläche des Pyramidenaufbaus, nicht mehr erhalten
Die absteigende Passage war in einem Graben mit einer Länge von 44,25 m und einer Breite von 5,5 m am Boden angelegt worden. Das Gefälle beträgt 22° 35′. Der Boden ist immer noch mit feinem Tura-Kalkstein bedeckt, auf dem die Passage gebaut worden war.[17] Im Graben der absteigenden Passage fanden sich Granitfragmente, die Bauarbeiterinschriften des ersten Jahres der Viehzählung des Radjedef tragen. Ob die Passage aus Granitblöcken bestand, ist bislang noch nicht sicher belegt.[18]
Die anschließende horizontale Passage erstreckt sich über 5,4 m Länge. Direkt am Anschluss der absteigenden Passage befindet sich eine 3,1 m tiefe Grube, die vermutlich vor eindringendem Wasser schützen sollte. Auf der westlichen Seite des Endes des horizontalen Bereichs finden sich die Überreste eines Grabräubertunnels im Felsmaterial, was ein deutlicher Beleg dafür ist, dass die Kammern und die Passage ursprünglich fertig gebaut waren und erst später durch Steinräuber zerstört wurden.[19] Bearbeitungsspuren der Felswand lassen darauf schließen, dass am Ende der Passage der Bereich des Unterbaus begann, der aus Granit gefertigt war, da die Bearbeitung des umgebenden Kalksteinmaterials einfacher war als die der eingesetzten Granitblöcke. Der Grabräubertunnel bietet zudem den Hinweis auf eine granitene Fallsteinsperre, die über den Tunnel durch das weichere Umgebungsgestein umgangen wurde.
-
Blick durch den Zugangsgraben zur Grabkammergrube -
Blick aus der Grabkammergrube den Zugangsgraben hinauf -
Überreste eines Grabräubertunnels

A = Absteigende Passage
B = horizontale Passage
C = Vorkammer
D = Nische (oder Serdab?)
E = Grabkammer
F = Sarkophag
G = Kanopentruhe
Der zentrale Schacht, der die Kammern enthielt, misst 23 m × 10 m und hat eine Tiefe von 21 m.[20] Der Boden der Kammer war mit fünf Lagen feinen Kalksteins aufgemauert, um das Niveau der horizontalen Passage zu erreichen. Auf dem Kalksteinboden konnten nur geringe Reste der Kammern nachgewiesen werden.
Offenbar befand sich eine Vorkammer unter dem Mittelpunkt der Pyramide, von der nach Westen ein Durchgang zur Grabkammer führte. Die Vorkammer hatte wahrscheinlich an der Ostseite eine Nische oder eine Erweiterung zu einem Serdab.[21] Der Boden der Grabkammer weist Vertiefungen auf, die darauf hindeuten, dass hier ein Sarkophag und eine Kanopentruhe eingelassen waren, ähnlich wie auch in der Chephren-Pyramide.[21]
In der Grube fand sich das Fragment eines großen Granitbalkens, von dem eine Ende nicht mit einem Winkel von 90° zur Seitenfläche abschloss, sondern mit 135°. Daraus ist zu schließen, dass es sich hierbei um einen Teil des Giebeldachs der Grabkammer handelte. Auf diesem Fragment befindet sich zudem eine Inschrift, die auf Radjedef verweist.[19] Ebenso fand sich ein Kalksteinblock mit ähnlichen Inschriften.[18]
An den Mauern des Schachts finden sich Mörtelreste, die davon zeugen, dass der Schacht über der Grabkammer aufgemauert und der Unterbau der Pyramide somit vollendet war.[19]
-
Grube, die einst die Grabkammer enthielt -
Bereich der Grabkammer -
Blick von oben auf die Grube und den Zugang -
Nische auf der Ostseite der Grabkammergrube
Der Pyramidenkomplex
Der Pyramidenbezirk weist eine deutliche Nord-Südorientierung auf, wie sie von den Pyramidenkomplexen der 3. Dynastie, beispielsweise dem des Djoser bekannt ist. Die Pyramidenkomplexe des Snofru und des Cheops aus der 4. Dynastie waren hingegen eher quadratisch bzw. in ostwestlicher Richtung orientiert.
|
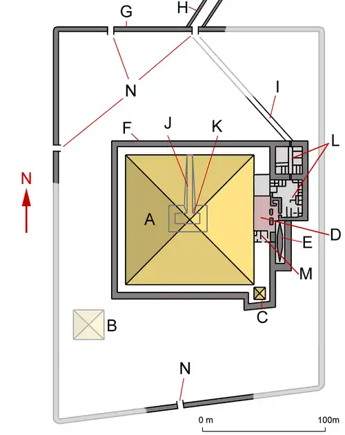
A = Pyramide B = Königinnenpyramide (?) C = Kult- oder Königinnenpyramide D = Totentempel E = Schiffsgrube F = Innere Einfriedungsmauer G = Äußere Einfriedungsmauer H = Aufweg I = Innerer Aufweg J = Zugang zur Grabkammer K = Grube der Grabkammer L = Werkstätten, später Kultbau M = Bäckerei / Brauerei, später Kultbau N = Tore Helle Bereiche: noch nicht freigelegte Teile des Komplexes |
Äußere Mauer

Die äußere Mauer umschließt den Komplex in einer deutlich nordsüdlich ausgerichteten Form. Die südliche Mauer schließt sich dabei nicht mit rechtem Winkeln und in exakt ostwestlicher Richtung an die anderen Mauern an, sondern verläuft in nordöstlicher Richtung, was durch die Topographie des Plateaus bedingt ist. Die Ecken des Komplexes waren abgerundet. In der Mauer befand sich eine Anzahl von monumentalen Toren, was ebenfalls eine Anlehnung an die Bauweise der 3. Dynastie darstellt.[13]
Im Bereich nördlich der Pyramide wurden bislang keine Bauten nachgewiesen, jedoch Überreste von Steinbrucharbeiten aus römischer Zeit. Einige Forscher vermuten, in diesem Bereich einen nördlichen Totentempel zu finden, da die nordsüdliche Ausrichtung des Komplexes eine Anlehnung an die Baupraxis der 3. Dynastie darstellt und in diesem Zeitraum der Totentempel im Norden der Pyramide angelegt wurde.[10]
Innere Mauer

Die innere Mauer, die die Pyramide und auch die Teile des Totentempels, die ursprünglich als Werkstattgebäude dienten, umgibt, besteht aus zwei Begrenzungsmauern aus Trockenmauerwerk, deren Zwischenraum mit losem Steinmaterial aufgefüllt war. Die Außenseiten waren jeweils noch mit einer zusätzlichen Mauerschicht verkleidet und mit Lehm verputzt. Im Bereich der Kultpyramide hat die Mauer eine Ausbuchtung nach Süden um die Kultpyramide ebenfalls zu umschließen.[10][22]
Totentempel

Direkt an die Ostwand der Pyramide angrenzend befand sich der eigentliche, aus Stein erbaute Totentempel, der auf seiner Ostseite an das Werkstattgebäude und die Schiffsgrube grenzte. Die geringen Ausmaße von etwa 13 m in ostwestlicher und 26 m (25 × 50 Königsellen) in nordsüdlicher Richtung deuten auf eine eilige Errichtung hin. Der Bereich ist mit einem Steinpflaster versehen, das als Fundament des eigentlichen Totentempels diente. Darauf wurden die Mauern des Tempels errichtet, wovon jedoch nur wenige einzelne Funde zeugen und keine Rekonstruktion der Anordnung der Räume mehr zulassen.[23]
Auf dem Fundament befand sich vermutlich das eigentliche Bodenpflaster, das allerdings nicht mehr erhalten ist. Es war aber mit großer Wahrscheinlichkeit verlegt worden, da ein Höhenunterschied zu einem der Zugänge besteht. Das Material des Pflasters ist mangels Funden nicht mehr feststellbar.[10]
In der Mitte der Pyramidenostseite befindet sich eine Einbuchtung, die nach Maragioglio und Rinaldi eine Nische mit Stelen beherbergte und mit dem Tempel davor durch einen Opfersaal verbunden war.[24] Neuere Untersuchungen zeigen jedoch, dass diese Einbuchtung zu hoch liegt, um eine Nische zu sein und durch eine Verdickung der granitenen Pyramidenverkleidung verursacht wurde.[15][25]
Werkstattgebäude

Auf der östlichen Seite der Pyramide befinden sich die Überreste von Ziegelgebäuden, die von einer sehr dicken Trockenmauer aus Feldsteinmauerwerk umgeben waren. Die innere Aufteilung der Räume ähnelt denen von Werkstattgebäuden in der Nähe der Chephren-Pyramide, was darauf hindeutet, dass diese Gebäude ursprünglich zur Unterstützung des Pyramidenbaus diente. Später scheinen sie unter Eile der Verwendung im Totenkult zugeführt worden zu sein, was dafür spricht, dass keine Zeit zur Errichtung spezieller Tempelbauten vorhanden war.
Direkt südlich des Steintempels befand sich ein kleineres Ziegelgebäude, dessen Ruine Hinweise auf Kornbehältnisse beinhaltet. Zudem fanden sich zahlreiche Bierkrüge und -schalen. Davon ausgehend scheint das Gebäude die Bäckerei und Brauerei zur Versorgung der Bauarbeiter beherbergt zu haben.[10]
Kult- oder Königinnenpyramide an der Südostecke

Bei Ausgrabungen im Bereich des inneren Hofs fand das schweizerisch-französische Team unter Michel Valloggia im April 2002 an der Südostecke der Pyramide, direkt südlich der Schiffsgrube, die Überreste einer kleinen Pyramide. Das Bauwerk hatte eine Basislänge von 10,5 m (20 Königsellen) und hat heute nur noch eine Höhe von etwa 2 m. Die kleine Pyramide befindet sich innerhalb der inneren Umfassungsmauer der Hauptpyramide, die mit einer Ausbuchtung um die Nebenpyramide herumgeführt wurde. Die Seitenneigung entspricht nach Zahi Hawass der der Hauptpyramide, während Valloggia von einem steilen Winkel von 60° ausgeht. Der Pyramidenkern besteht aus unregelmäßig geformten Kalksteinblöcken und ist in horizontalen Schichten gemauert. Die äußeren Schichten weisen regelmäßigere Blöcke auf, jedoch sind von der Verkleidung keine Blöcke erhalten.[26]
Der Zugang zum Unterbau beginnt an der Nordseite, von wo ein senkrechter Schacht zu einem horizontalen Gang und den Kammern führt. In dem horizontalen Gang befinden sich eine Kammer auf der östlichen Seite und zwei auf der westlichen Seite. Gang und Kammern sind relativ unregelmäßig aus dem Felsen herausgehauen. Innerhalb des Unterbaus wurden einige ungewöhnliche Funde gemacht: Neben vollständigen und fragmentierten Alabaster- und Keramikgefäßen sowie Fragmenten eines Kalkstein-Sarkophags, fanden sich auch Fayence-Kacheln, ähnlich jenen, die im Djoser-Komplex entdeckt wurden. Solche Kacheln sind bislang in keinem anderen Pyramidenkomplex gefunden worden.[26]
-
Nebenpyramide mit Unterbau (nach Valloggia):
A: Nebenpyramide
B: Substruktur
C: Hauptpyramide
D: Umfassungsmauer -
Nebenpyramide mit Unterbau (nach Valloggia):
A: erhaltenes Mauerwerk
B: Substruktur
C: Pyramidenumriss
Diese Pyramide wird von einigen Forschern wie Valloggia für eine Königinnenpyramide gehalten. Andere, wie Rainer Stadelmann, halten das Bauwerk für die Kultpyramide des Komplexes. Für Letzteres spricht zum einen, dass sich die Pyramide an der typischen Position der Kultpyramiden befindet und überdies in die innere Einfriedung der Hauptpyramide integriert ist. Zudem weist der Dreikammer-Unterbau nach Stadelmanns Dreikammertheorie die Merkmale einer königlichen Pyramide auf, während die Königinnenpyramiden der Cheops- und Mykerinos-Komplexe lediglich zwei Kammern besitzen.[27] Die gefundenen Sarkophag-Fragmente widersprechen der Einschätzung als Kultpyramide nicht, da diese symbolische Ka-Gräber darstellen und der Sarkophag zu einer symbolischen Beisetzung gehört haben könnte.
Valloggia vermutet, dass das ursprünglich als Kultpyramide errichtete Bauwerk in einer zweiten Phase zur Bestattung einer Königin umgebaut wurde, was nicht auszuschließen ist, da ein ähnlicher Umbau an der Königinnenpyramide G-IIIa der Mykerinos-Pyramide bekannt ist.[13] Wenn es sich um das Grabmal einer Königin gehandelt hat, waren dort vermutlich die Königinnen Chentetenka oder Hetepheres II. bestattet.
Mögliche Königinnenpyramide an der Südwestecke
In der südwestlichen Ecke, im Bereich zwischen innerer und äußerer Einfassungsmauer, identifizierte bereits Lepsius die Ruine einer Nebenpyramide und katalogisierte sie unter Lepsius III. Dieses Bauwerk, das bislang noch nicht intensiv untersucht wurde, stellt nach gegenwärtigen Erkenntnissen eine Königinnenpyramide dar, wurde allerdings über lange Zeit, bis zur Entdeckung der Nebenpyramide an der Südostecke, für eine Kultpyramide gehalten, obwohl keine weiteren Kultpyramiden an der Südwestecke von anderen Pyramidenkomplexen bekannt sind. Sie hat eine Basislänge von etwa 26 m (50 Königsellen). Das Bauwerk ist heute durch Steinraub noch stärker zerstört als die Hauptpyramide und erscheint nur noch als flacher Schutthügel mit Überresten einer Ausschachtung.[9] Der Pyramidencharakter des Baus ist noch nicht sicher belegt.
Schiffsgrab

Auf der Ostseite, direkt an den Totentempel angrenzend, befindet sich eine Schiffsgrube, die von Émile Chassinat entdeckt wurde. Sie war mit Ausnahme der Nordseite von Steinmauern umgeben. Die Nordmauer bestand hingegen aus Lehmziegeln. Die Ost- und Südmauern gehören zu dem dicken Mauersystem der Werkstattbauten nördlich der Grube. Zwischen der Umgebungsmauer und der eigentlichen Bootsgrube befand sich ein Sockel, der die Abdecksteine der Grube trug. Aufgrund von gefundenen Fragmenten kann man für die Decksteine auf eine Größe von etwa 5,2 × 1,1 m (10 × 2 Königsellen) schließen.[10]
Die Mauern der Bootsgrube selbst sind im Bug- und Heckbereich vertikal, im Mittschiffsbereich jedoch nach innen gewölbt. Die Längsachse der Grube folgt der Krümmung des Bootsrumpfs und ist durch eine rote Linie auf dem sorgfältig geglätteten Grund der Grube markiert. Mörtelreste am Nordende deuten darauf hin, dass eine Verkleidungsschicht existiert haben muss.[28]
In der Grube wurden keine Überreste der Barke gefunden, jedoch zahlreiche Fragmente von Radjedef-Statuen, die vermutlich von den Steinräubern dort deponiert worden waren.
Aufweg

Der Aufweg erreicht den Pyramidenkomplex aus nordöstlicher Richtung kommend auf der Nordseite des Komplexes. Dies ist ungewöhnlich, da er in den meisten anderen Fällen aus östlicher Richtung kommend an der Ostseite von Pyramidenkomplexen endet. Aufgrund der abgelegenen Lage des Komplexes dürfte der Aufweg eine Länge von 1.700 m gehabt haben, jedoch wurde bislang nur der obere Teil ausgegraben. Weiter abwärts folgte der Aufweg dem Tal eines Wadis. Der am talseitigen Ende des Aufwegs zu erwartende, dazugehörige Taltempel wurde noch nicht gefunden.[29]
Weitere Funde
Im Bereich der Schiffsgrube an der Ostseite der Pyramide fanden sich zahlreiche Fragmente von Radjedef-Statuen, die von Émile Chassinat bei seinen Grabungen zwischen 1901 und 1924 gefunden wurden. Keine der Statuen ist vollständig erhalten und nur vier Köpfe des Königs wurden entdeckt. Die Zerstörung der Statuen hat vermutlich zu römischer Zeit im 2. Jahrhundert stattgefunden und ist somit ein Zeugnis des Steinraubs und nicht, wie früher vermutet, einer damnatio memoriae.[29] Die hier gefundenen Statuenfragmente befinden sich heute im Louvre in Paris, im Ägyptischen Museum in Kairo und im Staatlichen Museum Ägyptischer Kunst in München.
Außer den Statuenfragmenten des Königs wurden auch mehrere, teils gut erhaltene, teils fragmentierte Statuen von Familienmitgliedern gefunden. Die aufgrund dieser Funde nachgewiesenen Familienmitglieder waren seine Söhne Baka, Hornit, Setka, Prinzessin Neferhetepes und Königin Hetepheres II.
Außerhalb des Korridors zum Taltempel fand sich ein Depot mit Votiv-Keramik.
-
Fragment eines Radjedef-Kopfes -
Fragment einer Radjedef-Sitzstatue -
Schreiberstatue des Prinzen Setka -
Sphinx-Statue der Hetepheres II.
Literatur
Allgemein
- Leslie V. Grinsell: Egyptian Pyramids. John Bellows, Gloucester 1947.
- Mark Lehner, Geheimnis der Pyramiden. Econ, Düsseldorf 1997, ISBN 3-572-01039-X.
- Frank Müller-Römer: Bau der Pyramiden im Alten Ägypten. Renidere, Maintal 2024, ISBN 978-3-98258-058-6, S. 249ff.
- Rainer Stadelmann: Die ägyptischen Pyramiden. Vom Ziegelbau zum Weltwunder (= Kulturgeschichte der Antiken Welt. Band 30). 3., aktualisierte und erweiterte Auflage, von Zabern, Mainz 1997, ISBN 3-8053-1142-7.
- Alberto Siliotti: Pyramiden – Pharaonengräber des Alten und Mittleren Reiches. Müller, Erlangen 1998, ISBN 3-86070-650-0.
- Miroslav Verner: Die Pyramiden (= rororo-Sachbuch. Band 60890). Rowohlt, Reinbek bei Hamburg 1999, ISBN 3-499-60890-1.
- Michel Valloggia: Au coeur d’une pyramide. Une mission archéologique en Egypte. InFolio, Gollion 2001, ISBN 2-88474-100-3.
- Zahi Hawass: Die Schätze der Pyramiden. Weltbild, Augsburg 2003, ISBN 3-8289-0809-8, S. 224–230.
- Peter Jánosi: Die Pyramiden – Mythos und Archäologie (= Beck’sche Reihe. Band 2331; C. H. Beck Wissen). Beck, München 2004, ISBN 3-406-50831-6.
- Thomas Kühn: Das „Sternenzelt des Djed-ef-Re“ in Abu Roasch. In: Gabriele Höber-Kamel (Hrsg.): Kemet Heft 3/2008. Kemet Verlag, Berlin 2008, ISSN 0943-5972, S. 18–23.
Grabungspublikationen
- John Shae Perring: Gizeh III., 1848.
- Émile Gaston Chassinat: Note sur les fouilles d’Abou Roash. (1900–1901), Comptes rendus de l’Académie des Inscriptions et Belles-lettres 1901, S. 616–619.
- Fernand Bisson de la Roque: Rapport sur les fouilles d’Abou-Roasch. (1922–1923) (= Fouilles de l’Institut français d’archéologie orientale du Caire. (FIFAO) Band 1) 1924.
- Fernand Bisson de la Roque: Rapport sur les fouilles d’Abou-Roasch. (1924) (= Fouilles de l’Institut français d’archéologie orientale du Caire. (FIFAO) Band 2) 1925.
- Vito Maragioglio, Celeste Rinaldi: L’Architettura delle Piramidi Menfite, V – Le piramidi di Zedefra e di Chefren. Turin-Rapallo, 1966.
- Nicolas Grimal: Travaux de l’Institut français d’archéologie orientale en 1996–1997. Chantiers archéologiques et programmes de recherche. Etudes égyptologiques et papyrologiques. 2. Abou Rawash. In: Le Bulletin de l’Institut français d’archéologie orientale (BIFAO) Band 97, 1997, S. 317–326.
- Nicolas Grimal: Travaux de l’Institut français d’archéologie orientale en 1997–1998. Chantiers archéologiques et programmes de recherche. Etudes égyptologiques et papyrologiques. 2. Abou Rawash. In: Le Bulletin de l’Institut français d’archéologie orientale (BIFAO) Band 98, 1998, S. 499–505.
- Nicolas Grimal: Travaux de l’Institut français d’archéologie orientale en 1998–1999. Chantiers archéologiques et programmes de recherche. Etudes égyptologiques et papyrologiques. 2. Abou Rawash. In: Le Bulletin de l’Institut français d’archéologie orientale (BIFAO) Band 99, 1999, S. 456–462.
- Bernard Mathieu: Travaux de l’Institut français d’archéologie orientale en 1999–2000. Chantiers archéologiques et programmes de recherche. Etudes égyptologiques et papyrologiques. 1. Abou Rawash. In: Le Bulletin de l’Institut français d’archéologie orientale (BIFAO) Band 100, 2000, S. 447–452.
- Bernard Mathieu: Travaux de l’Institut français d’archéologie orientale en 2000–2001. Chantiers archéologiques et programmes de recherche. Etudes égyptologiques et papyrologiques. 1. Abou Rawash. In: Le Bulletin de l’Institut français d’archéologie orientale (BIFAO) Band 101, 2001, S. 453–461.
Dokumentarfilme
- Die Pyramiden Staffel 1, Folge 6: Abu Rawash - Verloren in der Zeit. (Abou Rawash et la pyramide disparue. Frankreich 2019) TV-Dokumentation; Deutsche Erstausstrahlung: ZDFinfo 7. Januar 2020 (auf youtube.com).
Weblinks
- Der Grabkomplex des Djedefre (engl.)
- Alan Winston: The Pyramid of Djedefre at Abu Rowash (engl.)
- Institut français d’archéologie orientale: Le Caire: Abou Roach (franz.)
Einzelnachweise
- ↑ Roman Gundacker: Zur Struktur der Pyramidennamen der 4. Dynastie. In: Sokar. Nr. 18, 2009, S. 26–30.
- ↑ a b c T. Schneider: Lexikon der Pharaonen. Albatros, Düsseldorf 2002, ISBN 3-491-96053-3, S. 102.
- ↑ ZDF-History: Die vergessene Pyramide von Gizeh. ( des vom 4. März 2016 im Internet Archive) Info: Der Archivlink wurde automatisch eingesetzt und noch nicht geprüft. Bitte prüfe Original- und Archivlink gemäß Anleitung und entferne dann diesen Hinweis.
- ↑ a b c d Miroslav Verner: Die Pyramiden. Reinbek bei Hamburg 1999, S. 247 ff: Die Pyramide des Djedefre.
- ↑ Peter Jánosi: Giza in der 4. Dynastie. Die Baugeschichte und Belegung einer Nekropole des Alten Reiches. Band I: Die Mastabas der Kernfriedhöfe und die Felsgräber. Verlag der Österreichischen Akademie der Wissenschaften, Wien 2005, ISBN 3-7001-3244-1, S. 72.
- ↑ Alberto Siliotti: Pyramiden – Pharaonengräber des Alten und Mittleren Reiches. Erlangen 1998, S. 92
- ↑ Höhenangaben aus Google Earth: Abu Roasch ≈150 m ü. d. M., Gizeh ≈70 m ü. d. M.
- ↑ a b c Mark Lehner: Geheimnis der Pyramiden. Düsseldorf 1997, S. 120 ff Djedefre in Abu Roasch
- ↑ a b Rainer Stadelmann: Die ägyptischen Pyramiden. Vom Ziegelbau zum Weltwunder. Mainz 1997, S. 126 ff.
- ↑ a b c d e f g Bernard Mathieu: Chantiers archéologiques et programmes de recherche. Etudes égyptologiques et papyrologiques. 1. Abou Rawash. In: BIFAO Band 100, 2000, S. 447–452.
- ↑ Dietrich Wildung: Die Rolle ägyptischer Könige im Bewusstsein ihrer Nachwelt. Teil I: Posthume Quellen über die Könige der ersten vier Dynastien. In: Münchener Ägyptologische Studien. Band 17, Deutscher Kunstverlag, München / Berlin 1969, S. 193–199.
- ↑ Peter Jánosi: Die Pyramiden – Mythos und Archäologie. München 2004, S. 71–72.
- ↑ a b c Institut français d’archéologie orientale: Le Caire: Abou Roach
- ↑ Michel Valloggia: Au coeur d’une pyramide. Une mission archéologique en Egypte. Gollion 2001, S. 54.
- ↑ a b Nicolas Grimal: Chantiers archéologiques et programmes de recherche. Etudes égyptologiques et papyrologiques. 2. Abou Rawash. In: BIFAO Band 98, 1998, S. 502.
- ↑ Mark Lehner: Geheimnis der Pyramiden. S. 17: Statistische Angaben zu den wichtigsten Pyramiden.
- ↑ Michel Valloggia: Au coeur d’une pyramide. Une mission archéologique en Egypte. Gollion 2001, S. 59.
- ↑ a b Michel Valloggia: Au coeur d’une pyramide. Une mission archéologique en Egypte. Gollion 2001, S. 60.
- ↑ a b c Nicolas Grimal: Chantiers archéologiques et programmes de recherche. Etudes égyptologiques et papyrologiques. 2. Abou Rawash. In: BIFAO Band 97, 1997, S. 324.
- ↑ Michel Valloggia: Au coeur d’une pyramide. Une mission archéologique en Egypte. Gollion 2001, S. 61
- ↑ a b Nicolas Grimal: Chantiers archéologiques et programmes de recherche. Etudes égyptologiques et papyrologiques. 2. Abou Rawash. In: BIFAO Band 98, 1998, S. 500.
- ↑ Nicolas Grimal: Chantiers archéologiques et programmes de recherche. Etudes égyptologiques et papyrologiques. 2. Abou Rawash. In: BIFAO Band 99, 1999, S. 459.
- ↑ Nicolas Grimal: Chantiers archéologiques et programmes de recherche. Etudes égyptologiques et papyrologiques. 2. Abou Rawash. In: BIFAO Band 97, 1997, S. 322.
- ↑ Vito Maragioglio, Celeste Rinaldi: L’Architettura delle Piramidi Menfite. Band V: Le piramidi di Zedefra e di Chefren. Rapallo, Turin 1966, S. 14, 30.
- ↑ Nicolas Grimal: Chantiers archéologiques et programmes de recherche. Etudes égyptologiques et papyrologiques. 2. Abou Rawash. In: BIFAO Band 97, 1997, S. 323.
- ↑ a b Supreme Council of Antiquities, Secretary General Office: Pyramid Discovered at Abu Rowash.
- ↑ Rainer Stadelmann: Das Dreikammersystem der Königsgräber der Frühzeit und des Alten Reiches. In: Mitteilungen des Deutschen Archäologischen Instituts, Abteilung Kairo. (MDAIK) 47, 1991, S. 373–387.
- ↑ Bernard Mathieu: Chantiers archéologiques et programmes de recherche. Etudes égyptologiques et papyrologiques. 1. Abou Rawash. In: BIFAO Band 101, 2001.
- ↑ a b Peter A. Clayton: Chronicle of the Pharaohs: The Reign-by-Reign Record of the Rulers and Dynasties of Ancient Egypt. Thames & Hudson, London 2006, ISBN 0-500-28628-0, S. 50.
Anmerkungen
Koordinaten: 30° 1′ 56″ N, 31° 4′ 29″ O

