Oberschwingungsfilter

Oberschwingungsfilter sind Filter, die in der elektrischen Energietechnik unerwünschte Oberschwingungen im Strom oder der Spannung elektrischer Energieversorgungsanlagen unterdrücken.[1]
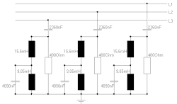
Die Filter können passiv aufgebaut sein und aus Kondensatoren und Spulen zusammengeschaltete Glieder sein, welche entweder als Tiefpass oder Saugkreis ausgeführt sind.
Bei Anlagen zur Hochspannungs-Gleichstrom-Übertragung werden auf die entsprechenden Frequenzen (12- und 24-fache Netzfrequenz bei Anlage in Zwölfpulsschaltung, aufwendige Serienresonanzkreise (Saugkreise) für 5., 7., 11., 13., 17., 19., 23. und 25. Oberschwingung bei Sechspulsschaltung) angewandt. Der Grundfrequenzanteil des Laststroms fließt nicht durch die Bauelemente des Filters.
Bei Senderendstufen werden Tiefpassfilter und ggf. abgestimmte Filter verwendet.
Es gibt auch die Möglichkeit, Oberschwingungsfilter aktiv zu bauen. Dazu ist es erforderlich, die auszulöschenden Oberschwingungsanteile im Strom mittels leistungselektronischer Stellglieder (wie z. B. Wechselrichter) mit entgegengesetzter Polarität einzuprägen.
Oberschwingungsfilter werden häufig bei der Hochspannungs-Gleichstrom-Übertragung und in Thyristorsteuerungen eingesetzt.