Niebuhr-Hochhaus
.jpg)
Das Niebuhr-Hochhaus ist ein Apartment-Hochhaus im Hamburger Stadtteil St. Pauli. Das Hochhaus befindet sich am westlichen Ende der Reeperbahn, gegenüber von Großer Freiheit und Nobistor, und hat die Anschrift Reeperbahn 157. Das Gebäude wurde 1971 eingeweiht, der offizielle Name lautet Margot-Niebuhr-Hochhaus, benannt nach der Ehefrau des Bauherrn. Das Hochhaus ist 57 Meter hoch und hat 17 Stockwerke, 15 davon mit je zehn Apartments. Im Sockel befinden sich zwei Etagen mit Einzelhandel und Gastronomie.
Geschichte
1967 wollte der Senat das Grundstück von 4300 m² an Friedrich Niebuhr (1906–1988)[1] verkaufen, der dort schon andere Grundstücke besaß. Niebuhr wollte die Finkenstraße stilllegen und das letzte Stück der Reeperbahn begradigen. Daran sollte ein etwa 80 Meter langer und 21 Meter tiefer zweigeschossiger Baukörper errichtet werden, aus dem Wohnbauten herausragen.[2] Friedrich Niebuhr war gelernter Weinhändler und sollte in das Geschäft seiner verwitweten Mutter Helene Niebuhr (1877–1955) einsteigen, die in der Bernhard-Nocht-Straße 69/73 unweit der Reeperbahn eine Weinhandlung sowie Spirituosen- und Likörfabrik betrieb.[3] Stattdessen studierte Friedrich Niebuhr Jura, ließ sich 1934 in St. Pauli als Anwalt nieder[4] und promovierte 1936.[5] Durch Expansion des Unternehmens kamen in St. Pauli weitere Grundstücke in den Besitz der Familie. Niebuhr war mit Bürgermeister Max Brauer befreundet.[4]
Im Juni 1971 wurde Richtfest für das Margot-Niebuhr-Haus gefeiert. Bauherr war Fritz Niebuhr, Generalübernehmer die Neue Heimat, der Entwurf stammte von Franz Glogner.[6] Das Haus wurde nach der Kastenbauart „Feidner“ in Stahlbetonbauweise errichtet. Die Betonwände in den Wohnungen sind mit Gipsplatten isoliert.[7]
Das Niebuhr-Hochhaus entwickelte sich teilweise zu einem Bordell, das sich jedoch zum Ende der 1980er Jahre auflöste. Die Apartments wurden nun zu Wohnzwecken genutzt, statt teils als „Modellwohnungen“ der Prostitution zu dienen.[8]
Um die Zeit 1998/2000 gab es Pläne des Investors und Bordellbetreibers Georg Bitterwolf („Pascha“), im Häuserkomplex ein Vergnügungszentrum einzurichten.[9] Der Projektname war „Kleine Freiheit“.[10] Diese Pläne wurden nicht verwirklicht.[11] Unter anderem sollte auf dem Gebäudegiebel eine digitale Bildwand von ca. 500 m² Größe angebracht werden,[12] auch das wurde nicht umgesetzt.
2007 meldete die Werner Schleich Grundstücks- und Liegenschaftsverwaltung Insolvenz an. 2009 wurde das Haus von Werner Schleich an die Excelsior GmbH & Co. KG verkauft und vom neuen Eigentümer in Eigentumswohnungen aufgeteilt. Zudem plante Excelsior, nach Entwürfen von Gibbins Architekten Fassaden und Gebäudetechnik sanieren zu lassen, zur Lincolnstraße sollte eine abgetreppte Nachbarbebauung entstehen.[13] Durch diesen Ausbau sollte die Nutzfläche deutlich vergrößert werden.[14] Diese Pläne wurden größtenteils nicht verwirklicht. Das Hochhaus liegt im Gebiet der Sozialen Erhaltungsverordnung St. Pauli, die 2012 in Kraft trat.[15] Diese Verordnung stellt die Umwandlung von Miethäusern in Eigentumswohnungen unter Erlaubnisvorbehalt. Da die Umwandlung jedoch vor Inkrafttreten geschehen war, fand die Verordnung keine Anwendung auf das Niebuhr-Hochhaus.
Die Eigentumswohnungen bestehen heute teils aus zusammengelegten Apartments, dadurch gibt es nur noch 144 Wohneinheiten. Ab 2010 wurde das Hochhaus durch die Excelsior saniert, was zu zahlreichen Auseinandersetzungen mit den Mietern um die Durchführung der Arbeiten, Mieterhöhungen und Asbestbelastung führte.[16] Die Initiative Reeperbahn 157 agierte als Teil des 2009 gebildeten gentrifizierungskritischen Netzwerks Recht auf Stadt.[17] Von Frühjahr 2011 bis Mitte 2012 wurde ungefähr ein Drittel der Wohnungen im Hochhaus verkauft, der Quadratmeterpreis von sanierten Wohnungen lag bei etwa 4700 Euro.[18] 2018 wurde im ehemaligen Lidl-Markt im Niebuhr-Hochhaus eine Hooters-Filiale eröffnet.[19]
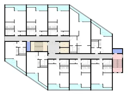
Beschreibung

| _ Apartments | _ Loggia / Balkone |
| _ Erschließung (Flure) | _ Treppenhaus / Fahrstuhl |
| _ Haustechnik | _ Fluchttreppen |
Das Hochhaus ist 57 Meter hoch und hat 17 Stockwerke.[20] Über einem mehrgeschossigen Sockel mit Einzelhandel, Gastronomie und gewerblicher Nutzung befinden sich 15 Wohn-Etagen mit ursprünglich je zehn Einzimmer-Apartments, insgesamt 150 Wohneinheiten. Diese Wohneinheiten sind zwischen 37 und 57 m² groß, jedes Apartment besitzt über die gesamte Breite der Wohneinheit eine Loggia. Das Wohnhaus wird über zwei Aufzüge und ein Treppenhaus im Gebäudekern erschlossen, dazu kommt ein weiteres Nottreppenhaus.
Das Hochhaus hat einen sechseckigen Grundriss, zwei gegenüberliegende Ecken weisen einen rechten Winkel auf. Dadurch haben sechs der zehn Apartments pro Etage einen rechteckigen Grundriss, nur jeweils vier der Apartmentgrundrisse sind trapezförmig. Der 17-geschossige Wohnhausturm ist von der Reeperbahn aus knapp 24 m breit und 30 m tief (ohne Nottreppenhaus).
Das Haus steht auf einem Grundstück von etwa 4600 m², das sich über vier Flurstücke erstreckt.[21] Der Sockel unter dem Wohnhaus hat zwei Geschosse und beherbergte 2009 elf Gewerbeeinheiten. Daran schließt sich ein zweigeschossiger Flachbau an. In der Tiefgarage befinden sich 105 Stellplätze. Insgesamt hatte das Haus eine Nutzfläche von etwa 8600 m² für Wohnungen und Gewerbe.[13]
In der näheren Umgebung des Hochhauses findet sich kein weiteres Gebäude ähnlicher Höhe. Als der Eigentümer 2022 die Baugenehmigung für die Aufstockung mit einem Staffelgeschoss beantragte, wurde dies im Vorbescheidsverfahren rundherum abgelehnt. Nach Auffassung der Baubehörde „stellt [das Gebäude] schon jetzt einen Ausreißer dar, der dem Grundzug der Planung widerspricht. Für ein weiteres Geschoss gibt es in der näheren Umgebung kein Vorbild. [Das Gebäude] fügt sich nicht in die nähere Umgebung ein.“[22]
Rezeption
.jpg)
Umgangssprachlich wurde das Gebäude ab den 1980ern auch als Nuttenbunker bezeichnet, 2012 literarisch von Jacques Berndorf und Christian Willisohn in ihrem gleichnamigen Krimi verarbeitet.[23]
2011 entwarf ein Team von Design-Studenten der HfBK unter Leitung von Jesko Fezer einen Begegnungsraum für die Bewohner des Niebuhr-Hochhauses. Dazu wurde der Hausflur temporär zu einer Bar mit Stehtischen und einer Theke umgestaltet.[24] Eine 2012 im Fachbereich Städteplanung der HafenCity Universität Hamburg vorgelegte Masterarbeit befasste sich mit der Gentrifizierung anhand des Margot-Niebuhr-Hauses.[25]
2013 stellte der Pressefotograf Frank Egel (1971–2021) in Hamburg Fotos zur Reeperbahn 157 aus, deren Bewohner er in ihren Wohnungen fotografierte.[26] Egel wohnte selbst im Niebuhr-Hochhaus.[27] 2018 lief in der NDR-Serie Nordreportage eine halbstündige Dokumentation über das Gebäude und seine Bewohner.[28]
Weblinks
- Margot-Niebuhr-Hochhaus beim Fotoprojekt „Soul Pauli“, ein Projekt von Frank Egel
- Mieterinitiative Reeperbahn 157
Einzelnachweise
- ↑ Niebuhr, Friedrich, Dr.jur. (Jurist, Wein- und Spirituosenfirma Helene Nieburg Wwe, geb. 08.11.1906, gest. 29.01.1988 Hamburg), Bestand im Staatsarchiv der Freien und Hansestadt Hamburg (Signatur 731-8_A 763)
- ↑ Neues Tor für die Reeperbahn. In: Hamburger Abendblatt, 28. August 1967.
- ↑ Rita Bake: Helene Niebuhr (1877–1955) In: Hamburger Frauenbiografien, ein Projekt der Behörde für Schule und Berufsbildung
- ↑ a b Menschlich. In: Hamburger Abendblatt, 9. November 1984.
- ↑ Friedrich Niebuhr, GND 1058152580
- ↑ Franz Glogner (1905-) war Mitinhaber der Firma Behrens, Glogner & Co., gelernter Kaufmann und in den 1960er Jahren einer der größten Bauunternehmer Hamburgs. In: Wir gratulieren, Hamburger Abendblatt, 3. Juni 1965.
- ↑ Blickfang an der Reeperbahn. In: Hamburger Abendblatt, 18. Juni 1971.
- ↑ Ralf Zander: Freudenhäuser, Hamburg 2015, veröffentlicht auf Polizei-Poeten.de. Zander war von 1965 bis 1993 Polizeibeamter auf der Davidswache in St. Pauli.
- ↑ Sven-Michael Veit: Zwischen Pascha und Parkhaus. In: taz, 22. Februar 1999, S. 22.
- ↑ Gisela Schütte: Große Pläne für ein kontrastreiches Quartier. In: Die Welt, 15. Juni 1999.
- ↑ Jörn Lauterbach, Ira von Mellenthin: Investoren spekulieren mit Reeperbahn-Grundstücken. In: Die Welt, 17. August 2000.
- ↑ Bürgerschaft der Freien und Hansestadt Hamburg, 16. Wahlperiode: Bauprojekte auf St. Pauli, Drucksache 16/2350, Antwort auf die Schriftliche Kleine Anfrage der Abgeordneten Heike Sudmann, 20. April 1999. (Vorgang online)
- ↑ a b gs: Verjüngungskur für das Niebuhr-Haus. In: Die Welt, 15. April 2009.
- ↑ Kieztower Reeperbahn, Gibbins Architekten, Hamburg (Abgerufen im Juli 2023).
- ↑ Verordnung zur Erhaltung der Zusammensetzung der Wohnbevölkerung für ein Gebiet im Stadtteil St. Pauli ("Soziale Erhaltungsverordnung St. Pauli") vom 6. Februar 2012. In: Hamburgisches Gesetz- und Verordnungsblatt (HmbGVBl.) 2012, Teil I, Nr. 7, S. 41–42. (Veröffentlicht am 14. Februar 2012, Online)
- ↑ Isabella David: „Die Taktik der Zermürbung“. In: Mittendrin, ZDB-ID 2763559-4, 1. Dezember 2012.
- ↑ Siehe dazu die Grafik Hamburg. Initiativen im gentrifizierungskritischen Netzwerk „Recht auf Stadt“ 2011 und große städtebauliche Projekte 2011. In: Thomas Pohl und Katharina Wischmann: Wohnungsmarktdynamik und stadtpolitische Konflikte in Hamburg: ein Beitrag zur Gentrificationforschung, in: Europa regional 19.2 (2014), S. 41–55, hier S. 51.
- ↑ Benjamin Laufer: Leben im Giftschrank. In: Hinz&Kunzt, ZDB-ID 1185346-3, Nr. 236 (Oktober 2012)
- ↑ Hanna-Lotte Mikuteit: Hooters eröffnet auf dem Kiez. in: Hamburger Abendblatt, 26. Januar 2018.
- ↑ Irene Jung: Für mich bitte keine Seilbahn. In: Hamburger Abendblatt, 21. Mai 2014.
- ↑ Flurstücke 1442, 1443, 1444 und 1293 auf der Gemarkung St. Pauli Süd im Baublock 112003. Siehe Vorbescheid nach § 63 HBauO, 26. Januar 2022.
- ↑ Bezirksamt Hamburg-Mitte - Dezernat Wirtschaft, Bauen und Umwelt - Fachamt Bauprüfung: Aufstockung um ein Staffelgeschoss mit 2 Wohnungen, Vorbescheid nach § 63 HBauO, 26. Januar 2022. Veröffentlicht auf dem Transparenzportal der Stadt Hamburg.
- ↑ Jacques Berndorf und Christian Willisohn: Nuttenbunker. Hörbuch/CD (2012), ISBN 978-3-942446-40-2.
- ↑ Lena Frommeyer: Rent a Nachwuchsdesigner. In: Die Zeit, 10. September 2014. (Siehe auch Projektblätter Öffentliche Gestaltungsberatung St. Pauli, Nr. 6. HFBK - 318-06)
- ↑ Monia Gläske: R 157 : Margot-Niebuhr-Haus. HafenCity Universität, Hamburg 2012. (Master-Thesis, Betreuung Prof. Michael Koch und Prof. Alexa Färber) -- Katalog 738008028, Dienstapparat von Prof. Bernd Kniess
- ↑ Reeperbahn 157, im Stadtteilzentrum KÖLIBRI, 28. April – 5. Mai 2013.
- ↑ Christoph Twickel: Auf der Zeterbahn : Das Geschäft mit dem St.-Pauli-Mythos. In: Die Zeit, Nr. 26/2018 vom 25. Juni 2018.
- ↑ Die Nordreportage: Reeperbahn 157, Erstausstrahlung am 29. Oktober 2018, ein Film von Susan Tratz
Koordinaten: 53° 32′ 57,9″ N, 9° 57′ 24,4″ O