Min-Fest
| Min-Fest in Hieroglyphen | ||||||||||
|---|---|---|---|---|---|---|---|---|---|---|
| Altes Reich |
| |||||||||
| Mittleres Reich |
Heb-ef-en-Min-peret-em-per ḥb=f-n-Mnw-prt-m-prw Auszug des Min zu seinem Haus | |||||||||
| Neues Reich |
Heb-ef-en-Min-peret-em-chetiu ḥb=f-n-Mnw-prt-m-ẖtjw Auszug des Min zum Platz (Haus) der Treppe | |||||||||
Das Min-Fest (auch Auszug des Min zu seinem Haus, Auszug des Min zum Haus der Treppe) war eine religiöse Feierlichkeit zur Verehrung des altägyptischen Gottes Min und ist bereits im Alten Reich seit der 4. Dynastie (von 2639 bis 2504 v. Chr.) unter dem Namen „Auszug des Min“ belegt. Die in dieser Periode vorhandenen Texte verweisen auf die ursprüngliche Entstehung in frühdynastischer Zeit, in der das Min-Fest zunächst als Kornopfer in der Darstellung des weißen Stiers als Wiedergeburt der Gottheit Osiris charakterisiert wird.
In den Festlisten des Alten Reichs bildete das Min-Fest im Kalender der großen Feste den Abschluss. Im Verlauf der Geschichte Altägyptens vollzog sich in der Ausrichtung des Min-Festes ein deutlicher Bedeutungswandel.
In der zum Neuen Reich gerechneten 18. Dynastie (von 1550 bis 1291 v. Chr.) sind Veränderungen in den Festriten zu bemerken. Spätestens ab Thronbesteigung des Pharaos Amenemope (996 v. Chr.) in der 21. Dynastie sieht sich der jeweilige Herrscher selbst in der Rolle als weißer Stier und in diesem Zusammenhang als Min-Amun. Die vollständige Wandlung des ursprünglichen Charakters des Min-Festes ist vollzogen; die alte Tradition des Min-Festes endet daher mit Beginn der 21. Dynastie und wird mit den neuen Min-Amun-Festen fortgesetzt.
Hintergrund
Die Gottheit Min erfuhr in der ägyptischen Mythologie veränderte Symbolzuweisungen und wurde deshalb später mit mehreren anderen Gottheiten verschmolzen. Im Mittleren Reich ist erstmals die Verknüpfung von Amun-Re und Min zu Amun-Re-Kamutef („Amun-Re, Stier seiner Mutter“) belegt. In der zweiten Zwischenzeit (von 1648 bis 1550 v. Chr.) folgen die Sonderformen Min-Amun, Amun-Min („Min-Amun/Amun-Min, Stier seiner Mutter“) und Min-Kamutef („Min, Stier seiner Mutter“). Mit Beginn der 18. Dynastie (1550 v. Chr.) verschmilzt Amun-Re-Kamutef zu Kamutef („Stier seiner Mutter“). Schließlich kommt spätestens in der 21. Dynastie Amenemope („Amun von Karnak“) als neue Statuengottheit hinzu, die sich von Kamutef ableitete.
Datierung
| Ju-pesdjenet-em-duat in Hieroglyphen | |||||
|---|---|---|---|---|---|
| Altes Reich |
| ||||
| Neues Reich |
1-nu-schemu 1-nw-šmw Erster Monat der Periode Schemu | ||||
Die ältesten Belege aus der 4. Dynastie verweisen auf Ansetzung des Min-Festes in die Jahreszeit Schemu; im Festkalender vom Sonnenheiligtum des Niuserre ist das Min-Fest ebenfalls für die Jahreszeit Schemu belegt, ohne jedoch ein explizites Datum zu nennen. Nur im Kalender von Medinet Habu (MHK 1430) ist einmalig das Min-Fest auf den 11. Schemu I datiert. Als zusätzliche Bestimmung galt der Hinweis auf die Verbindung zum bürgerlichen Verwaltungskalender. Gleichzeitig ist das Min-Fest aber in den altägyptischen Mondkalender terminiert. Auffallend ist auch, dass bei anderen Mondfesten entsprechende Zusatzangaben für den bürgerlichen Verwaltungskalender fehlen.
Die oft genannte Auffassung, dass das Min-Fest sowohl an einem festen Tag im bürgerlichen Verwaltungskalender als auch an einem bestimmten Mondmonatstag gefeiert wurde, ist einerseits widersprüchlich und andererseits in der Praxis nicht möglich. Als einzige Erklärung bleibt die Annahme, dass der 11. Schemu I das Datum im bürgerlichen Verwaltungskalender im Jahr der erstmaligen Neuformulierung darstellt. Vermutlich ist dieser Teil des Kalenders von Medinet Habu eine Kopie des Kalenders im Ramesseum.
Die Terminierung bezieht sich dann auf die Epoche von Ramses II., in welcher der 11. Schemu I mit einem Neumondtag zusammenfiel; speziell kommen hierfür das neunte, 34. und 59. Regierungsjahr in Frage. In der Regierungszeit von Ramses III. fielen im dritten Regierungsjahr Neumondtag und 11. Schemu I zusammen; gleichzeitig stellt damit das dritte Regierungsjahr von Ramses III. die letzte Formulierungsmöglichkeit im Kalender dar.
Ein weiterer Hinweis ergibt sich aus den Dekanlisten der Sethos-Schrift, in denen Sebeschsen, der Stern des Min, am Leib der Nut am 6. Schemu I in die Duat eintrat und als Datierungsgrundlage die verfügte Anordnung unter Sesostris III. (12. Dynastie) in dessen siebtem Regierungsjahr hatte. Unter Ramses III. ist die Datumsverschiebung um fünf Tage von Feierlichkeiten bekannt; beispielsweise bei dem Opet-Fest, das vom 14. Achet II auf den 19. Achet II verschoben wurde.
In griechisch-römischer Zeit sind bei entsprechender Zuweisung der Feierlichkeiten in den Mondkalender zwei Prozessionszüge für den ersten und 15. Schemu I zum „Geburtshaus des Min-Amun“ belegt, die zugleich auf die Verbindung zum Neu- und Vollmond verweisen. In den Chronokratlisten verlagerten sich die zugehörigen Tage des ägyptischen Verwaltungskalenders vom 17. Peret II auf den 19. Schemu II, da der ägyptische Kalender im Zusammenhang der Ansetzungen des Sothis-Mondkalenders inkompatibel war. Die Veränderungen der Festdaten im ägyptischen Verwaltungskalender sind im Tebtynis-Mondkalender ebenfalls gut dokumentiert.
In der Ägyptologie ist die jahreszeitliche Verbindung des Min-Festes mit der bevorstehenden Ernte unumstritten, weshalb nach den durchgängig genannten Schemu-Ansetzungen im Sothis-Mondkalender der Mondmonat Renutet als Gleichsetzung mit dem Februar den kalendarischen Rahmen als Festsetzungstermin der Feierlichkeiten darstellt.
Charakter des Min-Festes
Das Min-Fest fand unter Ausschluss der Öffentlichkeit statt und unterscheidet sich daher von den großen publikumswirksamen Prozessionen, die eine große Wegstrecke benötigen, um den Ansprüchen der zujubelnden Bevölkerung gerecht zu werden. Dagegen beinhaltet das Min-Fest nur einen kurzen Zug, der an der Tempel-Kapelle startet und alsbald wieder dort endet.
Das Min-Fest zeigt durch die fehlende Öffentlichkeit den Charakter täglicher Rituale zur Pflege und Speisung von Götterbildern, die sich in den verborgenen Tempelbereichen abspielen. Barkenprozessionen fehlen deshalb vollständig. Für die Gottheit Min wäre eine begleitende zujubelnde Bevölkerung unangebracht, da Min der Gott der Neubildung sowie des Wachstums des Pflanzenreiches ist. Er handelt dabei allein in einer geschützten Intimität.
Die Unvereinbarkeit mit einer öffentlichen Prozession entstammt seinem Mondcharakter und damit verbunden der Lichtstärke mit kosmischen Kräften. Das Min-Fest ist verbunden mit der Aufgabe des Gottes Min, die Ur-Schöpfung zu garantieren sowie das Erbe von Osiris zu schützen und an Horus weiterzugeben. Diese Aufgaben können nur in der Abgeschiedenheit und Dunkelheit seiner Tempel-Kapelle vollzogen werden.
Bisherige Deutungen

Der Ägyptologe Alexandre Moret setzte den weißen Stier mit Osiris gleich, der getötet wurde, um wieder erneuert aufzuerstehen. Das Kornopfer symbolisiere dabei den Geist der Fruchtbarkeit, der die Wiederkehr eines kräftigen Nachfolgers zum Inhalt hat. In Gleichsetzung von Horus, der durch die Ermordung seines Vaters Osiris durch Seth zum weltlichen Herrscher wurde, soll die Opferung des weißen Stiers das Bestehen des Königtums garantieren.[1]
In ähnlicher Wiese interpretierte der Ägyptologe Henri Gauthier das Kornopfer des weißen Stiers, der zum Abschluss der Feierlichkeiten getötet wurde. Diese Vorstellung ist noch immer Inhalt vieler literarischer Beschreibungen. Die Prozession des weißen Stiers stellte nach den bisherigen Meinungen den dritten Teil in der Min-Fest-Liturgie dar, die zeitgleich mit einer zweiten Prozession erfolgte, in welcher die Statue des Min mitgeführt wurde. Am Ende des dritten Teils schickte die Priesterschaft vier Vögel in die vier Himmelsrichtungen aus. Daran schloss sich im vierten Teil die Übergabe eines Bündels Korn-Ähren an den König durch den weißen Stier an. Die gleichzeitige Opferung des weißen Stiers nach Übergabe der Kornähren wurde als Garant einer gelungenen Ernte für die bevorstehende Erntezeit verstanden.
Die angenommene Ritualabfolge hat einen Text als Grundlage, der sich nicht widerspruchslos mit den dargestellten Bildszenen in Zusammenhang bringen lässt.[2] Der Ägyptologe Émile Chassinat weist auf die Umstände hin, dass eine Opferung des weißen Stiers in altägyptischen Texten unerwähnt bleibt und ikonografische Darstellungen des Stieropfers fehlen. Außerdem ergeben sich in Verbindung mit dem Prozessionsverlauf bei genauer Deutung der Bilddarstellungen Probleme, diese als Tötung zu interpretieren. Im Ergebnis fußen die in der Ägyptologie meist vorliegenden älteren Erklärungen hauptsächlich auf den Theorien der Myth and Ritual School, die insbesondere von Alexandre Moret vertreten wurden.
Neue Untersuchungen
Eine Schlachtung des weißen Stiers in den Innenräumen eines altägyptischen Tempels ist nach dem gegenwärtigen Stand der Forschung nahezu ausgeschlossen, da Tiere vor ihrer Schlachtung als Gottesopfer von den Priestern auf göttliche Hinweise untersucht wurden und eine Tötung bei entsprechender Sichtung eines Zeichens undenkbar war. Über Ausführung und Art einer rituellen Schlachtung gibt kein altägyptischer Text detailliert Auskunft.
Aufgrund neuer Untersuchungen der liturgischen Texte erscheinen die bisherigen Interpretationen daher unwahrscheinlich, da der weiße Stier zusätzlich eine wichtige Rolle in der Königsideologie spielte und als Vermittler des Königtums verstanden wurde. Das Leben des weißen Stiers symbolisierte das Leben und die Fortdauer der Regierungszeit des jeweiligen Königs sowie die Bestimmung seines Thronfolgers.
Ergänzende Beschreibungen der bildlichen Darstellungen sowie neu gefundene Paralleltexte und Festbeschreibungen aus Göttertempeln in griechisch-römischer Zeit können frühere Deutungen sowie Interpretationen des Min-Festes ebenfalls nicht mehr in der bisherigen Form bestätigen. Es ergibt sich nun eine neue und klare Abfolge der Riten, die den weißen Stier in das Zentrum des Min-Festes rücken.
Festablauf
Eröffnung

Zu Beginn des Festes trugen die Priester den König auf einer Sänfte aus seinem Palast, der sich im Neuen Reich in der Nähe des Amun-Tempel in Karnak befand. Bevor sich der Prozessionszug in Bewegung setzte, sprach der König die Eröffnungsworte: „Der König möge wegen der Schönheit seines Vaters an seinem schönen Fest der Treppe zu ihm getragen werden, um seinem Ka zu opfern“. Anwesend waren neben dem König und der Großen Königlichen Gemahlin die Söhne des Königs, die Wachen sowie eine beschränkte Anzahl von Beamten und Priestern.
Ergänzend bildeten zwei Anubis-Schakale als „Öffner der Wege“ und die Statuen der königlichen Ahnen das Gefolge. Nachdem die Tore des zehnten Pylons von Karnak durchschritten waren, erreichte der Festzug über die Sphinx-Allee den Tempel des Kamutef.
Ankunft am Tempel des Kamutef

1: Vorhöfe
2: Säulenhalle
3: Sonnenraum (nicht überdacht)
4 und 6: Vorraum der Kapelle
5 und 7: Kapelle
8: Querraum
9 bis 11: Statuenschreine
12 bis 17: Kultgegenstände und Zubehör
18 bis 24 und 28 bis 36: Kapellen
27 und 37: Kapellenhalle
Der König, der bereits im Kamutef-Tempel erwartet wurde, schritt zu den heiligen Götterschreinen (Räume 9 bis 11). Unmittelbar vor diesen Räumen, dem „Allerheiligsten“, stand die auf einem Tragegestell befestigte Statue des Min, die nun symbolisch nur über eine sehr kurze Wegstrecke in die kleine Querhalle (Raum 8) transportiert wurde. In den kleinen Kapellen (Räume 5 und 7) standen wahrscheinlich die wichtigen Kultgegenstände „Gottesschatten“ und „Lattichgarten des Min“, die später in den Prozessionszug integriert wurden.
Nach den Darstellungen von Medinet Habu weihte die Priesterschaft die ithyphallische Statue des Gottes Min während parallel laufender Opferungen, die im offenen Sonnenhof (Raum 3) vorbereitet waren. In den Texten sind die Opfergaben genauer beschrieben: „Rinder, Bier, Wein, Gänse und andere gute Sachen“. Demnach wurden die Trank- und Brandopfer im Sonnenhof frisch zubereitet. Zusätzlich war die Luft mit Weihrauch-Schwaden durchtränkt.
Die anschließende Überführung der schweren Steinstatue auf einem Traggestell ist schwer vorstellbar, da die Türdurchlässe nur einen Meter breit waren und nur wenige Priester die Götterstatue berühren durften. Auf Darstellungen des Min-Festes aus der Regierungszeit von Ramses III. wird die Gottesstatue von einem Priester mit einer langen dünnen Stange und einer kleinen Königsstatue symbolisch abgestützt, was bei einer Anfertigung aus massivem Stein jedoch unmöglich wäre. Daher muss es sich um eine Statue aus Holz gehandelt haben, die bereits von Anfang an in den Vorhöfen (Raum 1) stand und für die weitere Prozession im Säulensaal (Raum 2) geschmückt wurde.
Nach den Trank- und Brandopfern salbte der Sem-Priester die Holzstatue im Vorhof und reinigte sie rituell in einer weiteren Weihung. Auf vielen Bildern ist zu sehen, wie der König persönlich die Statue stützte. Der weiße Stier befand sich zum Zeitpunkt der Götterstatuensalbung noch in seinem eigenen Kulttempel und wurde nach Beendigung der Opferhandlungen im Anbau des Kamutef-Tempels auf seine Aufgabe vorbereitet.
Weiterer Verlauf
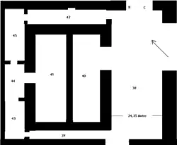
Kulttempel des weißen Stiers
für das Min-Fest
38: Hof für den weißen Stier
39: Gang zu den Kulträumen
40: Weißer Stier (Warteposition)
41: Stall des weißen Stiers
42: Gang zu den Kulträumen
43-45: Räume für Kultgegenstände
Der weiße Stier zeichnet sich durch eine schwarze Fellzeichnung an der linken Schläfe aus, die ihn als heiliges Tier des Min kennzeichnet. Zusätzlich ist er mit zwei Federn der Sonnenkrone geschmückt, der Hals ist mit einem wertvoll bestickten roten Tuch verziert. Der weiße Stier stellt das Verbindungsglied zwischen Mond und Sonne dar und symbolisierte so Horus im Horizont, der die aufgehende Sonne personifizierte. Mit Chepri verschmolz er als Symbol des ewigen Lebens und der Auferstehung.
Den vierten Teil eröffnete die Prozession des weißen Stiers in den Vorhöfen des Anbaus seines Kulttempels, der sich die weitere Prozession der Götterstatue anschloss. Im sechsten Teil schnitt die Priesterschaft feierlich vor dem weißen Stier ein Bündel Kornähren ab, um das Wohlwollen des weißen Stiers für die bevorstehende Ernte und die Erneuerung der Königsherrschaft zu erhalten.
Es folgte das Abschießen von Pfeilen und die Auflassung von Vögeln in die vier Himmelsrichtungen. Den Abschluss bildete der achte Teil der Prozession, der mit der Rückkehr der Min-Statue unter begleitenden Räucherungen und Libationen in der Tempel-Kapelle endete.
Literatur
- Arne Egberts: In quest of meaning. A study of the ancient Egyptian rites of consecrating the meret-chests and driving the calves (= Egyptologische uitgaven. Band 8). 2 Bände. Nederlands Institut voor het Nabije Oosten, Leiden 1995, ISBN 90-6258-208-7 (Zugleich: Dissertation, Universität Leiden, 1993).
- Frank Feder: Das Ritual „saha-ka-sehnet“ als Tempelfest des Gottes Min. In: Rolf Gundlach, Matthias Rochholz (Hrsg.): Feste im Tempel (= Ägypten und Altes Testament, Akten der Ägyptologischen Tempeltagungen. Teil 2). 4. Ägyptologische Tempeltagung, Köln, 10. – 12. Oktober 1996. Harrassowitz, Wiesbaden 1998, ISBN 3-447-04067-X, S. 31–54.
- Frank Feder: Gruß Dir, Min-Amun, Herr der Sehnet-Kapelle – Eine Hymne auf ihrem Weg durch die Kultgeschichte. In: Caris-Beatrice Arnst: Begegnungen – Antike Kulturen im Niltal. Festgabe für Erika Endesfelder, Karl-Heinz Prise, Walter Friedrich Reineke, Steffen Wenig. Wodtke & Stegbauer, Leipzig 2001, ISBN 3-934374-02-6, S. 111–122.
- Catherine Graindorge: Vom weißen Stier des Min zu Amenemope: Metamorphosen eines Ritus. In: Carola Metzner-Nebelsick (Hrsg.): Rituale in der Vorgeschichte, Antike und Gegenwart. Studien zur Vorderasiatischen, Prähistorischen und Klassischen Archäologie, Ägyptologie, Alten Geschichte, Theologie und Religionswissenschaft (= Internationale Archäologie. Arbeitsgemeinschaft, Symposium, Tagung, Kongress. Band 4). Interdisziplinäre Tagung vom 1.–2. Februar 2002 an der Freien Universität Berlin. Leidorf, Rahden 2003, ISBN 3-89646-434-5, S. 37–43.
- Rolf Krauss: Sothis- und Monddaten. Studien zur astronomischen und technischen Chronologie Altägyptens (= Hildesheimer ägyptologische Beiträge. Band 20). Gerstenberg, Hildesheim 1985, ISBN 3-8067-8086-X.
- Christian Leitz (Hrsg.): Lexikon der ägyptischen Götter und Götterbezeichnungen. Band 3: P – nbw (= Orientalia Lovaniensia analecta. Band 112). Peeters, Leuven u. a. 2002, ISBN 90-429-1148-4, S. 288–291.
- Herbert Ricke: Das Kamutef-Heiligtum Hatschepsuts und Thutmoses' III. in Karnak. Bericht über eine Ausgrabung vor dem Muttempelbezirk (= Beiträge zur ägyptischen Bauforschung und Altertumskunde. Band 3 und 2, ZDB-ID 503160-6). Schweizerisches Institut für Ägyptische Bauforschung und Altertumskunde, Kairo 1954.
Einzelnachweise
- ↑ Alexandre Moret, Georges Davy: Des clans aux empires. L'organisation sociale chez les primitifs et dans l'Orient ancien (= L’Évolution de l’humanité. Synthèse collective. Section 1, 6). La Renaissance du Livre, Paris 1923, S. 173–175.
- ↑ A. Egberts: In quest of meaning. Leiden 1995, S. 361.