Marie von Boschan-Aschrott Altersheim
.jpg)
Das Marie von Boschan-Aschrott Altersheim, auch Aschrott-Heim oder Aschrottheim, ist ein Altenheim in Kassel im Bundesland Hessen. Das Gebäude der 1926 gestifteten Wohlfahrtseinrichtung entstand 1929–1931 als ein Hauptwerk des Neuen Bauens und des Architekten Otto Haesler.
Lage
Das Marie von Boschan-Aschrott Altersheim liegt etwa 2,5 km westlich von der Kasseler Innenstadt entfernt im Vorort Vorderer Westen, unmittelbar östlich des von der Familie Aschrott gestifteten und in den 1890er Jahren angelegten Aschrottparks. Die Adresse des Altersheims ist Friedrich-Ebert-Straße 178, Ecke Tannenkuppenstraße.
Geschichte
Stiftung und Bezeichnung
Die Bezeichnung Marie von Boschan-Aschrott Altersheim geht auf den Privatgelehrten Paul Felix Aschrott zurück, der zwei Drittel seines Vermögens von knapp drei Millionen Reichsmark an zwei Stiftungen zugunsten der Kasseler Bürgerinnen und Bürger vermachte – der Stiftung „Dr. Aschrott Wohlfahrtshaus“ und der Stiftung „Marie von Boschan-Aschrott Altersheim“. Die Altersheim-Stiftung benannte Aschrott nach seiner 1926 früh verstorbenen jüngeren Schwester Marie von Boschan[1] und fügte seinen Familiennamen hinzu. Die Stiftung war „für alleinstehende ältere, jedoch noch bei guter Gesundheit befindliche Frauen bestimmt, die gegen ein geringes Entgelt dort wohnen und voll verpflegt werden und bedient werden“[2] sollten.
Baugeschichte
1929 führte das Kuratorium der „Stiftung Marie von Boschan-Aschrott Altersheim“ gemäß dem Stiftungszweck einen Architekturwettbewerb zum Neubau eines Altersheims und parallel dazu auch eines Wohlfahrtshauses durch. Die eingeladenen Architekten für beide Wettbewerbe waren prominent, außer Otto Haesler z. B. auch German Bestelmeyer, Walter Gropius, Ludwig Hilberseimer und Heinrich Tessenow.[3] Das Preisgericht war mit nicht minder bedeutenden Architekten besetzt, u. a. mit Paul Bonatz, Hugo Häring und Bruno Taut sowie aus der Stadtverwaltung Oberbaurat Gerhard Jobst.[3] Die Wettbewerbsbedingungen gaben auf einem begrenzten Grundstück ein Bauprogramm mit 100 Wohn- und Schlafzimmern zu 22 m² vor, wobei die Zimmer möglichst nach Süden ausgerichtet sein sollten. Ferner waren Unterkünfte für Angestellte, ein Bibliotheks- und Lesezimmer, ein Gesellschaftsraum, zwei Spielzimmer, ein Speisesaal sowie Austritte ins Freie und Veranden vorgesehen. Die Gruppierung und Höhe der Baukörper ließ man den Wettbewerbsteilnehmern frei.[2][3] Unter den 42 eingereichten Entwürfen erhielt der gemeinsame Entwurf von Otto Haesler und seinem Mitarbeiter Karl Völker den ersten Preis. Das Urteil des Preisgerichts vom 19. Dezember 1929 lautete: „Systematisch gut überlegter Entwurf, der allen Anforderungen entspricht und eine vorzügliche Durcharbeitung der Gemeinschaftsräume zeigt.“[4]
Der Entwurfsanteil von Karl Völker ist nicht geklärt[5], doch wird die Haupturheberschaft am Entwurf einhellig Otto Haesler zugeschrieben, der sich bereits 1928 als Jurymitglied für ein Altersheim in Frankfurt am Main intensiv mit dieser Bauaufgabe auseinandergesetzt hatte.[6] Am Entwurf der Inneneinrichtung war Haeslers Mitarbeiterin Katt Both beteiligt, die aus Kassel stammte.[7]
Mitte August 1930[2] begann die Bauausführung, die allgemeine Bauleitung hatte Gerhard Jobst vom Hochbauamt der Stadt Kassel[2], wobei es durch die angespannte Wirtschaftslage zu kostensparenden Anpassungen kam.[8] Die örtliche Bauleitung lag bei Architekt Worch.[2] Die Baukosten waren auf 930.000 Reichsmark limitiert.[2] Am 1. Oktober 1931 war der Südflügel bezugsfertig, und am 1. Februar 1932 der Nordflügel.[9] Die Miete für jede der 110 Wohnungen betrug ursprünglich 110 Reichsmark monatlich, einschließlich Verpflegung, Heizung und Warmwasser.[2]
Architektur-Beschreibung
.jpg)
(Hinweis: Die Beschreibung stellt den baugeschichtlich bedeutsamen, ursprünglichen Zustand dar. Das Altersheim wurde in den 1970er, 1980er und 2010er Jahren umgebaut und erheblich verändert; vgl. dazu das Kapitel „Weitere Nutzungsgeschichte, Veränderungen, Instandsetzungen“.)
Das Eckgrundstück für den Altersheimbau im Winkel zwischen Friedrich-Ebert-Straße und Tannenkuppenstraße weist eine Dreiecks-ähnliche Grundform auf. Die rechtwinklige Gebäudekonzeption war allerdings unabhängig von der Grundstücksform entwickelt und ergab sich weitgehend aus ihrem inneren Funktionszusammenhang. Das Gebäudeensemble besteht aus zwei Ost-West-orientierten fünfgeschossigen, flachgeckten Wohnflügeln, die durch einen zweigeschossigen Wirtschaftstrakt an der Westseite miteinander verbunden sind. Quer zum Nordflügel liegt die dreigeschossige Heizzentrale. Um das Gebäudeensemble herum sind zu den Straßen hin eingefriedete, tiefe Vorgärten ausgebildet. Die beiden Wohnflügel umschließen eine interne Grünfläche, die sich nach Westen zum Aschrottpark öffnet.
.jpg)
Die Südfassaden der Wohnflügel sind in einer durchgängigen Fensterfront aufgelöst, die dem Gebäude den Eindruck von Schwere und Massivität nehmen und nicht nur einen unerhörten Eindruck auf die Zeitgenossen machten, sondern auch die Architekten selbst überraschten: „(...) bei der Lösung dieser Aufgabe entwickelte sich die äußere Gestaltung zwangsweise aus den inneren Erfordernissen mannigfaltiger Art. Auch hier ergab sie sich in einer gewissen Grundsätzlichkeit, und auch wir waren überrascht von dem neuartigen Ausdruck.“[10]
Den Fassaden vorgelagert sind durchgehende Laufgänge, die zusammen mit dem ablesbaren Stahlskelett ein mehrschichtiges Raster von horizontalen und vertikalen Linien bilden. Das grafisch reizvolle Linienspiel war baukünstlerisch gewollt und wurde wegen der Perspektiv-Effekte sofort nach Fertigstellung fotografisch festgehalten und verbreitet. Die Südfassaden gehen am Ostende auf Höhe des verbindenden Wirtschaftstrakts in geschlossenere Bereiche für die dort befindlichen Treppenhäuser und Nebenräume über. In der südlichen Verlängerung des Verbindungstrakts liegt im Erdgeschoss in einem vorspringenden, niedrigen Gebäudeblock der Haupteingang an der Friedrich-Ebert-Straße.
An den zur Tannenkuppenstraße ausgerichteten Schmalseiten sind die Wohnflügel im Sockelgeschoss auf schlanke Stützen aufgeständert. Der an den Nordflügel angebaute dreigeschossige Heizflügel weist eine aufgeständerte Durchfahrt und am Nordgiebel auf sowie markante drei Schornsteine aus Metallrohren, deren ungeschöntes Erscheinungsbild in Kassel „einen Sturm der Entrüstung“[11] hervorrief.
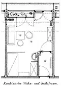
Im Gebäudeinnern sind vor allem die Wohnflügel von Interesse, deren Grundrisse im Achsraster des Stahlskeletts im Süden die Bewohnerzimmer und im Norden lange Flure zeigen. Jede Wohneinheit besteht aus einem kombinierten Wohn-Schlaf-Raum, der laut Wettbewerbsbedingungen 22 m² Fläche aufweist. Dabei ist die Fläche platzsparend in einen Flur mit Garderobe, einen Wohnraum und eine Schlafnische mit Waschbecken unterteilt. Die Südseite der Räume ist vollständig in Fensterflächen aufgelöst. Ein 50 cm tiefes Blumenfenster ragt in den Raum hinein und eine zweiflügelige Tür öffnet sich auf den schmalen Austrittsbalkon. Das Blumenkastenfenster stellte einen „bescheidenen Wintergarten“[2] dar: „Er gibt dem Raum eine heitere Stimmung, lenkt die Damen zu einer angenehmen und lebendigen Betätigung, beseitigt die Gefahr der zu starken Abkühlung und Erwärmung und gibt schließlich, zumal er bis unten durchgeführt ist, dem bescheidenen Raum eine überraschende Weite und Freiheit.“[12]
Das Gebäude ist in Stahlskelettbauweise errichtet, wobei die Binderrahmen einen Abstand von 4 m aufweisen. Außen bestehen die Wände aus Hohlziegeln, innen aus Tektonplatten und 10–12 cm starken Schwemmstein-Wänden.[9][13] Der Abstand der Stahlbinder entspricht der Breite der Wohneinheiten, die nach Otto Haesler „wie Telephonzellen zwischen den Eisenkonstruktionen hineingebaut“[14] sind.
Zur modernen Erstausstattung im Innern gehörten Radioanschlüsse in jeder Wohnung, eine „Staats- und Privattelephonanlage“, auf jedem Gang eine „Lichtsignalanlage und eine elektrische Nebenuhr“ sowie eine „Postschließfachanlage“.[15] Die Innenräume waren mit Bauhaus-Tapeten ausgestattet und mit „Thonet-Erzeugnissen“ möbliert.[16]
Baugeschichtliche Einordnung, Bedeutung und Rezeption
Das Marie von Boschan-Aschrott Altersheim gilt im Werk des Architekten Otto Haesler, der sich seit 1925 vor allem als ein internationaler Protagonist des Sozialwohnungsbaus einen Namen gemacht hatte, als sein – neben der Altstäder Schule in Celle – bedeutendster Nichtsiedlungsbau.
Haeslers Entwurf für das Altersheim in Kassel war nicht voraussetzungslos: Ein Jahr zuvor fand 1928 in Frankfurt am Main ein Architekturwettbewerb für das „Henry-und-Emma-Budge-Altersheim“ statt, in dessen Preisgericht unter Vorsitz von Ernst May auch Otto Haesler saß.[17] Dem Wettbewerb kam die Bedeutung zu, „den Typ des modernen Altersheims schlechthin zu entwickeln“.[18] Der nach Entwürfen von Mart Stam, Ferdinand Kramer, Werner Moser und Erika Habermann 1930 fertiggestellte Bau in Frankfurt und das Wettbewerbsprogramm dienten als unmittelbares Vorbild für den Kasseler Wettbewerb. Auch der Entwurf von Haesler und Völker weist viele Parallelen auf, was beispielsweise die West-Ost-Ausrichtung und die Zimmerreihung in den Wohnflügeln betrifft. Deutlich hebt sich aber der Entwurf der Celler Architekten für Kassel durch eine „Raffinesse, die jeder Symmetrie entgegenwirkt“[19] ab, durch die großen Glasfronten der Südseiten, das vielschichtige Fassadenrelief, die aufgeständerten Gebäudeteile und Eckbalkone.[20]
Wegen der großzügigen Verglasung nannte der Kasseler Volksmund das Altersheim scherzhaft „Glaspalast“ und „Tantenaquarium“.[19] Genau diesen lichten und durchsonnten Aspekt des Entwurfs beurteilten die Heimbewohnerinnen – zur Freude Haeslers – durchaus positiv: „Wir sind zufrieden hier und können es uns kaum besser wünschen. Wir fühlen uns gesund und fröhlich in unseren sonnigen Wohnungen. Sie hätten mich früher einmal sehen sollen; in den wenigen Wochen, die ich hier wohne, habe ich sogar Farbe bekommen.“[21]
Das Marie von Boschan-Aschrott Altersheim spielte in der zeitgenössischen Geschichte des Neuen Bauens Anfang der 1930er Jahre auch deswegen eine besondere Rolle, weil es auf Veranlassung von Otto Haesler von dem bedeutenden Architekturfotografen Arthur Köster abgelichtet und dann vielfach publiziert wurde.[22] So kam das soeben erst fertiggestellte Kasseler Altersheim schon im Februar/März 1932 in die von Philip Johnson kuratierte große Ausstellung „Modern Architecture“, im Museum of Modern Art (MoMA) in New York (USA). Und ebenfalls im Februar 1932 hatte der Kunsthistoriker Alexander Dorner, Direktor des Provinzialmuseums Hannover, den Altersheimbau in der renommierten Architekturzeitschrift Zentralblatt der Bauverwaltung auf neun Seiten mit acht Plänen und 13 Fotos vorgestellt. Darin lobte er den Kasseler Neubau wegen seiner „unübertroffenen Klarheit und Einfachheit“ und urteilte überschwänglich, dass man das Altersheim als „Meisterwerk“ und „nach dem Dessauer Bauhaus als den zur Zeit eindringlichsten und reinsten Repräsentanten moderner deutscher Architektur bezeichnen“[23] könne. Die Beschäftigung Dorners mit dem Werk Otto Haeslers war dann zudem Anlass für sein Engagement als Präsident des Hannoverschen Kunstvereins Kestner-Gesellschaft. Dort veranstaltete er zusammen mit seinem Kurator Justus Bier im Mai 1932 die erste Werkschau zu Otto Haesler, wobei das Altersheim in Kassel das Titelblatt des Kataloghefts zierte und das am ausführlichsten dargestellte Bauwerk war.[24]
- Bildergalerie: Pläne 1932
-
Lageplan, Norden ist rechts (1932) -
Erdgeschoss-Grundriss, Norden ist rechts (1932) -
Grundriss erstes Obergeschoss, Norden ist rechts (1932) -
Grundriss Wohn-/Schlafzimmer, Norden ist unten (1932)
- Bildergalerie: Das Aschrott-Heim 1932
-
Nord- und Südflügel von Südwesten (1932) -
Gesamtansicht von der Rückseite, Nordosten (1932) -
Heizungsflügel von Westen (1932) -
Eingangshalle (1932) -
Blick aus dem Flur des Verbindungsflügels nach Westen (1932) -
Flur des Verbindungsflügels (1932) -
Flur des Wohnflügels mit Lichtzeichenanlage (1932) -
Wohn-Schlafraum, Blick nach Süden (1932)
Weitere Nutzungsgeschichte, Veränderungen, Instandsetzungen
1935 wurden Markisen als Sonnenschutz an den Südfassaden angebracht, die dem Erscheinungsbild des Gebäudes eine zusätzliche Leichtigkeit verliehen.[25] Das NS-Regime erzwang eine Umbenennung der Stiftung des jüdischen Mäzens Aschrott und des Altenheims, die fortan „Tannenkuppen-Stiftung“ und „Tannenkuppenheim“ hießen.[25] Die Inschrift „Marie von Boschan Aschrott Stiftung“ über dem Eingang des Altersheims wurde nachts heruntergeschlagen.[25]
Im Zweiten Weltkrieg kam es zu Umnutzungen für städtische Dienststellen. Nach der Einnahme Kassels am 4. April 1945 durch US-Truppen wurde das Altersheim zum amerikanischen „Hotel Waldorf“ umgenutzt, das damit warb, eine ideale Zwischenstation für Amerikaner auf dem Weg von Bremerhaven in die im Süden Deutschlands gelegene amerikanische Besatzungszone zu sein.[26] Von hier aus sendete bis 1957 auch der US-Soldatensender American Forces Network (AFN) und versorgte seine Zuhörer im Raum Kassel, Rothwesten und Fritzlar mit dem Programm seines Frankfurter Senders.[26] In die Zeit der Hotelnutzung fiel auch der Vorschlag der Stadt Kassel 1948/1949 bei der Bewerbung der Stadt Kassel als Sitz der Bundesregierung, das Gebäude für die Unterbringung von Besuchern oder auch Abgeordneten zu nutzen.[25]
Erst 1958/1959 gelang die Rückgabe des Gebäudes an die Stiftung für den ursprünglichen Zweck.[26] Die Wiederherstellung als Altersheim ging mit einer Renovierung bis 1960 durch das Architekturbüro Catta & Groth (Kassel) einher.[25] Dabei wurden Teile der weiß verputzten Fassade mit grauen Keramikfliesen versehen. In den 1970er Jahren wurden die Aufständerungen an den Westfassaden geschlossen[27] und 1981 die originalen mehrteiligen Holzfenster durch neue Aluminiumfenster ersetzt; die Blumenfenster verschwanden, ebenso teilweise die Markisen.[25] Weitere Veränderungen Ende der 1980er-Jahre wurden in der Fachpresse kritisiert[28], nachdem das Marie von Boschan-Aschrott Altersheim unterdessen 1977[27] unter Denkmalschutz gestellt worden war. Anfang der 2000er-Jahre kam es zu einer Fassadensanierung mit Beteiligung der Denkmalpflege.[27]
Nochmals durchgreifende Veränderungen durch Modernisierungen und Umbauten des Altbaus erfolgten 2015–2017 vor dem Hintergrund neuerer Anforderungen für altersgerechtes Wohnen, wobei auch die gesamte Außenhülle nach Vorschrift der Energieeinsparverordnung energetisch ertüchtigt wurde. Die Planungen verantwortete das Architekturbüro Rolf Jentzsch und Partner (Kassel). Wesentlicher Teil des Projekts war ein angefügter viergeschossiger Erweiterungsbau direkt an die gesamte Nordseite des südlichen Wohnflügels. Dort sind u. a. Etagenspeiseräume und Personalstationen untergebracht. In die ehemaligen Erschließungsflure des Baus von 1932 kamen neue behindertengerechte Duschbäder. Zuvor mussten die Bewohnerinnen noch Gemeinschaftsbäder aufsuchen.[25] Der finanzielle Gesamtaufwand der im laufenden Altersheim-Betrieb durchgeführten Maßnahmen betrug 6.030.000 Euro.[29][30]
Trotz Beteiligung der Denkmalpflege bei den letzten Maßnahmen[31] haben die Um- und Anbauten den Ursprungsbau von 1932 stark verändert, so dass die ursprüngliche Transparenz und Leichtigkeit der Bauten und ihrer Fassaden nicht mehr vollumfänglich erlebbar sind.
- Bildergalerie: Das Aschrott-Heim 2017
-
Gesamtaufnahme von Südwesten (2017) -
Südlicher Wohnflügel von Südwesten (2017) -
Südlicher Wohnflügel von Südwesten, mit Anbau (2017) -
Südlicher Wohnflügel von Südosten (2017) -
Eingangsbau (2017) -
Detail: Eckbalkone am nördlichen Wohnflügel (2017)
Das Aschrott-Heim heute
2024 ist das Aschrott-Altersheim wie schon 1932 entsprechend den Stiftungsbestimmungen noch immer ein Altenheim für ältere Frauen. Neben der vollstationären Dauerpflege werden auch Angebote im Bereich der Kurzzeitpflege angeboten.[32][33] Der Träger, die Marie von Boschna Aschrott-Altersheim-Stiftung,[32] ist eine rechtsfähige Stiftung des privaten Rechts im Sinne des Hessischen Stiftungsgesetzes. Sie wird vertreten durch das Kuratorium und die Geschäftsführung der Aschrott’schen Stiftungen. Die Stiftung ist gemeinnützig, zuständige Aufsichtsbehörde ist das Regierungspräsidium Kassel.[32]
Im Eingangsbereich des Altersheims wird mit gerahmten Schwarzweißfotos des Stifters Felix Aschrott und der Namensgeberin Marie von Boschan gedacht.
Sonstiges
Kurz vor dem Bau des Marie von Boschan-Aschrott Altersheims war im Sommer 1929 in Kassel im Ortsteil Kirchditmold mit dem Bau der von Haesler und Völker entworfenen Rothenbergsiedlung begonnen worden.
Gleichzeitig mit dem Marie von Boschan-Aschrott Altersheim fand Ende 1929 auch ein Architekturwettbewerb zum Aschrott-Wohlfahrtshaus in der Innenstadt von Kassel statt, an dem sich dieselben Architekten beteiligten. Haesler und Völker gewannen den zweiten Preis und sollten den Bau zusammen mit dem erstplatzierten Architekturbüro Sichel & Leers (Kassel) ausführen, was jedoch nicht geschah; das jetzige Dr. Aschrott-Wohlfahrtshaus an der Fuldabrücke entstand erst 1954–1955 nach Plänen der Kasseler Architekten Cotta & Groth.[34]
Literatur (chronologisch)
- Alexander Dorner: Altersheim in Kassel. Architekten Otto Haesler und Karl Völker, Celle. In: Zentralblatt der Bauverwaltung, vereinigt mit Zeitschrift für Bauwesen, 52. Jahrgang 1932, Nr. 9 (vom 24. Februar 1932), S. 97–105.
- Modern Architecture. International Exhibition. Ed. The Museum of Modern Art New York, February 10 to March 23, 1932. Director of the Exhibition: Philip Johnson. (Ausstellungskatalog, Digitalisat, abgerufen am 7. März 2021), S. 26, S. 192 f.
- Otto Haesler: Mein Lebenswerk als Architekt. Berlin (Ost) 1957, S. 72–80. (mit Abbildungen und Plänen der 1930er Jahre)
- Aschrott-Heim in Kassel wird saniert. In: Bauwelt, Jahrgang 1988, Heft 34, S. 456.
- Ronald Kunze (Hrsg.): Otto Haesler. Modelle sozialen Wohnens 1924–1934. (Ausstellungskatalog, Band II zur Rothenbergsiedlung und zum Marie-von-Boschan-Aschrott-Altersheim in Kassel) Kassel 1990, S. 79 ff., S. 142 f. (umfangreiche Bibliografie)
- Benedikt Hotze: Vom Bauhaus zur Pflegeversicherung. Das Aschrott-Heim in Kassel zwischen Denkmalpflege und Nutzungsanforderungen. In: Bauwelt vom 18. Mai 2000. (Abschrift, abgerufen am 7. April 2021) (Kritisch zu den Umbauten ab 1977 unter Architekt August Engel)
- Simone Oelker: Otto Haesler. Eine Architektenkarriere in der Weimarer Republik. Dölling und Galitz Verlag, München 2002, ISBN 3-935549-15-6, S. 122–128 und S. 303–304 (WV 107). (mit historischen Fotos und Grundrissen)
- Wolfgang Pehnt: Durch kunstgerechte Schläge das Gefüge der Moderne schaffen. In: Frankfurter Allgemeine Zeitung vom 1. August 2002, abgerufen am 9. März 2021. (Der Auftakt dieser Buchbesprechung zu Oelker 2002 beschreibt Nachkriegszeit-Jugenderinnerungen des aus Kassel stammenden Autors zum Altersheim.)
- Berthold Hinz, Andreas Tacke (Hrsg.): Architekturführer Kassel. Dietrich Reimer Verlag, Berlin 2002, S. 76 (Nr. 109, Autorin: Katrin Kramer).
- Landesamt für Denkmalpflege Hessen (Hrsg.), Thomas Wiegand (Bearb.): Stadt Kassel II. (= Denkmaltopographie Bundesrepublik Deutschland, Kulturdenkmäler in Hessen, Band 38.) Theiss, Stuttgart 2005, ISBN 3-8062-1989-3, S. 228.
- Eckart Rüsch: Die Ausstellung „Bauten von Otto Haesler“ 1932 in der Kestner-Gesellschaft Hannover. „… Gelegenheit, das Werk eines der umkämpftesten Architekten kennenzulernen“. (= Schriftenreihe der Otto-Haesler-Gesellschaft, Heft 3.) Celle 2019, ISBN 978-3-948087-01-2, S. 9, S. 14, S. 17–18, S. 45, S. 59.
Weblinks
- Marie von Boschan Aschrott-Altersheim-Stiftung, Offizielle Webseite, abgerufen am 7. Januar 2023 (ohne baugeschichtlichen Bezug)
- Marie-von-Boschan-Aschrott-Altersheim, auf der Internetseite der otto-haesler-initiative, abgerufen am 7. März 2021. (mit historischem Erdgeschoss-Grundriss und Foto von 2000)
- Aschrott-Heim, auf geowest, abgerufen am 7. März 2021
- Aschrott-Heim, auf nextroom, abgerufen am 9. März 2021
- Residencia de ancianos de la fundación Marie von Boschan Aschrott, auf UrbiPedia, abgerufen am 9. März 2021 (spanischsprachige Seite mit historischen Fotos und Plänen)
- Historisches Luftbild aus den 1930er Jahren, auf geowest, abgerufen am 9. März 2021
- Foto von 1934, auf Digit/Ein Projekt des WDR, abgerufen am 7. März 2021
- Flaggenstreit um das Aschrottheim, 1937, auf geowest, abgerufen am 7. März 2021 (mit Foto von 1937)
Einzelnachweise
- ↑ Knappe Angaben zu Marie von Boschan geb. Aschrott auf der Internetseite geowest.vorderer-westen, abgerufen am 8. März 2021.
- ↑ a b c d e f g h Zitiert nach A[lexander] Dorner: Altersheim in Kassel. Architekten Otto Haesler und Karl Völker, Celle. In: Zentralblatt der Bauverwaltung, vereinigt mit Zeitschrift für Bauwesen, 52. Jahrgang 1932, Nr. 9 (vom 24. Februar 1932), S. 97–105, hier S. 97.
- ↑ a b c Simone Oelker: Otto Haesler. Eine Architektenkarriere in der Weimarer Republik. Dölling und Galitz Verlag, München 2002, ISBN 3-935549-15-6, S. 123.
- ↑ Zitiert nach Simone Oelker: Otto Haesler. Eine Architektenkarriere in der Weimarer Republik. Dölling und Galitz Verlag, München 2002, ISBN 3-935549-15-6, S. 123.
- ↑ Zur Zusammenarbeit von Haesler und Völker siehe: Simone Oelker: Otto Haesler. Eine Architektenkarriere in der Weimarer Republik. Dölling und Galitz Verlag, München 2002, ISBN 3-935549-15-6, S. 64 f.
- ↑ Simone Oelker: Otto Haesler. Eine Architektenkarriere in der Weimarer Republik. Dölling und Galitz Verlag, München 2002, ISBN 3-935549-15-6, S. 122 f.
- ↑ Corinna Isabel Bauer: Architekturstudentinnen in der Weimarer Republik. Bauhaus- und Tessenow-Schülerinnen. Universitätsbibliothek Kassel, Kassel 2010, Dissertation Univ. Kassel 2003 (falsches Datum 2010 im DNB-Katalog) (Digitalisat, abgerufen am 24. März 2021), S. 330–332, hier S. 331.
- ↑ Simone Oelker: Otto Haesler. Eine Architektenkarriere in der Weimarer Republik. Dölling und Galitz Verlag, München 2002, ISBN 3-935549-15-6, S. 123 f. und S. 137. (Entwurfsänderungen in Anmerkung 99 aufgezählt)
- ↑ a b Simone Oelker: Otto Haesler. Eine Architektenkarriere in der Weimarer Republik. Dölling und Galitz Verlag, München 2002, ISBN 3-935549-15-6, S. 303.
- ↑ Otto Haesler: Mein Lebenswerk als Architekt. Berlin (Ost) 1957, S. 79.
- ↑ Otto Völckers 1932, zitiert nach Simone Oelker: Otto Haesler. Eine Architektenkarriere in der Weimarer Republik. Dölling und Galitz Verlag, München 2002, ISBN 3-935549-15-6, S. 125.
- ↑ Zitiert nach A[lexander] Dorner: Altersheim in Kassel. Architekten Otto Haesler und Karl Völker, Celle. In: Zentralblatt der Bauverwaltung, vereinigt mit Zeitschrift für Bauwesen, 52. Jahrgang 1932, Nr. 9 (vom 24. Februar 1932), S. 97–105, hier S. 97/101.
- ↑ Anders beschrieben rückblickend bei Otto Haesler: Mein Lebenswerk als Architekt. Berlin (Ost) 1957, S. 77: „Diejenigen Außenwände, die nicht so stark in Glas aufgelöst sind, sind mit Hohlziegel ausgefacht und edelverputzt, nach innen mit Heraklith-Platten verkleidet.“
- ↑ Otto Haesler: Mein Lebenswerk als Architekt. Berlin (Ost) 1957, S. 77.
- ↑ Simone Oelker: Otto Haesler. Eine Architektenkarriere in der Weimarer Republik. Dölling und Galitz Verlag, München 2002, ISBN 3-935549-15-6, S. 126 und S. 303.
- ↑ Simone Oelker: Otto Haesler. Eine Architektenkarriere in der Weimarer Republik. Dölling und Galitz Verlag, München 2002, ISBN 3-935549-15-6, S. 126 f.
- ↑ Simone Oelker: Otto Haesler. Eine Architektenkarriere in der Weimarer Republik. Dölling und Galitz Verlag, München 2002, ISBN 3-935549-15-6, 122 f.
- ↑ Werner Möller, 1997; zitiert nach Simone Oelker: Otto Haesler. Eine Architektenkarriere in der Weimarer Republik. Dölling und Galitz Verlag, München 2002, ISBN 3-935549-15-6, S. 123.
- ↑ a b Simone Oelker: Otto Haesler. Eine Architektenkarriere in der Weimarer Republik. Dölling und Galitz Verlag, München 2002, ISBN 3-935549-15-6, S. 128.
- ↑ Simone Oelker: Otto Haesler. Eine Architektenkarriere in der Weimarer Republik. Dölling und Galitz Verlag, München 2002, ISBN 3-935549-15-6, S. 127 f.
- ↑ Otto Völckers 1932, zitiert nach Simone Oelker: Otto Haesler. Eine Architektenkarriere in der Weimarer Republik. Dölling und Galitz Verlag, München 2002, ISBN 3-935549-15-6, S. 128. - Die Anekdote nacherzählt auch bei Otto Haesler: Mein Lebenswerk als Architekt. Berlin (Ost) 1957, S. 80.
- ↑ Eckart Rüsch: Die Ausstellung „Bauten von Otto Haesler“ 1932 in der Kestner-Gesellschaft Hannover. „… Gelegenheit, das Werk eines der umkämpftesten Architekten kennenzulernen“. (= Schriftenreihe der Otto-Haesler-Gesellschaft, Heft 3.) Celle 2019, ISBN 978-3-948087-01-2, S. 52.
- ↑ Alle drei Zitate nach A[lexander] Dorner: Altersheim in Kassel. Architekten Otto Haesler und Karl Völker, Celle. In: Zentralblatt der Bauverwaltung, vereinigt mit Zeitschrift für Bauwesen, 52. Jahrgang 1932, Nr. 9 (vom 24. Februar 1932), S. 97–105, hier S. 105.
- ↑ Eckart Rüsch: Die Ausstellung „Bauten von Otto Haesler“ 1932 in der Kestner-Gesellschaft Hannover. „… Gelegenheit, das Werk eines der umkämpftesten Architekten kennenzulernen“. (= Schriftenreihe der Otto-Haesler-Gesellschaft, Heft 3.) Celle 2019, ISBN 978-3-948087-01-2, S. 9, S. 14, S. 17–18, S. 45, S. 59.
- ↑ a b c d e f g Aschrott-Park / Aschrott-Heim. In: geowest.vorderer-westen.net. Geo West, Uni Kassel – Fachgebiet Wirtschaftsinformatik, 3. März 2015, abgerufen am 8. März 2021.
- ↑ a b c Die Amerikaner im Vorderen Westen. In: vorderer-westen.net. Kassel-West e.V., abgerufen am 12. Januar 2025 (mit zwei zeitgenössischen Hotelfotos).
- ↑ a b c Simone Oelker: Otto Haesler. Eine Architektenkarriere in der Weimarer Republik. Dölling und Galitz Verlag, München 2002, ISBN 3-935549-15-6, S. 304.
- ↑ Carsten Hettwer, Monika Markgraf: Modernisierung ohne Moderne. Zur Sanierung des Marie-von-Boschan-Aschrott-Heims in Kassel von Otto Haesler, 1929. In: Werk, Bauen + Wohnen, Band 75 (1988), Heft 7/8, S. 12–13. (Digitalisat auf e-periodica.ch, abgerufen am 24. Januar 2023.)
- ↑ Aschrott-Altenpflegeheim. RJ Planungsbüro GmbH & Co. KG, abgerufen am 8. März 2021.
- ↑ Aschrott Pflege Heim Kassel, Umbau und Erweiterung eines Pflegeheims. EHS beratende Ingenieure für Bauwesen GmbH, abgerufen am 8. März 2021.
- ↑ Benedikt Hotze: Vom Bauhaus zur Pflegeversicherung. Das Aschrott-Heim in Kassel zwischen Denkmalpflege und Nutzungsanforderungen. In: Bauwelt vom 18. Mai 2000. (Abschrift, abgerufen am 7. April 2021)
- ↑ a b c Über uns und Impressum. In: aschrottheim.de. Marie von Boschan-Aschrott-Altersheim-Stiftung, abgerufen am 20. Juli 2024.
- ↑ Marie von Boschan Aschrott‐Altersheim‐Stiftung. In: kassel.de. Abgerufen am 20. Juli 2024.
- ↑ Simone Oelker: Otto Haesler. Eine Architektenkarriere in der Weimarer Republik. Dölling und Galitz Verlag, München 2002, ISBN 3-935549-15-6, S. 304 f.
Koordinaten: 51° 19′ 0,7″ N, 9° 27′ 13,6″ O