Lutherkirche (Barmen)


Die Lutherkirche ist eine evangelische Kirche an der Oberen Sehlhofstraße am Heidt im Wuppertaler Stadtteil Heckinghausen. Als Lutherkirche Heidt ist sie nach den Schließungen der Alten Wupperfelder Kirche und der Hatzfelder Kirche eine der beiden letzten verbliebenen Predigtstätten der Evangelischen Kirchengemeinde Gemarke-Wupperfeld im Kirchenkreis Wuppertal der Evangelischen Kirche im Rheinland.
Die Kirche ist eines der markantesten Gebäude im Stadtteil. Ihr Turm ist aufgrund der Hanglage der Kirche vom Tal aus weithin sichtbar. Die Kirche steht unter Denkmalschutz, ebenso wie das unmittelbar angrenzende Gemeindehaus und das Pfarrhaus, die aber jeweils eine eigene Denkmalnummer haben.
Baubeschreibung

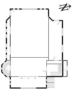
Die Kirche ist eine neoromanisch-neoklassizistische Hallenkirche. Das 30 Meter lange Kirchenschiff ist mit dem Chor nach Westen ausgerichtet. An der Nordseite des Schiffs befindet sich ein querhausähnlicher Anbau, dessen Breite zwei Jochen entspricht. Die Ostseite des Kirchenschiffs überragt mit den Emporen einen überdachten Eingangsbereich, der von Norden mit einer Treppe und von Süden ebenerdig betreten werden kann. Bekrönt wird der Turm von einer vergoldeten Kugel, auf der ein Kreuz mit Speer und Ysop steht. Bezug nehmen soll dies auf Johannes 19,28-34 und findet in dieser Darstellung auch Verwendung im bis 2008 verwendeten Siegel der Gemeinde. Der 46 Meter hohe Kirchturm ist der Kirche an der Nordseite seitlich vorgesetzt, der Turmeingang ist mit einem Mosaik von Gustav Wiethüchter mit dem Bildnis Martin Luthers und dem Liedvers „Ein feste Burg ist unser Gott“ geziert. Jener Liedvers soll auf die gewollte „burgartige“ Wirkung der Kirche hinweisen, die sich durch die zwei talwärts gelegenen Giebel und die zinnenartigen Abtreppungen auf allen Giebeln ergibt. Dieser Eindruck wird verstärkt durch die rustizierten Werksteine im Untergeschoss, an den Gebäudekanten und an den Fenstereinfassungen.
Der fünfzehn Meter hohe Innenraum ist vollständig aus Ortbeton erbaut. Die von Anfang an hell gestrichene Kassettendecke sollte im Zusammenspiel mit den hellen Farben der Kirchenfenster, insbesondere der West- und Ostrosette, den Eindruck eines „freundlichen“ und offenen Kirchenraums erwecken. Der den Übergang von Kirchsaal und Chor markierende Triumphbogen war ursprünglich mit einer bunten Ausmalung im Jugendstil gestaltet, die nach dem Zweiten Weltkrieg allerdings nicht wiederhergestellt wurde. Dominiert wurde die Ausmalung von dem Zitat aus Psalm 36,10 „Bei dir ist die Quelle des Lebens und in deinem Lichte sehen wir das Licht“. Die Kirchenbänke sind asymmetrisch angeordnet und ermöglichen 900 Besuchern die Teilnahme am Gottesdienst. Die Anordnung ermöglicht darüber hinaus bei weniger starkem Andrang auch eine enger zusammengerückte Gemeinde im Kirchenschiff selbst.
Glocken
Die Glocken sind aus Gussstahl und wurden 1911 vom Bochumer Verein hergestellt. Zu jener Zeit war das Geläut der Lutherkirche damit das erste Geläut dieser Art in Wuppertal und musste aufgrund des Materials im Zweiten Weltkrieg, anders als die damals üblichen Bronzeglocken, nicht abgegeben werden. So ist der gesamte Glockenstuhl noch heute nahezu unverändert erhalten geblieben, die Glocken selbst sind die ältesten noch in Benutzung befindlichen Stahlglocken in ganz Wuppertal.[Anmerkung 1]
| Schlagton | Durchmesser (mm) | Inschrift | Gießer | Gussjahr |
|---|---|---|---|---|
| a° | 1870 | Ein feste Burg ist unser Gott | Bochumer Verein | 1911 |
| c¹ | 1580 | Der Herr ist mein Macht und mein Psalm und mein Heil | Bochumer Verein | 1911 |
| es¹ | 1320 | Das Wort sie sollen lassen stahn | Bochumer Verein | 1911 |
Motiv: verminderter Dreiklang / Tritonus
Geschichte
Planung
Wegen des steten Anwachsens der lutherischen Gemeinde Wupperfeld wurde 1887 ein eigener Pfarrbezirk für den Heidt geschaffen, dessen Mitglieder sich ab dem 16. Juni 1901 regelmäßig im angemieteten Kirchsaal Albertstraße 10 trafen, der allerdings nahezu jeden Sonntag vollständig überfüllt war, da die Gemeinde Wupperfeld mittlerweile auf 42.000 Mitglieder angewachsen war. Der noch junge Pfarrbezirk Heidt wurde zur Erleichterung der seelsorgerischen Arbeit in einen Nord- und Südteil aufgespalten, wobei der nördliche Heidt als Hilfspredigerbezirk ausgelegt wurde. 1906 wurde genau an der Schnittstelle des Nord- und Südbezirks der Neubau eines Gotteshauses zwischen der im Krieg zerstörten Johanniskirche und der Straße Fischertal beschlossen. Der persönliche Einsatz von Kirchmeister Geß ermöglichte die Genehmigung eines Presbyteriumsbeschlusses zur zeitgleichen Errichtung eines Pfarrhauses und eines umfangreichen Gebäudekomplexes zur Gemeindearbeit. Schon im Februar des Jahres wurde eine Anleihe in Höhe von 300.000 Mark bei der Barmer Sparkasse beschlossen und das Grundstück an der Oberen Sehlhofstraße gekauft.
Für die Bauentwürfe wurde ein Architektenwettbewerb unter den Architekten der Rheinprovinz, der Provinz Westfalen und des Großherzogtums Hessen ausgelobt. Vorgaben waren unter anderem mindestens 750 Sitzplätze, davon höchstens ein Drittel auf Emporen, ein Kirchturm und ein zweigeschossiges Pfarrhaus mit neun Schlafzimmern und Küche sowie vier bis fünf Zimmern im Dachgeschoss. Für das Gemeindehaus wurden eigene Vorgaben gestellt, so unter anderem zwei große Säle, zwei Konfirmandenräume mit Raum für Schulbankbestuhlung und den nötigen Nebenräumen, eine Küsterwohnung sowie ein Wohn- und drei Schlafzimmer für Diakonissinnen. Als Preisgeld waren 5.500 Mark ausgesetzt. Insgesamt wurden 98 Entwürfe eingereicht. Den 1. Preis gewann der Entwurf mit dem Motto „Im Stadtbild“ des Architekten Ernst Müller in Mülheim am Rhein. Allerdings berichtet die Festschrift von 1911, dass seitens der Baukommission keiner der eingereichten Entwürfe „als unmittelbar für die Ausführung geeignet befunden“ wurde. Einzig Müllers Entwurf wurde aufgrund seiner „Gesamtdisposition“ des Gebäudeensembles von Pfarrhaus, Kirche und Gemeindehaus als der zweckmäßigste empfunden. Da man allerdings das noch junge Alter Müllers als Hindernis zur fachgerechten Ausführung des Baus sah, wurde ein zweiter engerer Wettbewerb unter den beiden erfolgreichen Barmer Architekten Wilhelm Werdelmann (der im ersten Wettbewerb den 3. Preis gewonnen hatte) und Peter Klotzbach unter Zugrundelegung von Ernst Müllers Entwurf veranstaltet. Dabei setzte sich der Entwurf Wilhelm Werdelmanns durch.
Bau

Die Durchführung stieß schon am Anfang auf erste Probleme. So reichten die ursprünglich vorgesehenen 300.000 Mark laut einer ersten Kostenaufstellung nicht aus, und die Gemeindemitglieder mussten um Spenden gebeten werden. Weitere Gelder wurden zusätzlich aufgenommen, was allerdings aufgrund der damaligen Zinssteigerung nicht einfach war. Dennoch gelang es Kirchmeister Geß, genügend Gelder für die Bauvorhaben auf dem Heidt und ein Gemeindehaus im Bezirk Friedenskirche zu organisieren, ohne dass die damals noch von den Gemeinden selbstständig festgelegte Kirchensteuer auch nur um ein Prozent angehoben werden musste. Im März 1909 wurde der erste Spatenstich getan, doch zur Grundsteinlegung kam es erst nach Vervollständigung des Kellergewölbes. Grund dafür waren das durch schlechte Wetterbedingungen aufgeweichte Terrain und die Unwegsamkeit des Bauplatzes. Dies führte dazu, dass der Grundstein nicht im Boden verborgen ist, sondern noch heute offen unter dem Altar betrachtet werden kann. Die Inschrift lautet „Allein durch den Glauben – 24. März 1909“.
Bereits am Jahresende 1909 wurde an allen drei Gebäuden das Richtfest gefeiert. Allerdings stockten die Arbeiten im Innenraum, da die Putzer einen Lohnstreik ausriefen. Immerhin waren die Wohnungen der Gemeindeschwestern zum 1. Oktober 1910 bezugsfertig, Anfang November konnte mit dem Heidter Frauenfest die erste Veranstaltung im Gemeindehaus gefeiert werden. Am 1. Februar 1910 war auch das Pfarrhaus bezugsfertig, während die Bauarbeiten an der Kirche selbst sich dem Ende zuneigten. Trotz der schwierigen Lage des Baugeländes und des aufgrund der Hanglage äußerst umständlichen Materialtransports ereignete sich während der gesamten Bauzeit kein größerer Unfall. Auch die Kosten blieben im Rahmen und waren gerade einmal vier Prozent höher als geplant, wobei Pfarr- und Gemeindehaus sogar unterhalb des Voranschlags blieben. Aus den ursprünglich vorgesehenen 395.400 Mark wurden insgesamt 410.990 Mark. Der Hauptgrund für die höheren Baukosten waren vor allem eine Heizerwohnung unterhalb des Kirchsaals sowie das in Kupferblech eingedeckte Rhombendach des Kirchturms. Auch das Geläut wurde größer als vorgesehen ausgeführt und bekam eine Läutemaschine. Insgesamt flossen 68.900 Mark an Spenden in den Bau.
Am 7. März 1911 konnte die Gemeinde schließlich mit einem feierlichen Festzug vom Gemeindehaus aus in die Kirche einziehen. Die erste Altarbibel war ein persönliches Geschenk der Kaiserin Auguste Viktoria und wurde von ihr mit dem Spruch „Das ist die Freudigkeit, die wir haben sollen, daß wir, so wir etwas bitten nach seinem Willen, so höret er uns“ aus 1 Joh 5,14 signiert. Im Anschluss an den Gottesdienst wurde zu einem Festessen in die Barmer Stadthalle eingeladen.
Die Kirche blieb in den ersten Jahren des Zweiten Weltkriegs nahezu vollkommen unbeschädigt, erst während der Luftangriffe auf Wuppertal am 30. Mai 1943 wurde die Lutherkirche von mehreren Brandbomben schwer getroffen. Die durch das Dach des seitlichen Querhauses eingeschlagenen Brandbomben setzten innerhalb weniger Minuten die gesamte hölzerne Innenausstattung in Brand. Küster August Winter organisierte in kürzester Zeit eine Eimerkette zur Rettung der Lutherkirche, ungeachtet der Tatsache, dass im selben Moment das Gemeindehaus mitsamt seiner Wohnung den Flammen zum Opfer fiel. Danach diente die Kirche als erste Anlaufstelle für die Hinterbliebenen der Opfer, wo die verbliebenen Presbyteriumsmitglieder eine notdürftige Seelsorge einrichteten. Die beiden Pfarrer selbst wurden zur Betreuung der Verstreuten nach Thüringen und Mainfranken geschickt.
Die stets umfangreiche kirchenmusikalische Arbeit konnte sogar während der Kriegszeit aufrechterhalten werden. Zwischen den Fliegeralarmen wurden bis Kriegsende kleinere Orgelkonzerte gegeben, und auch in den ersten Friedensjahren stellte man bis zum Beginn der großen Sanierungsarbeiten die Konzertarbeit nicht ein, was einzigartig in Wuppertal war. Zudem diente die Lutherkirche für kurze Zeit als Veranstaltungsort für die Trauerfeiern der Beisetzungen auf dem Friedhof an der Heckinghauser Straße, da die dortige Friedhofskapelle (Stephanuskapelle) unbenutzbar war, bis man aufgrund der Distanz zum Friedhof die Trauerfeiern direkt am Friedhof unter freiem Himmel stattfinden ließ.
Am 13. März 1945 wurde schließlich auch die katholische Kirche Sankt Elisabeth an der Hebbelstraße schwer getroffen, und der katholischen Gemeinde wurde gestattet, erstmals ihre Gottesdienste in der Lutherkirche abzuhalten. Dieses Ereignis galt als der Grundstein des ökumenischen Gemeindelebens am Heidt, das bereits früh in der Nachkriegszeit im Vergleich zu den anderen Gemeinden Barmens einen hohen Stellenwert hatte. Noch heute wird seitdem jedes Jahr zur Osternacht die neue Osterkerze durch einen Vertreter der Katholischen Kirchengemeinde von St. Elisabeth in die Lutherkirche getragen und dort von Vertretern beider Konfessionen angezündet, eine Tradition wie sie nur in wenigen Gemeinden der Evangelischen Kirche im Rheinland üblich ist und in anderen Gemeinden erst spät aufkam.
Die Gemeinde nach dem Zweiten Weltkrieg

Zur Sammlung der Gemeinde nach Kriegsende wurde als höchste Priorität die Beendigung des Kirchenkampfs angesehen, und am 30. April 1945 beschloss das Presbyterium Alt-Wupperfelds einstimmig, sich der evangelischen Bekenntnissynode im Rheinland unterzuordnen. Die Gottesdienste wurden ohne Unterbrechung fortgeführt, nunmehr auch mit den Besuchern der Gemeinden Wupperfeld, Gemarke und vereinzelt auch der Gemeinde der Friedenskirche. Die seit 1939 eingestellten Kindergottesdienste konnten ab dem 29. April 1945 wieder mit großem Erfolg fortgeführt werden.
Schon 1947 war das Lutherheim notdürftig hergerichtet, 1955 wurden die letzten Wiederherstellungsmaßnahmen beendet. Die Sanierung des Dachs der Lutherkirche begann 1947, 1955 begannen schließlich die Arbeiten des aufgrund des Phosphorbrands schwer beschädigten Innenraums. Die prächtige Ausmalung des Innenraums wurde durch schlichte Elemente ersetzt, wobei insbesondere der Wandteppich an der Nordseite des Triumphbogens zu erwähnen ist. Dieser nimmt den zerstörten Spruch aus Psalm 36,10 auf, der neue Taufstein wurde komplett aus Altmühltal-Marmor gehauen. Wandteppich und Taufstein wurden beide von einem ehemaligen Gemeindemitglied gestiftet. Zur Verbesserung der Akustik wurde über der Kanzel ein Schalldeckel installiert, der die Schallführung allerdings nicht maßgebend beeinflusste, diese Situation änderte sich erst 22 Jahre später mit Einbau einer qualitativen Beschallungsanlage. Die letzten Sanierungsarbeiten wurden zum fünfzigjährigen Jubiläum der Lutherkirche am 5. März 1961 offiziell für beendet erklärt.
Anfang der 1980er Jahre mussten erneut Schäden am gesamten Gebäudeensemble beseitigt werden. Diese waren zwar teils bereits seit über zehn Jahren bekannt, allerdings konnten die Sanierungsarbeiten aus finanziellen Gründen erst nach Verkauf des Bezirkszentrums Oberwall 50 und dessen kompletter Ausstattung 1974 geplant werden. Das Lutherheim erhielt erstmals ein festes Ziegeldach und die ehemalige Heizerwohnung unter der Kirche wurde mitsamt den weiteren Kellerräumen zu mehreren Jugendräumen zusammengefasst. Jene waren bereits seit Kriegsende provisorisch in Benutzung, allerdings noch ohne fachgerechte Ausstattung und Heizung. 1981 wurden in einem ersten Bauabschnitt Schäden am Westgiebel, am Turm und an der gesamten Südseite des Kirchenschiffs und 1982 Schäden an der Ostseite behoben. Die Eingangshalle musste 1983 vollständig erneuert werden, da die Bodenträger allesamt durchgerostet waren. Im Anschluss wurden das Pfarrhaus saniert und der Dachstuhl der Kirche konserviert, es folgten Arbeiten an der Südwand und die Ausbesserung kleinerer Schäden an den großen Fensterrosetten. Die Arbeiten wurden ausgeführt durch das Essener Architekturbüro Filz. Zur Finanzierung der noch anstehenden Arbeiten wurde erstmals der Verkauf eines der bis dato noch zwei Pfarrhäuser erwogen, worauf sogar die Streichung einer Pfarrstelle hätte folgen können. doch der Gemeindeverband Wupperfeld stellte der Lutherkirchengemeinde ein zinsloses Darlehen von 420.000 D-Mark, dazu kamen insgesamt mehr als 89.000 D-Mark Spenden aus dem gesamten Wuppertaler Raum.
Die anfangs noch zur lutherischen Gemeinde Alt-Wupperfeld gehörende Lutherkirchengemeinde wurde im Rahmen der Neustrukturierung der Kirchengemeinden Barmens 1967 aus der Gemeinde herausgelöst und zur eigenständigen Evangelischen Lutherkirchengemeinde Heidt erklärt. Die Gottesdienstordnung der Gemeinde wurde von Grund auf umgestaltet, so wurde beispielsweise das Abendmahl bis dahin erst im Anschluss an den eigentlichen Gottesdienst ausgeteilt. 1984 wurden die lutherischen und reformierten Gemeinden Oberbarmens vereinigt, was die Gemeindestruktur der Lutherkirche allerdings zunächst wenig beeinflusste. Seitdem trug sie den Namen Vereinigte Evangelische Kirchengemeinde Heidt.
2008 folgte schließlich die Vereinigung mit den bis dahin in einem Gemeindeverband organisierten Gemeinden Gemarke, Wupperfeld und Hatzfeld zur neuen Großgemeinde Gemarke-Wupperfeld in Barmen. Die Gemeinde Heidt war finanziell, nach Mitgliederzahlen und nach Fläche die größte der Kirchengemeinden, verlor aber mit Gründung der deutlich von der Gemarker Kirche dominierten Gemeinde Gemarke-Wupperfeld viel Mitspracherecht und sah sich seitdem stetigen Sparzwängen ausgesetzt. Zwar blieben die Kirchenaustrittszahlen im neuen Gemeindebezirk Heidt stets die niedrigsten von allen vier Bezirken, dennoch folgte eine deutliche Ausrichtung auf den Bezirk Gemarke, der später die Schließungen der Alten Kirche Wupperfeld und der Hatzfelder Kirche folgten. So wird die Vereinigung zur Gemeinde Gemarke-Wupperfeld insbesondere am Heidt rückblickend überwiegend negativ betrachtet, was sich auch deutlich in der Gemeindearbeit zeigt, die nunmehr nahezu vollkommen unabhängig von Gemarke am Heidt fortgeführt wird.
In der Nacht auf den 2. November 2016 wurde ein Brandanschlag auf die Kirche verübt, der glücklicherweise erfolglos blieb. Im Keller unter dem Kirchsaal wurde ein kurz vorher angezündeter, aber von selbst ausgegangener Holzscheit gefunden. Eine Parallele zur zwei Tage vorher stattgefundenen Brandstiftung in der Erlöserkirche in Wichlinghausen gilt als wahrscheinlich.[1]


Im Frühjahr 2017 begann man mit einer Teilsanierung des Glockenstuhls und der Inneren Turmspitze, wobei auch die Turmuhr instand gesetzt wurde. So verlor der Turm Anfang März die Zeiger der Turmuhr an allen vier Seiten und prägte in diesem Zustand bis August 2017 das Bild des Quartiers. Zum 1. August wurde die sanierte Turmuhr mit neuen Uhrzeigern und neuer Mechanik wieder in Betrieb genommen.
Zukunft
In den vergangenen Jahren wurde immer wieder über eine Schließung der Lutherkirche diskutiert. Die finanzielle Situation der Gemeinde veranlasste 2014 die Schließung der Alten Wupperfelder Kirche und des Nommensenhauses und 2015 die Schließung der Hatzfelder Kirche. Das Pfarrhaus wurde mittlerweile verkauft und das Gottesdienstangebot in der Lutherkirche stark ausgedünnt; Gottesdienste finden nur noch jeden zweiten Sonntag statt. Davon noch nicht betroffen ist die Arbeit im Gemeindehaus, die unverändert und umfangreich fortgeführt wird, ebenso die regional erwähnenswerte Gemeindebücherei. Viele Gemeindeveranstaltungen wurden von der Wupperfelder Kirche in die Lutherkirche verlegt und können dort in leicht veränderter Weise fortgeführt werden. Allerdings ließ das Presbyterium Gemarke die Frage nach dem Fortbestehen der Lutherkirche offen, so sei zu erwarten, dass das gesamte Ensemble aus Lutherkirche, Lutherheim (Gemeindehaus) und Kindergarten wohl kaum auf Dauer fortgeführt werden könne.[2]
Anfang 2017 wurde das Gottesdienstangebot in der Lutherkirche weiter ausgedünnt. Obwohl Kirche und Gemeindezentrum Hatzfeld entgegen der Aussage des Presbyteriums zur vorübergehenden Einstellung im Januar 2017 vollständig verkauft und mehrere Stellen insbesondere in der Jugendarbeit abgebaut wurden, verfolgt das Presbyterium den angesetzten Sparkurs für die zwei letzten verbliebenen Kirchen weiterhin. Gottesdienste in der Lutherkirche fanden vorübergehend nur noch etwa einmal im Monat statt, die überregional bekannten Laudate-Gottesdienste sollten ebenfalls nur noch vereinzelt stattfinden.[3]
Die Zeit nach den Presbyteriumswahlen in der Rheinischen Landeskirche 2020 war von einem kleinen Umdenken im neu gewählten Presbyterium Gemarke-Wupperfeld geprägt: Die bis dahin überproportional mit Mitgliedern des ehemaligen Presbyteriums der Altgemeinde Gemarke besetzte Gemeindeleitung fand zur eigenen Überraschung der Gemeinde ein deutliches Gegengewicht mit der Wahl mehrerer Heidter Gemeindemitglieder und Altpresbyter der Altgemeinde Heidt. Die nun deutlich paritätischer besetzte Gemeindeleitung bekannte sich mit der anschließend begonnenen Sanierung des Lutherheims erstmals zum Erhalt des Gemeindestandortes Heidter Berg und räumte massive Fehler in den Schließungsdebatten um Hatzfeld und Wupperfeld ein. Auch der Umzug der Wupperfelder Abendmusiken in die Lutherkirche anstatt der Gemarker Kirche verschaffte der Lutherkirche eine neue, überregionale Konnotation.[4]
Im Sommer 2021 begannen die ersten Schritte einer umfangreichen Sanierung der Lutherkirche. Die Zusage über 300.000 Euro aus Fördermitteln des Bundes sowie eine neu aufgestellte Spendenkampagne ermöglichten den Anfang der Instandsetzung von Turm, Dachstuhl und Nordfassade. Insgesamt sind circa zwei Millionen Euro veranschlagt, um ausreichende Sanierungsarbeiten zum Erhalt des Standortes Lutherkirche durchführen zu können.[5]
Kirchenmusik
Überregional bekannt wurde die Kirche insbesondere durch ihre gemeinsam mit der Alten Kirche Wupperfeld bestehende kirchenmusikalische Tradition. 1974 wurden in dieser Kirche die Wuppertaler Orgeltage von Kirchenmusikdirektor Joachim Dorfmüller, der seit 1959 als Organist an dieser Kirche wirkt, und dem Prokuristen Reiner Bergmann ins Leben gerufen. Seit 1971 findet in der Regel am letzten Sonntag im Monat ein Laudate-Gottesdienst statt, der sich durch eine besondere Hervorhebung der Musik kennzeichnet. Seit 1972 wurde die Orgel für insgesamt 15 Schallplattenaufnahmen und 21 CD-Aufnahmen genutzt, des Weiteren auch mehrmals für Aufnahmen des Westdeutschen Rundfunks. Verschiedene Chöre wählen die Kirche aufgrund ihrer besonders ruhigen Lage bevorzugt für ihre Aufnahmen, so auch die Wuppertaler Kurrende. 1983 fand diese Nutzung einen Höhepunkt, als der Chor in einem von der ARD deutschlandweit ausgestrahlten Vesper-Gottesdienst zu hören war. Die meisten durch Joachim Dorfmüller eingespielten Uraufführungen fanden an der Lutherkirchorgel statt.
Bereits Jahre vor dem Bau der Lutherkirche formierte sich im November 1907 unter Leitung des Heidter Musiklehrers Paul Menzel ein Kirchlicher Gesangsverein auf dem Heidt, der anfangs noch einen Ableger des traditionsreichen Wupperfelder Kirchenchors darstellte. Der Gesangsverein leitete bis zur Einstellung Eduard Kuhls als ersten Kirchenmusiker der Lutherkirche 1912 die musikalische Ausgestaltung der ersten Gottesdienste. Eduard Kuhl blieb bis 1948 insgesamt 37 Jahre lang Kirchenmusiker an der Lutherkirche.
Der 1914 gegründete Barmer Bachverein war in seinen ersten Jahren stets mit der Lutherkirche verbunden. Zwar stellte die Alte Kirche Wupperfeld lange Zeit die einzige Aufführungsstätte dar, allerdings war die mit dem 400. Jubiläum des Thesenanschlags einkehrende Rückbesinnung auf Musik der Reformation ohne Mitwirken der bis zu siebzig Sänger des Heidter Gesangsvereins nicht möglich. Durchschnittlich jeden dritten Sonntag wurden im Gottesdienst Werke von Johann Sebastian Bach, Dietrich Buxtehude, Melchior Vulpius, Johann Hermann Schein und Samuel Scheidt gesungen, vereinzelt auch zeitgenössischere Werke von Moritz Hauptmann, Conradin Kreutzer und Arnold Mendelssohn. 1931 benannte sich der Chor offiziell in Heidter Kirchenchor um und wurde Mitglied des Landesverbandes Rheinischer Kirchenchöre. Die Proben konnten mittlerweile mit einem 1927 erworbenen Konzertflügel im Lutherheim begleitet werden. In enger Zusammenarbeit mit Gottfried Grote konnte 1930 eine Aufführung der Bach-Kantate Wachet auf, ruft uns die Stimme auf der zweiten Empore der Alten Kirche Wupperfeld organisiert werden. In der Lutherkirche selbst wurden in den ersten fünfzig Jahren ihres Bestehens mindestens drei verschiedene oratorische Aufführungen organisiert; 1912 Bachs Weihnachtsoratorium durch den Barmer Lehrergesangsverein, und im März 1945 schließlich zwei Aufführungen des Deutschen Requiems von Johannes Brahms unter Mitwirkung des Städtischen Orchesters Wuppertal (heute Sinfonieorchester Wuppertal). Ein zweites Debüt in der Lutherkirche gab das Sinfonieorchester am 8. April 1984, als die Kirche unter Leitung Lothar Kneppers als Aufnahmeort der Messe in D-Dur von Antonín Dvořák und mehrerer Orgelkonzerte Josef Gabriel Rheinbergers und Georg Friedrich Händels mit Joachim Dorfmüller an der Orgel diente.
Zur festen Tradition der Gemeinde sind die Emporenkonzerte Dorfmüllers geworden. Etwa zweimal im Monat findet ein Konzert auf der Empore der Lutherkirche statt, wobei neben Dorfmüller stets weitere Instrumente teilnehmen, teilweise mit Uraufführungen besonderer Werke für Kirchenorgel und das jeweilige Begleitinstrument. Am 10. September 2016 konnte feierlich das einhundertste Emporenkonzert zelebriert werden.
In der zweiten Jahreshälfte 2017 war die Lutherkirche zudem Gastspielort der überregional bekannten Wupperfelder Abendmusiken, da die Alte Kirche Wupperfeld zu jener Zeit nicht bespielbar war. Die Konzerte sollen in jener Zeit zudem an die Anfänge der Wupperfelder Abendmusiken erinnern, die ohne Mitwirken des Lutherkirchenchors nie ihr heutiges hohes künstlerisches Niveau erreicht hätten. Seit 2018 wird die traditionsreiche und überregional bekannte kirchenmusikalische Tradition aus Wupperfeld endgültig in der Lutherkirche fortgeführt, insbesondere ist die Lutherkirche nun feste Spielstätte der Wupperfelder Abendmusiken. Die Alte Kirche Wupperfeld wurde mit Jahreswechsel 2017/18 verkauft.
Orgel
Die erste Orgel auf der Ostempore der Lutherkirche wurde 1912 durch den Barmer Orgelbauer Paul Faust errichtet und umrahmte mit ihrer Prospektform die große Ostrosette. Nach dem Zweiten Weltkrieg war die Orgel zwar noch spielbar, aber stark beschädigt. Dem persönlichen Einsatz von Joachim Dorfmüller ist es zu verdanken, dass jenes Instrument mithilfe andauernder provisorischer Reparaturen noch bis 1964 gespielt werden konnte, wenn auch nur mit wenigen noch spielbaren Registern. Bei einer dieser Reparaturen fand Dorfmüller 1961 in den Falten des Orgelbalgs mehrere Notenblätter der Sechs Orgelsonaten op. 65 des jüdischen Komponisten Felix Mendelssohn Bartholdy, die höchstwahrscheinlich in (Vor-)Kriegszeiten von einem seiner Vorgänger dort versteckt wurden.[6]

1965 wirkte Dorfmüller zusammen mit dem Wupperfelder Kantor Winfried Pesch und Helmut Kahlhöfer, dem Kantor der Immanuelskirche, an der Konzeption einer komplett neuen Orgel für die Lutherkirche mit. Die 1967 errichtete Führer-Orgel bildet das Schwesterinstrument zur etwas größeren Orgel der Stadtkirche im friesischen Jever, die in der Orgelbauwerkstatt Führer zeitgleich entstand und mit der sie viele Gemeinsamkeiten in der klanglichen Konzeption und der Disposition besitzt. Sie verfügt über 32 Register auf drei Manualen mit Pedal und ist die einzige Orgel der Stadt mit freiem Zimbelstern, der als Stiftung auf persönlichen Wunsch eines später verstorbenen Gemeindemitglieds nachträglich eingebaut wurde. Sie ermöglicht in ihren Klangfarben ein umfangreiches Spektrum an Möglichkeiten, bevorzugt ermöglicht sie Barockmusik und Musik der Romantik gleichermaßen.[7]
|
|
|
| ||||||||||||||||||||||||||||||||||||||||||||||||||||||||||||||||||||||||||||||||||
- Koppeln: I/II, III/I, III/II, I/P, II/P, III/P
Literatur

- Sigrid Lekebusch, Florian Speer (Hrsg.): Kirchen und Gottesdienststätten in Barmen. Wuppertal 2008, ISBN 978-3-87707-721-4.
- Verband Evangelischer Kirchengemeinden Gemarke-Wupperfeld, Fritz Mehnert (Hrsg.): Oberbarmer Gemeindegeschichte. Wuppertal 2002.
- Vereinigte Ev. Kirchengemeinde Heidt in Barmen (Hrsg.): 1911–1986. 75 Jahre Lutherkirche. Gedenkschrift mit Notizen zur Gemeindegeschichte. Wuppertal 1986.
- Sigrid Lekebusch: Mäzenatentum und Kirchenbau. Die Lutherkirche und ihre Sponsoren. In: Geschichte im Wuppertal, Band 20. Wuppertal 2011, S. 54–66.
- Joachim Dorfmüller: Chronik der Emporenkonzerte in der Lutherkirche zu Wuppertal-Barmen. Festschrift anlässlich des 100. Emporenkonzerts am 10. September 2016. Wuppertal 2016.
Weblinks
- Eintrag In: Wuppertaler Denkmalliste
- Kirchenbauten im Bergischen Land Wuppertal: Lutherkirche
- Internetpräsenz der Evangelischen Kirchengemeinde Gemarke-Wupperfeld in Barmen
Einzelnachweise
- ↑ Erneut Brandstiftung in Kirche. In: Westdeutsche Zeitung (abgerufen am 22. Dezember 2016)
- ↑ Es bleibt nur eine Kirche übrig. In: Westdeutsche Zeitung (abgerufen am 22. Dezember 2016)
- ↑ Gemeinde leben, Gemeindebrief der Evangelischen Kirchengemeinde Gemarke-Wupperfeld, Ausgabe Juni/Juli 2017
- ↑ Gemeinde leben, Gemeindebrief der Evangelischen Kirchengemeinde Gemarke-Wupperfeld, Ausgabe Oktober/November 2021, S. 14
- ↑ Gemeinde leben, Gemeindebrief der Evangelischen Kirchengemeinde Gemarke-Wupperfeld, Ausgabe Oktober/November 2021, S. 8
- ↑ Ein Leben an der Orgel Kirchenkreis Wuppertal: Kirchenmusik, Artikel vom 7. Juli 2017
- ↑ Bekannte Gesichter in Heckinghausen, und warum Wupperfeld-Gemarke umdenken muss. Die Orgel der Barmer Lutherkirche. In: Das Orgeljournal (abgerufen am 22. Dezember 2016)
Anmerkungen
- ↑ Die Sonnborner Hauptkirche verfügt über mehrere Glocken aus dem 15. Jahrhundert und damit die faktisch ältesten Glocken der Stadt, allerdings werden diese nicht geläutet, die Lutherkirche verfügt somit über die ältesten noch in Benutzung befindlichen Glocken in Wuppertal.
Koordinaten: 51° 16′ 4″ N, 7° 12′ 41″ O