St. Lubentius (Dietkirchen)


Die ehemalige Stiftskirche St. Lubentius im Limburger Stadtteil Dietkirchen am Westufer der Lahn war bis ins 13. Jahrhundert die bedeutendste Kirche des Lahngaus und seiner Nachfolgeterritorien. In dem Sakralbau werden die Gebeine des heiligen Lubentius als Reliquien aufbewahrt. Das auf das 9. Jahrhundert zurückgehende Stift erlosch im Zuge der Säkularisation. Heute dient St. Lubentius als römisch-katholische und die Dreifaltigkeitskapelle als evangelische Pfarrkirche von Dietkirchen.
Das Gebäude ist eine romanische Basilika mit Querhaus und Doppelturmfassade, die im Wesentlichen im 11. und 12. Jahrhundert ihr heutiges Aussehen erhielt. Ihre ungewöhnlich monumentale Außenwirkung ergibt sich aus dem Zusammenspiel von landschaftlich exponierter Lage auf einem schroff aufragenden Kalksteinfelsen, der bauzeittypischen Schwere der Architektur und dem (ahistorischen) Fehlen des Verputzes. Die Ausstattung besteht vor allem aus Arbeiten des 18. Jahrhunderts.
Geschichte
Vorgeschichte
Grabungen in den 1950er und 1960er Jahren förderten im Bereich der Kirche Funde zu Tage, deren älteste sich der Jungsteinzeit zuordnen lassen. Demnach war der exponierte Felsen über der Lahn schon 4000 vor Christus von Menschen besetzt. Die Mehrzahl der vorgeschichtlichen Funde stammt allerdings aus den Epochen von der Urnenfelderkultur bis zur Latènezeit, also der Zeit von 1300 vor Christus bis kurz nach Christi Geburt. Art und Häufung der Funde deuten auf eine Kultstätte hin, zumal das kleine Felsplateau als Platz für eine Siedlung wenig geeignet ist.
Im Mittelalter war das historische Dietkirchen als gerichtlicher Versammlungsort des Lahngaus bedeutend. Die mittelalterliche Gerichtsbarkeit oblag dem feudalen Herrscher, die Gerichtsstätte Reckenforst wird in Urkunden des Klosters Eberbach erstmals 1217 erwähnt, dürfte aber bereits im Frühmittelalter bestanden haben. Moderne Forschungen nehmen den Ort der Stätte in dem Flurstück westlich der jetzigen Straße Auf der Heide in dem Abschnitt südlich der einstechenden Senefelderstraße an.
Der Ort war wegen einer Furt über die Lahn, die spätestens in fränkischer Zeit an eine Handelsstraße angeschlossen war, auch von wirtschaftlicher Wichtigkeit. Neben der Lahnpassage via Furt gab es spätestens gegen Ende des 11. Jahrhunderts eine Lahnfähre, wie schriftlich nachweisbar. Bis zur Einweihung der jetzigen hölzernen Fußgängerbrücke im Jahre 1989 hatte dieser Fährdienst mit Anpassungen an den technischen Fortschritt rund ein Jahrtausend Bestand.
St. Lubentius und die Stiftsgründung
Die Tradition als Kultort, Gerichtsstätte und wichtiger Verkehrsknotenpunkt ließen den Ort zu einem Ausgangspunkt der Christianisierung des Lahngaus werden, die vom Bistum Trier betrieben wurde. Aufgrund des Mangels an archäologischen Befunden und Schriftquellen ist der Anfang der Mission ebenso wie der Zeitpunkt der Durchsetzung des neuen Glaubens in der Forschung umstritten. Realistisch ist ein Zeitraum zwischen dem 6. Jahrhundert und spätestens dem frühen 8. Jahrhundert anzusetzen.
_St.Lubentius_Fenster411-EditMylius.jpg)
Der Legende nach war der Patron der heutigen Kirche, der heilige Lubentius, selber nicht nur missionarisch in der Lahnregion tätig, sondern hat angeblich dort auch ein erstes Gotteshaus errichtet. Nach seinem Tod habe sich sein Leichnam nicht von der Stelle bewegen lassen, worauf die angereisten Bischöfe von Trier und Köln beschlossen, den Leichnam in ein unbemanntes Boot zu legen. Dieses habe sich dann die Mosel hinab, den Rhein und schließlich die Lahn hinauf bewegt und sei zu Fuße des Felsens gestrandet, wo er in der von ihm gegründeten Kirche begraben wurde.
Der Lebenslauf von Lubentius setzt sich aus drei Quellen zusammen, wobei zunächst festzustellen ist, dass diese sämtlich Jahrhunderte nach seinen Lebzeiten entstanden. Dies ist zum einen die Vita Maximin, die zwischen 751 und 768 entstand, die Gesta Treverorum, die um 1101 niedergeschrieben wurden und die Translationslegende vom Ende des 12. Jahrhunderts, die wahrscheinlich in Dietkirchen selbst verfasst wurde.

Die Vita Maximin, die im Wesentlichen von der Bestellung des Heiligen als Priester in Kobern an der Mosel und auch seinem Tod dort berichtet, gilt im Lichte der modernen archäologischen Forschung als authentisch. Die hochmittelalterlichen Gesta Treverorum, die die Behauptung eines ersten Kirchenbaus an der Lahn, ohne Dietkirchen zu nennen, aufstellen, werden dagegen als unglaubwürdige Quelle betrachtet, die vielmehr dazu dienen sollten, den Rang der Erzstifts Trier zu behaupten.
Die Translationslegende basiert bei textkritischer Betrachtung direkt auf der Vita Maximin und schmückt diese nur weiter aus. Auch vor dem Hintergrund, dass sie wohl von einem Kanoniker des gleichnamigen Stifts verfasst wurde, ist sie daher bestenfalls als subjektiv zu bezeichnen. Paradoxerweise fehlen gerade dieser Überlieferung, die von den drei Quellen am meisten zum Ruhm des Kirchenpatrons in Dietkirchen selbst beitragen will, jegliche Details zu seinem Auftreten an der Lahn zu seinen Lebzeiten.
Die Behauptung, Lubentius sei der Apostel der Lahngegend gewesen, ist sogar erst 1670 schriftlich festgehalten. Vor diesem Hintergrund hält die moderne Forschung eine Missionstätigkeit des Lubentius an der Lahn heute für ausgeschlossen. Tatsächlich dürften seine Gebeine als Reliquie kurz vor der Ersterwähnung von Dietkirchen 841 dorthin gebracht worden sein, anzunehmen ist die Zeit zwischen 836 und 841. Dietkirchen selbst dürfte aus archäologischer Sicht etwas früher, wohl schon zwischen Mitte und Ende des 7. Jahrhunderts, gegründet worden sein.
Erstmals erwähnt wird das Lubentiusstift in einer Urkunde vom 13. Mai 841, die jedoch nur in einer Abschrift aus dem 17. Jahrhundert überliefert ist. Ihr Wahrheitsgehalt wird allerdings allgemein nicht bezweifelt. Die Urkunde erwähnt auch Dietkirchen namentlich zum ersten Mal und erlaubt aufgrund ihres Inhaltes einer Schenkung an das Stift die Aussage, dass dieses bereits vor 841 bestanden haben muss. Dies stimmt zufriedenstellend mit dem vermuteten Zeitraum der Reliquienüberführung überein.
Stiftstruktur und Entwicklung bis zum Ende des Mittelalters
Die Priester am Kollegiatstift waren – in Abgrenzung zu Mönchen, die nach einer Klosterregel in einem Orden zusammenlebten – Weltpriester. Sie durften in Gegensatz zu Mönchen auch persönlichen Besitz haben und widmeten sich Aufgaben wie beispielsweise der Seelsorge oder dem Spenden von Sakramenten. Grundlage ihres Zusammenlebens war die Aachener Regel, die sich an typische Klosterregeln anlehnte und etwa gemeinsame Schlafräume und Mahlzeiten vorschrieb.
Von diesem Regelkanon rührte auch die Bezeichnung der Stiftsgeistlichen als Kanoniker her. Ihre Anzahl ist für das Lubentiusstift im Frühmittelalter unbekannt, die erste Angabe von 12 Personen stammt aus dem Jahr 1262. Zu diesem Zeitpunkt vollzog sich auch die Aufgabe des gemeinsamen Lebens auf dem Stiftsbezirk, fortan lebten die Kanoniker getrennt in Stiftshäusern, Domherrenhöfen oder privat erworbenen Gebäuden. Von diesen sind heute noch einige in Dietkirchen erhalten.
Auch die frühmittelalterliche Einordnung des Stifts in die Verwaltungsstrukturen des Erzbistums Trier ist unbekannt. Möglicherweise wurde das Stift schon um 900 zum Trierer Archidiakonat erhoben, gesichert ist letzteres aber erst für 1031. Das Archidiakonat verwaltete die rechtsrheinischen Gebiete des Erzbistums. Ihm waren die sechs Dekanate Dietkirchen, Engers, Haiger, Kirberg und Marienfels sowie Wetzlar untergeordnet, letztere Einheit wurde Archipresbyterat genannt, besaß im Prinzip aber eine ähnliche Struktur wie die fünf Dekanate.
Zusammengezählt umfassten die Dekanate 242 Pfarreien, von denen eine auch die Großpfarrei Dietkirchen war. Ursprünglich kumulierten die Ämter des Archidiakons, des Propstes, der dem Stift vorstand und des Pfarrers wohl in einer Person. Schon im 12. Jahrhundert löste sich der Propst jedoch vermögensmäßig vom Stift, die Propstei wurde zum Ehrenamt, und ein Dechant übernahm die Leitung der Stiftsgeistlichen. Daraus resultierte die Dietkirchener Besonderheit, dass der Pfarrer bis in die frühe Neuzeit nicht zum Stift gehörte.
Über die Geschichte des Stifts im Früh- und Hochmittelalter ist wenig bekannt, da nach der Urkunde vom 13. Mai 841 und denen des 13. Jahrhunderts nur eine weitere solche überliefert ist. Sie stammt aus der Zeit um das Jahr 1098 und hat zum Inhalt, dass der Propst Rambert mit Zustimmung aller Kanoniker die Fähre zu Dietkirchen verleiht. Sie beweist die ältesten, wohl bis auf die Stiftsgründung zurückgehenden Strukturen: Doppelamt von Archidiakon und Propst und dessen Verfügungsgewalt über das Stiftsgut.
Ab dem 13. Jahrhundert verbessert sich die schriftliche Überlieferung. Sie erlaubt es, die bereits beschriebene Lösung des Propstes vom Kapitel durch Vermögensteilung und die Aufgabe des gemeinsamen Lebens der Kanoniker nachzuvollziehen. Nachdem Ende des 13. Jahrhunderts mehrere Altäre gestiftet worden waren, wurde das Stift auch personell durch Altaristen verstärkt. Schließlich zeigen Ablassurkunden respektive die Bestätigung bereits vorhandener durch verschiedene Erzbischöfe ein verstärktes Bemühen um eine Aktivierung des Stifts. Darüber hinaus entwickelte sich im 13. Jahrhundert am Lubentiustag ein Jahrmarkt am Stift, der langfristig bestehen blieb und noch im 18. Jahrhundert zu den wichtigsten Märkten in Kurtrier zählte.
Die Bedeutung des Stifts im Mittelalter spiegelt sich in der vielfältigen Verflechtung seiner Mitglieder wider. So entstammen dem Kollegium Bischöfe und Erzbischöfe von Trier und Worms. Zudem gehörten Stiftsherren den Domkapiteln von Trier und Mainz an, ebenso dem Stift Limburg.
Zeit der Reformation bis zur Säkularisation
In der Reformationszeit gelangte die weltliche Herrschaft über die Grafschaft Diez und damit auch Dietkirchen nach dem Erlöschen des gleichnamigen Geschlechts an eine Ganerbschaft. Durch Erbteilung nahm die Zahl der an ihr beteiligten Geschlechter immer weiter zu. Da sich Kurtrier bereits 1453 ein Achtel der Ganerbschaft gesichert hatte, konnte es aufgrund seiner weltlichen Macht die Rechte des Stiftes vor allem in der Reformationszeit behaupten. Trotzdem wurden im Bauernkrieg die Keller der Stiftsgeistlichen geplündert, größere Zerstörungen blieben aber aus.

1535 setzte die kurze Phase des Kondominats ein, nachdem sich Kurtrier binnen zwei Jahren weitere 3/8 der Herrschaft an der Grafschaft gesichert hatte und sich diese nun indirekt nur noch mit Nassau-Dillenburg teilen musste. Sie endete 1564, als Dietkirchen aus der Dehrner Zent, die an Nassau kam, herausgelöst und als kurtrierisches Amt Limburg dem Anteil des Erzstifts Trier zugeschlagen wurde, wo es bis zum Ende des Heiligen Römischen Reiches verbleiben sollte.
Gleichwohl sind aus dieser Zeit eine Reihe von Beschwerden über die Ordnung im Stift bekannt, die die Kritik Martin Luthers an der katholischen Kirche jener Zeit zu bestätigen scheinen. So wurde etwa 1535 einem Pleban vorgeworfen, die Ewige Lampe kaum eine Woche im Jahr brennen zu lassen, Zahlungsverpflichtungen nicht nachzukommen und das Pfarrhaus baulich zu vernachlässigen. 1555 beschwerten sich Angehörige der Pfarrei, dass der damalige Pleban mehr dem Hochaltar als der Pfarrkirche diene und 1571 musste sich der Pastor gar in Limburg an der Lahn vor den erzbischöflichen Visitatoren des Verdachts erwehren, eine Dienerin als Konkubine zu halten.
Im Zuge des Konzils von Trient wurde Bischöfen die jährliche persönliche Visitation ihrer Diözese zur Pflicht gemacht, die im Erzbistum Trier und somit auch am Lubentiusstift ab 1569 stattfand. Im Lichte der vorgenannten Verhältnisse kam es 1573, 1588 und nochmals 1607 auf Anordnung des Erzbischofs zu einschneidenden Veränderungen in der Stiftsstruktur.
1549 wurde die heilige Juliana von Nikomedia erstmals als Patronin neben dem heiligen Lubentius erwähnt. Vermutlich hatte sie diese Stellung jedoch schon weit vorher inne. Am Ende des 16. Jahrhunderts wurden einige der zehn Altäre aus dem Mittelalter abgebaut; während des Dreißigjährigen Krieges dann die Profangebäude des Stifts sowie ein Großteil der schriftlichen Überlieferungen vernichtet. In den folgenden Jahrhunderten erreichte das Stift nie wieder seine vorherige Bedeutung.
Die Holzdecke des Mittelschiffs mit barocker Malerei stammt in ihrer heutigen Form aus der Zeit des Wiederaufbaus. 1692 wurden der Lettner entfernt und die Fenster im Seitenschiff zu runden Fenstern umgebaut. In den folgenden Jahren verschwanden auch die restlichen mittelalterlichen Altäre. Die heutigen Altäre im Querhaus wurden in der Mitte des 18. Jahrhunderts angefertigt, der heutige Hochaltar 1791. Als 1790 der alte Hauptaltar abgerissen wurde, kam es zu einer Aufteilung der Lubentiusgebeine. Die größeren Knochen wurden in Schaukästen auf dem neuen Hochaltar platziert, die kleineren wurden mit dem alten Steinsarkophag in den neuen Hochaltar eingefügt.
Als letzter Propst vor Auflösung des Stiftes amtierte ab 8. April 1792 der Trierer Domkapitular Freiherr Christian Franz von Hacke (1731–1807). Das Amt war verbunden mit dem Archidiakonat in Dietkirchen und dem Ehrentitel des Ober-Chorbischofs im Erzbistum Trier.[1]
Jüngere Geschichte bis zur Gegenwart


(Fotografie: Albrecht Meydenbauer)
1802 fiel das Stift an das Fürstentum Oranien-Nassau, das die Gemeinschaft, wie zahlreiche weitere Klöster, aufhob. Die Besitzergreifung und Aufhebung erfolgte im Vorgriff auf den Reichsdeputationshauptschluss, der dem Haus Nassau die Klöster als Ersatz für den Verlust der linksrheinischen Besitzungen zuwies. Im Verlauf der Säkularisation gingen zahlreiche Messgegenstände verloren, darunter mehr als 30 Altargegenstände und mehr als 40 Gewänder. Seitdem wurde die Stiftskirche als Pfarrkirche der katholischen Gemeinde in Dietkirchen genutzt. Seit Aufhebung der Pfarrei zum 1. Januar 2023 und Errichtung der neuen Pfarrei „Heilige Katharina Kasper Limburger Land (Sitz: Limburg a. d. Lahn)“ gehört St. Lubentius zu den „weiteren Kirchen“ in der Pfarrei.[2]
1856 war ein umfassender Umbau der Kirche beendet. Der Boden im östlichen Teil der Kirche wurde abgesenkt, die Öffnungen zu den Emporen vergrößert und die Arkaden aus ihnen herausgebrochen. Der Münchner Maler Johann Georg Baudrexel schuf neue Wand- und Deckengemälde. Zudem wurden die wenigen Gebeinreste des Heiligen außer dem Schädel 1857 wieder vereint im Steinsarkophag im Hochaltar beigesetzt. 1893 wurde die heutige Orgel installiert.
Dafür wurde ein neuer Hauptaltar installiert. 1955 bis 1957 wurde eine Heizung eingebaut. Im Verlauf der Arbeiten wurden archäologische Untersuchungen angestellt, bei der die meisten der Erkenntnisse zu Tage traten, die heute über die Vor- und Frühgeschichte des Kirchenbaus bekannt sind. Die meisten Änderungen von 1856 wurden in den frühen 1960er Jahren wieder zurückgenommen, auch die Malerei verschwand dabei.
In den 1970er Jahren folgten Umbauten, die durch die Liturgiereform des Zweiten Vatikanischen Konzils nötig geworden waren. Wichtigste Änderungen waren dabei die Umgestaltung des Ambo und des Hauptaltars.
Am 30. November 1980 erhielt die Kirche eine Glocke, die von Papst Johannes Paul II. während einer Deutschlandreise geweiht wurde. Die sog. Papstglocke ist eine der größten des Bistums Limburg und befindet sich im höheren der beiden Türme.
Seit 1998 wird am Südhang des Lahnfelsens zwischen den Grundmauern der ehemaligen Stiftsgebäude Wein angebaut. Die Ernte liegt zwischen 300 und 400 Kilogramm pro Jahr. Sie wird vor allem zu Messwein verarbeitet und zu besonderen Anlässen unter der Bezeichnung „Dietkirchener Lubentius-Ley“ ausgeschenkt.
Kirchenbau
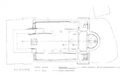
Die jetzige Kirche ist das Ergebnis einer komplexen Baugeschichte überwiegend des 8. bis 13. Jahrhunderts. Die auf den archäologischen und bauhistorischen Untersuchungen der 1950er und 1960er Jahre aufbauende, noch immer maßgebliche Monographie von Wilhelm Schäfer aus dem Jahr 1966 unterscheidet drei eigenständige Kirchenbauten, wobei sie die letztere, die zum gegenwärtigen Bau führte, nochmals in vier Ausbauphasen differenziert.
Die vorgenannte Chronologie ist bis heute nicht nennenswert kritisiert worden. Allerdings gibt es in verschiedenen, tendenziell jüngeren Publikationen vor allem ab Kirche II unterschiedliche Auffassungen darüber, wie viel Substanz von einer Bauphase in die nächste übernommen wurde, und wie diese Bauphasen zu datieren sind. Dies ist Resultat der geringen schriftlichen Überlieferung, weswegen auf die vorgenannten Aspekte gerichtete Betrachtungen vor allem anhand der Stilkritik erfolgen müssen.
Kirche I

Ergrabene Reste einer ersten Steinkirche stammen aus der ersten Hälfte des 8. Jahrhunderts und somit frühkarolingischer Zeit. Dabei getätigte Keramikfunde lassen sich recht genau um 730 datieren. Die Kirche entstand also rund ein Jahrhundert vor der Stiftsgründung, in zeitlicher Nähe zur Gründung des eigentlichen Ortes und in einer Hochphase der Christianisierung, bedenkt man etwa die um 723 anzusetzende Fällung der Donareiche bei Fritzlar.
Dem Befund nach entstand in dieser ersten Bauphase eine kleine Saalkirche mit schmalerem, querrechteckigen Chor, die etwa 15,50 Meter lang und 8,40 Meter breit war. Baunähte zeigen, dass der Sakralbau spätere Erweiterungen erfuhr, die im Zusammenhang mit der Überführung der Lubentius-Reliquie gesehen werden. Dabei wurde zu den Seiten jeweils eine kleine Rechteckkapelle angesetzt, von denen die nördliche als erster Standort der Gebeine des Heiligen angesehen wird. Die Fundamente dieser Kirche sind unter dem heutigen Gebäude teilweise erhalten und zugänglich.
Kirche II

In die Zeit der ottonischen Herrscher, also um das Jahr 1000, fällt die zweite Bauphase, in der die Kirche als Basilika neu errichtet wurde. Sie war mit 16,60 Metern so breit wie die gegenwärtige Kirche, bei 19,78 Metern Länge aber wesentlich kürzer. Den östlichen Abschluss bildete zeittypisch eine leicht gestelzte halbrunde Mittelapsis mit vorgelagertem Chorjoch. Vor dem dort befindlichen Hochaltar befand sich das Lubentiusgrab in einer gemauerten Gruft.
Die geraden Abschlüsse der Seitenschiffe im Osten bildeten mit den rechtwinklig anschließenden Nord- und Südmauern kleine Räume mit ergrabenen Altarstümpfen. Zusammen mit dem Vorchorjoch ergab sich so zwischen Chor und Langhaus ein querhausartiger Raum. Äußerlich setzte sich dieser allerdings höchstens in Mauerbreite vom übrigen Baukörper ab, innerlich trennten ihn wohl wie heute Stufen von Langhaus und Apsis.
Im Westen war die Kirche geringfügig kürzer als heute, die Seitenschiffe endeten etwa auf Höhe der Vorderkante der jetzigen Westempore. Ein daran anschließender, in Ansätzen ergrabener mächtiger Westturm auf quadratischem Grundriss diente wohl nicht nur als Glockenturm, sondern vielleicht auch Wehrzwecken. Auch über eine Funktion als Scheintorhalle mit darüber liegender Turmkapelle wird spekuliert. In seinem untersten Geschoss war er in zwei Arkaden zum Mittelschiff hin eröffnet.
In dieser Bauphase wurden die Michaelskapelle und die heute nicht mehr vorhandenen Profangebäude des Stifts errichtet. Auch aus dieser Zeit sind noch Fundamente unter der jetzigen Kirche sowie aufgehende Reste in den Stirnwänden des Querhauses erhalten.
Kirche IIIa
Die dritte Bauphase der Kirche fällt in die Salierzeit der zweiten Hälfte des 11. Jahrhunderts. Im Zuge eines Umbaus erreichte der Kirchenkörper mit einer Erweiterung des Langhauses nach Westen und einer Verlängerung des Querhauses seine heutigen Ausmaße, mit denen der zur Verfügung stehende Platz auf dem Felsplateau fast vollständig ausgeschöpft war.

Da das Felsplateau jenseits der Ausdehnung von Kirche II im Osten sehr steil abfällt, mussten dort in einem ersten Schritt zunächst teils sehr hohe Substruktionen geschaffen werden. Um die Außenflucht der im Oberbau abgebrochenen ottonische Apsis wurde durch die Substruktionen ein Gang gemauert, der den Zugang zu den Stiftsgebäuden auf der Südseite des Geländes erschloss. Die Führung seines nördlichen Ausganges nimmt bewusst auf die Michaelskapelle Rücksicht und beweist damit, dass diese bereits damals existiert haben muss.
Auf dem Substruktionsplateau vergrößerte man anschließend das Querhaus um etwa zwei Drittel seiner vorherigen Breite deutlich nach Osten. In seiner Mitte wurde der Chor, bestehend aus einem sehr kurzen Vorjoch und einer gewölbten Halbrundapsis, angebaut. Kleine Nebenapsiden sind in dieser Bauphase zwar zu vermuten, wurden jedoch nicht ergraben.
Im Westen begann unter Verwendung von Mauerwerk des ottonischen Westturmes der Bau der eingangslosen, eng gestellten Zweiturmanlage mit einem Zwischenbau. In dessen erstem Obergeschoss wurde eine Emporenkapelle eingerichtet, die zum Schiff hin in zwei Arkaden geöffnet war. Bauuntersuchungen haben gezeigt, dass die Türme nicht parallel und in einem Zug entstanden: Zunächst wurden der Südturm bis zum vierten Geschoss, der unterste Teil des Nordturmes und wohl der Zwischenbau errichtet.
Da die neuen Türme an der Westkante ihres monolithischen Vorgängerbaues entstanden, jedoch nur die Hälfte seiner Breite aufwiesen, musste schließlich das Langhaus zu diesen hin verlängert werden. Dies geschah wohl ebenfalls unter Verwendung eines Großteils des Mauerwerks von Kirche II.
Kirche IIIb

Anfang des 12. Jahrhunderts wurde das Langhaus als fünfjochige Pfeilerbasilika neu erbaut. Das Mittelschiff erhielt eine Flachdecke, die Seitenschiffe Kreuzgratgewölbe. Zuvor verschmälerte man das Querschiff der Kirche IIIa auf der Westseite um Mauerstärke und erhöhte es zugleich auf jetziges Niveau. Bei diesem Vorgang entstanden noch heute auf der äußeren Südseite sichtbare Baunähte im Mauerwerk, die die ursprüngliche Breite des Querhauses erahnen lassen.
Zudem wurden die Türme bis zum heutigen Hauptgesims vollendet, eventuell erhielten sie provisorische Zeltdächer. Die Tatsache, dass das neue und heutige Mittelschiff keinen Bezug auf die nachweislich einst vorhandenen Arkadenöffnungen in ihrem Erdgeschoss mehr aufweist, lässt erkennen, dass damals die Einheit dieser Bauteile bewusst aufgegeben wurde.
Im Inneren kam es zu einer Erhöhung der Mittelapsis und zum Anbau der Nebenapsiden an das Querhaus. Die Errichtung einer steinernen Lettneranlage ist anzunehmen. Spätestens mit diesem Umbau wurde das Lubentiusgrab erneut verlegt.
Kirche IIIc
In der zweiten Hälfte des 12. Jahrhunderts erfolgte nach dem Vorbild der Johanniskirche in Lahnstein der Ausbau zur Emporenbasilika. Die Wände des Langhauses wurden erhöht und über den Seitenschiffen Emporen angelegt, wobei man die Emporenöffnungen in den alten Obergaden einbrach. Die Empore nahmen dabei Rücksicht auf die Breite, nicht jedoch den Rhythmus der darunter liegenden Arkaden. Die zuvor vorhandenen Fenster des Obergadens von Kirche IIIb wurden vermauert, und noch heute vorhandene Holzanker zur Längsversteifung in das Kernmauerwerk eingebaut.
Mit der Erhöhung der Wände einher ging auch die Erhöhung des Daches des Mittelschiffes und die Fertigstellung der Turmdächer in Form von Rautendachhelmen. Ersteres ließ sich bei der letzten Restaurierung am Putz der Westwand innerhalb des Dachstuhls erkennen, auf dem sich die alte, niedrigere Giebelform von Kirche IIIb noch abzeichnete. An der nördlichen Außenseite des Mittelschiffs entstand nach teilweisem Abbruch der Wände ein Aufgang zu den neu geschaffenen Emporen. Als wichtiges Detail wurde dabei ein Flachgiebelsturz, der wohl aus der in dieser Zeit vermauerten Südtür der Kirche IIIb stammt, in Zweitverwendung über dem Außeneingang der Treppe eingebaut.
Ebenfalls diesem Bauabschnitt entstammt die offene, westliche Steinempore und der Anbau der Sakristei im Süden, wofür man die nur wenige Jahrzehnte alte südliche Nebenapside abbrach. Der Grund für die ungewöhnlich abknickende Form wird in den schwierigen Baugrundverhältnissen in Verbindung mit dem darunter liegenden Austritt des Gangs zum südlichen Stiftgelände gesehen.
Kirche IIId
Im zweiten Viertel des 13. Jahrhunderts wurde unter dem Einfluss der nun auch in Deutschland rezipierten Gotik und der im Bau befindlichen Limburger Stiftskirche die letzte Ausbaustufe erreicht. Querhaus und Vierung erhielten ein zweijochiges Kreuzgewölbe mit Wulstrippen anstatt der vorherigen Flachdecke. Zu dessen Realisierung wurden zwei – gegenüber den übrigen Pfeilern der Kirche sichtbar schlanke – Pfeiler zwischen Vierung und Querhaus eingebaut, auf deren Konsolsteinen das Gewölbe entwickelt ist.
Auch wurde das Dach der Vierung annähernd auf das Niveau des Langhauses gehoben. Da die hierfür nötige Aufmauerung der Außenwände ausschließlich in grünem Schalstein erfolgte, zeichnet sich diese Baumaßnahme wie keine zweite deutlich am Äußeren der Kirche ab. Weitere dieser Bauphase zuzurechnende Baumaßnahmen waren die Vergrößerung der Fenster der Querhausgiebel und der Mittelapsis nach unten sowie die Einwölbung der Sakristei. Diese Veränderung ist abermals besonders gut am Südquerhaus von außen ablesbar, wo noch ein damals vermauertes älteres Schlüssellochfenster zu sehen ist.
Spätere Baumaßnahmen
Im ersten Testament des damaligen Kustos Johannes von Attendorn aus dem Jahr 1378 findet sich die erste Nennung der Dreifaltigkeitskapelle am südöstlichen Rand der Anlage. Neun Jahre später bezeichnet er sich in seinem zweiten Testament zusätzlich als der Erbauer der Kapelle. Attendorn lässt sich urkundlich erstmals 1364, damals bereits als Kustos, und letztmals 1390 nachweisen, als er im Seelbuch II der Kirche als verstorben bezeichnet wird. Die Kapelle dürfte demnach im Verlaufe des dritten Viertels des 14. Jahrhunderts erbaut worden sein.
Die einzige von außen sichtbare Hinterlassenschaft der Renovierung und Barockisierung der Kirche nach dem Dreißigjährigen Krieg ist der noch heute erhaltene Holzvorbau über dem nördlichen Hauptportal. Im Inneren wurde, wie in dieser Zeit durchaus nicht unüblich, 1692 der mittelalterliche Lettner abgebrochen und 1699 durch eine eiserne Tür zum Chor ersetzt. Im gleichen Jahr wurden die mittelalterlichen Altäre abgebrochen und durch solche im damaligen Zeitgeschmack ersetzt. Zu dem eigentlichen Pfarraltar im Chor und zwei Chorseitenaltären traten 1759 und 1760 die noch heute erhaltenen Nebenaltäre in den Apsiden hinzu.
Baubeschreibung
Äußeres
Allgemeines und Lage

Äußerlich tritt die Kirche als traditionell in Ost-West-Richtung erbaute Basilika mit vorgeschobenen, kurzem Querhaus und einer Mittel- und Nordapsis im Osten sowie einer Zweiturmfassade mit schmalem Zwischenbau im Westen in Erscheinung. Letztere werden von Rauten-, die übrigen Bauteile von flachen Satteldächern abgeschlossen. Die Gesamtlänge der Kirche beträgt 39,30 Meter bei einer maximalen Breite von 16,60 Metern.
Das Felsplateau, auf dem der Sakralbau liegt, steigt von Ost nach West an, zur Lahn hin öffnet es sich in einer tiefen Spalte. Die Zweiturmanlage steht an der höchsten Stelle des Felsens, der Osten der Kirche ruht auf starken Substruktionsfundamenten, die die verfügbare Fläche maximal ausnutzen und einen überwölbten Gang beinhalten, der das südliche Kirchgelände erschließt.

Anstelle eines ausladenden Querhauses prägt eine Vielzahl von den Osten der Kirche flankierenden Erweiterungsbauten die landschaftlich weithin einsehbare Ostseite und verleiht ihr ein ungewöhnlich heterogenes Erscheinungsbild. Die südliche Querhausapsis ist durch die dort angebaute, diagonal zum Kirchenschiff gestellte Sakristei ersetzt, darunter befindet sich die in paralleler Lage zum Hauptbau errichtete Dreifaltigkeitskapelle. Im Nordosten schließt die senkrecht zum Chor verlaufende, freistehende Michaelskapelle an.
Westlich der Kirche liegt ein alter Friedhof, der heute nicht mehr genutzt wird und sich sowohl auf das Plateau als auch auf den Bereich am Fuß des Felsens erstreckt. Am südwestlichen Abhang des Felsens sind noch die Grundmauern der ehemaligen und vermutlich wehrhaft angelegten Profangebäude des Stifts zu sehen, zwischen denen in jüngerer Zeit Wein angebaut wird.
Baumaterial
Der frühere Verputz wurde im 19. Jahrhundert analog dem Limburger Dom vollständig entfernt, so dass das Mauerwerk aus Kalkstein und grünlichem Schalstein deutlich zu Tage tritt. Dies erlaubt in der Außenbetrachtung eine genaue Beobachtung der verschiedenen Bauphasen, Materialien und Mauerwerkstechniken.
Die ältesten Teile des Hochbaus, also die Türme, die Querhausstirnwände und die Wände der Ostpartie, vor allem der Apsiden und der Vierung, sowie die nur wenig später entstandenen unteren Teile der Langhauswände, sind technisch aus hammerrecht bearbeiteten Bruchsteinen mit eingesprengten größeren Steinen als Ausgleichsschichten hergestellt. An den Ecken der Türme verwendete man ausgesuchte größere Steine, die jedoch zu vereinzelt auftreten, um als beabsichtigte Eckquaderung gewertet werden zu können.
Erst in den oberen Zonen der Seitenschiffs- und Mittelschiffswände zeigt sich ein Wechsel in der Mauerwerksstruktur. Dort sind flache Schalsteine teils in Schichten, teils bei kleinerem Format in Rollschichten zusammengepackt. Die Aufmauerung der Vierung erfolgte schließlich vollständig in grünem Schalstein, wodurch sich das alte Giebelniveau in der Ostansicht noch deutlich abzeichnet.
Beim etwa zeitgleich anzusetzenden Einbrechen der Dreifaltigkeitskapelle in die Substruktion der darüber liegenden Sakristei wurde ein Mischmauerwerk aus flachen Kalk- und Schalsteinen angewandt. Dieses setzt bis in den Oberbau fort, da man diesen aus statischen Gründen wohl ebenfalls neu errichten musste. Als einziges weiteres Material am Außenbau findet sich neben schmalen Kupferblechen an der Ostseite dunkler Schiefer, der sämtliche Dächer deckt.
Westtürme
Für das Äußere prägend sind die beiden quadratischen Türme mit ihren Rhombendächern, der unterschiedlichen Höhe und der vermutlich neuzeitlichen überdachten Holzbrücke zwischen den Giebeln, sie bestimmen das Erscheinungsbild der Kirche. Sie stehen auf Felssockeln mit deutlich unterschiedlicher Höhe. Beide weisen fünf Geschosse auf, jeweils die beiden obersten und die Giebel mit schmalen Schallöffnungen. Der höhere Südturm trägt einen Wetterhahn über einem Kreuz, der Nordturm eine Wetterfahne. Anders als bei den meisten Zweiturmbasiliken befindet sich im Turmzwischenbau kein Eingangsportal.
Inneres
Das zweiflügelige Hauptportal an der Nordseite des nördlichen Seitenschiffs ist mit Schmiedearbeiten versehen, die teilweise auf das 13. Jahrhundert zurückgehen. Das hölzerne Schutzdach über dem Eingang wurde am Ende des 17. Jahrhunderts errichtet.
Das Langhaus ist dreischiffig mit fünf Jochen aufgebaut. Die Seitenschiffe weisen jeweils fünf rundbogige Fenster auf, das Hauptschiff sechs Rundbogenfenster. Dem nördlichen Seitenschiff ist ein Treppenhaus vorgebaut, das zur Empore über den Seitenschiffen führt.
Die nach Osten weisende Hauptapsis wird von drei gestaffelten Rundbogenfenstern durchbrochen und von einem halbierten Kegeldach bedeckt. Das Erdgeschoss des Nordturms beherbergt die Lubentiuskapelle mit den Gebeinen des Heiligen, das des Südturms den Treppenaufgang zu den Türmen und zur Orgelempore.
-
Blick durch das Langhaus auf den Altarraum -
Blick vom Altarraum durch das Langhaus
Michaelskapelle

Die vermutlich kurz vor dem Jahr 1000 errichtete Kapelle schließt sich im Nordosten an die Kirche an. Ihr Keller beherbergt ein Beinhaus. Im Erdgeschoss befindet sich ein neugotischer Altar, der den Erzengel Michael als Sieger über den Teufel zeigt. Das Erdgeschoss weist zudem im Osten eine kleine Apsis auf, die bis 1958 zugemauert war. Bei der Freilegung sind Reste einer mittelalterlichen Wandmalerei zu Tage getreten, die wohl einmal einen thronenden, von den Evangelisten umgebenen Christus dargestellt hat. Auch von der Kreuzigungsszene auf der Westwand, vermutlich aus dem frühen 20. Jahrhundert, sind nur noch wenige Reste vorhanden.
Derzeit wird die Michaelskapelle saniert und ist daher für die Öffentlichkeit nicht zugänglich.
Dreifaltigkeitskapelle

Die Dreifaltigkeitskapelle befindet sich am Südostrand des Plateaus. Sie wurde 1378 erstmals erwähnt und kann nicht lange vorher erbaut worden sein. Kurz vor 1700 wurde sie im Stil des Barock umgestaltet und mit dem heutigen Altar versehen, der aus der Schule des „Hadamarer Barock“ stammt. Seinen Mittelpunkt bildet eine Darstellung der Maria Immaculata. Hinter dem Altar findet sich ein prunkvolles Wandgemälde, das die Fürsprache Jesu für die Menschen thematisiert.
In der Dreifaltigkeitskapelle wird einmal monatlich ein Evangelischer Gottesdienst der Evangelischen Kirchengemeinde Limburg gehalten.
Ausstattung
Langhaus
An der Wand des Mittelschiffs zur Vierung hin hängt ein Holzkreuz vom Ende des 19. Jahrhunderts.
Das südliche Seitenschiff trägt an der östlichen Außenwand das aus schwarzem Marmor gefertigte Epitaph des Stiftsdekans Johann Leonidas Schlüpgen von 1702. Rechts daneben befindet sich das Epitaph für Emmerich Friedrich de Fabre von 1719, das aus schwarzem und weißem Marmor besteht. De Fabre war napoleonischer Offizier und Sohn des Dietkirchener Posthalters. Im nächsten Seitenschiffjoch in Richtung Westen hängen acht Kreuzwegstationen von 1974, daneben eine Nische mit Pietà-Darstellung in der Außenwand.
Das nördliche Seitenschiff wird im Osten von einem farbigen Epitaph für den 1550 gestorbenen Ritter Philipp Frei von Dehrn bestimmt. Die Stiftskirche war Grablege der Familie Frei von Dehrn. Daneben hängen drei eiserne Fußfesseln. Der Sage zufolge stammen sie von einem Ritter Dietrich von Dehrn, der sie zum Dank für seine Rettung aus türkischer Gefangenschaft gestiftet haben soll. Im nächsten Joch in westlicher Richtung ist eine Kreuzigungsgruppe angebracht, die 1699 von dem Hadamarer Bildhauer Johann Valentin Neudecker gestaltet wurde. Neben dem Eingangsportal schließlich hängt eine Holzstatuette von Jakobus dem Älteren. Auf der anderen Seite der Tür ist ein Taufstein aus Basalt aus dem 13. Jahrhundert aufgestellt. Der hölzerne Deckel entstand um 1600.
Orgel
.jpg)
Eine Orgel ist für 1294 bezeugt. Im 15. Jahrhundert gab es zwei Orgeln, 1600 eine neue und 1712 schließlich die heutige Orgel. Sie geht in ihrem Grundstock auf Johann Jakob Dahm zurück, der ein einmanualiges Werk mit 13 Registern schuf, welches sich auf der Empore am westlichen Ende des Langhauses befindet. Der Prospekt zeigt Engel mit Fanfarentrompeten auf zwei seitlichen Türmen und einen triumphierenden Christus auf dem Mittelturm.
Ein eingreifender Erweiterungsumbau erfolgte im Jahr 1893 durch Michael Keller aus Limburg. Ein weiterer Umbau im Stil des Neubarock wurde im Zuge der Kirchenrenovierung 1959 durch Eduard Wagenbach hinter dem historischen Prospekt von Dahm abgeschlossen. Danach verfügte die Orgel über 29 Register auf zwei Manualen und Pedal.[3] 2002 wurde die Orgel von der Marburger Firma Gerald Woehl noch einmal grundlegend umgebaut und auf 38 Register erweitert.[4]
|
|
|
| ||||||||||||||||||||||||||||||||||||||||||||||||||||||||||||||||||||||||||||||||||||||||||||||||||||||||||||||||||||||||||||||||||||||||||||||||||||||||||
- Anmerkung
- H = Register aus der Orgel von Jakob Dahm (1712)
Glocken
Bis 1917 waren vier Glocken aus den Jahren 1753, 1850 und 1904 vorhanden. Die Dreifaltigkeitsglocke von 1753 (100 cm, ca. 600 kg) überdauerte als einzige beide Weltkriege. Zum Ersatz für die im Ersten Weltkrieg abgegebenen Glocken goss die Glockengießerei Schilling aus Apolda im Jahre 1926 drei Glocken, die jedoch bereits 1942 abgeliefert werden mussten. 1955 fertigte man in der Gießerei Petit & Gebr. Edelbrock drei Glocken mit denselben Patrozinien der Vorgängerinnen – Lubentius (150 cm, 2.142 kg), Maria (124 cm, 1.160 kg) und Michael (114 cm, 960 kg) – sodass das Geläut wieder vierstimmig vom Nordturm erklingen konnte.
Anlässlich seiner Deutschlandreise weihte Papst Johannes Paul II. 1980 eine große, ebenfalls dem heiligen Lubentius gewidmete Glocke (195 cm, ca. 5.000 kg), die auch als Papstglocke bezeichnet wird. Sie wurde in einen neuen Glockenstuhl im Südturm aufgehängt. Das fünfstimmige Gesamtgeläut erklingt seitdem in den Schlagtönen as0, c1, es1, f1 und g1.[5][6]
Die Turmuhr schlägt die Viertelstunden auf Glocke 4, die Stunden auf Glocke 2. Zum täglichen Angelusläuten erklingt Glocke 3 mit dreimal drei Schlägen, danach wird Glocke 4 für kurze Zeit geläutet.
Vierung und Apsis
Der jüngste größere Ausstattungsgegenstand ist das vom Gemeindebereich aus gesehen links stehende Sakramentshaus aus Sandstein, eingebaut 1981. Hauptaltar und Ambo wurden 1978 ebenfalls aus Sandstein gefertigt. Die mit blauem Glas versehenen Fenster der Apsis wurden in den 1950er Jahren eingebaut.
In der Apsis des nördlichen Querschiffs steht ein Marienaltar aus dem Jahr 1758. Ebenfalls aus der Zeit um 1760 stammt der Petrusaltar an der Ostwand des südlichen Querhausflügels. An der nördlichen Querhausstirnwand befindet sich eine hölzerne Josefsstatue mit Jesuskind und an der gegenüberliegenden eine des heiligen Lubentius.
-
Epitaph von Emmerich Friedrich de Fabre -
Marienaltar in der nördlichen Seitenapsis -
Petrusaltar im südlichen Seitenschiff -
Jakobusstatue neben der Eingangstür (um 1500, vielleicht aus Lindenholzhausen) -
Josefsstatue -
Lubentiusstatue -
Pietà im südlichen Querhaus -
Epitaph des Philipp Frei von Dehrn
Lubentiuskapelle
In der Westwand des nördlichen Seitenschiffs befindet sich der Eingang zur Lubentiuskapelle. Sie wird dominiert von einem Altar aus den 1970er Jahren, unter dem sich der Sandsteinsarkophag befindet, in dem vermutlich im 9. Jahrhundert die Gebeine des heiligen Lubentius nach Dietkirchen gebracht wurden und in dem sie sich noch heute befinden. Hinter dem Gitter des Altaraufsatzes befindet sich ein Reliquiar in Büstenform.
Der Kopf der Büste, in den ein Teil des Schädels des Heiligen eingeschlossen ist, wurde kurz vor 1300 möglicherweise in Mainz gefertigt, der Brustteil der Büste 1477. Möglicherweise wurde der Kopf des Reliquiars nicht eigens für die Lubentius-Reliquie angefertigt, da der Hohlraum deutlich zu klein für die vorhandenen Knochenfragmente ist. Die Kinnlade passt überhaupt nicht in das Behältnis und befindet sich mit den übrigen noch vorhandenen Knochenstücken im Hochaltar. Auch die Schädelstücke, die in dem Reliquiar liegen, haben im Verlauf der Jahrhunderte an Druckstellen deutliche Schäden davongetragen. Der Kopf der Büste bestand ursprünglich aus einem Stück, später wurde die Schädeldecke des Behältnisses durchschnitten und mit Scharnieren versehen, so dass sie sich aufklappen ließ. Diese Schädeldecke wurde 1846 gestohlen und 1955 ersetzt.
-
Kriegerdenkmal neben der Michaelskapelle -
Gräber neben dem Kirchenportal
Sonstiges
- Während ihrer Europareise 1985 stattete Mutter Teresa der Stiftskirche St. Lubentius einen Besuch ab, um am Grab des heiligen Lubentius zu beten.
- Im Rahmen einer Abstimmung des Hessischen Rundfunks im Jahr 2011 wurde die Lubentius-Basilika auf Platz 10 der schönsten Kirchen Hessens gewählt[7][8]
Literatur
- Folkhard Cremer (Bearb.): Handbuch der deutschen Kunstdenkmäler. Hessen I. Regierungsbezirke Gießen und Kassel. Deutscher Kunstverlag, München 2008, ISBN 978-3-422-03092-3, S. 165–170.
- Marie-Luise Crone: Dietkirchen. Geschichte eines Dorfes im Schatten des St. Lubentiusstifts. Magistrat der Kreisstadt Limburg an der Lahn, Limburg an der Lahn 1991, ISBN 3-9802789-0-5.
- Verena Fuchß, Landesamt für Denkmalpflege Hessen (Hrsg.): Kulturdenkmäler in Hessen. Stadt Limburg. Konrad Theiss Verlag, Stuttgart 2007, ISBN 978-3-8062-2096-4, S. 455–459.
- Gabriel Hefele: Dietkirchen a. d. Lahn. Kath. Pfarrkirche St. Lubentius. 3. Auflage. Schnell & Steiner, Regensburg 2006, ISBN 978-3-7954-5802-7.
- Wilhelm Schäfer: Die Baugeschichte der Stiftskirche St. Lubentius zu Dietkirchen im Lahntal. Verlag der Historischen Kommission für Nassau, Wiesbaden 1966 (Veröffentlichungen der Historischen Kommission für Nassau XIX).
- Wolf-Heino Struck: Das Erzbistum Trier 4. Das Stift St. Lubentius in Dietkirchen. In: Max-Planck-Institut für Geschichte (Hrsg.), Irene Crusius (Redaktion): Germania Sacra. Historisch-statistische Beschreibung der Kirche des Alten Reiches. Neue Folge 22. Die Bistümer der Kirchenprovinz Trier. Walter de Gruyter, Berlin/New York 1986, ISBN 978-3-11-010829-3 (online).
Weblinks
- Archivalien zum Lubentiusstift im Hessischen Hauptstaatsarchiv, Wiesbaden
- Pfarrei St. Lubentius Limburg-Dietkirchen ( vom 11. Februar 2013 im Webarchiv archive.today)
- Landesamt für Denkmalpflege Hessen (Hrsg.): Kath. Pfarrkirche St. Lubentius und Juliana, ehem. Stiftskirche In: DenkXweb, Online-Ausgabe von Kulturdenkmäler in Hessen
- Virtueller 360°-Rundgang durch St. Lubentius in Dietkirchen
Einzelnachweise
- ↑ Johann Samuel Ersch u. Johann Gottfried Gruber: Allgemeine Encyclopädie der Wissenschaften und Künste, 1. Sektion, 25. Teil; S. 93, Brockhaus Verlag, Leipzig, 1834; (Digitalscan)
- ↑ Urkunde über die Neuordnung der Katholischen Pfarreien und Kirchengemeinden St. Antonius Eschhofen, St. Georg Limburg, St. Hildegard Limburg, St. Jakobus Lindenholzhausen, St. Johannes der Täufer Elz, St. Lubentius Dietkirchen, St. Marien Limburg, St. Nikolaus Dehrn und St. Servatius Offheim sowie der Pfarrvikarie und Kirchengemeinde St. Josef Staffel. In: Amtsblatt des Bistums Limburg 2022 (Ausgabe 13/2022 vom 8. Dezember 2022). S. 685f., abgerufen am 12. Mai 2024.
- ↑ Franz Bösken: Quellen und Forschungen zur Orgelgeschichte des Mittelrheins (= Beiträge zur Mittelrheinischen Musikgeschichte. Band 7,1). Band 2: Das Gebiet des ehemaligen Regierungsbezirks Wiesbaden. Teil 1: A–K. Schott, Mainz 1975, ISBN 3-7957-1307-2, S. 123 f.
- ↑ Zur Disposition
- ↑ Hubert Foersch: Limburger Glockenbuch. Glocken und Geläute im Bistum Limburg. Verlag des Bischöflichen Ordinariates, Limburg 1997, S. 579–581.
- ↑ Limburg-Dietkirchen: St. Lubentius. Hessischer Rundfunk (HR 4), abgerufen am 20. Juni 2018 (deutsch).
- ↑ Ronshäuser Wehrkirche schlägt Stiftsruine!, 22. April 2011 auf kreisanzeiger-online.de ( vom 29. April 2013 im Webarchiv archive.today)
- ↑ Wettbewerb - die schönste Kirche Hessens, auf ev-kirche-hatzfeld.de, abgerufen am 3. März 2013.
Koordinaten: 50° 24′ 10,7″ N, 8° 5′ 47″ O