Fahrzeugbegrenzungslinie
Die Fahrzeugbegrenzungslinie beschreibt die größten zulässigen Querschnittsabmessungen von Schienenfahrzeugen, die von keinem Fahrzeugteil überschritten werden dürfen. Sie begrenzt somit den Raumbedarf der Fahrzeuge und steht im direkten Zusammenhang mit dem Lichtraumprofil.
Begriff
In der Vergangenheit wurden die Begriffe Umgrenzungslinie bzw. Umgrenzungsprofil benutzt, um die Fahrzeugbegrenzungslinie zu beschreiben. Diese Begriffe wurde auch in die Betriebsordnung (BO) von 1928 übernommen.[1] In der Verordnung betreffend die Technische Einheit im Eisenbahnwesen (TE) wird hingegen von der Fahrzeugbegrenzung gesprochen.[2] Dieser Begriff wird auch in den Merkblättern des Internationalen Eisenbahnverbands (UIC)[3] und in den aktuellen Normen[4] verwendet. Beim Lichtraumprofil wird hingegen von einer Umgrenzung des lichten Raumes bzw. Lichtraumumgrenzung gesprochen.[3][4]
Geschichte
In den Anfangsjahren der Eisenbahn entwickelten sich auf den noch nicht zusammenhängenden Netzen unterschiedliche Normen für die Querschnittsgestaltung der Bahnanlagen, wie z. B. Gleisabstände, Tunnel und Unterführungen von Brücken. Mit dem Zusammenwachsen der einzelnen Netze entwickelte sich das Bedürfnis, Güterwagen im freizügigen Verkehr einsetzen zu können. Im Jahr 1867 wurde erstmals für alle Bahnen des Vereins Deutscher Eisenbahnverwaltungen (VDEV) ein Lademaß als Minimum aller Lademaße der Mitgliedsbahnen beschlossen. Um größere Ladungen transportieren zu können, wurden ab 1872 insgesamt vier Lademaße verwendet, wobei man sich 1893 wieder auf zwei Lademaße einigte. Das größere Lademaß I war auf den Großteil der Mitgliedsbahnen und das Lademaß II auf allen Mitgliedsbahnen gültig.[5] Die Fahrzeugbegrenzungslinie des Lademaß I wurde auf eine halbe Breite von 1575 mm (gesamte Breite 3150 mm) festgelegt, die sich oberhalb von 3500 mm verjüngt, und in der Wagenmitte maximal 4650 mm hoch ist. Das kleinere Lademaß II wurde ebenfalls auf eine halbe Breite von 1575 mm (gesamte Breite 3150 mm) festgelegt, die sich oberhalb von 3200 mm verjüngt, und in der Wagenmitte maximal 4300 mm hoch ist.

Auf einer Konferenz 1912 in Bern einigten sich nach jahrelangen Verhandlungen die an den Vereinbarungen über die Technische Einheit im Eisenbahnwesen beteiligten Regierungen auf einem gemeinsamen Mindeststandard, sodass die nach dieser Fahrzeugbegrenzungslinie gebauten Güterwagen international eingesetzt werden konnten. Diese Güterwagen werden auch als Transitwagen[6] bezeichnet und die zugehörige Fahrzeugbegrenzungslinie als Gabarit passe-partout international, abgekürzt als Gabarit PPI. Das französische Wort „Gabarit“[7] heißt wörtlich Schablone oder Profil und leitet sich von den Ladelehren ab, die an Übergängen zwischen den Streckennetzen verschiedener Gesellschaften standen; das französische „passe-partout“ heißt wörtlich „passt überall“. Ein „Gabarit Passe-Partout“ bezeichnet somit ein Einheitsmaß für Züge. Die Fahrzeugbegrenzungslinie wurde auf eine halbe Breite von 1575 mm (gesamte Breite 3150 mm) festgelegt, die sich oberhalb von 3175 mm verjüngt, und in der Wagenmitte maximal 4280 mm hoch ist. Diese Fahrzeuge müssen dabei das dazugehörige Lichtraumprofil auch bei einem kleinsten Bogenradius von 250 m einhalten (lange Wagen müssen daher schmaler sein). Der Mindeststandard leitet sich dabei von dem besonders kleinen Lichtraumprofil in Frankreich ab, wo neben England die ersten Bahnstrecken überhaupt errichtet wurden. Da es bis zum Bau des Ärmelkanaltunnels keine feste Verbindung zu den britischen Inseln gab, galt das Gabarit PPI ursprünglich allerdings nicht für die dortigen Bahnen (tatsächlich sind viele Strecken dort schmaler), sondern PPI meint das Einheitsmaß für Kontinentaleuropa (wobei auch im damaligen Frankreich einige Strecken verbreitert werden mussten, die noch auf 3000 mm Breite errichtet wurden). Die nach dem Gabarit PPI gebauten Güterwagen hatten bei einer typischen Bodenhöhen von 1100 mm bis 1300 mm (gilt auch heute für die meisten Flachwagen) eine gerade Außenwand von rund zwei Metern für die Aufbauten zur Verfügung stehen.

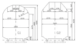
Das Gabarit PPI wurde von den einzelnen Mitgliedsbahnen der TE als Fahrzeugbegrenzungslinie für die Fahrzeuge im internationalen Verkehr übernommen. In Deutschland passte 1913 der VDEV die Bestimmungen über die Umgrenzung des lichten Raums entsprechend an. Es wurde mit leichten Änderungen auch in die Betriebsordnung als Umgrenzung I und später in die Eisenbahn Bau- und Betriebsordnung (EBO) von 1967 als Begrenzung I für Fahrzeuge übernommen.[8] Diese Fahrzeugbegrenzungslinie wurde schließlich mit weiteren kleinen Änderungen von der UIC als statische Fahrzeugbegrenzungslinie G1 übernommen.[3] Aus dem Lademaß I der VDEV-Bahnen entwickelte sich die Umgrenzung II bzw. Begrenzung II und die statische Fahrzeugbegrenzungslinie G2 der UIC.

Ab Mitte der 1950er Jahre wurde von der UIC eine kinetische Berechnungsmethode erarbeitet. Dies wurde nötig, da die damals gebauten Fahrzeuge mit weicheren Federn ausgestattet wurden und sich deshalb mehr in Bögen neigten.[3] Es wurden dazu Bezugslinien mit einer halben Breite von 1645 mm definiert, aus denen zusammen mit den zugehörigen Rechenvorschriften die Fahrzeugbegrenzungslinie und das Lichtraumprofil festgelegt werden können. Die UIC entschied 1991, dass die statischen Methode nur noch bei Ladungen und für die Fahrzeugbegrenzungslinie und das Lichtraumprofil nur noch die kinematische Methode angewandt werden darf. Daraufhin wurde im Mai 1991 die EBO entsprechend geändert und die bisherigen statischen Fahrzeugbegrenzungslinien durch die kinematischen Bezugslinien G1 und G2 ersetzt.

Mit der Verbreitung des Kombinierten Verkehrs wurden für den Transport von ISO-Containern mit einer Höhe von rund 2600 mm innerhalb der Fahrzeugbegrenzungslinie G1 neue Flachwagen mit einer niedrigeren Bodenhöhe von 940 mm notwendig. In den 1970er Jahren wurde von der UIC deshalb eine Arbeitsgruppe eingesetzt, um neue Begrenzungslinien zu definieren. Auf Basis einer Bestandsaufnahme von möglichen Kombinationen Güterwagen plus Ladung wurden schließlich 1987 die im oberen Bereich gegenüber der Begrenzungslinie G1 erweiterten Begrenzungslinien Gabarit A (GA), Gabarit B (GB) und Gabarit C (GC) definiert. Um auch bisherige Flachwagen für den Containertransport einsetzen zu können, modifiziert man auch das Lichtraumprofil „GB“ in Frankreich, sodass bei gleicher Höhe der Außenwände (3175 mm) und in der Fahrzeugmitte (4320 mm) noch eine weitere Höhenangabe hinzukommt, die auf einer Höhe von 4180 mm eine Breite von 2720 mm fordert. Dieses Fahrzeugbegrenzungslinie mit nahezu flachem Dach wird als Gabarit B+ (kurz „GB+“) oder auch als GB1 bezeichnet.
Andere Fahrzeugbegrenzungslinien
Obwohl die Bezeichnung PPI auf „international“ hindeutet, bezeichnet es nur das kleinste Einheitsmaß in Kontinentaleuropa. Im zusammenhängenden Streckennetz von Nordamerika verwendet man als mindeste Breite 3250 mm (10 Fuß 8 Zoll) und kennt als kleinste Höhe ein Maß von 4620 mm (15 Fuß 2 Zoll).
In Fernost hat sich auf den normalspurigen Netzen mit Hochgeschwindigkeitszügen ein Lichtraumprofil mit einer Breite über 3400 mm durchgesetzt – sowohl die Wagenkästen der chinesischen CRH2 wie die der japanischen Shinkansen-Baureihe 0 sind 3380 mm breit. Eine Breite von 3400 mm ist auf den Breitspurnetzen im russischen Einflussgebiet einschließlich Finnland üblich. Daraus folgt, dass die russischen Velaro Sapsan und die chinesischen Velaro CRH3 je eine Fahrzeugbreite von 3265 mm aufweisen, während die deutschen Velaro ICE 3 mit einer Kastenbreite von 2950 mm auskommen müssen, um in das Grundmaß des Lademaßes PPI zu passen. Auf Normalspur wird in Europa eine Breite von 3400 mm auf niederländischen und schwedischen Strecken (Lademaß SE-A und Lademaß SE-B) genutzt. In Deutschland sind einige Strecken auf dieses Lademaß vorbereitet, um LÜ-Sendungen aus den angrenzenden breiteren Bahnnetzen ohne Betriebseinschränkungen zu ermöglichen. In einer ICE-4-Projektstudie wurde auch eine Variante mit 3300 mm Fahrzeugbreite angedacht – dies wurde jedoch nie realisiert.
Das schwedische Lademaß SE-C ermöglicht auf Normalspur Sendungen mit 3600 mm Breite und 4830 mm Höhe. Bauwerke wie die Öresundbrücke und Fehmarnbeltquerung sind darauf ausgelegt worden.[9] In Schweden gibt es ein zusammenhängendes Hauptstreckennetz in dieser Ausbaustufe, das Trelleborg, Malmö, Göteborg, Stockholm und Haparanda miteinander verbindet. Im Zuge des Ausbaus der Strecken nach Mitteleuropa (siehe Bauwerke nach Dänemark) wird hervorgehoben, dass eine Höhe von 4830 mm den Transport von Sattelaufliegern mit einer Höhe von 4500 mm ermöglicht, und empfiehlt einen Ausbau von Anschlussstrecken in der EU auf 3150 mm Breite und 4830 mm Höhe.[10]
Kontinentalübergreifend betrachtet sind die jeweils verwendeten kleinsten Maße zu niedrig für den Doppelstock-Containertransport. In Nordamerika ist man derzeit dabei, viele ältere Strecken für eine Höhe von 6150 mm umzubauen, um dieses weitläufig (mit zwei Hi-Cube-Containern übereinander) zu ermöglichen. Dies ist dort aber auch leichter möglich, da fast keine Strecken elektrifiziert sind. In Kontinentaleuropa wirkt die Fahrdrahthöhe begrenzend und insbesondere die Höhe von Brücken und Tunneln erlaubt praktisch keinen Umbau auf ein wesentlich höheres Lichtraumprofil.
Lademaß

Allgemeines
Als Lademaß wird eine Fahrzeugbegrenzungslinie bezeichnet, die die äußeren Maße eines Güterwagen in der Mittelstellung des Fahrzeugs im geraden Gleis festlegt.[11]

Zur Überprüfung des Lademaß werden sogenannte Ladelehren, Ladeprofile, Ladeschablonen oder umgangssprachlich auch als Profilgalgen bezeichnete ortsfeste Lehren verwendet. Früher fanden sich diese auf Nebengleisen (z. B. Freiladegleise, Güterschuppen, Gleiswaage) oder am Übergang zwischen verschiedenen Bahnverwaltungen aus Holz- oder Eisenprofilen konstruierte Ladelehren, die sich zur Überprüfung des Lademaßes beladener Güterwagen in das Gleis herausschwenken ließ. Berührte die Lehre die Ladung nicht, war die Fahrzeugbegrenzungslinie eingehalten und der Wagen konnte auf dem Eisenbahnnetz verkehren, ohne dass ortsfeste Einrichtungen an der Strecke mit der Ladung kollidieren würden. Falls das Lademaß nicht eingehalten wurde, musste die Ladung reguliert werden oder der Wagen als Lademaßüberschreitung verkehren.
Während der Zugfahrt erfolgt die Zugbeobachtung durch Augenschein des örtlichen Personals auf Unregelmäßigkeiten an der Ladung, wie z. B. verrutschte oder lose Ladung, die das Lademaß überschreitet. Entsprechende streckenseitige Überwachungssysteme können dies auch automatisch erkennen.
Lademaßüberschreitung
Lademaßüberschreitungen (In Deutschland häufig mit LÜ-Sendung abgekürzt) sind Sendungen, die, unter Berücksichtigung der Einschränkungen der Ladebreite, das kleinste Lademaß der am Laufweg beteiligten Eisenbahninfrastrukturunternehmen überschreiten. Sie gelten als außergewöhnliche Transporte. Eine Sendung gilt als außergewöhnlich, wenn sie wegen äußerer Abmessungen, Gewicht oder aufgrund ihrer Beschaffenheit nur unter besonderen technischen oder betrieblichen Bedingungen befördert werden kann.[13][14]
International
Lademaßüberschreitungen im internationalen Eisenbahnverkehr sind ein bekanntes Problem der internationalen Logistik. Die entsprechenden Anforderungen werden von internationalen Gremien der Eisenbahngesellschaften koordiniert. Von besonderem Interesse sind die Transportmöglichkeiten beispielsweise für die NATO, wenn es darum geht, die Militärlogistik international abzustimmen. Dazu werden Regelwerke wie in den STANAGs festgehalten.
Ein Netz von Eisenbahnstrecken muss dabei insbesondere für den Transport von Panzern vorbereitet sein. Diese überschreiten mit 3,75 m (deutsche Tiger II und Leopard 2) und 3,8 m (russische T-90 und T-15) die allgemeinen Fahrzeugbegrenzungslinien.
Deutschland
Definition
Sendungen mit Lademaßüberschreitungen – kurz auch LÜ-Sendungen genannt – haben eine gemessene halbe Breite von mehr als 1575 mm abzüglich verschiedener Zuschläge[15] und müssen von einer technischen Fachkraft überprüft werden.
Einteilung
Bei Lademaßüberschreitungen (kurz LÜ) gibt es besondere Verfahrensweisen. Bei der größtmöglichen Lademaßüberschreitung Dora muss z. B. das Nachbargleis gesperrt werden und Kreuzungen sind nicht ohne weiteres möglich. Die verschiedenen LÜ werden mit Buchstaben bezeichnet und bedeuten im Einzelnen:
- (a) „LÜ Anton“: nur Höhenüberschreitung, ohne Maßnahmen für das Gegengleis
- z. B. Doppelstockwagen in einem normalen Wagenzug
- (b) „LÜ Berta“: geringe Breitenüberschreitung, ohne Maßnahmen – zu letzteren siehe (c)
- lässt das Vorbeifahren regulärer LÜ-Sendungen Anton und Berta im Nachbargleis zu.
- (c) „LÜ Cäsar“: Breitenüberschreitung, Ausschluss von LÜ-Sendungen Berta oder Cäsar im Nachbargleis
- Es können im Nachbargleis nur noch Regelsendungen verkehren. Um einen Zusammenstoß mit einer anderen LÜ-Sendung auszuschließen, wird hier betrieblich gesehen das Anbieten des Zuges notwendig.
- (d) „LÜ Dora“: große Breitenüberschreitung, Sperrung des Nachbargleises
- Aufgrund der extremen Breite wird es nötig, vor dem Verkehren dieser Fahrzeuge das betroffene Nachbargleis zu sperren und von allen Fahrzeugen und Personen freizuhalten.
Berechnung
S entspricht dem mittleren Gleisabstand, also gemessen von der Gleismitte des einen Gleises zur Gleismitte des nächsten Gleises. 1750 mm ist die reguläre halbe Breite eines Fahrzeuges bestehend aus 1575 mm, was dem Lademaß im deutschen Netz entspricht, plus 75 mm als Zuschlag für den Bogenausschlag des Fahrzeuges in Bögen plus weiterer 100 mm als Zuschlag für Betriebsunregelmäßigkeiten. Eine Regelsendung, aber auch die LÜ-Sendung Anton hat folglich nie eine halbe Breite über 1750 mm. Als LÜ-Berta bezeichnet man ein Fahrzeug, wenn es eine halbe Breite zwischen 1750 mm und S/2 hat. Zur Gruppe LÜ-Cäsar zählen alle Fahrzeuge mit einer halben Breite von S/2 bis S-1750 mm. Alles, was das Maß S-1750 mm übersteigt, ist eine LÜ-Dora.
Kennzeichnung
Alle außergewöhnlichen Sendungen, auch LÜ-Sendungen, werden speziell gekennzeichnet. Dies geschieht durch einen blauen Zettel (Muster U) im Zettelhalter des Wagens, dem Frachtbrief wird das passende Gegenstück, der kleine blaue Zettel, beigefügt, und in der Wagenliste wird in der Spalte 10 unter Bemerkungen „LÜ“ eingetragen.
Siehe auch
- Berner Raum – im Englischen heißt das Lademaß PPI auch Berne Gauge (Berner Lademaß), was nicht mit dem ebenfalls im Eisenbahnwesen gültigen Berner Raum und dem in der englischen Sprache für die Spurweite verwendeten Begriff gauge verwechselt werden darf.
- Itinéraire à Grand Gabarit – die Route mit großem Profil ist eine Straßenverbindung in Frankreich für den Transport von Teilen des Airbus A380
Anmerkungen
- ↑ Eisenbahn-Bau- und Betriebsordnung (BO). In: Deutsches Reichsgesetzblatt. Band 1928, Nr. 37, S. 542–588 (wikimedia.org).
- ↑ SR 742.141.3 Verordnung vom 16. Dezember 1938 betreffend die Technische Einheit im Eisenbahnwesen. 16. Dezember 1938, abgerufen am 23. Oktober 2019.
- ↑ a b c d Entstehungsgeschichte, Begründungen und Kommentare zur Ausarbeitung und Entwicklung der UIC-Merkblattreihen 505 und 506 mit dem Thema Begrenzungslinie. In: UIC (Hrsg.): UIC-Kodex. 3. Ausgabe Auflage. UIC 505-5, August 2010.
- ↑ a b Bahnanwendungen – Begrenzungslinien – Teil 1: Allgemeines. DIN EN 15273-1, Oktober 2017.
- ↑ Suadicani: Lademaß. In: Freiherr von Röll (Hrsg.): Enzyklopädie des Eisenbahnwesens. Zweite, vollständig neu bearbeitete Auflage. Band 7, 1912, S. 45 (zeno.org).
- ↑ Cimonetti: Umgrenzungslinien für Eisenbahnfahrzeuge und Ladungen. In: Freiherr von Röll (Hrsg.): Enzyklopädie des Eisenbahnwesens. Zweite, vollständig neu bearbeitete Auflage. Band 10, 1912, S. 12 (zeno.org).
- ↑ gesprochen wie "Gabbaríe" / in Lautschrift []
- ↑ Bundesverkehrsministerium (Hrsg.): Eisenbahn-Bau- und Betriebsordnung. Erste Auflage. 8. Mai 1967 (bgbl.de [PDF]).
- ↑ Hans E. Boysen: Øresund and Fehmarnbelt high-capacity rail corridor standards updated. In: Journal of Rail Transport Planning & Management. 4. Jahrgang, Nr. 3, Dezember 2014, S. 44–58, doi:10.1016/j.jrtpm.2014.09.001.
- ↑ Hans Boysen: Entwicklung größerer Lademaße für Europa. eurailpress, August 2014.
- ↑ Lademaß. In: Lexikon Eisenbahn. 6., bearbeitete und ergänzte Auflage. transpress, Berlin 1981, S. 486.
- ↑ Jürgen Riedl: Ladeschablonen, laenderbahn-forum.de, abgerufen am 17. Juni 2014.
- ↑ Lademaßüberschreitung. In: Lexikon Eisenbahn. 6., bearbeitete und erweiterte Auflage. transpress, Berlin 1981, S. 486.
- ↑ UIC-Merkblatt 502-1:2016-03 Außergewöhnliche Sendungen - Bestimmungen für die Planung und Behandlung von außergewöhnlichen Sendungen
- ↑ Verladerichtlinien der DB Cargo AG (UIC - Verladerichtlinien). DB Cargo AG, archiviert vom am 20. März 2017; abgerufen am 23. März 2017.