Klosterkirche Lobenfeld
Die Klosterkirche in Lobenfeld, einem Ortsteil von Lobbach im Rhein-Neckar-Kreis im nördlichen Baden-Württemberg, geht auf das 12. Jahrhundert zurück und war Kirche des 1560 aufgehobenen Klosters Lobenfeld. Die Kirche zählt zu den bedeutenden staufischen Bauwerken in Baden-Württemberg und ist einer der wenigen erhaltenen romanischen Bauten im Kraichgau. Das Langhaus der Kirche wurde ab dem frühen 19. Jahrhundert säkular genutzt und erst 1997 als Teil der Kirche wiederhergestellt.
Geschichte
Nach der vor 1150 erfolgten Gründung des Klosters Lobenfeld durch Augustiner-Chorherren wurden um 1170/80 der Chor und das Querhaus der Klosterkirche erbaut. Die Klosterkirche steht in Spornlage auf einem kleinen Geländeplateau und ist ungefähr nach Osten ausgerichtet. Beim Bau nahm man sowohl auf die Geländegegebenheiten Rücksicht wie wohl auch auf ein durch Fundamentreste nachgewiesenes älteres Gebäude im Südosten, möglicherweise das erste Klausurgebäude. Die Westwand des südlichen Querhauses der Klosterkirche lässt erkennen, dass hier ein dreischiffiger Bau anschließen sollte. Nachdem das Kloster im 13. Jahrhundert an den Zisterzienserorden genommen war, wurde ein schlichtes spätgotisches Langhaus ergänzt, wodurch die Kirche einen kreuzförmigen Grundriss erhielt. Die Klosterbauten schlossen sich im Süden an, im Norden der Kirche lag eine Begräbnisstätte.
Bis zur Fertigstellung des Langhauses fanden die liturgischen Handlungen nur im Ostteil der Kirche statt. Da im 13. Jahrhundert vermutlich zugleich ein Männer- und ein Frauenkonvent bestanden, waren hier die Verhältnisse wohl beengt, man verzichtete so wohl anfangs auf Seitenaltäre, um den Bedürfnissen der Konvente zu genügen wie auch Grabstätten innerhalb der Kirche unterzubringen. Altarstiftungen in der Kirche sind nicht nachgewiesen. Nach dem Bau des Langhauses zog das Nonnenkonvent in den emporenartigen Nonnenchor um, im Ostbau war nun mehr Raum zur Aufstellung von Altären. An der Ostwand des Querhaus-Nordarms hat sich ein gemaltes Retabel aus dem frühen 14. Jahrhundert erhalten, das wohl bald durch einen Standaltar ersetzt wurde. Reste eines vorreformatorischen steinernen Altars wurden im Langhaus ergraben.
Die Kirche teilte das Schicksal des 1560 aufgehobenen Klosters. So wie man die Klosterbauten zu Verwaltungsbauten der Schaffnei und zu Pächterwohnungen umwidmete, richtete man auch die Kirche für die Anforderungen der reformierten Ortsgemeinde her. Die sakrale Nutzung beschränkte sich bald wieder auf den Ostbau, das Langhaus trennte man deshalb spätestens gegen Ende des 17. Jahrhunderts durch eine Fachwerkwand wieder vom Ostbau ab. Die Kirche hatte in den Notzeiten des 17. Jahrhunderts zu leiden und sah Jesuiten und Sabbatarier kommen und gehen, was auch zu manchen Schäden am Bauwerk führte.
Bei der Kirchenteilung in der Kurpfalz 1705 kam die Kirche an die evangelische Gemeinde, während der Rest des Klosters an die katholische Schaffnerei ging. Die evangelische Gemeinde hatte von 1707 bis 1800 keinen eigenen Pfarrer, sondern war nach Epfenbach eingepfarrt, dessen Pfarrer die Gottesdienste in der Lobenfelder Klosterkirche hielt. Die Kirchenmusik besorgte der Lobenfelder Schulmeister, der im heute nicht mehr vorhandenen reformierten Schulhaus östlich der Kirche wohnte. 1773 wurde eine neue Orgel beschafft, für die auch eine neue Orgelempore im westlichen Vierungsbogen errichtet wurde.[1]
1808 erwarben die Katholiken im Tausch gegen einen Acker das damals als Ruine bezeichnete Langhaus, das man danach durch eine massive Mauer vom Rest der Kirche abteilte und als Scheune verwendete. Dazu zog man Zwischenböden ein und veränderte mehrfach die Fenster. In der zweiten Hälfte des 19. Jahrhunderts wurden große Fensteröffnungen in die Seitenwände gebrochen, um das Langhaus als Tabakschuppen nutzen zu können, dabei gingen die meisten verbliebenen Reste der alten Befensterung verloren.
Nach der Reform der Gottesdienstordnung in den 1850er Jahren erwog man, wie man den Ostbau umgestalten könnte, so dass alle Gottesdienstbesucher Blick auf Altar und Pfarrer bekämen. Nach längeren Überlegungen entschloss man sich dazu, den Altar künftig an der Mauer zum Langhaus aufzustellen. 1862 hob man im Ostbau die Fußböden des Querhauses auf das Niveau des Chors an. Die alte Tür im südlichen Querhaus wurde dadurch unbenutzbar, weshalb man ein neues Portal in die östliche Chorwand brach. Bei diesen Bauarbeiten wurden die Malereien im Chor entdeckt und freigelegt, am Portal-Durchbruch ging ein Teil von ihnen gleich wieder verloren. Anstelle der alten Empore von 1773, die nun dem Altar weichen musste, zog man eine Empore im Nordquerhaus ein, deren Brüstung Rundbögen zierten.[2] Zudem erhielt die Kirche 1873 einen Dachreiter, der 1898 und zuletzt wieder 1933 erneuert wurde.[3]
Im späten 19. Jahrhundert war die Kirche ausgestattet mit einer hölzernen Kanzel auf steinernem Fuß mit Schalldeckel am westlichen Vierungspfeiler, einem hölzernen Altarblock und einem in die Auszimmerung der Westwand integrierten, so genannten Pfarrstuhl auf Steinsockel.[2] 1910/11 konservierte man die Wandmalereien an der Ostwand des Nordarms, die schon einige Zeit vorher entdeckt und freigelegt worden waren. Gleichzeitig legte man im Chorbereich auch das Mauerwerk trocken, ohne dabei viel Rücksicht auf die Malereien im Chor zu nehmen, so dass sie stark beschädigt wurden.[4]
1961/62 wurde das Dach und die Fassade des weiterhin landwirtschaftlich genutzte Langhauses instand gesetzt. Im Bestreben, dem heruntergekommenen Gebäudeteil wieder ein halbwegs sakrales Äußeres zu geben, wollte man die nur noch in Resten erhaltenen Fenster an der West- und Nordseite der Kirche rekonstruieren,[5] Hierbei beachtete man jedoch kaum die baulichen Befunde.[6]
1963/64 fand eine Renovierung des Kirchenraums im Ostbau statt. Kanzel und Pfarrstuhl wurden ersatzlos entfernt, anstelle des hölzernen Altars erhielt die Kirche einen steinernen Altartisch, das alte dunkle Gestühl wurde durch neues helles ersetzt und die Emporenbrüstung wurde verglast.[7] In den 1970er Jahren wurde im Winkel von Südquerarm und Langhaus eine Sakristei angebaut.[8]
1979 erwarb die Gemeinde das Langhaus, sie erwog den Umbau zu einer Mehrzweckhalle, um auch in Lobenfeld ein dem damals in Waldwimmersbach errichteten Bürgersaal gleichwertiges Gebäude zu schaffen. Die Baupläne gediehen bis zur die Baureife, wurden dann jedoch nicht ausgeführt; die politische Gemeinde erbaute stattdessen die jetzige Maienbachhalle. Auf Initiative von Dr. Norbert Fritz und unter Vermittlung von Gerhard Weiser erwarb im Jahr 1984 die evangelische Kirchengemeinde das Langhaus.
Diese sanierte das Langhaus von 1995 bis 1997 und machte die Kirche damit wieder in Gänze nutzbar.[9] Alle neuen Einbauten des Langhauses wurden entfernt, die vielfachen Umbauspuren an den Langhauswänden konservierte man jedoch, zum Teil unter Plexiglas-Verkleidungen, man behielt auch die offene Holzkonstruktion des Dachstuhls bei. Für die Wintermonate zog man im hinteren Bereich des Langhauses eine verglaste Winterkirche ein, auf der auch eine großzügige, für Veranstaltungen genutzte Empore aufliegt. Der Sakristeianbau an der Südwand des Langhauses wurde modernisiert und um Lager- und Büroräume ergänzt.
Die Kirche gehört auch heute noch der evangelischen Kirchengemeinde in Lobenfeld, die zum Kirchenbezirk Neckargemünd-Eberbach der Evangelischen Landeskirche in Baden gehört; die Bauunterhaltung obliegt der Evangelischen Stiftung Pflege Schönau. Im Jahr 2004 wurde das Geistliche Zentrum Klosterkirche Lobenfeld ins Leben gerufen, das heute Einkehr- und Meditationstage, Konzerte, Ausstellungen sowie Fortbildungen für ehrenamtliche Mitarbeiter anbietet.
Beschreibung
Architektur
Romanischer Ostbau


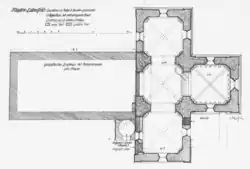
Der Baukörper der Klosterkirche besteht aus einem romanischen Ostbau aus Querhaus und Chor sowie einem nach Westen angebauten, einschiffigen gotischen Langhaus. Der nach Osten ausgerichtete Chor und die Querarme sind jeweils als quadratische, von einem kräftig dimensionierten Kreuzrippengewölbe überspannte Räume ausgebildet, deren Grundfläche von jeweils etwa 6 × 6 Metern der ebenfalls quadratischen Vierung entspricht. Die Bauteile haben einheitliche Höhe und sind innen und außen gleichartig gegliedert.[10] Der Nordarm, der Sockelbereich des Südarms sowie alle Lisenen und Fensterlaibungen sind aus großdimensioniertem Sandstein-Quaderwerk erbaut, während die übrigen Teile des romanischen Baukörpers aus kleineren unregelmäßigen Hausteinen aufgemauert und überwiegend mit Kalkmörtel verfugt sind.[11]
Alle Gebäudekanten des Ostbaus weisen Ecklisenen auf, die jeweils dem abgetreppten und den gesamten Ostteil umziehenden Sockel aufsitzen und einen Rundbogenfries unter einem profilierten Traufgesims tragen. An den Ostseiten der Querarme treten die Lisenen erst auf halber Höhe aus der Fassade hervor, wodurch sich eine geschossartige Gliederung ergibt. Jede Wandseite von Chor und Querarmen weist jeweils ein hohes romanisches Rundbogenfenster auf, die drei Fenster des Chorflügels sind etwas größer als die der Querarme und das Ostfenster im Chor ist besonders groß. Die Chorfenster weisen außen mehrfach gestufte, profilierte Gewände auf, während die Fenstergewände der Querarme glatt sind. Im Innern ist nur das Gewände des Chorostfensters profiliert[12]
Alle Ecken im Inneren des romanischen Baukörpers, mit Ausnahme der wegen des einstigen Klausurportals anders gestalteten Südwestecke des südlichen Querarms, weisen ein einheitliches dreiteiliges Dienstsystem auf. Dabei flankieren zwei rechteckige Pfeiler eine runde Dreiviertelsäule, die die Gewölberippe trägt, während die rechteckigen Pfeiler jeweils in die Schildbögen der Gewölbe münden. Die Dienste ruhen jeweils auf einer attischen Basis mit Eckblättern auf Plinthen. Durch verschiedene Höhe der Plinthen wird trotz des ursprünglich um rund 70 cm erhöhten Chors eine einheitliche Sockelgestaltung im gesamten romanischen Baukörper erzielt. Die Kämpferzone ist ebenfalls auf einheitlicher Höhe als reich ornamentiertes Kapitellband mit vielfältig variierten Kapitellen gestaltet.[13]
Die massiv ausgebildete Vierung lässt vermuten, dass ein Vierungsturm für die Kirche vorgesehen war.[14]
Der ursprüngliche Zugang zur Kirche befand sich in der Westwand des südlichen Querarms, wo sich die Klausur des Klosters anschloss. Als man 1862 den Boden der Kirche auf ein einheitliches Niveau brachte, verlor dieses Portal seine Funktion. Man brach die Gewände des Portals aus und vermauerte es. Diese Gewände befinden sich heute, zu einem Fenster umgestaltet, in der Westwand des Nordarms. Als neuen Zugang zur Kirche brach man 1862 eine Tür in die Ostwand des Chors, wodurch dieser seine ursprüngliche Funktion verlieren musste; der Altar ist seitdem in der Vierung aufgestellt.[15]
Ein weiteres bauzeitliches und heute vermauertes Portal in der Ostwand des südlichen Querarms, das bis 1862 als Hauptzugang für die Gemeinde diente, könnte der Zugang zu einer Sakristei gewesen sein; Mauerwerksbefunden lassen jedoch stark daran zweifeln, ob ein solcher Sakristeianbau jemals bestand. Über weitere historische Zugänge zur Kirche besteht Unklarheit.[16]
Auch die ursprüngliche Disposition von Altarstellen und Konvent ist unklar. Ein Hauptaltar im Chor ist sicher anzunehmen, die Architektur des Querhauses lässt jedoch keine Schlüsse auf bauzeitliche Seitenaltäre zu. Vermutlich hat man auf Seitenaltäre wegen der anfänglich beengten Platzverhältnisse zunächst verzichtet. Über die Lokalisierung des Konvents kann nur spekuliert werden, zumal für das frühe 13. Jahrhundert auch von einer gleichzeitigen Nutzung durch einen Männer- wie einen Frauenkonvent ausgegangen werden muss. Die Kanoniker saßen sicher im einst erhöhten Chor. Hinweise auf eine alte Empore oder eine Abteilung des Kircheninneren gibt es nicht, lediglich die zwei einstigen Portale im Südarm des Querhauses könnten – unter der Voraussetzung, dass der Sakristeianbau nie ausgeführt wurde – Hinweise auf verschiedene Zugänge für Männer und Frauen geben; deren Einrichtung war wohl stets improvisiert, solange die Kirche noch nicht fertiggestellt war. Der Konventssitz wird zumeist im Südarm verortet.[17]
Der romanische Ostbau zeigt sowohl in der Gliederung wie in manchen Details der Architektur Parallelen zum Ostbau des Wormser Doms und auch zur 1178 eingeweihten Zisterzienserkirche des Klosters Maulbronn, das ebenfalls architektonisch vom Wormser Dom abhängig ist. Der romanische Ostbau der Lobenfelder Klosterkirche wird aus diesem Grund auch auf die Zeit um 1170/80 datiert. Weil das Mauerwerk im Inneren homogen ist, nimmt man eine nur kurze Bauzeit an.[18] An der Bauornamentik fällt besonders die frühe Verwendung von Diamantsternbändern auf, die man sonst zumeist erst fürs frühe 13. Jahrhundert ansetzt. Vielleicht könnte man deshalb aber auch Bauten mit vergleichbarer Ornamentik früher datieren, allen voran die Türme der Groß-Comburg bei Schwäbisch Hall. Weitere ornamentale Übereinstimmungen bestehen u. a. mit der Kirche St. Michael in Schwäbisch Hall, der ehemaligen Chorherrenstiftskirche in Fritzlar und der ehemaligen Benediktinerinnenkirche in Seebach.[19]
Die Verlegung des Konvents in das wohl auch mit einer Empore ausgestattete Langhaus führte im 14. Jahrhundert zu einer Umnutzung des Ostbaus. Im Nordarm des Querhauses, der wohl auch zu Bestattungen genutzt wurde, wurde zur Zeit der Gotik ein Altar aufgestellt und es wurden Wandmalereien angebracht. Nach Verlegung des Konvents ins Langhaus ist denkbar, dass dieser Bereich mit eigenem Eingang von der Nordseite her auch für die Gottesdienste der Bewohner des Dorfes Lobenfeld genutzt wurde,[20] deren ursprüngliche Pfarrkirche sich beim Biddersbacher Hof befunden hatte.
Gotisches Langhaus
Das rechteckige Langhaus mit einer Länge von etwas mehr als 18 Metern ist jünger als die östlichen Bauteile. Mauerwerksansätze wie der Kämpferansatz in der Südwand des Langhauses und Fundamentreste lassen erkennen, dass ursprünglich ein dreischiffiges Langhaus vorgesehen war, mit dessen Bau an der Südseite wohl auch teilweise begonnen wurde. Man scheint den dreischiffigen Bau dann jedoch verworfen zu haben und erbaute das einschiffige heutige Langhaus dann auf eigenen Fundamenten ruhend.[21] Die Nordwand des Langhauses fluchtet mit dem Abschluss des nordwestlichen Vierungspfeilers, die Südwand springt etwas über den südwestlichen hinaus.
Das Langhauses wird unterschiedlich datiert, im Wesentlichen mit fortschreitender Forschung immer früher. Oechelhäuser datierte es 1913 noch auf das 15. Jahrhundert. Dietrich Lutz, der 1984 die Grabungen in Lobenfeld leitete, rückte die Entstehung des Langhauses auf die Mitte oder die zweite Hälfte des 14. Jahrhunderts zurück. Hans-Hermann Reck, der 1995 eine Bauuntersuchung durchführte, sprach sich für die Zeit um 1300 aus. Klaus Gereon Beuckers hielt aufgrund von baulichen Übereinstimmungen mit der Klosterkirche des Klosters Gnadental sogar eine Entstehung um die Mitte des 13. Jahrhunderts für möglich.[22]
Die Entscheidung gegen das dreischiffige und für ein einschiffiges Langhaus darf man nicht als Notlösung verstehen, sie hält sich vielmehr an das typische Bauschema von Zisterzienserinnenkirchen des 13. und 14. Jahrhunderts, die im Langhaus eine tiefe Empore als Nonnenchor aufnahmen.[23] Zu einer solchen Nutzung passen die ursprünglich sehr hoch liegenden Fenster, die diese Empore beleuchten konnten, wohingegen die Unterbauten solcher Emporen in Zisterzienserinnenklöstern recht dunkel waren und möglicherweise als Gruft für Bestattungen dienten[24] oder der Nutzung durch Laien vorbehalten waren. In Lobenfeld spricht die Türe in der von der Klausur abgewandten Nordwand für eine solche Laiennutzung.[25] Die Empore mag anfangs über einen erhöhten Zugang mit Treppenspindel im Ostbereich der Südwand erreichbar gewesen sein.[26]
Das Langhaus war wohl von einer flachen Decke überspannt und vom Ostbau vermutlich durch einen Lettner abgetrennt, der jedoch wohl spätestens im 18. Jahrhundert abgerissen wurde und von dem sich keine Spuren erhalten haben.[27]
Zur Zeit der Einführung der Bursfelder Reform um die Mitte des 15. Jahrhunderts wurde das Langhaus umgebaut.[21] Der Zugang der zur Empore erfolgte nun wohl direkt von einem Westtrakt des Klosters aus. Auch der Unterbau der Empore wurde durch Einziehen von Mauern verändert und war dadurch teilweise fensterlos, so dass eine Nutzung als Lagerraum naheliegt.[26] Durch die späteren Eingriffe ins Mauerwerk ist es sehr schwer, die ursprüngliche Lage der Fenster und ihre Veränderung in den verschiedenen Bauphasen heute zu bestimmen. Besonders an der Südwand steht nur noch wenig an originaler Bausubstanz, die besser erhaltene Nordseite kann dagegen mehr Aufschluss geben.
Im Zuge der landwirtschaftlichen Nutzung wurde das Langhaus vielfach umgebaut. Zeitweise hatte es kein Dach, dann wurde es wieder gedeckt. Es wurde völlig entkernt, man zog Zwischenböden ein, vermauerte alle alten Fenster und brach neue ein. Zur Nutzung als Tabakschuppen schuf man besonders große Fensteröffnungen in den Seitenwänden, wobei die alte Befensterung dann fast vollkommen verloren ging. Später diente das Langhaus als Schafstall und Heuboden. 1961/62 setzte man das Äußere des Langhauses wieder instand und rekonstruierte dabei spitzbogige gotische Fensteröffnungen, die aber nicht unbedingt mit den damaligen Baubefunden übereinstimmen.[28]
Das Landesdenkmalamt Karlsruhe untersuchte 1983 den Boden des Langhauses archäologisch. Zu einer solchen Untersuchung der Wände, die ebenfalls beabsichtigt war, kam es jedoch nicht mehr.[29]
Bei der Renovierung in den Jahren 1995 bis 1997 entfernte man die Trennwand zum Langhaus und dessen jüngere Einbauten, jedoch beließ man die vielfachen Umbauspuren an den Langhauswänden und konservierte sie zum Teil unter Plexiglas-Verkleidungen. Der Dachstuhl ist weiterhin eine offene Holzkonstruktion. Für die Wintermonate wurde eine verglaste Winterkirche im hinteren Bereich des Langhauses eingezogen, die zugleich eine großzügige, für Veranstaltungen genutzte Empore trägt.
Wandmalereien
Am romanischen Ostbau der Kirche haben sich Wandmalereien unterschiedlicher Epochen erhalten. Die Ausmalungen im Chor stammen größtenteils aus dem 13. Jahrhundert und zeigen durch die Zusammenstellung von Propheten, alt- und neutestamentlichen Szenen, Heiligenlegenden und Heiligenbüsten ein außergewöhnliches Bildprogramm. Daneben haben sich auch die Reste einer jüngeren Ummalung eines einstigen Sakramentshäuschens erhalten. Die Malereien im Chor wurden 1862 freigelegt. Der Nordarm des Querhauses trägt an der Ostwand ein Fragment eines gemalten Retabels, eine Martyriumsdarstellung und ein überlebensgroßer Christophorus aus dem 14. Jahrhundert, an der Westwand eine Heiligenlegende des 16. Jahrhunderts. Diese Malereien wurden 1910/11 konserviert. Der Südarm des Querhauses ist neuzeitlich verputzt, hier sind keine Wandmalereien mehr zu erwarten. Man nimmt eine ursprüngliche Ausmalung der Deckengewölbe an, hierzu gibt es aber keine Befunde.[30]
Wandmalereien im Chor
Die drei Wände des Chores weisen eine einheitliche romanische Ausmalung auf. An der Süd- und Nordwand des Chores befindet sich jeweils eine gerahmte Bildfolge aus acht Szenen, jeweils in zwei Reihen zu je vier Bildern angeordnet. Die Szenen sind in der Rahmung und auch mit Spruchbändern beschriftet. Unter den Bildfolgefelder verläuft ein Fries mit Heiligenbüsten, über den Bildfolgefeldern teilt ein gemalter Zahnreihenfries die Fensterzone ab. Neben den Fenstern befinden sich jeweils überlebensgroße Prophetendarstellungen mit Spruchbändern. Ornamentale Bordüren fassen die bemalten Wandzonen ein und münden oberhalb der Fenster in Medaillons mit Büsten. An der Chor-Ostwand wurde dieses Schema wegen des größeren Fensters etwas abgewandelt. Im Fensterbereich entspricht die Anordnung von Bordüren, Propheten und Medaillon den beiden anderen Wänden; in ihrem Sockelbereich, in den 1862 nachträglich eine Tür eingebrochen wurde und wo die Malereien nur noch sehr fragmentarisch sichtbar sind, scheint man auf Bordüren und Friese verzichtet und lediglich eine einfach gerahmte Szenenfolge dargestellt zu haben.
An der Chor-Nordwand haben sich vor allem die Bordüren und Einrahmungen erhalten, während die Szenen der Bildfolge, der größte Teil des Heiligenfrieses und der Prophet links des Fensters weitgehend verloren sind. Eine große Fehlstelle in der Mitte, wo lediglich die Umrahmungen ergänzt wurden, rührt von einem früheren Fenstereinbruch her. Das fragmentarisch erhaltene obere rechte Feld der Bildfolge zeigt Adam und Eva, darüber ein Medaillon mit dem Brustbild einer Frau und der Inschrift Adolescencia. Im oberen linken Bild sieht man die Krallen einer stürzenden Gestalt, nach Joseph Sauer[31] soll es der Rest einer Darstellung des Engelssturzes sein. Das Bildprogramm der Nordwand könnte deshalb aus Genesisszenen bestanden haben.[32] Der Prophet rechts des Fensters trägt einen Turban und steht auf einem Schemel, sein Spruchband ist nur fragmentarisch erhalten. Vom Heiligenfries sind rechts unten zwei Gestalten jeweils mit Keulen in der Hand erhalten, eventuell die Apostel Judas Thaddäus und Simon; ein Martyrium mit Keulen findet sich auch an der Südwand.[33]
Links unten an der Chor-Nordwand befinden sich Malereien aus der Zeit um 1500, die einst ein Sakramentshäuschen ornamental und figurativ umrahmten. Der Ansatz seiner später abgespitzen Konsole ist noch inmitten der ornamentalen Rankenmalerei zu erkennen. Darunter sind vier Personen abgebildet. Die linke, etwas größere und mit einem Spruchband versehene Person ist nach ihrer Kleidung ein Kleriker und wohl der Stifter, während die restlichen drei Personen die biblische Szene der Mannalese darstellen. Zu beiden Seiten des Sakramentshäuschens waren jeweils ein Engel abgebildet, von denen sich lediglich der linke erhalten hat.[34] Links außen ist außerdem noch ein großes Stück Scheinarchitektur, das die ohnehin stark gegliederten Pfeiler nochmals erweitert.
Die Bemalung der Chor-Südwand ist am besten erhalten, doch sind viele Inschriften nicht mehr lesbar, so dass sich die Szenen nur teilweise deuten lassen. Die achtteilige Bildfolge zeigt wohl Szenen aus dem Leben verschiedener Heiliger. Das obere rechte Bild zeigt zwei ganzfigurige Gestalten, von denen die rechte von einem Dämon angefallen wird und Hilfe von einem oben links in einem Halbkreis als Brustfigur dargestellten Nothelfer erfleht. Im zweiten Bild der oberen Reihe von rechts ist eine Heiligengestalt dargestellt, die von zwei stehenden und einer knienden Person flankiert wird. Das dritte Bild von rechts der oberen Reihe zeigt drei Gestalten hinter einem Tisch, die mittlere Gestalt mit Nimbus und Segensgestus. Das linke obere Bild zeigt abermals eine Szene an einem Tisch mit Speisen. Denkbar ist, dass die obere Reihe das Wirken Christi als Hohepriester darstellt,[35] die Szenenfolge wird aber auch als Folge aus dem Leben des Heiligen Martin verstanden (Gastmahl bei Kaiser Maximus in Trier, Martin als Priester, Überführung der Gebeine nach Tours).[36] Die untere Bildreihe zeigt rechts zwei Heiligenfiguren, die von Männern mit Keulen niedergeschlagen werden, während eine Teufelsgestalt mit einer Spitzhacke ein Heiligtum von einer Säule schlägt. Diese Szene kann als Martyrium des Apostels Judas Thaddäus gedeutet werden. Links davon befindet sich eine Darstellung von Daniel in der Löwengrube, dem sich oberhalb einer Galerie zwei nur fragmentarisch erhaltene Gestalten (vermutlich Habakuk und ein Engel) zuwenden. Das dritte Bild von rechts in der unteren Reihe zeigt drei Gestalten mit langen Spruchbändern. Die Bedeutung der Szene hat sich vermutlich nur durch die heute nicht mehr lesbaren Spruchbänder erschlossen, es könnte sich um eine Szene mit Hiob handeln.[36][37] Das linke untere Bild weist eine große Fehlstelle auf. Noch zu erkennen ist eine Frau, die ein Kind darbietet. Aufgrund der eucharistischen Thematik der Bildreihe wird die Szene als Übergabe Samuels an den Tempel gedeutet.[35] Der Heiligenfries unter der Bildfolge zeigt links fünf heilige Jungfrauen mit Palmzweigen, rechts davon sieben weitere Heilige mit verschiedenen Würdenzeichen. Vier der Jungfrauen sind im darüberliegenden Rahmen nachträglich bezeichnet. Unter den männlichen Heiligen lassen sich nach ihren Attributen ein Papst mit Mitra und Codex, ein Bischof, ein Abt und ein Kaiser mit Zepter und Reichsapfel ausmachen. Die Figur ganz rechts könnte nach Darstellungstypus Christus sein.[33]
An der Chor-Ostwand hat sich im Wesentlichen nur die Giebelpartie mit Bordüren, Propheten und Medaillon erhalten, während der Sockelbereich lediglich noch die Einteilung einer Szenenfolge vermuten lässt. Da das restliche Bildprogramm im Chor, soweit es noch zu deuten ist, auf Eucharistie und Eschatologie ausgeht, könnten die Motive der Ostwand aus Passions- oder Gerichtsszenen bestanden haben.[38] Über den Propheten neben dem Chor-Ostfenster sind jeweils kirchenartige Architekturen zu erkennen. Beim besser erhaltenen Propheten links des Fensters lassen sich zahlreiche stilistische Verwandtschaften mit der Paulus-Darstellung auf der Innenseite des linken Flügels eines Altars aus dem Wormser Dom um 1260 (heute im Hessischen Landesmuseum in Darmstadt) feststellen.[39]
Wandmalereien im nördlichen Querhaus
An der Ostwand des Nordarms hat sich im rechten Sockelbereich der Rest eines gotischen Retabels erhalten, darüber eine Darstellung des Martyriums der 10.000, bekrönt von einer Darstellung der Deesis. Die linke Wandhälfte wird von einer großen Darstellung des Christophorus eingenommen, die den linken Flügel des Wandretabels überdeckt.
Das Retabel ist in der Mitte stark geschädigt, lediglich ein kleiner, tief sitzender Nimbus ist zu erkennen, der vermuten lässt, dass vielleicht die Madonna mit Kind dargestellt ist. Als Assistenzfiguren sind links Petrus mit Schlüssel und rechts Paulus mit Schwert zu erkennen. Der rechte Seitenflügel zeigt einen blonden Jüngling in rotem Gewand, der üblichen Ikonografie folgend ist es vermutlich der Evangelist Johannes. Nach stilistischen Kriterien wird das Retabel auf die Zeit um 1330–1340 datiert. Es ist wohl bald nach Entstehung durch einen Standaltar ersetzt worden, weswegen es zum Teil mit den nur wenig jüngeren weiteren Gemälden dieser Wand übermalt ist.[40]
Die überlebensgroße Darstellung des Christophorus wird zum Teil von der Empore überdeckt, die man zu einer Zeit eingezogen hat, als das Wandbild noch nicht freigelegt war. Das Gewand des Christophorus weist ein eigentümliches Scheibenmuster auf, das mit dem Gewandmuster der ebenfalls frühgotischen Christophorusfigur im Bonner Münster übereinstimmt.[41]
Gleichzeitig mit dem Christophorus scheint die Darstellung mit dem Martyrium der Zehntausend entstanden zu sein. In zwei übereinander angeordneten Bildzonen sind jeweils Märtyrer im Dornengestrüpp abgebildet, auf die jeweils eine Figur mit Krone weist. In der oberen Zone treibt ein Peiniger mit einem Hammer die Glieder der Märtyrer in die Dornen. Stilistisch stimmt die Darstellung mit einer Darstellung desselben Motivs in Alsheim überein, das auf die Zeit um 1350 datiert wird und auf dem die Märtyrer ebenfalls an die Bäume genagelt erscheinen. Rechts über der Martyriumsszene thront Christus als Weltenrichter, ihm zur Seite knien Maria und Johannes Baptist als Fürbitter der Menschheit. Links davon tragen zwei Engel die Seelen der Bekenner empor. Zur zeitlichen Datierung der teilweise stark übermalten Darstellungen von Christophorus, Martyrium und Deesis gibt es stark abweichende Meinungen. Die jüngere Forschung datiert sie auf die zweite Hälfte des 14. Jahrhunderts.[42]
An der Westwand des Nordarms befindet sich der Rest eines großen, nur noch fragmentarisch erhaltenen Wandbildes. Aufgrund der erhaltenen Fragmente und einiger Inschriftenreste vermutet man darin die Darstellung des Martyriums der heiligen Reineldis[43] oder eine Darstellung der Ursula-Legende[36] aus der ersten Hälfte des 16. Jahrhunderts.
Chorgestühl
In der Klosterkirche haben sich Reste mittelalterlichen Chorgestühls aus Nadelholz erhalten, wahrscheinlich Lärche aus der Umgebung des Klosters. Aufgeteilt in vier Bänke zu je drei Sitzen, bildet das historische Gestühl heute die ersten Sitzreihen der Bestuhlung im Bereich der Vierung. Die Bankreihen sind gekürzt und waren früher unbestimmbar länger. Der Aufbau des Gestühls entspricht dem seit dem hohen Mittelalter üblichen Schema, wie es bereits beim Gestühl von 1228 in Xanten anzutreffen ist. Die Herstellung des Lobenfelder Gestühls fällt höchstwahrscheinlich mit der Fertigstellung des Langhauses im 14. Jahrhundert zusammen, ursprünglich waren die Bänke wohl auf der Empore im Langhaus längs der Seitenwände aufgestellt. Die Sitzflächen sind nach oben klappbar, damit man innerhalb der Stuhlreihen alle während des Gottesdienstes nötigen Haltungen (Sitzen, Stehen, Knien) einnehmen konnte. Das Accoudoir liegt auf den mit Handknäufen mit spiralförmiger Profilierung versehenen Trennwangen und der Rückwand des Gestühls auf und springt auf den Wangen verbreitert vor, um im Stehen eine Armstütze zu bieten. Die Unterseiten der Sitzflächen wiesen ausgehend von den vorhandenen Spuren einst Miserikordien auf, die jedoch wohl schon nach Aufhebung des Klosters entfernt wurden. Das Gestühl ist zwar relativ schlicht gestaltet, die Miserikordien könnten trotzdem als Bildschmuck ausgeführt gewesen sein und nach der Reformation als unpassend gegolten haben.[44]
Grabplatten
In der Klosterkirche befinden sich vier historische Grabplatten. Drei der Grabplatten stammen noch aus der Klosterzeit, die vierte Grabplatte ist die eines Kloster-Schaffners aus der Zeit des Dreißigjährigen Krieges. Die Grabplatten sind im südlichen Querarm aufgestellt und stellen, abgesehen von sehr wenigen Steinmetzzeichen, die einzigen Steine mit Inschriften innerhalb der ansonsten inschriftenlosen Klosterkirche dar.
Die Grabplatte der Äbtissin Agnes wurde 1963/64 im Boden des nördlichen Querarms aufgefunden. Die 198 cm lange, 75 cm breite und 15 bis 20 cm tiefe Platte ist lediglich auf der Oberseite bearbeitet, die Seiten und die Unterseite sind nur grob behauen. Die Oberseite ist umlaufend mit einem etwa 5 cm breiten Rundstab gerahmt und in Längsrichtung mit der Inschrift O · PIE · MEMOR · DNA · AGNES · ABBA versehen. Die Inschrift ist als Obiit pie memorie domina Agnes abbatissa („Es starb frommen Angedenkens Frau Agnes, die Äbtissin“) zu lesen. Unter der Inschrift ist ein Abtsstab eingeritzt. Die schlank proportionierten Buchstaben stehen am Übergang von romanischer zu gotischer Majuskel. Die Darstellung eines Abtsstabs in Originalgröße ist im späten 12. Jahrhundert vielfach belegt, u. a. an Grabplatten der Äbte Ebirhardus († um 1173) und Konradus († 1178) des Klosters Alpirsbach. Von den Ausmaßen, der Gestaltung und dem Schriftbild her besteht jedoch die größte Übereinstimmung mit der 1992 in Schönau aufgefundenen Grabplatte des Kanzlers Diether von Katzenelnbogen († 1191), auf der außerdem dieselbe eher seltene vorangestellte O(biit)-Abkürzung vorzufinden ist. Die Lobenfelder Grabplatte wird daher auch auf die Zeit um 1200 datiert. Doch steht die Annahme einer Äbtissin von Lobenfeld um 1200 im Widerspruch zur tradierten Meinung, dass ein Frauenkonvent im Kloster erst in der Mitte des 13. Jahrhunderts einzog.[45]
Die Grabplatte der Adelheid von Waltdorf wurde ebenfalls 1963/64 aus dem nördlichen Querarm geborgen. Ihre Höhe beträgt 224 cm, ihre Breite 107 cm. Die oben links beginnende und als Rahmung umlaufende Inschrift der Platte ist in gotischer Majuskel ausgeführt und lautet ANNO · DNI · M / · CCC · L · VII · II · K · OCTOBR / IS · O · ADE / LHEIDIS · DE WALTDORF + („Im Jahr des Herrn 1337 am 2. Tag vor den Kalenden des Oktober [30. September] starb Adelheidis von Waltdorf“). In der Mitte ist oben ein reliefartiges viergeteiltes Wappen herausgearbeitet, das im heraldisch oberen linken und unteren rechten Feld eine fünfblättrige Rose zeigt. Die Familie von Waltdorf war ein Niederadelsgeschlecht mit Stammsitz in Walldorf.[46] Da es den kleinen Zisterzienserinnen-Konventen nicht gestattet war, sich dem Begräbnis von Laien zu öffnen und sich dort üblicherweise nur Grabplatten von Äbtissinnen erhalten haben, kann die Verstorbene, trotz des fehlenden Titels, Äbtissin des Klosters gewesen sein.[47]
Die Grabplatte des Dither advocatus ist nur noch in zwei Fragmenten vorhanden, die bis 1997 im Außenbereich zur Einfassung eines Blumenbeetes gedient haben, von der älteren Forschung noch getrennt behandelt wurden, dann jedoch als zusammengehörige Teile einer in der Mitte auseinandergesägten Grabplatte erkannt und zu den anderen Grabplatten im Südarm gesellt wurden. Das größere Teilstück stellt die rechte Seite der Grabplatte dar und ist in voller Höhe von 222,5 cm bei einer Breite von 50 cm erhalten. Das kleinere Teilstück bildete die linke Hälfte, ist jedoch oben und unten um jeweils etwa 30 cm beschnitten. Die wesentlichen Teile der in gotischer Minuskel gehaltenen Inschrift, nämlich Name des Verstorbenen und Todestag, sind erhalten, so dass sich die vollständige umlaufende Inschrift der Tafel rekonstruieren lässt. Sie besagt, dass ein advocatus Dither am vierten Tag vor den Iden des Februar [10. Februar] 1379, am Tag der Jungfrau Scholastika verstarb und hier begraben liegt. Mit advocatus wird wohl der Verwalter des Klosterbetriebs tituliert. Für die vergleichsweise frühe Verwendung der gotischen Minuskel findet sich im Kloster Schönau eine Entsprechung in der Grabplatte für Eberhard Schenk von Erbach († 1373) und seiner Frau Elisabeth von Katzenelnbogen († 1391). Die Grabplatte des 1379 gestorbenen Dither ist eines der frühesten Beispiele für die Verwendung der gotischen Minuskel im Bereich Heidelberg.[48]
Die Grabplatte des Paulus Mauer in der Westwand des südlichen Querarms stammt von 1625, ist 182 cm hoch und 98 cm breit. Die Platte hat eine Umschrift, die sich im unteren Teil des mittig unterteilten Mittelfelds in einer eingemeißelten Kartusche mit Rollwerk-Rahmen fortsetzt. Die Inschrift lautet: „Anno Domini . 1625 . den 24. Januarij ist in Gott entschlaffen der ehrnvest vnnd wolachtbar Paulus Mauer von München schaffner alhie zu Lobenfeldt welchem der allmechtig Gott ine sampt allen abgestorbnen ein fröliche auferstehung wolle verleyhen. Der Sohn des menschen wirdt kommen in der herlichkeit seines vatters mit seinen Engeln vnd alsdan wird er vergeltten einem ieglichen nach seinen wercken. Math am 16.“ Im oberen Teil des Mittelfelds befand sich höchstwahrscheinlich ein plastisches Familienwappen, das genauso wie die herausragenden Teile des Kartuschenrahmens irgendwann abgeschlagen wurde, um einen ebeneren Fußboden zu gewinnen, zumal die Platte einst im Boden verlegt war. Auffällig sind der Herkunftsort München und das Sterbejahr 1625. Die von der Ausführung her identische Grabplatte eines Georg Jung († 1623), vermutlich von der Hand desselben Meisters, befand sich einst in den Städtischen Sammlungen in Mannheim[49], wurde jedoch im Zweiten Weltkrieg zerstört. Höchstwahrscheinlich handelte es sich bei Paulus Mauer und Georg Jung um zwei im Zuge der Rekatholisierung im Dreißigjährigen Krieg nach der Kapitulation von Mannheim und Heidelberg 1622 in die Kurpfalz versetzte bayerische Beamte.[50]
Dickel-Orgel (1773)
Die Orgel der Kirche wurde 1773 bei Johann Heinrich Dickel in Mosbach gefertigt. Unterlagen zum Kauf der Orgel sind keine überliefert. Eine Aufschrift auf der Windlade besagt: Johann Heinrich Dickel Orgelmacher in Moßbach hat dieses Werk neu gemacht Im Jahr 1773 Am 22. Mertz. Orgelbauer Dickel war der Vetter des Heidelberger Orgelbauers Johann Christian Wiegleb, der 1772 Orgeln für Epfenbach und Daisbach gefertigt hat.[51] In Lobenfeld, das im 19. Jahrhundert nach Epfenbach eingepfarrt war, kam wohl nach der Neuanschaffung der Epfenbacher Orgel auch der Wunsch nach würdiger Gottesdienstgestaltung auf. Als treibende Kräfte für die Beschaffung der Orgel können wohl die Schaffnerfamilie Heiliger und die Lehrerfamilie Hunzinger angesprochen werden.[52] Für die Orgel wurde damals eine neue Orgelempore in der Kirche errichtet. 1849 wurde die Orgel durch Franz Nikolaus Geiß aus Zeutern repariert. 1862/63 hat die Durlacher Orgelbaufirma Louis Voit das Instrument seitenspielig umgebaut. Weitere Reparaturen fanden 1866 durch Carl Göller, 1899 durch Mathias Burkhard und 1906 durch Nikolaus Pauly statt.[53][54] 1935 war die Orgel nicht mehr spielbar. 1955 waren nur noch das Gehäuse und die Windlade vorhanden.[55] Der Leichlinger Orgelbauer Josef Göbel hat die Orgel 1958 wieder spielbar gemacht. 1974 folgte eine denkmalgerechte Sanierung der Orgel durch Richard Rensch aus Lauffen, wo die Orgel seitdem weiterhin gewartet wird.[56]
Die Wiederherstellung der Orgel wurde 1958 in Lobenfeld mit einem Festgottesdienst und einem Konzert gefeiert. Als Organist betätigte sich der damalige Lobenfelder und Waldwimmersbacher Pfarrer Hans Martin Schäfer (* 1929), der seit 1954 auch Dozent für Musikgeschichte an der Musikhochschule in Heidelberg war. Dieses Konzert begründete die Veranstaltungsreihe Musik in der Klosterkirche, die nach Schäfers Weggang zunächst von der Organistin Gudrun Bechtel und ihrem Ehemann, dem Schuldekan und späteren Prälaten Gerhard Bechtel, und seit 1981 von der Gemeinderätin und Lobbacher Ehrenbürgerin Doris Ebert fortgeführt wurde. Allein von 1981 bis 2008 fanden rund 100 Konzerte in der Klosterkirche statt.[57]
Literatur
- Adolf von Oechelhäuser: Die Kunstdenkmäler des Amtsbezirks Heidelberg (Kreis Heidelberg), (= Die Kunstdenkmäler des Großherzogtums Baden, 8.2). Tübingen 1913, 542–570. Darin: Joseph Sauer: Die Malereien in der Klosterkirche zu Lobenfeld.
- Irmgard Poplutz: Eine kunsthistorische Betrachtung über die Klosterkirche in Lobenfeld als Baudenkmal der Romanik. Zulassungsarbeit zur ersten Dienstprüfung für das Lehramt an Volksschulen. Heidelberg 1957.
- Katharina Laier-Beifuss: Die Klosterkirche zu Lobenfeld – Untersuchungen zur Baugeschichte und der Versuch der stilistischen und chronologischen Einordnung. Maschinenschriftliche Magisterarbeit, Heidelberg 1983.
- Dietrich Lutz: Die ehemalige Klosterkirche in Lobenfeld, Gemeinde Lobbach, Rhein-Neckar-Kreis. In: Archäologische Ausgrabungen in Baden-Württemberg 1983. Stuttgart 1984, 224–227.
- Dietrich Lutz: Grabungen und Überlegungen zur Instandsetzung der ehemaligen Klosterkirche Lobenfeld. In: Denkmalpflege in Baden-Württemberg Jg. 13 (1984), S. 10–15; desgl. in: Kraichgau, Bd. 9 (1985), S. 206–212.
- Bürgermeisteramt Lobbach (Hrsg.): 25 Jahre Lobbach 1975–2000, Gemeinde mit Herz, Lobbach 2000, S. 90.
- Doris Ebert und Klaus Gereon Beuckers: Kloster Sankt Maria zu Lobenfeld. Imhof, Petersberg 2001, ISBN 3-935590-20-2.
- Klaus Gereon Beuckers: Zur kunsthistorischen Stellung des gotischen Langhausneubaus der Zisterzienserinnen an der Klosterkirche Lobenfeld. In: Kraichgau. Beiträge zur Landschafts- und Heimatforschung 17/2001 (2002).
- Gabriela Nutz: Die mittelalterlichen Wandmalereien der ehemaligen Klosterkirche Lobenfeld. Ikonographie, Programm und stilistische Stellung der romanischen Chorausmalung und der gotischen Wandbilder. Imhof, Petersberg 2002. ISBN 3-935590-73-3.
- Doris Ebert: Die Dickel-Orgel (1773) in der ehemaligen Klosterkirche Lobenfeld und 50 Jahre Musik in der Klosterkirche, Lobenfeld 2008.
- Tino Licht: Der fromme Dulder. Zu einer Bilderszene in der Klosterkirche Lobenfeld. In: Kraichgau, Bd. 20 (2007), S. 139–143.
- Gustav Adolf Benrath: Die alttestamentlichen Propheten auf den spätromanischen Wandgemälden der Klosterkirche zu Lobenfeld. In: Jahrbuch für badische Kirchen- und Religionsgeschichte. Band 4, 2010, S. 204–227.
Weblinks
- Beschreibung der Kirche auf der Website der Kirchengemeinden Lobenfeld-Mückenloch-Waldwimmersbach
- Institut für Kunstgeschichte Stuttgart Wandmalereien
Einzelnachweise
- ↑ Ebert 2008, S. 4–10.
- ↑ a b Ebert/Beuckers 2001, S. 156.
- ↑ Ebert/Beuckers 2001, S. 288–295.
- ↑ Katharina Laier-Beifuss in Ebert/Beuckers 2001, S. 294/295.
- ↑ Hans Huth: Die Instandsetzung der ehemaligen Klosterkirche zu Lobenfeld (Kreis Heidelberg), in: Nachrichtenblatt der Denkmalpflege in Baden-Württemberg 8, 1965, S. 56–58.
- ↑ Hans-Hermann Reck in Ebert/Beuckers 2001, S. 297.
- ↑ Ebert/Beuckers 2001, S. 160.
- ↑ Ebert/Beuckers 2001, S. 295.
- ↑ Josef Kast und Günter Schuler: Klosterkirche – das Langhaus und die Geschichte der Gemeinde Lobbach, in 25 Jahre Lobbach, 2000, S. 88.
- ↑ Ebert/Beuckers 2001, S. 70.
- ↑ Ebert/Beuckers 2001, S. 80/81.
- ↑ Ebert/Beuckers 2001, S. 70/71.
- ↑ Ebert/Beuckers 2001, S. 71.
- ↑ Ebert/Beuckers 2001, S. 73.
- ↑ Ebert/Beuckers 2001, S. 73–75.
- ↑ Ebert/Beuckers 2001, S. 77–78.
- ↑ Ebert/Beuckers 2001, S. 149–154.
- ↑ Ebert/Beuckers 2001, S. 93–111.
- ↑ Ebert/Beuckers 2001, S. 111–125.
- ↑ Ebert/Beuckers 2001, S. 153–155.
- ↑ a b Hans-Hermann Reck in Ebert/Beuckers 2001, S. 298.
- ↑ Beuckers 2002, zur Forschungsgeschichte S. 167/168, zur Datierung durch Beuckers S. 174/175.
- ↑ Beuckers 2002, S. 164/165.
- ↑ Angela Treiber: Die Frauenklöster in Franken, in: Wolfgang Brückner (Hrsg.): Zisterzienser in Franken. Das alte Bistum Würzburg und seine einstigen Zisterzen, Würzburg 1991, S. 99–130 (zitiert nach Beuckers 2002).
- ↑ Beuckers 2002, S. 171/172.
- ↑ a b Beuckers 2002, S. 174.
- ↑ Ebert/Beuckers 2001, S. 154.
- ↑ Hans-Hermann Reck in Ebert/Beuckers 2001, S. 298/299.
- ↑ Hans-Hermann Reck in Ebert/Beuckers 2001, S. 297/298.
- ↑ Gabriela Nutz in Ebert/Beuckers 2001, S. 223/224.
- ↑ Joseph Sauer: Die Malereien in der Klosterkirche zu Lobenfeld. In: Die Kunstdenkmäler des Amtsbezirks Heidelberg (Kreis Heidelberg), Tübingen 1913, S. 562.
- ↑ Gabriela Nutz in Ebert/Beuckers 2001, S. 246.
- ↑ a b Gabriela Nutz in Ebert/Beuckers 2001, S. 250.
- ↑ Gabriela Nutz in Ebert/Beuckers 2001, S. 257/258.
- ↑ a b Gabriela Nutz in Ebert/Beuckers 2001, S. 246/247.
- ↑ a b c Doris Ebert in Wegweiser durch die Klosterkirche Lobenfeld, Lobbach 2011.
- ↑ Licht 2007, S. 139f.
- ↑ Gabriela Nutz in Ebert/Beuckers 2001, S. 259.
- ↑ Gabriela Nutz in Ebert/Beuckers 2001, S. 242.
- ↑ Gabriela Nutz in Ebert/Beuckers 2001, S. 251.
- ↑ Gabriela Nutz in Ebert/Beuckers 2001, S. 252/253.
- ↑ Gabriela Nutz in Ebert/Beuckers 2001, S. 252–256.
- ↑ Gabriela Nutz in Ebert/Beuckers 2001, S. 257.
- ↑ Eva-Maria Günther in Ebert/Beuckers 2001, S. 261–267.
- ↑ Anneliese Seeliger-Zeiss in Ebert/Beuckert 2001, S. 270–277.
- ↑ Doris Ebert: Adelheid von Walldorf. Eine Marginalie zum Goethe-Jahr, in: Kraichgau 16, 1999, S. 411–416.
- ↑ Anneliese Seeliger-Zeiss in Ebert/Beuckert 2001, S. 277–279.
- ↑ Anneliese Seeliger-Zeiss in Ebert/Beuckert 2001, S. 279–281.
- ↑ H. Drös: Zwei Mannheimer Grabsteine aus den Jahren 1621 und 1623, in: Mannheimer Geschichtsblätter 23, 1922, Sp. 201–203 mit Abb.
- ↑ Anneliese Seeliger-Zeiss in Ebert/Beuckert 2001, S. 281–282.
- ↑ Ebert 2008, S. 9/10.
- ↑ Ebert 2008, S. 4–6.
- ↑ Martin Kares: Die Orgel von Johann Heinrich Dickel in der ehemaligen Klosterkirche in Lobenfeld, in Ebert/Beuckers 2001, S. 283/284.
- ↑ Bernd Sulzmann: Historische Orgeln in Baden. 1690–1890. (= 73. Veröffentlichung der Gesellschaft der Orgelfreunde). Schnell & Steiner, München / Zürich 1980, ISBN 3-7954-0421-5, S. 126.
- ↑ Schreiben des Orgelsachverständigen Dr. Walter Leib an den Oberkirchenrat, zitiert nach Martin Kares in Ebert/Beuckers 2001, S. 283.
- ↑ Ebert 2008, S. 15.
- ↑ Ebert 2008, S. 15–19.
Koordinaten: 49° 21′ 1,3″ N, 8° 52′ 2,2″ O