Kastell Stockstadt
| Kastell Stockstadt | |
|---|---|
| Limes | ORL 33 (RLK) |
| Strecke (RLK) | Obergermanischer Limes, Strecke 6 (Mainlinie) |
| Datierung (Belegung) | um 90 n. Chr. bis um 260 n. Chr. |
| Typ | Kohortenkastell |
| Einheit | Cohors III Aquitanorum eq. c. R., Coh. II Hispanorum eq. p. f., Coh. I Aquitanorum veterana eq. |
| Größe | 3,25 ha |
| Bauweise | a) Holz-Erde-Kastell b) Steinkastell |
| Erhaltungszustand | Bodendenkmal nicht sichtbar |
| Ort | Stockstadt am Main |
| Geographische Lage | 49° 58′ 38,6″ N, 9° 4′ 2,5″ O |
| Höhe | 115 m ü. NHN |
| Vorhergehend | Kastell Seligenstadt (nordwestlich) |
| Anschließend | Kastell Niedernberg (südöstlich) |
Das Kastell Stockstadt ist ein ehemaliges römisches Kastell in Stockstadt am Main im Landkreis Aschaffenburg in Unterfranken. Mehrjährige Grabungen, hauptsächlich im frühen 20. Jahrhundert, erbrachten den Nachweis einer Kastellanlage mit zwei kurzzeitig belegten Vorgängerbauten, sowie eine Abfolge verschiedener dort stationierter Truppen. Stockstadt war damit von der frühen Zeit des Obergermanisch-Raetischen Limes bis zum Limesfall ein bedeutendes Standlager an der Mainlinie, dem sogenannten Nassen Limes. Für die archäologische Forschung ist der Fundort wegen einer großen Zahl von Steindenkmälern bedeutend, die vor allem im Vicus im Bereich zweier Mithräen, eines Iupiter-Dolichenus-Heiligtums und einer Benefiziarier-Station gefunden wurden.
Lage




.jpg)

Stockstadt liegt verkehrsgeographisch günstig nahe der Mündung der Gersprenz in den Main (Moenus), der neben der Funktion als Grenze für die Versorgung der Kastelle am Nassen Limes bedeutend war. Da auch die Gersprenz in römischer Zeit zur Schifffahrt, möglicherweise mit kleineren Kähnen, genutzt wurde, war dort wahrscheinlich ein wichtiger Umschlagplatz. Eine Benefiziarier-Station und weitere Steindenkmäler aus römischer Zeit zeugen davon. Über die Gersprenz war der Civitas-Hauptort Dieburg zu erreichen. Funde wie ein Schifferhaken in Groß-Bieberau weisen auf die Nutzung des kleinen Flusses bis weit in die Täler des vorderen Odenwalds hin.[2]
Eine frühe Römerstraße, von der mit der Sumpfbrücke Bickenbach am Kleinkastell Allmendfeld bedeutende Reste nachgewiesen wurden, verband das Westtor zunächst mit Gernsheim am Rhein. Durch die spätere Gründung des Hauptortes Dieburg wuchs die Bedeutung dieser Verbindung nach Westen. Im unmittelbaren Vorfeld des Kastells konnte sie aber nicht nachgewiesen werden. Die Hauptsiedlungsachse des Kastelldorfs befand sich entlang der von Nordwesten nach Südosten führenden Römerstraße, die parallel zum Mainlimes Stockstadt mit den benachbarten Kastellen Seligenstadt (nordwestlich) und Niedernberg (südöstlich) verband. Diese Trasse wurde auch im Bereich des Kastells mehrfach angeschnitten.[3]
Der römische Truppenstandort wurde südlich der heutigen Wohnbebauung beiderseits der Rhein-Main-Bahn zwischen dem Bahnhof Stockstadt und dem Main verortet. Die Anlage war 160 bis 200 Meter vom Fluss entfernt. Vom Hochufer aus waren es nur etwa 75 Meter. Der Bereich ist vollständig mit Industrieanlagen überbaut, von den antiken Stätten ist nichts mehr sichtbar.
Geschichte
Die Stockstädter Kastelle sind von allen römischen Militärplätzen des Mainlimes am großflächigsten erforscht.[4] Dadurch konnte ein recht deutliches Bild von der zeitlichen Abfolge der verschiedenen Kastellanlagen und der hier stationierten Truppenkörper gewonnen werden. Ungeklärt ist, ob der teilweise recht rasche Wechsel der Kohorten nur für den Kastellort Stockstadt typisch war oder ob es Entsprechungen an anderen Standorten im Limesgebiet gab. Durch die zahlreichen Hinterlassenschaften, besonders die Steindenkmäler mit der Nennung der Truppenteile, bietet Stockstadt ein sehr geschlossenes Bild von den zeitlichen Abläufen. Zwar liegen von einigen Militärplätzen der Region ebenfalls Befunde zeitlich aufeinanderfolgender Kastellanlagen vor, doch ist dort die Quellenlage hinsichtlich der stationierten Einheiten im Vergleich zu Stockstadt meist dürftig.
Die Chronologie der Stockstädter Kastellanlagen beginnt wahrscheinlich mit einer kleinen Schanze nördlich der Bahnlinie. Sie wurde sehr bald von dem nur teilweise ergrabenen ersten Holz-Erde-Kastell abgelöst. Aus beiden Anlagen wurden nur wenige stratifizierte Funde geborgen, später überlagerten Teile des Vicus (Lagerdorf) die frühen Kastelle. Funde legen nahe, dass die erste Garnison nicht vor 90 n. Chr. entstand,[5] nach einer neueren Auswertung der Münzreihen sogar erst zwischen 100 und 110 n. Chr.[6] Die Vorgängerfunktion der Stockstädter Schanzen gegenüber dem Kastell wurde in neuerer Zeit bezweifelt.[7]
Möglicherweise diente das spärlich dokumentierte Holz-Erde-Kastell als Baulager für das größere, südöstlich gelegene Kohortenkastell, das um 100 n. Chr. entstanden sein dürfte. Es gehörte zusammen mit dem Balineum (Kastellbad) zur frühtrajanischen Zeit. Ausschlaggebend für die Datierung waren neben den Kleinfunden besonders die gestempelten Ziegel aus dem Badegebäude. 122 von den 126 Ziegeln trugen einen Stempel der Legio XXII Primigenia. Die übrigen vier waren wahrscheinlich bei einer Reparatur verwendet worden, sie trugen die wesentlich späteren Stempel der Cohors IIII Vindelicorum (4. Kohorte der Vindeliker) aus dem mainabwärts gelegenen Kastell Großkrotzenburg. Die Ziegelstempel der 22. Legion werden in der Forschung als Stockstädter Gruppe bezeichnet. Sie sind zeitlich sehr bald nach der Verlegung der Legion nach Mogontiacum (Mainz) um 93 n. Chr. anzusetzen. Bedeutsam ist diese Gruppe von Stempeltypen für die Datierung zahlreicher weiterer Kastellbauten am obergermanischen Limes, unter anderem der Kastelle Marköbel und Ober-Florstadt, des Kastellbads von Hanau-Salisberg und des Kastells Hainstadt.[8]
Vermutlich während der Regierungszeit Kaiser Hadrians erhielt das Kohortenkastell eine Umwehrung aus Stein. Nördlich und südlich davon entwickelte sich ein ausgedehntes Lagerdorf. Die Einrichtung einer zivilen Verwaltung (Civitas Auderiensium) mit Hauptort in Dieburg begünstigte den Standort wirtschaftlich. Am Main entstand eine Anlegestelle für Schiffe und dicht daneben eine Benefiziarier-Station. Die Bedeutung des Umschlagplatzes ist aus der Weihinschrift eines Soldaten der Legio XXII für Iupiter Dolichenus ersichtlich, der mit einem Holzfällerkommando nach Stockstadt abkommandiert wurde.[9] Die Inschrift lässt sich auf das Jahr 214 n. Chr. datieren und gehört zu einer Reihe ähnlicher Inschriften, die am Mainlimes etwa in Obernburg oder Trennfurt gefunden wurden.[10]
Mit zwei Mithräen und einem Heiligtum für Iupiter Dolichenus sind in Stockstadt orientalische Kulte des späten zweiten und dritten Jahrhunderts nachweisbar. Hinzu kamen Hinweise in Inschriften auf ein Fortuna-Heiligtum[11] sowie ein Nymphäum.[1] Auch der in den Nordwestprovinzen sehr seltene Kult des Iupiter Heliopolitanus aus Heliopolis (Baalbek) ist im nahe gelegenen Zellhausen belegt.[12] Seinen Altar stiftete ein Präfekt der Coh. I Aquitanorum, der aus Berytus (Beirut) unweit von Heliopolis stammte und den Kult wahrscheinlich aus seiner Heimat mitgebracht hatte. Die zahlreichen Stockstädter Steindenkmäler bilden einen einzigartigen Bestand dieser Art am Obergermanisch-Raetischen Limes.[13] Kastell und Vicus bestanden bis in die Zeit des Limesfalls in der Mitte des 3. Jahrhunderts n. Chr.
Im Kastellbereich wurden einige Körpergräber geborgen, die aufgrund der Beigaben in das 4. Jahrhundert n. Chr. datieren.[14] Aus dem Fundgut erkennt man, dass das Gebiet in der Spätantike von Alamannen aufgesucht wurde. Parallelen dazu gibt es in den Mainlimes-Kastellorten Großkrotzenburg und Hainstadt. Der mittelalterliche Siedlungskern Stockstadts lag allerdings weiter nördlich. Das Kastellgelände blieb bis in die Zeit der Reichs-Limeskommission (RLK) unbebaut.
Stationierte militärische Einheiten
Durch Hinweise auf Inschriften lassen sich drei Einheiten in Stockstadt nachweisen. Stempel auf Ziegeln, die aus mehreren Bauten des Kohortenkastells und aus zwei Ziegelöfen stammen, belegen die Anwesenheit der Cohors III Aquitanorum equitata civium Romanorum (3. teilberittene Aquitanier-Kohorte römischer Bürger). Es handelte sich um eine 500 Mann starke Kohorte (cohors quingenaria) und eine Reitereinheit von 120 Mann, insgesamt also um eine Sollstärke von 620 Mann. Die verbauten Ziegel zeigen, dass diese Einheit das Kastell errichtet hat, wobei nicht sicher ist, ob sie bereits vorher dort stationiert war.
Die Kohorte wurde noch in der ersten Hälfte des 2. Jahrhunderts n. Chr. in das Kastell Neckarburken verlegt. Ihren Platz nahm die Coh. II Hispanorum eq. pia fidelis (2. teilberittene Kohorte der Spanier, pflichtbewusst und treu) ein, die zuvor im Kastell Wimpfen im Tal stationiert war. Der Name dieser Kohorte erscheint auf dem Grabstein des Soldaten Diomedes, eines Isauriers von Geburt,[15] und in der Weiheschrift eines Decurio.[16] Beide Inschriften sind undatiert. Die Einleitungsformel [I]n h(onorem) d(omus) d(ivinae) (Zu Ehren des Kaiserhauses) der Decurionenweihung macht es wahrscheinlich, dass sie frühestens in der Zeit des Antoninus Pius entstanden ist.[17]
Nach der Mitte des 2. Jahrhunderts n. Chr. ist die Coh. II Hispanorum eq. p. f. im Kastell Heddesdorf nachweisbar, sie wird also nicht sehr lange in Stockstadt gestanden haben. Sie wurde von der zuvor im Kastell Arnsburg nachgewiesenen Coh. I Aquitanorum veterana eq. (1. teilberittene Veteranenkohorte der Aquitanier) abgelöst, die wahrscheinlich bis zur Aufgabe des Kastells in Stockstadt verblieb. Sie ist durch mehrere Inschriften aus dem Dolichenus-Heiligtum belegt.[18]
Erforschung
Die ältesten Nachrichten von römischen Funden in Stockstadt liegen aus dem beginnenden 19. Jahrhundert vor. Ein „ansehnliches römisches Bad“ wurde 1820 unweit des Kirchhofs „ganz in der Nähe des Mains“ entdeckt.[19] Beim Bau der Eisenbahn (mit der Eisenbahnbrücke Stockstadt) 1858, die den Kastellbereich durchquert, wurde die Gelegenheit zu weiteren Untersuchungen nicht genutzt. Erst ab 1885 führte Wilhelm Conrady Ausgrabungen in größerem Umfang durch. Im Frühjahr desselben Jahres wurde das Kohortenkastell entdeckt. Die Grabungen erstreckten sich über 25 Jahre.
Im Jahre 1897 waren größere Untersuchungen notwendig geworden, da auf dem Areal eine Zellstoff-Fabrik der Aschaffenburger Aktien-Gesellschaft für Maschinenpapier-Fabrikation (heute Sappi GmbH) errichtet werden sollte. Conrady betreute die archäologischen Forschungen bis kurz vor seinem Tod, die Leitung vor Ort lag bei dem Fabrikingenieur Carl Wirth, der den römischen Altertümern großes Interesse entgegenbrachte. Nach ihm ist eine Straße in Stockstadt, nahe dem Kastell, benannt. Die meisten Funde aus den älteren Grabungen sind verschollen. Die Steindenkmäler gelangten als Schenkung an das Saalburgmuseum, da dieses nach Conradys Tod geschulte Arbeiter entsandt und technische Hilfe geleistet hatte. Nur wenige Funde fanden den Weg in die städtischen Sammlungen Aschaffenburgs oder befinden sich im örtlichen Heimatmuseum. 1908 und 1909 ließ der Aschaffenburger Geschichtsverein einige Nachgrabungen durchführen.
1962 wurde bei Fundamentierungsarbeiten für ein Fabrikgebäude im nordöstlichen Lagerbereich des Kohortenkastells in einem Krug ein Münzschatz mit mindestens sechs Aurei und 1315 Denaren entdeckt. Die jüngste Münze war zwischen 167 und 168 n. Chr. geprägt worden. Der Münzschatz dürfte vor Chatteneinfällen während der Markomannenkriege versteckt worden sein und befindet sich heute im Stiftsmuseum Aschaffenburg.[20]
Einige kleinere Untersuchungen fanden zu Beginn der 1990er Jahre statt. Sie lieferten neue Erkenntnisse zur Zivilsiedlung und zum Gräberfeld. In einem zugeschütteten Keller 50 Meter außerhalb der Südecke des Kohortenkastells wurden zwei weitere Weihealtäre entdeckt.[21] Nicht sicher zu erklären sind fünf Pferdebestattungen männlicher Tiere mit angewinkelten Gliedmaßen unweit davon. Teile eines Töpfer- und Ziegeleibezirks mit über 80 Brand- und Brandschüttungsgräbern erbrachten weitere Erkenntnisse zum Gräberfeld.[22]



Steindenkmäler
Im Corpus Signorum Imperii Romani wurden 146 Steindenkmäler aus Kastell und Vicus Stockstadt erfasst.[25] Neben den Funden aus dem Mithräum I sind besonders die Weihesteine der Benefiziarier zu erwähnen. Zehn dieser Weihinschriften sowie mehrere Bruchstücke sind hochwertiger bearbeitet als die übrigen Funde, meist reicher verziert und besitzen ein sauberes, gleichmäßiges Schriftbild. Möglicherweise spiegelt sich darin die höhere Kaufkraft der als Benefiziarier abkommandierten Legionssoldaten wider.
Stilistisch scheinen die Stockstädter Altäre eine weniger geschlossene Gruppe zu bilden als die zahlreichen Funde aus der Benefiziarier-Station im nahe gelegenen Obernburg. Besonders die Altarformen variieren in Stockstadt stärker, als Ornamentik wurden geometrisch-abstrakte Motive verwendet. Der Stockstädter Gruppe von Weihealtären ähneln zwei Weihesteine aus dem Umfeld des Kastell Jagsthausen. Auffälligerweise wurde einer dieser beiden stilistisch verwandten Steine in Jagsthausen von einem Soldaten geweiht, der einen ebensolchen Stein in Stockstadt gestiftet hat.[26] Die späteren Steine aus Stockstadt sind nur fragmentarisch erhalten. Offenbar wurde die Herstellung um 210 n. Chr. eingestellt. Ein Teil der Altäre wurde umgearbeitet und im Mithräum I wiederverwendet, wobei sich Reste der Inschriften und besonders die für Benefiziarier-Weihesteine typischen Verzierungen an den Seitenflächen der Altäre erhalten haben.
Die Fragmente des Mithras-Kultbildes[27] lassen erkennen, dass es aus der gleichen Werkstatt wie im nahe gelegenen Dieburg gefundene Bruchstücke stammt. Neben einer sehr ähnlichen Aufteilung der Bildfelder zeigen beide Reliefs im Medaillonfeld eine identische Szene der Phaetonsage. Stilistische Übereinstimmung besteht auch in zwei Reliefdarstellungen von Fackelträgern (Cautes und Cautopates) sowie vier weiteren Skulpturen. Sie entstammen wahrscheinlich der gleichen Werkstatt. Obwohl sie stilistisch in das letzte Viertel des 2. Jahrhunderts n. Chr. einzuordnen sind, wurden sie im späteren Mithräum I aufgefunden, was eine Wiederverwendung großer Teile des Inventars in dem jüngeren Gebäude wahrscheinlich macht.[28]
Das hohe Vorkommen von Denkmälern gegenüber dem Hinterland ist auf die dort stationierten Truppen zurückzuführen. Während die Denkmäler aus zivilen Siedlungen, wie Jupitergigantensäulen, in gallorömischer Tradition stehen, sind in Stockstadt Militärpersonen aus sehr unterschiedlichen Regionen des Römischen Reichs fassbar. Inschriftliche Hinweise liegen für Soldaten aus Thrakien,[29] Kleinasien,[15] dem Nahen Osten[30] und Nordafrika[31] vor. Zu den sehr seltenen Funden am Limes zählt der Sockel einer Geniusstatue, deren Inschrift in sehr sorgfältig gearbeiteter griechischer Schrift verfasst ist.[32] Die relativ häufigen Weihungen für einen Genius loci lassen einen Mangel an einheimischen vorrömischen Kulten in der Region erkennen. Zu den regionalen Besonderheiten gehört eine Fenster- oder Türsturzlünette, die als Bauschmuck von zahlreichen Gebäuden des Odenwaldlimes geläufig ist.[33]
Als Material für Skulpturen und Inschriftensteine wurde bevorzugt der lokale Buntsandstein verwendet. Die meisten Denkmäler wurden aus rötlichem Sandstein hergestellt, es existieren aber auch Varianten aus grauem und beige-gelblichem Stein. Für die Verwendung der Steine aus dem Untermaingebiet und dem vorderen Odenwald sprach neben der guten Bearbeitungsmöglichkeit auch der preisgünstige Transport.
Anlage
Insgesamt wurden drei aufeinanderfolgende Kastellbauten festgestellt, wobei eine rasche bauliche Abfolge von der ersten kleineren Schanze bis zum Bau des Kohortenkastells wahrscheinlich ist.[34] Die nahe gelegenen Kastellplätze in Nida-Heddernheim und Altenstadt hatten eine ähnliche Entwicklung, wobei in Altenstadt die späteren Kastelle die vorhergehenden überdeckten. Das ebenfalls in der Nähe gelegene Kastell Salisberg hat eine ähnliche Anfangsdatierung wie Stockstadt. Auch dort gab es mit dem Kastell Kesselstadt wahrscheinlich einen Vorgängerbau, später folgte eine Limeslinie mit den Kastellen Rückingen und Großkrotzenburg.[35] Möglicherweise entsprechen das Kastell Seligenstadt südlich des Mains und das zeitlich frühere Kastell Hainstadt diesem Schema.[36] Wegen späterer Überbauung liegen aus den meisten dieser Kastelle noch weniger sicher stratifizierte Funde vor als aus Stockstadt. Die chronologische Abfolge der Stockstädter Kastelle hat damit wesentlichen Einfluss auf die Datierung weiterer Limeskastelle am Mainlimes und an der östlichen Wetteraustrecke.
Schanze oder kleines Holzkastell
Die sogenannte Erdschanze, fachlich besser kleines Holzkastell,[37] befand sich nördlich der Bahnlinie. Nachgewiesen wurde davon lediglich der Graben; der vollständig abgetragene Wall bestand vermutlich aus einer mit Holz versteiften Erdkonstruktion. Von den Grabenspitzen gemessen hatte die frühe Anlage eine Innenfläche von 66 × 57 Meter (= 0,38 Hektar).
Zur Innenbebauung können keine sicheren Angaben gemacht werden. Dies liegt zum einen daran, dass, bedingt durch die Grabungsmethoden der RLK, in ganz Stockstadt keine Befunde von Holzgebäuden aus dem militärischen oder zivilen Bereich erkannt wurden, zum anderen war die Innenfläche nach Aufgabe der Schanze sowie des frühen Holz-Erde-Kastells von Bauten des Kastellvicus überlagert. Weder gelang es, diese auf eine spätere Zeit zu datierenden zivilen Befunde sicher von den frühen Kastellanlagen zu unterscheiden, noch fand eine genaue Dokumentation der Fundlage von Gegenständen aus dem Kastellgraben statt. Fundmaterial könnte nach Auflassung der Schanze also auch wesentlich später in die noch offenen Gräben gelangt sein.



Holz-Erde-Kastell
Die Existenz des Holz-Erde-Kastells ergibt sich aus dem Nachweis eines Grabens, der parallel zum südöstlichen Graben der vorherigen Schanze verlief. Er konnte auf einer Länge von 50 m nachgewiesen werden. Da er jeweils nach Südosten umbog, muss daraus geschlossen werden, dass sich zwischen dem kleinen Holzkastell und dem späteren großen Kohortenkastell eine weitere Anlage befand. Vermutlich verlief die südwestliche Fortsetzung des Grabens unter dem späteren Stadtweg. Über die Größe des Lagers können keine Aussagen getroffen werden. Auch die Datierung bleibt wie beim kleinen Holzkastell unklar. Unzweifelhaft bestand es vor dem Kohortenkastell, wahrscheinlich als Nachfolger des kleinen Holzkastells.[38] Denkbar wäre eine kurzfristige Besetzung als Baulager für das Kohortenkastell.
Kohortenkastell
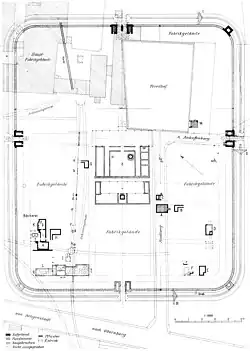
Das südlich der beiden vorhergehenden Anlagen gelegene Kohortenkastell war mit seiner Front nach Nordosten, auf den Main zu, ausgerichtet. Aufgrund der damaligen Grabungsmethoden wurden auch von diesem lediglich Steinbauten dokumentiert. Dass es einen Vorgängerbau in Holz-Erde-Bauweise beziehungsweise Fachwerkbauten im Inneren gegeben hat, geht aus Befunden eines älteren Holzbaus unter den principia (Stabsgebäude) sowie einem hölzernen Vorgänger des nordöstlichen Torturms, der porta principalis sinistra (linkes Lagertor), hervor. Das Kastell nimmt eine Fläche von 198,6 × 163,8 Meter ein (= 3,25 Hektar)[39] und ähnelt den Kastellen Saalburg, Marköbel, Langenhain und Butzbach, die zur selben Zeit entstanden sein dürften und, soweit bekannt, ebenfalls für eine teilberittene Kohorte (cohors equitata) konzipiert waren.
Von den Wehrbauten des Steinkastells wurden fast ausschließlich die Ausbruchsgruben der Fundamentmauern festgestellt, die sich klar vom anstehenden Kiesboden abhoben. Das Fundamentmauerwerk bestand aus lokalem Gneis, dem sogenannten Ballenberger. Für das aufgehende Mauerwerk wurde aufgrund der Witterungsbeständigkeit roter Mainsandstein bevorzugt. Auffällig groß ist die Zahl von zwölf gefundenen Zinnendecksteinen, hinzu kamen fünf Winkelstücke (möglicherweise von den nicht überdachten Ecktürmen). Die geraden Stücke wiesen eine Länge zwischen 1,07 und 1,34 Meter auf. Alle Decksteine wurden in der Verfüllung des Grabens aufgefunden. Möglicherweise wurden die unhandlichen Steine, die nur schwer wiederverwendbar waren, in den noch offenen Kastellgraben geworfen, bevor man die Kastellmauer zur Verwertung der Steine bis auf das Fundament abtrug.[40]
Die Kastellmauer hatte eine Breite zwischen 1,20 und 1,40 Metern, das Fundament von 1,80 Metern. An den Ecken war das Kastell mit einem inneren Radius von 15 Metern abgerundet. Besonders auffällig am Grundriss sind die nach außen vorspringenden Ecktürme (5,30 × 3,80 m), die wahrscheinlich in einer späteren Bauphase hinzugefügt wurden. Zwischentürme wurden keine festgestellt. Auch die Tortürme waren auffallend schmal und tief (6,90 × 4,20 m), mit Ausnahme der porta praetoria (vorderes Lagertor) waren die restlichen drei Tore nur mit einer Durchfahrt ausgestattet. An der Innenseite der Mauer befand sich eine Wallschüttung, deren Breite durch den Nachweis der via sagularis (Wallstraße) mit 4,60 bis 5,10 Metern angegeben werden kann.[39]
Um das Kastell verlief ein einfacher Spitzgraben mit einer Breite um 7 Meter. Er war von der Mauer durch eine etwa 1,20 bis 1,40 Meter breite Berme getrennt. Eine Erneuerung des Grabens wird belegt durch eine im Profil (Grabenschnitt) doppelte Spitze mit einem Abstand von etwa 80 Zentimetern zueinander.[39]
Von der Innenbebauung sind mit Ausnahme der steinernen Principia (Stabsgebäude) ausschließlich Teilgrundrisse bekannt. Dabei handelt es sich meist um die tiefer fundamentierten Teile von Gebäuden, von denen die Anbauten aus Fachwerk nicht erkannt wurden. In der Nordwestecke befand sich ein größerer Baukomplex mit mehreren Öfen, der als Bäckerei angesprochen wird.


Kastellbad
Das Badegebäude wurde etwa 50 Meter vor dem südlichen Teil der Prätorialfront, der dem Feind zugewandten Lagerseite, in direkter Nähe zum Main lokalisiert. Nach der Entdeckung und ersten Konservierung 1820 konnten bei den großen Flächengrabungen nur noch Nachuntersuchungen vorgenommen werden. Es hat eine Länge von 44,50 bei einer maximalen Breite von 19,45 Metern[41] und gehört zum sogenannten Reihentyp, bei dem die wichtigsten drei Badetrakte in einer Achse hintereinander angeordnet sind. Da ein Apodyterium (Auskleideraum) nicht nachgewiesen werden konnte, wird dieser vermutlich in einem Anbau aus Holz oder Fachwerk bestanden haben.[42] Ähnliche Befunde sind von den Kastellbädern in Würzberg und Walldürn bekannt.
Aufgrund der Apsiden des Warmbades, die besonders häufig bei Gebäuden ab hadrianischer Zeit auftreten, wurde zunächst eine Datierung in diese Zeit erwogen. Ähnliche Typen von Kastellbädern sind am obergermanischen Limes schon aus flavischer Zeit geläufig, etwa die Thermen vom Kastell Echzell, Kastell Bendorf oder Kastell Salisberg.[43]
Nach den Grabungen um die Wende vom 19. zum 20. Jahrhundert wurde das Bad restauriert. 70 Jahre später musste es 1968 einem Fabrikgebäude weichen. Es wurde in den Nilkheimer Park versetzt, wo es sich noch befindet.[44]


Vicus und Gräberfeld
Das Kastelldorf (Vicus) erstreckte sich entlang des Mains nördlich und südlich des Kastells. Wie bei der Kastellinnenbebauung sind nur tiefer liegende Befunde wie Keller und Hypokausten dokumentiert; deshalb ist von der Wohnbebauung kein zusammenhängendes Bild zu gewinnen, obwohl von Wirth über 50 Keller oder Steingebäude angeschnitten wurden. Die Verlängerung der via principalis nach Norden und Süden bildete die Hauptachse des Lagerdorfs. Sie wurde stellenweise nachgewiesen, wobei eine Breite von neun Metern festgestellt wurde. Südlich des Kastells scheint die Besiedlung dichter gewesen zu sein, sodass die Straße zur Erschließung nicht mehr ausreichte. Parallel verlief etwa 100 Meter westlich eine zweite Straße, die vermutlich das rückwärtige Kastelltor (porta decumana) erreichte.[45]
Von den Gräberfeldern konnte besonders nördlich der Eisenbahnlinie und der Erdschanze ein größerer Teil ergraben werden. Im Vicus haben mehrere Einzelbefunde Eingang in die archäologische Forschung gefunden.
Etwa 100 Meter nördlich des Kohortenkastells wurde in der Nähe des Mainufers ein auf den Zeitraum 95–125 n. Chr. datierter Ziegelofen freigelegt, der nach den Stempeln von der Cohors III Aquitanorum (3. Kohorte der Aquitanier) betrieben wurde. Ein weiterer Brennofen derselben Einheit wurde 75 Meter von der Südecke des Kastells entfernt entdeckt.[46] Die Ziegel wurden vorwiegend zu Bauten innerhalb des Steinkastells verwendet.
Schiffslände
Vor der nordöstlichen Lagerecke befand sich eine Anlegestelle für Schiffe. Aufgefunden wurde eine stark zerstörte Kaimauer mit 2,70 Meter Breite und bis zu 2,40 Meter Höhe. Sie ruhte auf einem Pfahlrost aus Eichen. Davor befand sich eine Holzkonstruktion, von der mehrere miteinander verzapfte Balken aufgefunden wurden. Sie hatte wahrscheinlich den Zweck, auch Schiffen mit größerem Tiefgang das Andocken zu ermöglichen. Eine Darstellung an der Trajanssäule in Rom ist der Stockstädter Anlegestelle sehr ähnlich.
Benefiziarier-Station
Wenige Meter von der Anlegestelle flussabwärts wurden seit 1886 zahlreiche Weihealtäre von beneficiarii consulares aus dem weitgehend moorigen Boden geborgen. Aufgrund der Masse der Steininschriften konnte es sich nur um eine Station handeln, die den Handel und wahrscheinlich besonders den Schiffsverkehr überwachte. Die Inschriften datieren in die Zeit von 166 bis 208 n. Chr. Möglicherweise wurde die Station danach aufgegeben. Ein Teil der älteren Weihealtäre der Benefiziarier fand sich wiederverwertet im Mithräum I.[47] Von dem zugehörigen Gebäude konnte Conrady trotz intensiver Suche nur Kulturschichten und Bauschutt entdecken.


Mithräum I und II
Das Mithräum I (13,00 × 7,80 m) wurde 1902 südöstlich des Kastells gefunden. Es handelt sich nach den Funden um das jüngere, um 210 n. Chr. errichtete der beiden Heiligtümer. Ein Brand zerstörte den Bau, sein außerordentlich reiches Inventar blieb aber im Boden erhalten. Neben einem silbernen Votivblech gehörten dazu Fragmente eines drehbaren Mithras-Kultbildes[27] und 66 weitere Steindenkmäler. Kleinfunde wie Münzen sind dagegen unterrepräsentiert. Funde von drei verschiedenen Merkur-Statuen legen nahe, dass die Verehrung dieses Gottes besondere Bedeutung hatte. In beiden Mithräen befand sich je eine Mercuriusstatue mit einem Kind im Arm.[49] Die Weihungen einer Vielzahl von Göttern in den Heiligtümern belegt, dass sich religiöse Vorstellungen allmählich vermischten.[50]
Mit dem Mithräum II (11,50 × 6,50 m) wurde an der Südostseite des kleinen Holzkastells in der Nähe des Mains 1909/10 ein weiteres Heiligtum freigelegt.[51] Münzfunde, die als Bauopfer anzusehen sind, geben einen terminus post quem für die Errichtung des Mithräums II nach 157 n. Chr.[52] Mit fünf Altären und einer Mercurius-Statue sind die Funde wesentlich geringer als im Mithräum I, insbesondere fehlt ein Kultbild. Dies belegt im Zusammenhang damit, dass in dem ebenfalls durch einen Brand zerstörten Gebäude im 3. Jahrhundert Siedlungsabfälle abgelagert wurden, die zeitliche Abfolge der beiden Mithräen. Das Kultbild aus dem Mithräum II könnte in dem späteren Gebäude weiter verwendet worden sein.[53]
Dolichenus-Heiligtum
Ein Heiligtum für Iupiter Dolichenus (sogenanntes Dolichenum) konnte südöstlich des Kastells, nur wenige Meter vom Mithräum I entfernt, nachgewiesen werden. Vom Grundriss lässt sich wegen der starken Zerstörung des Gebäudes kein genaues Bild machen. Inschriften legen eine Nutzung in severischer Zeit nahe. Der bei Soldaten recht beliebte Kult könnte wesentlich von der cohors I Aquitanorum etabliert worden sein, die seit der Mitte des 2. Jahrhunderts in Stockstadt nachweisbar ist. Neben der gemeinschaftlich gesetzten Weihinschrift der Truppe,[48] die auf ein eingelöstes Gelübde hinweist, ist in einer anderen einer ihrer Präfekten genannt.[31] Eine Besonderheit im Fundmaterial sind zahlreiche Stierhörner und -schädel, wahrscheinlich Reste von Opfertieren.
Denkmalschutz und Fundverbleib
Aufgrund der sehr weitgehenden Zerstörung des Kastellareals durch Überbauung ist das Kastell Stockstadt nicht Teil des UNESCO-Welterbes Frontiers of the Roman Empire.[54] Das Kastell und die erwähnten Anlagen sind jedoch als eingetragene Bodendenkmale im Sinne des Bayerischen Denkmalschutzgesetzes (BayDSchG) geschützt. Nachforschungen und gezieltes Sammeln von Funden sind erlaubnispflichtig, Zufallsfunde den Denkmalbehörden anzuzeigen.
Römerzeitliche Funde aus Stockstadt sind im Saalburgmuseum, im Stiftsmuseum Aschaffenburg und im Heimatmuseum Stockstadt ausgestellt.
Siehe auch
Literatur
- Dietwulf Baatz: Stockstadt am Main AB. Kohortenkastell. In: Dietwulf Baatz und Fritz-Rudolf Herrmann (Hrsg.): Die Römer in Hessen. Lizenzausgabe der 3. Auflage von 1989. Nikol, Hamburg 2002 S. 479–481. ISBN 3-933203-58-9.
- Dietwulf Baatz: Der Römische Limes. Archäologische Ausflüge zwischen Rhein und Donau. 4. Auflage. Gebr. Mann, Berlin 2000, ISBN 3-7861-2347-0, S. 176f.; S. 231 (Stiftsmuseum Aschaffenburg); S. 233f. (Badegebäude im Nilkheimer Park).
- Dietwulf Baatz: Zur Datierung des Bades am Limeskastell Stockstadt. In: Bayerische Vorgeschichtsblätter 34, 1969 S. 63–75.
- Karlheinz Dietz: Zwei Jupiterweihungen aus Stockstadt a. Main. Landkreis Aschaffenburg, Unterfranken. In: Das archäologische Jahr in Bayern 1990. S. 104–107.
- Andreas Hensen: Die Tempel des Mithras beim Kastell von Stockstadt am Main. In: Der Limes. Nachrichtenblatt der Deutschen Limeskommission 5/2011 Heft 2, S. 10–13.
- Hans-Jörg Kellner: Ein Schatzfund aus dem Kastell Stockstadt, Lkr. Aschaffenburg. In: Germania 41, 1963 S. 119–122.
- Marion Mattern: Römische Steindenkmäler aus Hessen südlich des Mains sowie vom bayerischen Teil des Mainlimes. Corpus Signorum Imperii Romani. Deutschland Bd. 2,13, Mainz 2005, Verlag des Romisch-Germanischen Zentralmuseums; in Kommission bei Habelt, Bonn, ISBN 3-88467-091-3.
- L. Schleiermacher: Das zweite Mithräum in Stockstadt a.M. In: Germania 12, 1928, S. 46–56, doi:10.11588/ger.1928.20926.
- Hans Schönberger: Die Körpergräber des vierten Jahrhunderts aus Stockstadt a. Main. In: Bayerische Vorgeschichtsblätter 20, 1954 S. 128–134.
- Kurt Stade: Nachtrag zu Abt. B Nr. 33 Kastell Stockstadt. In: Ernst Fabricius, Felix Hettner, Oscar von Sarwey (Hrsg.): Der obergermanisch-raetische Limes des Roemerreiches. (ORL) Abt. A Strecke 6 (1933) S. 29–70.
- Bernd Steidl: Welterbe Limes: Roms Grenze am Main. Logo, Obernburg am Main 2008, ISBN 3-939462-06-3, S. 156–161 (= Ausstellungskataloge der Archäologischen Staatssammlung 36).
- Ludwig Wamser: Ausgrabungen im Vicus des Römerkastells Stockstadt a. Main. Landkreis Aschaffenburg, Unterfranken. In: Das archäologische Jahr in Bayern 1990, S. 98–104.
Grabungsbericht der Reichs-Limeskommission:
- Friedrich Drexel: Das Kastell Stockstadt. In: Der obergermanisch-raetische Limes des Roemerreiches B, Bd. 3, Kastell Nr. 33 (1914).
Weblinks
Einzelnachweise
- ↑ a b CIL 13, 6649.
- ↑ Martin Eckoldt: Schiffahrt im Umkreis des Odenwaldes. In: Der Odenwald. Zeitschrift des Breuberg-Bundes 1, 1989, S. 3–18, bes. S. 14.
- ↑ Friedrich Drexel: Das Kastell Stockstadt. ORL B 3, S. 21f.
- ↑ Dietwulf Baatz in: Die Römer in Hessen. Lizenzausgabe der 3. Auflage von 1989. Nikol, Hamburg 2002 S. 479; Bernd Steidl: Welterbe Limes: Roms Grenze am Main. Logo, Obernburg am Main 2008, S. 157.
- ↑ Dietwulf Baatz: Zur Datierung des Bades am Limeskastell Stockstadt. In: Bayerische Vorgeschichtsblätter 34, 1969, S. 71; Kurt Stade, ORL A III Strecke 6 S. 11.
- ↑ Klaus Kortüm: Zur Datierung der römischen Militäranlagen im obergermanisch-raetischen Limesgebiet. In: Saalburg-Jahrbuch 49, 1998. Zabern, Mainz 1998, S. 5–65, hier: S. 31.
- ↑ Klaus Kortüm: Die Umgestaltung der Grenzsicherung in Obergermanien unter Traian. Egon Schallmayer (Hrsg.): Traian in Germanien, Traian im Reich. Bericht des Dritten Saalburgkolloquiums. Saalburgmuseum, Bad Homburg v. d. h. 1999, ISBN 3-931267-04-0 (Saalburg-Schriften. 5), S. 195–205, bes. S. 198.
- ↑ Zur Stockstädter Gruppe siehe D. Baatz: Zur Datierung des Bades am Limeskastell Stockstadt. In: Bayerische Vorgeschichtsblätter 34, 1969, besonders S. 66f.
- ↑ agen[tium in li]/gna(riis) CIL 13, 11781.
- ↑ Zu den Inschriften siehe D. Baatz: Die Römer in Hessen. 1989 S. 103; Obernburg: CIL 13, 6623 sowie Helmut Castritius, Manfred Clauss, Leo Hefner: Die Römischen Steininschriften des Odenwaldes (RSO). Beiträge zur Erforschung des Odenwaldes 2, 1977, S. 237–308. Nr. 28; Trennfurt: AE 1899, 194.
- ↑ CIL 13, 11774.
- ↑ CIL 13, 06658 (4, p 107) = Helmut Castritius, Manfred Clauss, Leo Hefner: Die Römischen Steininschriften des Odenwaldes (RSO). Beiträge zur Erforschung des Odenwaldes 2, 1977, S. 237–308. Nr. 15; Abbildung.
- ↑ Bernd Steidl: Welterbe Limes: Roms Grenze am Main. Logo, Obernburg am Main 2008, S. 157.
- ↑ Hans Schönberger: Die Körpergräber des vierten Jahrhunderts aus Stockstadt a. Main. In: Bayerische Vorgeschichtsblätter 20, 1954 S. 128–134.
- ↑ a b CIL 13, 06656 = Helmut Castritius, Manfred Clauss, Leo Hefner: Die Römischen Steininschriften des Odenwaldes (RSO). Beiträge zur Erforschung des Odenwaldes 2, 1977, S. 237–308. Nr. 50; Abbildung.
- ↑ CIL 13, 11775.
- ↑ Friedrich Drexel: Das Kastell Stockstadt. ORL B 3, S. 35.
- ↑ CIL 13, 11780; CIL 13, 11782.
- ↑ Zur frühesten Forschungsgeschichte siehe Friedrich Drexel in ORL B 3 S. 1f.
- ↑ Zum Münzschatz siehe Hans-Jörg Kellner: Ein Schatzfund aus dem Kastell Stockstadt, Lkr. Aschaffenburg. In: Germania 41, 1963, S. 119–122.
- ↑ Karlheinz Dietz: Zwei Jupiterweihungen aus Stockstadt a. Main. Landkreis Aschaffenburg, Unterfranken. In: Das archäologische Jahr in Bayern 1990. S. 104–107.
- ↑ Ludwig Wamser: Ausgrabungen im Vicus des Römerkastells Stockstadt a. Main. Landkreis Aschaffenburg, Unterfranken. In: Das archäologische Jahr in Bayern 1990. S. 98–104.
- ↑ CIL 13, 6655.
- ↑ CIL 13, 06634.
- ↑ Marion Mattern: Römische Steindenkmäler aus Hessen südlich des Mains sowie vom bayerischen Teil des Mainlimes. Corpus Signorum Imperii Romani. Deutschland Bd. 2,13, Kat-Nr. 6–152.
- ↑ Stockstadt: CIL 13, 06634; Jagsthausen: CIL 13, 06556.
- ↑ a b Zum Kultbild siehe Ingeborg Huld-Zetsche / Klaus-Jürgen Rau: Das doppelseitige Kultbild aus dem Mithräum I von Stockstadt. In: Saalburg-Jahrbuch 51, 2001, S. 13–36.
- ↑ Marion Mattern: Römische Steindenkmäler aus Hessen südlich des Mains sowie vom bayerischen Teil des Mainlimes. Corpus Signorum Imperii Romani. Deutschland Bd. 2,13, S. 28, Kat-Nr. 81–86.
- ↑ CIL 13, 06632 = Helmut Castritius, Manfred Clauss, Leo Hefner: Die Römischen Steininschriften des Odenwaldes (RSO). Beiträge zur Erforschung des Odenwaldes 2, 1977, S. 237–308. Nr. 39.
- ↑ CIL 13, 11785 = Helmut Castritius, Manfred Clauss, Leo Hefner: Die Römischen Steininschriften des Odenwaldes (RSO). Beiträge zur Erforschung des Odenwaldes 2, 1977, S. 237–308. Nr. 17; CIL 13, 06658 = Helmut Castritius, Manfred Clauss, Leo Hefner: Die Römischen Steininschriften des Odenwaldes (RSO). Beiträge zur Erforschung des Odenwaldes 2, 1977, S. 237–308. Nr. 15.
- ↑ a b CIL 13, 11782 = Helmut Castritius, Manfred Clauss, Leo Hefner: Die Römischen Steininschriften des Odenwaldes (RSO). Beiträge zur Erforschung des Odenwaldes 2, 1977, S. 237–308. Nr. 9.
- ↑ CIL 13, 06631 = Inscriptiones Graecae 14, 02564 = Helmut Castritius, Manfred Clauss, Leo Hefner: Die Römischen Steininschriften des Odenwaldes (RSO). Beiträge zur Erforschung des Odenwaldes 2, 1977, S. 237–308. Nr. 75.
- ↑ Marion Mattern: Römische Steindenkmäler aus Hessen südlich des Mains sowie vom bayerischen Teil des Mainlimes. Corpus Signorum Imperii Romani. Deutschland Bd. 2,13, S. 31, Kat-Nr. 148.
- ↑ D. Baatz: Zur Datierung des Bades am Limeskastell Stockstadt. In: Bayerische Vorgeschichtsblätter 34, 1969 S. 71.
- ↑ Marcus Reuter: Die römischen Kleinkastelle von Hanau-Mittelbuchen und der Verlauf des östlichen Wetteraulimes unter Domitian. In: E. Schallmayer (Hrsg.): Limes Imperii Romani. Beiträge zum Fachkolloquium „Weltkulturerbe Limes“ November 2001 in Lich-Arnsburg. Saalburg-Schriften 6, 2004 (Bad Homburg v. d. H. 2004), S. 97–106.
- ↑ Hans Schönberger: Die römischen Truppenlager der frühen und mittleren Kaiserzeit zwischen Nordsee und Inn. In: Bericht der Römisch-Germanischen Kommission 66, 1985 (1986), S. 383f.
- ↑ Nach Dietwulf Baatz: Zur Datierung des Bades am Limeskastell Stockstadt. In: Bayerische Vorgeschichtsblätter 34, 1969, S. 68; bei D. Baatz: Die Römer in Hessen. 1989, S. 480 „Kleinkastell aus Holz“.
- ↑ D. Baatz: Zur Datierung des Bades am Limeskastell Stockstadt. In: Bayerische Vorgeschichtsblätter 34, 1969, S. 71; D. Baatz: Die Römer in Hessen. 1989, S. 480.
- ↑ a b c Angaben nach Friedrich Drexel: Das Kastell Stockstadt. ORL B 3 S. 5–9.
- ↑ Friedrich Drexel: Das Kastell Stockstadt. In: ORL B, Bd. 3, Kastell Nr. 33 (1914) S. 5.
- ↑ Angaben Nach Friedrich Drexel: Das Kastell Stockstadt. ORL B 3 S. 17–21.
- ↑ Dietwulf Baatz: Zur Datierung des Bades am Limeskastell Stockstadt. In: Bayerische Vorgeschichtsblätter 34, 1969 S. 65f.; Bernd Steidl: Welterbe Limes: Roms Grenze am Main. Logo, Obernburg am Main 2008, S. 177.
- ↑ D. Baatz: Zur Datierung des Bades am Limeskastell Stockstadt. In: Bayerische Vorgeschichtsblätter 34, 1969, S. 63–68.
- ↑ heutige Lage: 49° 57′ 13,4″ N, 9° 7′ 0,5″ O
- ↑ Zu den Kastellvici am Mainlimes siehe Bernd Steidl: Welterbe Limes: Roms Grenze am Main. Logo, Obernburg am Main 2008, S. 102–107.
- ↑ Ulrich Brandl und Emmi Federhofer: Ton + Technik. Römische Ziegel. Theiss, Stuttgart 2010, ISBN 978-3-8062-2403-0 (Schriften des Limesmuseums Aalen. Nr. 61)
- ↑ Marion Mattern: Römische Steindenkmäler aus Hessen südlich des Mains sowie vom bayerischen Teil des Mainlimes. Corpus Signorum Imperii Romani. Deutschland Bd. 2,13, Mainz 2005, S. 26.
- ↑ a b CIL 13, 11780.
- ↑ Stehender Mercurius mit Kind, aufgefunden in der hinteren rechten Ecke des Mithräum I, siehe Marion Mattern: Römische Steindenkmäler aus Hessen südlich des Mains sowie vom bayerischen Teil des Mainlimes. Corpus Signorum Imperii Romani. Deutschland Bd. 2,13, S. 83, Kat.-Nr. 98, Saalburgmuseum, Abbildung; sitzender Mercurius mit Kind aus dem Mithräum II, am Beginn des linken Podiums gefunden. Siehe ebd. S. 93, Kat.-Nr. 129, heute im Stiftsmuseum Aschaffenburg.
- ↑ Bernd Steidl: Welterbe Limes: Roms Grenze am Main. Logo, Obernburg am Main 2008 S. 161.
- ↑ Zum Befund des Mithräum II siehe L. Schleiermacher: Das zweite Mithräum in Stockstadt a.M. In: Germania 12, 1928, S. 46–56.
- ↑ Bernd Steidl: Welterbe Limes: Roms Grenze am Main. Logo, Obernburg am Main 2008 S. 160.
- ↑ Marion Mattern: Römische Steindenkmäler aus Hessen südlich des Mains sowie vom bayerischen Teil des Mainlimes. Corpus Signorum Imperii Romani. Deutschland Bd. 2,13, S. 26 mit weiterer Literatur.
- ↑ Siehe Nominierung auf der UNESCO-Homepage, Appendix 1, S. 156.