Kastell Köngen
| Kastell Köngen | |
|---|---|
| Alternativname | Grinario |
| Limes | ORL 60 (RLK) |
| Strecke (RLK) | Neckar-Odenwald-Limes Neckarlinie |
| Datierung (Belegung) | um 85/90 n. Chr. bis um 159/160 n. Chr. Vicus bis Mitte 3. Jahrhundert |
| Typ | Kohortenkastell |
| Einheit | unbekannte teilberittene Kohorte |
| Größe | 160,5 × 151 m = 2,4 ha |
| Bauweise | a) Holz-Erde-Kastell b) Steinkastell |
| Erhaltungszustand | teilweise konserviert und rekonstruiert |
| Ort | Köngen |
| Geographische Lage | 48° 40′ 38,3″ N, 9° 21′ 36,2″ O |
| Höhe | 280 m ü. NHN |
| Vorhergehend | ORL 59 Kastell Stuttgart-Bad Cannstatt (Nordnordost) |
| Anschließend | ORL 61 Kastell Rottenburg (südwestlich, Neckarlinie) Kastell Dettingen unter Teck (südöstlich, Lautertal-Limes) |
Das Kastell Köngen war ein römisches Militärlager an der Neckarlinie des Neckar-Odenwald-Limes. Das jetzige Bodendenkmal mit dem zugehörigen, in antiker Zeit Grinario genannten Vicus befindet sich auf dem Gebiet der heutigen Ortschaft Köngen, einer Gemeinde des Landkreises Esslingen in Baden-Württemberg.
Lage

(Pfeil Mitte oben)
Das Kastell liegt am linken Neckarufer gegenüber der Lautermündung auf einer Hangterrasse der Flur „Burgfeld“. Das Plateau erhebt sich etwa 30 m über das Niveau des Flusses. Der Vicus erstreckt sich nördlich und südlich des Lagers über eine Gesamtstrecke von gut einem Kilometer.
In antiker Zeit befand sich die Fortifikation hier an einem verkehrsgeographisch und damit strategisch bedeutsamen Punkt. Hier verlief die römische Fernstraße von Mogontiacum (Mainz) nach Augusta Vindelicorum (Augsburg) und hier zweigte der Lautertal-Limes, die so genannte „Sybillenspur“, vom Neckar-Odenwald-Limes ab und verband diesen über die Kleinkastelle von Dettingen unter Teck und Clarenna (Römerstein-Donnstetten) mit dem Alblimes.
Forschungsgeschichte
.jpg)
Der Ort Grinario ist bereits auf der Tabula Peutingeriana verzeichnet. Erste Ausgrabungen im Bereich des Vicus, auf dem „Burgfeld“ genannten Flurstück, fanden durch Oberamtmann Johann Eberhard Roser schon 1783/84 statt, weitere folgten 1843/44 und 1882 durch Konrad Miller.[1] Dabei wurden Bestandteile des römischen Straßensystems, Gebäudefragmente des Vicus und das Gräberfeld am nördlichen Rande der Siedlung entdeckt. Das Militärlager selbst wurde erst 1885 durch General Eduard von Kallee gefunden[1] und 1896 durch die Reichs-Limeskommission (RLK) systematisch untersucht und dokumentiert.
Im Anschluss an die großen Grabungen des 19. Jahrhunderts wurde von den Esslinger Altertumsfreunden und dem Schwäbischen Albverein die südliche Lagerecke einschließlich des Wehrturms auf den Originalfundamenten rekonstruiert. Die endgültige Fertigstellung dieses Wiederaufbaus erfolgte erst 1911, wobei sich die Erbauer an der Saalburgrekonstruktion orientierten. Entgegen dem bereits damals der Archäologie bekannten, weiten Zinnenabstand römischer Militärbauten, hatte Kaiser Wilhelm an der Saalburg eine historisch falsche, an mittelalterlichen Vorbildern orientierte Umsetzung der Zinnen verlangt.[2] Diese kaiserliche Vorgabe wurde nicht nur in Köngen,[3] sondern an den meisten baulich umgesetzten Rekonstruktionen des In- und Auslandes noch bis weit in das 20. Jahrhundert übernommen.
Bereits 1910 war der antike Name Grinario durch den Fund zweier Inschriftensteine[4] verifiziert worden.
Bedingt durch Bautätigkeiten erfolgten in der zweiten Hälfte des 20. Jahrhunderts weitere Ausgrabungen durch das Landesdenkmalamt Baden-Württemberg. Zumeist handelte es sich dabei um kleinere Not- und Rettungsgrabungen. Seit 1974 ist das Kastell Köngen eingetragenes Kulturdenkmal.[5] 1987/88 wurde der „Römerpark Köngen“ als archäologisches Freilichtmuseum auf dem Kastellgelände errichtet.
Kastell

(Grabung 1896)

(Grabung 1896)

Das Kastell wurde vermutlich unter Domitian, etwa um die Jahre 85/90 n. Chr.[6], zunächst als Holz-Erde-Lager angelegt. Der Umbau zum Steinkastell erfolgte in frühhadrianischer Zeit, kurz nach 120 n. Chr. In der Fortifikation war eine namentlich bislang unbekannte cohors quingenaria equitata (teilberittene Kohorte) stationiert, ein aus Infanterie und Kavallerie bestehender Auxiliarverband von rund 500 Mann Stärke. Mit der Vorverlegung des Limes höchstwahrscheinlich im Jahre 159 n. Chr. wurde das Lager aufgelassen und seine Garnison wahrscheinlich in das Kastell Lorch verlegt. Dort wurde ein bronzener Votivanhänger gefunden, der in seiner eingepunzten Inschrift eine leider nicht näher genannte Cohors equitata nennt.[7]
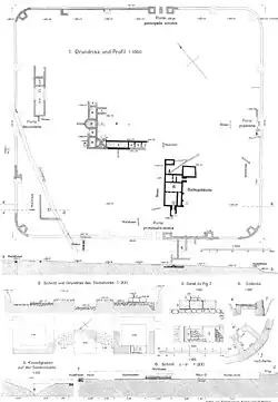
In seiner Steinbauphase bedeckte das Kastell mit den Seitenlängen 151,8/150,3 m mal 161,4/159,6 m eine nahezu quadratische Fläche von rund 2,4 ha. Umgeben war es von einer Steinmauer mit einer durchschnittlichen Mächtigkeit von 1,10 bis 1,20 m. Die abgerundeten Ecken der Mauer waren mit Türmen bewehrt, die vier Tore von Doppeltürmen flankiert. Darüber hinaus gab es insgesamt zehn Zwischentürme, vier im Bereich der Praetentura (vorderer Lagerbereich) und sechs in der Retentura (rückwärtiger Lagerbereich). Mit seiner Porta Praetoria (Haupttor) war das Kastell nach Südosten, zum Neckar hin ausgerichtet.
Von der Innenbebauung wurden die zentral gelegenen, teilweise zerstörten Principia (Stabsgebäude) mit dem Fahnenheiligtum (Sacellum oder Aedes) freigelegt und untersucht, deren Sacellum im Gegensatz zum üblichen Kastellschema nicht unterkellert war. Des Weiteren wurde noch ein größeres Gebäude unbekannter Bestimmung in der nördlichen Retentura freigelegt. Die übrige Innenbebauung kann aufgrund von Vergleichsbefunden erschlossen werden. Praetorium (Wohnhaus des Kommandanten), Valetudinarium (Lazarett) und Horreum (Getreidespeicher) können demnach als selbstverständlich angenommen werden, des Weiteren Stallungen und Werkstätten im Bereich der Retentura. Die Praetentura dürfte demnach rechts und links der Via Praetoria (Ausfallstraße) von je drei Mannschaftsbaracken bebaut gewesen sein. In jeder dieser Baracken befanden sich zehn Contubernia (Stubengemeinschaften) für je acht Mann. Zusammengenommen bildeten die Contubernia jeweils einer Baracke eine Zenturie.
Nach dem Abzug der Garnison bis spätestens 159/160 n. Chr., wurde das aufgelassene Kastellgelände in den Vicus integriert und zivil genutzt. Das innerhalb des Kastellgeländes heute in seinen Grundrissen rekonstruierte Badegebäude ist ein Zeugnis dieser späteren Nutzung.
Vicus

(Grabung 1896)
Die Entstehung des Ortes Grinario, des Vicus von Köngen, ist nach Ausweis der Funde womöglich nicht zeitgleich mit der Errichtung des Kastells zu datieren, sondern erst mit einer kleinen Verzögerung, in etwa für die Zeit zwischen 90 und 100 n. Chr. anzusetzen.
Das Lagerdorf, in dem sich zunächst Angehörige der Militärs, dann Händler, Handwerker und Gastwirte, später auch entlassene Soldaten niederließen, erstreckt sich westlich, vor allem aber südwestlich und nördlich des Kastells. Hier orientierte sich die Bebauung der Zivilsiedlung an den zu den Nachbarkastellen in Sumelocenna (Rottenburg) und Cannstatt führenden Straßen. Insgesamt ist entlang dieser Verkehrsachse von einer Ausdehnung Grinarios über einen guten Kilometer auszugehen. In westöstlicher Richtung hingegen dürfte seine Breite an den ausgedehntesten Stellen wohl kaum mehr als 200 m betragen haben, so dass der Ort in etwa die Gestalt eines Straßendorfes hatte. Insgesamt betrug seine Größe etwas mehr als zehn Hektar, womit er zu den bedeutenderen Vici Südwestdeutschlands gehörte.
Verwaltungstechnisch unterstand Grinario zunächst dem Kommandanten des Kastells, anschließend der benachbarten römischen Stadt Sumelocenna Rottenburg, dem Hauptort der gleichnamigen Civitas.
Das Zentrum des Vicus befand sich unmittelbar südlich und westlich des Kastells. Hier wurde auch eine Benefiziarierstation lokalisiert. Die Benefiziarier waren eine Art Straßenpolizei mit Zollbefugnissen, die für die Sicherheit auf den öffentlichen Straßen zu sorgen hatte. Knapp 200 m südlich befand sich ein kleiner dem Jupiter Dolichenus geweihter Tempel. Im aufgelassenen Kastellgelände selbst wurde ein knapp 740 Quadratmeter großes, öffentliches Badegebäude errichtet, das über ein Frigidarium (Kaltbad) mit zwei Kaltwasserbecken, ein Caldarium (Warmbad) mit zwei Warmwasserbecken, ein Tepidarium (Laubad) und ein Sudatorium (Schwitzbad) verfügte. Im ehemaligen Kastellbereich dürften auch weitere öffentliche Gebäude untergebracht gewesen sein.
Die meisten Wohn- und Geschäftsgebäude standen in streifenförmiger Anordnung leicht schräg zu den vorbeiführenden Straßen, die Ausgrabungen belegen unterschiedlichste Hausformen. Neben Steingebäuden finden sich Häuser, die in unterschiedlichen Holz- und Fachwerktechniken errichtet waren. Handel, Metallverarbeitung und Töpferei bildeten die ökonomische Basis des Ortes, wobei die Töpfereien sehr vielfältige Produkte produzierten.
Am nördlichen Ende der Siedlung befand sich der ummauerte Friedhof, von dem noch 250 Gräber untersucht werden konnten. Es handelte sich dabei ausschließlich um Brandbestattungen.
Ende des 2. Jahrhunderts wurde Grinario von einer Brandkatastrophe getroffen, erholte sich aber bald und blühte im beginnenden 3. Jahrhundert erneut auf. Irgendwann in der Mitte des 3. Jahrhunderts endete diese Phase aber abrupt während der alamannischen Expansion der Jahre 233 bis 260 (Limesfall). Grinario wurde gewaltsam endgültig zerstört und von den überlebenden Bewohnern verlassen. Eine beeindruckende Hinterlassenschaft dieser unruhigen Zeit ist ein 1967 entdeckter Depotfund von 615 Silbermünzen.
Truppe und Militärpersonal
Im Kastellbereich wurde ein aus der Zeit um 150 n. Chr. stammender napfförmiger glatter Terra-Sigillata-Teller geborgen, der eine grob eingeritzte Besitzeranzeige trug: Cont(ubernium) signiferi Lupi („Eigentum der Stubengemeinschaft des Feldzeichenträgers Lupus“). Hergestellt hatte den Teller ein Töpfer namens Reginus.[8] Das Contubernium, die Stubengemeinschaft, war die kleinste Einheit der römischen Armee und besaß in den Mannschaftsbaracken der Kastelle einen gemeinsamen Wohnbereich, in dem auch gemeinschaftlich gekocht wurde.
Fundgut
Terra Sigillata
Neben dem weiter oben bereits genannten Teller des Herstellers Reginus, der seine Werkstätten entweder in Heiligenberg im Elsass oder in Rheinzabern (Tabernae) hatte,[8] lagen unter anderem bereits 1962 319 Bilderschüsselfragmente vor, die allesamt gesichert Rheinzabern zugeordnet werden konnten. An letzterem Ort sind beispielsweise die Hersteller Primitivus (Gruppe II c) und Julius II–Julianus I (Gruppe III a) nachweisbar, die neben Köngen auch das rätische Kastell Pfünz bedienten.[9] 19 der Formschüsselpunzen des Primitivus wurden in Schwabegg, an der Fernstraße von Augusta Vindelicum (Augsburg) nach Cambodunum (Kempten), kopiert. Da Pfünz 233 n. Chr. nach heutigem Wissensstand wohl endgültig zerstört worden ist, haben beide Sigillata-Manufakturen von Primitivus und Julius II–Julianus I wohl schon im ersten Drittel des 3. Jahrhunderts ihre Produktion aufgenommen.[10] Der Sigillataexperte Hans-Günther Simon (1925–1991) stellte 1962 fest, dass die Artikel der beiden Manufakturen wohl über die Zeit der Zerstörung von Pfünz hinaus hergestellt wurden.[11] Damit ergibt sich eine ungefähre Datierung speziell dieser Köngener Sigillaten, zumal das wahrscheinliche allgemeine Ende der Rheinzaberner Produktion wohl in den Jahren 260/270 n. Chr. stattfand.[12] Es konnte 1962 zudem festgestellt werden, dass Rheinzaberner Waren des Victor I, wie sie in Pfünz vertreten sind, in Köngen nicht vorkommen.[9]
Holzverschalung
Mit Hilfe der Dendrochronologie konnte die Verschalung eines Köngener Brunnens auf ein Fälldatum von 140 ± 10 n. Chr. gemessen werden.[13]
Gegenstände des täglichen Bedarfs
Hans-Jürgen Eggers ordnete eine Kelle, die zusammen mit einem Kessel in einem Vicus-Brunnen gefunden worden ist, der Stufe Eggers C 1 oder C 2 zu. Ein ebenfalls im Lagerdorf entdeckter Eimer wird der Stufe C 1 zugerechnet.[14]
Fundverbleib, Befundsicherung und Denkmalschutz

(Grabung 1896)
Nachdem schon 1978 vom Landesdenkmalamt in Zusammenarbeit mit dem Schwäbischen Albverein im rekonstruierten südwestlichen Eckturm des Kastells ein kleines Museum mit angegliedertem Freilichtbereich eingerichtet worden war, wurde nach dem Erwerb des gesamten Kastellgeländes durch das Land, die Gemeinde und den Albverein im Jahre 1985 ein größeres Projekt in Angriff genommen und schließlich bis 1988 realisiert. Das gesamte Kastellareal wurde zur archäologischen Zone umgestaltet, die Grundrisse der freigelegten Gebäude sowie die Kastellstraßen im Gelände markiert. Zahlreiche Kopien römischer Steindenkmäler wurden hier aufgestellt, die Originale sind im angegliederten neuen Römischen Museum zu sehen. Hier werden auch weitere Exponate der Römerzeit und die Geschichte des römischen Köngens präsentiert.
Weitere Funde fanden Aufnahme in den Magazinen der archäologischen Sammlung des Landesmuseums Württemberg im Alten Schloss in Stuttgart.
Das Bodendenkmal Kastell Köngen ist geschützt als eingetragenes Kulturdenkmal im Sinne des Denkmalschutzgesetzes des Landes Baden-Württemberg (DSchG). Nachforschungen und gezieltes Sammeln von Funden sind genehmigungspflichtig, Zufallsfunde an die Denkmalbehörden zu melden.
Siehe auch
Literatur
- Christoph Engels, Andreas Thiel: Taberna oder Basilica? Ein Steinbau im Zentrum des Vicus von Grinario/Köngen. In: Fundberichte aus Baden-Württemberg, 36 (2016), S. 259–304 (Digitalisat).
- Philipp Filtzinger: Köngen. In: Filtzinger, Planck, Cämmerer (Hrsg.): Die Römer in Baden-Württemberg. 3. Auflage, Theiss, Stuttgart 1986, ISBN 3-8062-0287-7, S. 369ff.
- Martin Luik: Köngen – Grinario 1. Topographie, Fundstellenverzeichnis, ausgewählte Fundgruppen. Theiss, Stuttgart 1996 (Forschungen und Berichte zur Vor- und Frühgeschichte in Baden-Württemberg, 62), ISBN 3-8062-1246-5.
- Martin Luik: Köngen – Grinario 2. Historisch-archäologische Auswertung. Theiss, Stuttgart 2004 (Forschungen und Berichte zur Vor- und Frühgeschichte in Baden-Württemberg, 82), ISBN 3-8062-1921-4.
- Martin Luik: Köngen. Kohortenkastell und Vicus. In: Dieter Planck (Hrsg.): Die Römer in Baden-Württemberg. Theiss, Stuttgart 2005, ISBN 3-8062-1555-3, S. 149ff.
- Martin Luik und Fridolin Reutti: Der Römerpark in Köngen. Theiss, Stuttgart 1988 (Führer zu archäologischen Denkmälern in Baden-Württemberg, 12), ISBN 3-8062-0558-2.
- Adolf Mettler in der Reihe Der obergermanisch-raetische Limes des Roemerreiches (Hrsg. Ernst Fabricius, Felix Hettner, Oscar von Sarwey): Abteilung B, Band 5, Kastell Nr. 60 (1907).
- Hans-Günther Simon: Terra Sigillata aus Köngen. In: Saalburg-Jahrbuch. Band 20, 1962, S. 8–44.
- Christoph Unz: Grinario – das römische Kastell und Dorf in Köngen. Theiss, Stuttgart 1982 (Führer zu archäologischen Denkmälern in Baden-Württemberg, 8), ISBN 3-8062-0302-4.
- Hartwig Zürn: Das Verwaltungsgericht entscheidet … Zum Kastell Köngen. In: Denkmalpflege in Baden-Württemberg, 5. Jg. 1976, Heft 3, S. 128–130.
- Matthias Ohm, Nina Willburger: Der römische Münzfund von Köngen. Zeugnis einer unruhigen Zeit. Likias Verlag, Friedberg 2017, ISBN 978-3-9817006-7-1.
Weblinks
- Römisches Museum Köngen mit Archäologischem Park
- Grinario auf der Website des Geschichts- und Kulturvereins Köngen
Anmerkungen
- ↑ a b Konrad Miller: Die römischen Kastelle in Württemberg. Verlag J. Weise, Stuttgart 1892. S. 16.
- ↑ Dietwulf Baatz: Die Saalburg – ein Limeskastell 80 Jahre nach der Rekonstruktion. In: Günter Ulbert, Gerhard Weber (Hrsg.): Konservierte Geschichte? Antike Bauten und ihre Erhaltung. Konrad Theiss Verlag. Stuttgart 1985. ISBN 3-8062-0450-0. S. 126; Abb. 127.
- ↑ Anne Johnson (dt. Bearbeitung von Dietwulf Baatz): Römische Kastelle, Verlag Philipp von Zabern, Mainz 1987, ISBN 3-8053-0868-X, S. 176.
- ↑ Darunter ein Meilenstein mit geographischer Zuordnung, AE 1900, 73: Imp(erator) Caesar / divi Traian(i) / Parth(ici) f(ilius) divi / Nervae nep(os) / Traian(us) Hadri(anus) / Aug(ustus) pont(ifex) ma(ximus) / trib(unicia) pot(estate) XIII c(onsul) / III p(ater) p(atriae) a Sumel(ocenna) / m(ilia) p(assuum) XXVIIII. (Zu deutsch etwa: „Imperator Caesar, Sohn des vergöttlichten Traian, des Besiegers der Parther, des vergöttlichten Nerva Enkel, Traianus Hadrianus Augustus, Oberpriester, zum dreizehnten Mal mit tribunizischer Gewalt ausgestattet, zum dritten Mal Konsul, Vater des Vaterlandes, von Sumelocenna [= Rottenburg] 29 Meilen“ (= 42,86 km).
- ↑ Archäologie in Deutschland, Ausgabe 2/2006. Konrad Theiss Verlag, Stuttgart. S. 72
- ↑ Nach gelegentlich in der Literatur vertretener, anderer Auffassung, erfolgte die Errichtung erst in spätdomitianischer Zeit, gegen das Jahr 98 n. Chr. hin.
- ↑ Britta Rabold, Egon Schallmayer, Andreas Thiel: Der Limes, Konrad Theiss Verlag, Stuttgart 2000, ISBN 3-8062-1461-1, S. 98.
- ↑ a b Marcus Junkelmann: Panis militaris – Die Ernährung des römischen Soldaten oder der Grundstoff der Macht, Verlag Philipp von Zabern, Mainz 1997, ISBN 3-8053-2332-8, S. 161, Abb. S. 162.
- ↑ a b Hans-Günther Simon: Terra sigillata aus Köngen. In: Hartwig Zürn: Festschrift Wolfgang Kimmig, E. Schweizerbart’sche Verlagsbuchhandlung, Stuttgart 1971, ISBN 3-510-49019-3, S. 258.
- ↑ Barbara Pferdehirt: Die Keramik des Kastells Holzhausen. (= Limesforschungen 16), Mann, Berlin 1976, ISBN 3-7861-1070-0, S. 20 ff.
- ↑ Fundberichte aus Baden-Württemberg, Theiß, Stuttgart 2001, ISBN 3-8062-1727-0, S. 724.
- ↑ Werner Zanier: Das römische Kastell Ellingen. Zabern (Reihe Limesforschungen, Band 23), Mainz 1992, ISBN 3-8053-1264-4. S. 124.
- ↑ Bernd Becker: Fällungsdaten römischer Bauhölzer anhand einer 2350jährigen Süddeutschen Eichen-Jahrringchronologie. In Fundberichte aus Baden-Württemberg. Band 6. Konrad Theiss Verlag, Stuttgart 1981, ISBN 3-8062-1252-X, S. 386.
- ↑ Hans-Jürgen Eggers: Chronologie der Kaiserzeit in Germanien. In: Aufstieg und Niedergang der römischen Welt. Band II, 5, 1. Verlag Walter de Gruyter, Berlin 1976, ISBN 3-11-006690-4, S. 27.
