K.Bay.Sts.B. Blatt 313
| O/Oq nach Blatt 313 gebremst / ungebremst | |
|---|---|
| Nummerierung: | 54 498 bis 55 247 (nicht alle Nummern) |
| Anzahl: | 184 / 496 |
| Baujahr(e): | 1870/77 |
| Ausmusterung: | < 1930? |
| Bauart: | offener Güterwagen |
| Gattung: | O/Oq |
| Spurweite: | 1435 mm (Normalspur) |
| Länge über Puffer: | 8224 mm |
| Länge: | 6560 mm / 7000 mm |
| Höhe: | 3200 mm / 2000 mm |
| Breite: | 2510 mm |
| Fester Radstand: | 3590 mm |
| Leermasse: | 7,5 / 6,0 t |
| Lademasse: | 10.000 – 10.500 |
| Höchstgeschwindigkeit: | 65 km/h |
| Raddurchmesser: | 1027 mm |
| Kupplungstyp: | Doppelhakenkupplung nach VDEV |
| Fußbodenhöhe: | 1200 mm |
| Ladelänge: | 6560 mm / 6940 mm |
| Ladebreite: | 2500 mm |
| Ladehöhe: | 800 mm |
| Ladefläche: | 16,4 – 17,5 m² |
| Laderaum: | 13,1 – 14,0 m³ |
Der K.Bay.Sts.B. Blatt 313 ist ein bayerischer Güterwagen. Dabei handelt es sich um einen zweiachsigen offenen Güterwagen nach dem Musterblatt 313 für die Bayerischen Staatseisenbahnen gemäß Wagenstandsverzeichnis von 1913, der ursprünglich von der Gesellschaft der königlich privilegierten bayerischen Ostbahn gebaut wurde. Der Wagentyp wurde in zwei Ausführungen, gebremst und ungebremst, gebaut.
Geschichte
Die Wagen wurden in den Jahren 1870 bis 1875 in sechs Serien von insgesamt 650 Stück für die Bayerische Ostbahn beschafft.[1] Es handelte sich dabei um die weitere Beschaffung eines Kohle-Wagens der Gattung ‚J‘. Mit der Übernahme der Ostbahn in die Bayerische Staatsbahn 1876 wurden die Wagen in den Wagenpark der Staatsbahn eingereiht, bekamen ein neues Nummernschema und wurden der Gattung ‚F‘ zugeordnet. Zusätzlich erfolgte 1877 die Beschaffung einer weiteren Serie von 100 Stück von der K.Bay.Sts.B.
Konstruktive Merkmale
Untergestell
Die Wagen hatten schon in der Auslieferungsvariante ein eisernes Untergestell. Nach der Übernahme in die Staatsbahn erhielten die Wagen im Rahmen von modernisierenden Umbauten in den Zentralwerkstätten in Regensburg und Nürnberg neue Puffer, so dass sich die LüP von 8.110 mm auf bis zu 8.264 mm bei den gebremsten Wagen änderte. Die äußeren Längsträger hatten U-Form mit nach außen gerichteten Flanschen. Die Querträger waren ebenfalls aus U-Profilen und nicht gekröpft. Als Zugeinrichtung hatten die Wagen Schraubenkupplungen mit Sicherheitsbügeln. Die Zugstange war durchgehend und mittig gefedert. Als Stoßeinrichtung besaßen die Wagen in der Ursprungsausführung Stangenpuffer mit einer Einbaulänge von 550 mm. Diese wurden ersetzt durch solche mit einer Einbaulänge von 612 mm. In der Skizze nach Blatt 313 aus dem Wagenstandsverzeichnis von 1913 wird für die gebremste Bauform auf der Seite des Bremserhauses ein Puffer mit einer Einbaulänge von 650 mm ausgewiesen. Die Pufferteller hatten einen Durchmesser von 370 mm.
Bei den gebremsten Wagen war der Wagenkasten einseitig um 400 mm verkürzt für die Bremserbühne. Diese ragte in der Höhe des Bremserhauses über den Puffer.
Laufwerk
Die Wagen hatten aus Flacheisen geschmiedete Fachwerk-Achshalter der kurzen, geraden Bauform. Gelagert waren die Achsen in geteilten Gleitachslagern bayerischer Bauform. Die Räder hatten Speichenradkörper der Bauart 38 mit einem Raddurchmesser von 1027 mm. Die Federung bestand aus sechs 1109 mm langen Federeisen mit einem Querschnitt von 96 × 13 mm.
Bei den Wagen in der gebremsten Ausführung wurden die Räder beidseitig gebremst. Das Bremsgestänge hatte mittige Umlenkhebel in der bayerischen Bauform.
Wagenkasten
Die Seitenwände der Wagen bestanden aus 4 mm starkem Blech mit außenliegenden Profileisen als Verstärkung. Bei den ungebremsten Wagen waren alle Seitenwände des Wagenkastens abbordbar. Bei einzelnen Wagen konnten die Seiten- und Stirnwände nur mit Hilfe von Werkzeugen abgebaut werden. Das Gerippe der Wagenwände bestand aus U- und Flachprofilen. Der Boden des Laderaums hatte eine Stärke von 40 mm.
Die beidseitigen Ladeöffnungen hatten zweiflügelige, nach außen zu öffnende Türen aus Blech mit eisernen Verstärkungen und einer lichten Ladebreite von 1.500 mm. Die seitlichen Bordwände waren bei allen Wagen 800 mm hoch.
Bei den gebremsten Wagen stand das Bremserhaus auf der rechten Seite der Bremserplattform und ragte über die Kopfschwelle hinaus. Das Bremserhaus war von links her offen und zugänglich, die Handspindelbremse war fast mittig an der Stirnwand angebracht.
Skizzen, Musterblätter, Fotos
-
Ansichten zum offenen Güterwagen nach Blatt 086 aus dem WV von 1879 -
Werksfoto der MAN zum offenen Güterwagen nach Blatt 086 aus dem WV von 1879 -
Ansichten zum offenen Güterwagen nach Blatt 191 aus dem WV von 1897 -
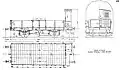
Ansichten zum offenen Güterwagen nach Blatt 313 aus dem WV von 1913
Wagennummern
| Herstelldaten | Wagennummern je Epoche | Abmessungen | Fahrwerk | Wände | Fassungsraum | Gewichte | Zusatzinfos | ||||||||||||||
|---|---|---|---|---|---|---|---|---|---|---|---|---|---|---|---|---|---|---|---|---|---|
| Her- steller |
Anz. | ab 1875 | ab 1896 | ab 1909 (1907) |
DRG (ab 1923) |
Aus- gemu- stert |
LüP [mm] |
Höhe über SOK [mm] |
Anz. Achs. |
Achs- stand [mm] |
Le- nk- ach- sen |
Brem- sen- arten |
Stirn- wände |
Seiten- wände |
Lade- länge [mm] |
Lade- breite [mm] |
Boden- fläche m2 |
Lade- raum m3 |
Lade- gewicht [to] |
Eigen- gewicht [to] |
Bemerkungen |
| Blatt-Nr. 313I (ehemals 191) gel. 1870 |
Serie F |
O. | O.d. | O | (siehe Legende) |
Wände abbordbar | |||||||||||||||
| 5 | 15 960– 15 964 |
54 498– 54 502 |
Re 54 498– Re 54 502 |
8224 | 2000 | 2 | 3590 | 2 | 2 | 6940 | 2510 | 16,7 | 13,4 | 10,0 | 6,0 | Bordhöhe 800 mm; | |||||
| 75 | 15 965– 16 039 |
54 503– 54 577 |
Re 54 503– Re 54 577 |
||||||||||||||||||
| 20 | 16 040– 16 059 |
54 578– 54 579 |
Re 54 578– Re 54 579 |
8224 | 3200 | 2 | 3590 | Pl | 1 | 2 | 6540 | 2510 | 16,0 | 12,5 | 10,0 | 7,0 | |||||
| 54 580 | <1913 | ||||||||||||||||||||
| 54 581– 54 597 |
Re 54 581– Re 54 597 |
||||||||||||||||||||
| Blatt-Nr. 313II (ehemals 191) gel. 1871 |
Serie F |
O. | O.d. | O | (siehe Legende) |
Wände abbordbar | |||||||||||||||
| 74 | 16 060– 16 133 |
54 598– 54 671 |
Re 54 598– Re 54 618 |
8224 | 2000 | 2 | 3590 | 2 | 2 | 6940 | 2510 | 16,7 | 13,4 | 10,0 | 6,0 | Bordhöhe 800 mm; | |||||
| Re 54 619 | <1913 | ||||||||||||||||||||
| Re 54 620– Re 54 671 |
|||||||||||||||||||||
| 74 | 16 134– 16 207 |
54 672– 54 745 |
Re 55 672– Re 54 701 |
8224 | 3200 | 2 | 3590 | Pl | 1 | 2 | 6540 | 2510 | 16,0 | 12,8 | 10,0 | 7,5 | |||||
| Re 54 702 | <1913 | ||||||||||||||||||||
| Re 54 703 Re 54 720 |
|||||||||||||||||||||
| Re 54 721 | ?1914 | ||||||||||||||||||||
| Re 54 722 Re 54 723 |
|||||||||||||||||||||
| Re 54 724 | ?1914 | ||||||||||||||||||||
| Re 54 725 Re 54 745 |
|||||||||||||||||||||
| Blatt-Nr. 313III (ehemals 191) gel.1871/72 |
Serie F |
O. | O.d. | O | (siehe Legende) |
Wände abbordbar | |||||||||||||||
| 152 | 16 208– 16 359 |
54 746– 54 897 |
Re 54 746– Re 54 833 |
8224 | 2000 | 2 | 3590 | 2 | 2 | 6940 | 2510 | 16,7 | 13,4 | 10,0 | 6,0 | Bordhöhe 800 mm; | |||||
| Re 54 834 | <1913 | ||||||||||||||||||||
| Re 54 835– Re 54 837 |
|||||||||||||||||||||
| Re 54 838 | <1913 | ||||||||||||||||||||
| Re 54 839 | |||||||||||||||||||||
| Re 54 840 | <1913 | ||||||||||||||||||||
| Re 54 841– Re 54 851 |
|||||||||||||||||||||
| Re 54 852 | <1913 | ||||||||||||||||||||
| Re 54 853– Re 54 857 |
|||||||||||||||||||||
| Re 54 858 | <1913 | ||||||||||||||||||||
| Re 54 859– Re 54 891 |
|||||||||||||||||||||
| Re 54 892 | <1913 | ||||||||||||||||||||
| Re 54 893– Re 54 897 |
|||||||||||||||||||||
| Blatt-Nr. 313IV (ehemals 191) gel.1872/75 |
Serie F |
O. | O.d. | O | (siehe Legende) |
Wände abbordbar | |||||||||||||||
| 100 | 16 360– 16 459 |
54 898– 54 997 |
Re 54 898– Re 54 997 |
8224 | 2000 | 2 | 3590 | 2 | 2 | 6940 | 2510 | 17,5 | 14,0 | 10,0 | 5,5 | Bordhöhe 800 mm; | |||||
| 30 | 16 460– 16 489 |
54 998– 55 027 |
Re 54 998– Re 55 018 |
8224 | 3200 | 2 | 3590 | Pl | 1 | 2 | 6540 | 2510 | 16,4 | 13,1 | 10,0 | 7,6 | |||||
| Re 55 019 | <1913 | ||||||||||||||||||||
| Re 55 020 Re 55 027 |
|||||||||||||||||||||
| Blatt-Nr. 313V (ehemals 191) gel. 1875 |
Serie F |
O. | O.d. | O | (siehe Legende) |
Wände abbordbar | |||||||||||||||
| 45 | 16 490– 16 534 |
55 028– 55 072 |
Re 55 028– Re 55 072 |
8224 | 2000 | 2 | 3590 | 2 | 2 | 6940 | 2510 | 17,5 | 14,0 | 10,0 | 5,5 | Bordhöhe 800 mm; | |||||
| 30 | 16 535– 16 564 |
55 073– 55 102 |
Re 55 073– Re 55 088 |
8224 | 3200 | 2 | 3590 | Pl | 1 | 2 | 6540 | 2510 | 16,4 | 13,1 | 10,0 | 7,6 | |||||
| Re 55 089 | <1913 | ||||||||||||||||||||
| Re 55 090 Re 55 102 |
|||||||||||||||||||||
| Blatt-Nr. 313VI (ehemals 191) gel. 1875 |
Serie F |
O. | O.d. | O | (siehe Legende) |
Wände abbordbar | |||||||||||||||
| 45 | 16 565– 16 609 |
55 103– 55 147 |
Re 55 103– Re 55 127 |
8224 | 2000 | 2 | 3590 | 2 | 2 | 6940 | 2510 | 17,5 | 14,0 | 10,0 | 5,5 | Bordhöhe 800 mm; | |||||
| Re 55 128– Re 55 129 |
<1913 | ||||||||||||||||||||
| Re 55 130 Re 55 147 |
|||||||||||||||||||||
| Blatt-Nr. 313VII (ehemals 191) gel. 1877 |
Serie F |
O. | O.d. | O | (siehe Legende) |
Wände abbordbar | |||||||||||||||
| Nöll | 70 | 19 660– 19 737 |
55 148– 55 217 |
Re 55 148– Re 55 177 |
8224 | 2000 | 2 | 3590 | 2 | 2 | 6940 | 2510 | 17,5 | 14,0 | 10,0 | 5,5 | Bordhöhe 800 mm; | ||||
| Re 55 178 | <1913 | ||||||||||||||||||||
| Re 55 179 Re 55 217 |
|||||||||||||||||||||
| 30 | 19 738– 19 767 |
55 218– 55 247 |
Re 55 218– Re 55 231 |
8224 | 3200 | 2 | 3590 | Pl | 1 | 2 | 6540 | 2510 | 16,4 | 13,1 | 10,0 | 7,6 | |||||
| Re 55 232 | <1913 | ||||||||||||||||||||
| Re 55 233 Re 55 247 |
|||||||||||||||||||||
Einzelnachweise
- ↑ Dr. Gerd van Rosen - van Hoewel, Länderbahnforum, 12/2005
Literatur
- Wagenpark-Verzeichnis der Kgl. Bayer. Staatseisenbahnen. Aufgestellt nach dem Stande vom 1. Juli 1879. 1879.
- Wagenpark-Verzeichnis der Kgl. Bayer. Staatseisenbahnen. Aufgestellt nach dem Stande vom 31. März 1897. 1897.
- Wagenpark-Verzeichnis der Kgl. Bayer. Staatseisenbahnen. Aufgestellt nach dem Stande vom 31. März 1913. 1913.
- Gert von Rosen – von Heuwel: offene Güterwagen der bayerischen Ostbahnen (B.O.B.). In: Länderbahnforum. Nr. 11, 2005.
- Gert von Rosen – von Heuwel: Torf- und Kohlewagen der bayerischen Ostbahnen (B.O.B.). In: Länderbahnforum. Nr. 12, 2005.