Holzverbindung
Holzverbindungen werden in vielen verschiedenen Ausführungen im Zimmerer- und Tischler-Handwerk gebraucht und sind mindestens mit je einem Fachbegriff versehen. Es sind zumeist nicht lösbare, teilweise formschlüssige Verbindungen.
Geschichte
Die Technik der Holzverbindung ist wahrscheinlich so alt wie die Werkzeugmacherei des Menschen. Das Einspleißen einer Hartholz-Klinge in einen Schaft war schon eine primitive Holzverbindung. Der Übergang zur Sesshaftigkeit führte zum Bau fester Unterkünfte und zur Entwicklung elementarer Holzverbindungen. Die älteste bisher nachgewiesene Holzverbindung ist datiert auf etwa 5100 v. Chr. (Jungsteinzeit). Sie wurde bei Grabungen in der Nähe von Eythra/Sachsen (seit 2005) an einer hölzernen, aus eichenen Spaltbohlen verkämmten Brunnenfassung gefunden.[1]
Hohe Kunstfertigkeit bewiesen Haushandwerker und Handwerker im Umgang mit Steinäxten und Steinbeilen um 3500 v. Chr. bei der Verbesserung von natürlichen Holzverbindungen, z. B. durch Nacharbeiten von Astgabeln, mehr noch bei den frühen Verbindungen wie Einhalsungen und Zapfen. Mit dem Beginn der Bronzezeit und damit dem Aufkommen von Bronzeäxten und Bronzebeilen machte die Werkzeugentwicklung und damit die Holzverbindungen einen großen Sprung vorwärts. Richtige Sägen aus gezahnten Bronzeblättern, auch schon in Holzbügel gespannt, sind seit 1500 v. Chr. in Ägypten nachgewiesen.
Im 15. Jahrhundert n. Chr. war die Entwicklung vom Eisen zum Stahl soweit vorangeschritten, dass sowohl eine Vielzahl spezialisierter Äxte und Beile hergestellt werden konnten, als auch breite, harte Sägeblätter. Die bis dahin als archaische Typen schon über Jahrtausende bekannten Holzverbindungen wie Zapfen, Blätter, Kämme, Einhalsungen, Klauen und Versätze konnten damit schnell zu einem komplizierten System von Holzverbindungen weiterentwickelt werden.[2]
Grundlagen
In einer klassischen Holzverbindung sind zwei Holzteile formschlüssig zusammengefügt. In die beiden Holzteile wird je eine räumliche Form, die sich als positive und negative Gestalt ergänzen, eingearbeitet. Ein drittes Teil wird nur verwendet, wenn die Trennung der Holzverbindung entgegen der Fügerichtung verhindert werden soll. Im einfachsten Fall ist das ein quer zur Fügerichtung eingebrachter Nagel oder eine Schraube, in der klassischen Holzverbindung ein hölzerner Stift oder hölzerne Keile. Im Tischlergewerbe wird vorwiegend zusätzlich geleimt, das heißt zusätzlich stoffschlüssig verbunden.
In der modernen Massenfertigung wird die aufwändige individuelle Formgebung am Holz mehr und mehr aufgegeben. Die Teile erhalten einfachere Verbindungsflächen und werden mittels standardisierter Zusatzteile verbunden. Außer Nägeln und Schrauben kommen neu entwickelte Teile zur Anwendung. Im Zimmerergewerbe sind das zum Beispiel Metallplatten, die über die Verbindungsstelle genagelt oder Metallschuhe, in die die Balken eingelegt werden. Solche Lösungen werden Verbindungen des Ingenieurholzbaus genannt.[3]
Bei Tischlerarbeiten gilt trotz zusätzlicher Verbindungselemente meistens noch das alte Prinzip, dass die Verbindung unauffällig bleibt. Neu ist ein gegenläufiger Trend, sichtbare Verbindungen und ihre Elemente als gestalterische Bestandteile hervorzuheben.
Holzverbindungen des Tischlers
Im Tischlerhandwerk werden Holzverbindungen am häufigsten im Möbelbau eingesetzt. Bretter werden zu einem Korpus oder zu breiteren Platten verbunden und Leisten zu Rahmen.[4] Einige tischlermäßige Holzverbindungen werden ähnlich bezeichnet und ausgeführt wie zimmermannsmäßigen Holzverbindungen. Zum Beispiel wird das Blatten vom Zimmermann als Verblatten beziehungsweise Überblatten bezeichnet.
Folgende Verbindungen werden am häufigsten verwendet.
- Gratverbindung, Gehrung, Zinken,[5]
- Überblatten, Schlitz/Zapfen, Steg/Keil, Stoßen und andere,[6]
- Nut/Feder/Falz, Schäften.[4]
Zimmermannsmäßige Holzverbindungen
Zimmermannsmäßige Holzverbindung werden die Holzverbindungen genannt, die im traditionellen Holzbau zur Verbindung von Bauholz größerer Querschnitte (größer 8 × 8 cm) verwendet werden. Sie haben sich mit unterschiedlichen Holzbauweisen beispielsweise bei zimmermannsmäßigen Dachkonstruktionen oder dem Fachwerkhaus entwickelt und werden heute noch in klassischer Qualität in der Restaurierung historischer Bauten verwendet, während sie im gewerblichen Holzbau immer mehr durch Verbindungstechniken unter Zuhilfenahme von Verbindungsmitteln aus Metall, Kunststoff oder auch Leimbindern ersetzt werden.
Nach DIN 1052 Abschnitt 15[7] gelten als „Zimmermannsmäßige Verbindungen für Bauteile aus Holz“:
- 15.1 – Versätze,
- 15.2 – Zapfenverbindungen,
- 15.3 – Holznagelverbindungen,
Weitere zimmermannsmäßige Holzverbindungen sind in der nicht mehr gültigen DIN 1052 nicht geregelt. Für den Holzbau gilt seit dem 1. Juli 2012 der Eurocode 5 (EC 5).
In einer Auflistung nach dem Unterscheidungskriterium der Verbindungsart werden zum Beispiel folgende Verbindungen genannt:[2]
- Stoßverbindungen,
- Zapfenverbindungen,
- Blattverbindungen,
- Kammverbindungen,
- Halsverbindungen,
- Versatzverbindungen,
- Klauenverbindungen,
- Verbindungen des Blockbaus,
- Verbindungen des Stabbaus/Breitenverbindungen,
- Reparaturverbindungen.
Unterteilung und Beschreibung der Holzverbindungen des Tischlers
Stoß, Gehrung und Überblattung
In geometrischer Auffassung oder gemäß Aussehen sind die meisten individuellen Holzverbindungen entweder ein Stoß, eine Gehrung oder eine Überblattung.
- Bei einem Stoß erkennt man von außen, dass das Hirnholz eines der beiden in der Regel rechtwinkligen Teile ans Längsholz des anderen stößt. Die Verbindung kann im Einzelnen sehr verschieden gestaltet sein, was von außen meistens nicht erkennbar ist. Ein zusätzliches Verbindungselement kann verwendet sein und versteckt bleiben. An ihren Hirnholzflächen zusammenstoßende Teile sind nicht ausreichend fest miteinander zu verbinden. Die Stirnflächen werden zum Beispiel schräg angeschnitten (geschäftet) und über die dadurch entstehende größere Kontaktflächen miteinander verbunden. Das Herstellen langer Holzteile aus zwei oder mehreren Teilen kommt eher im Zimmerergewerbe vor. Zwei am Längsholz zusammenstoßende Bretter ergeben ein breiteres Brett, dem auch nicht anzusehen ist, wie die Verbindung im Inneren gestaltet ist.
- Eine winklig zusammenstoßende Verbindung ist eine Gehrung, wenn das Längsholz beider Teile bis zur Außenecke reicht. In einer Draufsicht erscheinen beide Teile auf Gehrung geschnitten (zum Beispiel 45° schräg bei einer rechtwinkligen Verbindung). Der Gehrungsschnitt muss nicht durchgehend sein. Ein zusätzliches Verbindungselement kann verwendet sein und versteckt bleiben.
- Bei einer Überblattung sind beide Teile an der Verbindungsstelle auf etwa die Hälfte ihrer Dicke abgearbeitet. Das stehen gebliebene Material beider Teile liegt wie zwei Blätter übereinander. Zwei Teile mit gleicher Ausgangsdicke befinden sich nach der Verbindung in gleicher Ebene. Überblatten wird sowohl bei winkligen (Eck- oder Kreuzüberblattung) als auch bei verlängernden Geradeausverbindungen verwendet. Eine verwandte, aber vorwiegend zimmermannsmäßige Verbindung ist die Kämmung, wobei nur eines der beiden Teile oder jedes Teil in geringem Maße abgearbeitet wird. Hauptzweck ist zu vermeiden, dass zum Beispiel zwei aufeinanderliegende, sich kreuzende Balken gegeneinander verrutschen.
- Stoß, Gehrung und Überblattung
-
Stoß: Leimfläche mit nicht sichtbarem Flachdübel vergrößert,
Verbindung verstärkt -
Gehrung: Leimfläche mit nicht sichtbaren Mikrozinken auch konstruktiv verstärkt -
Überblattung: Die flachen Stoßflächen und -kanten werden verleimt -
Überblattung auf Gehrung
Nut- und Falz-Verbindung
Eine Nut kann gleich breit wie das einzufügende Bauteil sein. Im Vergleich zu einfachem Stoß oder zu einfacher Gehrung sind drei statt nur eine Kontaktfläche vorhanden, wodurch die geklebte Verbindung ohne verstärkendes zusätzliches Befestigungsmittel auskommen kann. Eine schmalere Nut erfordert, dass das einzufügende Bauteil in seiner Dicke abgearbeitet, zum Beispiel ein Spund erstellt wird. Wenn beide Teile genutet sind, erfolgt die Verbindung mittels einer in beide zu steckenden Feder. Nut und Feder brauchen sich nicht über die gesamte Breite oder Länge der Teile erstrecken. Ein gekürzter Spund lässt sich als Zapfen auffassen.
Eine an den Rand verschobene Nut wird zum Falz, der nur zwei statt drei Flächen hat. Eine Falz-Verbindung erfordert neben Kleben in der Regel noch ein zusätzliches Verbindungsmittel
- Nut und Falz
-

-

-
Brettkante mit Falz
Schlitz-Zapfen- und Steg-Keil-Verbindung
Als Schlitz wird bei Holzverbindungen ein Zapfenloch in Form eines rechteckigen Sacklochs bezeichnet. Der Schlitz nimmt den Zapfen auf, der in der Regel verleimt wird. Der Schlitz wird traditionell mit dem Stechbeitel ins Holz gestemmt. Gefräste Zapfenlöcher haben abgerundete Ecken, die mit dem Stechbeitel begradigt werden können, wenn dies gewünscht ist.
Zylindrische Zapfenlöcher lassen sich maschinell durch eine einfache Bohrung herstellen. Der zugehörende Rundzapfen lässt sich auf der Drechselbank fertigen. Alternativ können in beide Fügeteile Zapfenlöcher gebohrt und über einen losen Zapfen bzw. Holzdübel verbunden werden.
Ein dreiseitig offener, rechteckiger Schlitz bildet zusammen mit dem Zapfen eine Bügelzapfen-Eckverbindung[8]
Bei einer Steg-Keil-Verbindung wird das Zapfenloch vollständig durch das Holz hindurchgeführt. Ein längerer Zapfen „(Steg)“ wird durch den Schlitz hindurchgesteckt, bis er am anderen Ende bündig abschließt. Die Stirn des Zapfens wird vor der Montage eingeschnitten. Zum Verspannen des Zapfens werden kleine Keile in den Zapfen getrieben. Durch Entfernen der Keile ist die Steg-Keil-Verbindung später wieder lösbar, wenn sie nicht verleimt wurde.[9] Diese Verbindung wurde früher häufig bei der Fertigung des Türblatts von Kassettentüren eingesetzt. Durch ein tieferes Eintreiben der Keile oder Austauschen gegen stärkere Keile konnte ein hängendes Türblatt wieder in Form gebracht werden.
- Schlitz und Zapfen
-
Loch und Zapfen T-Verbindung -
Bügelzapfen Eck-Verbindung -
Schlitz und Zapfen mit beidseitiger Gehrung
Zinkung und Gratung
Eine Zinkung ist die aufwändigste, aber auch die ansprechendste der traditionellen Holzverbindungen. Da die Summe der geklebten Kontaktflächen groß ist, gehört sie auch zu den festesten Verbindungen. Meist wird sie angewendet zur Eckverbindung von zwei Brettern, deren Hirnholz über die gesamte Brettbreite kammartig ausgeschnitten ist. Jeder Zinken des einen Teils greift in die Lücke des anderen Teils. Anstatt eines durchgehenden Stoßes entsteht ein mit jedem Zinken wechselnder Stoß. Auf beiden Seiten der Eckkante wechseln sich über die Brettbreite Hirn- und Längsholz ab.
Als Fingerzinken bezeichnet man Zinken mit geraden Flächen. Jedes der beiden Bretter kann von der Ecke weggezogen werden (solange die Verbindung noch nicht geklebt ist). Schwalbenschwanzzinken haben Hinterschnitt. Man kann die mit ihnen versehenen Bretter nicht von der Ecke wegziehen, in dieser Richtung besteht Formschluss. Senkrecht zum Brett ist die Bewegung frei (zum Fügen unumgänglich). Da die Klebung mit modernen Klebstoffen stabiler als das Holz selbst ist, widerstehen geklebte gerade Fingerzinken größeren Belastungen als Schwalbenschwanzzinken, da die Schwachstelle der schmalen Seite der Schwalbenschwanzzinken nicht vorhanden ist.
Zinkungen werden auch halb- oder sogar ganz verdeckt hergestellt. Vorwiegend trifft das für Schwalbenschwanzzinkungen zu. Die Lücken zwischen den Zinken sind dann keine durchgehenden Schlitze mehr wie bei offenen Zinkungen. Bei ganzer Verdeckung ist aber noch ein schmaler Streifen Hirnholz eines der beiden Bretter zu sehen. Nur bei der verdeckten Zinkung mit Gehrung ist kein Hirnholz zu sehen.
Eine Gratung hat nur einen Schwalbenschwanzzinken und am Gegenstück nur eine Nut, die Gratnut. Der Hinterschnitt ist in der Regel kleiner gehalten als bei der üblichen Schwalbenschwanzzinkung mit mehreren Zinken. Die Gratung lässt sich auch als Spundung mit nicht parallelen Spundwänden auffassen. Sie ist aber formschlüssig und muss in Längsrichtung der Gratnut gefügt werden. Die Gratnut hat in ihrem Boden gleiche Breite wie die Dicke des gegrateten Bretts.
- Finger- und Schwalbenschwanzzinkung und Gratung
-
Offene Fingerzinkung -
Halbverdeckte Schwalbenschwanzzinkung -
Verdeckte Schwalbenschwanzzinkung mit Gehrung -
Gratung
Unterteilung und Beschreibung der zimmermannsmäßigen Holzverbindungen
Die zimmermannsmäßigen Holzverbindungen lassen sich nach verschiedenen Kriterien ordnen. Nachfolgend eine Auflistung sortiert nach dem Kriterium der Verbindungsart. Als weiteres Unter-Kriterium wurde die Verbindungsform gewählt; Längs-, Eck-, Quer- oder Kreuzverbindung.[2]
Stoßverbindungen
Neben den Verbindungen tragender und getragener Hölzer, also allen Auflagerverbindungen, waren die Stöße – das Verlängern von Hölzern in einer Richtung oder übereck – die mit am frühesten benötigten Verbindungsformen. Solche Stöße sind liegend, in allen Schrägen oder stehend notwendig. Eine grobe Einteilung über Definitionen können für liegende Hölzer der Begriff Anschuhen und für stehende Hölzer das Anschäften sein, wobei durch regionale Unterschiede bedingt, diese beiden Begriffe auch gelegentlich umgekehrt oder austauschbar verwendet werden.[2]
Längsstöße
- Stumpfer Stoß / Gerader Stoß
- Schräger Stoß
- versetzter Stumpfer Stoß / versetzter Gerader Stoß
- versetzter Schräger Stoß / Halbstoß
- Französisches Schräges Blatt / gebrochener Halber Stoß
- (stumpfer) Stoß mit Schwalbenschwanzeinlage auf ganzer Höhe
- (stumpfer) Stoß mit Schwalbenschwanzeinlage auf halber Höhe
Längsstöße mit Mittelstück
- Gerade eingeschnittener Stoß mit eingesetztem Mittelstück
- Schräg eingeschnittener Stoß mit eingesetztem Mittelstück
- Gerade eingeschnittener Stoß mit eingesetztem Haken
- Gerade eingeschnittener Stoß mit eingesetztem Haken und Keilen
- Schräg eingeschnittener Stoß mit eingesetztem Haken
- Schräg eingeschnittener Stoß mit eingesetztem Haken und Keilen
- Gerade eingeschnittener Stoß mit eingesetztem doppeltem Haken
- Gerade eingeschnittener Stoß mit eingesetztem doppeltem Haken und Keilen
- Schräg eingeschnittener Stoß mit eingesetztem doppeltem Haken
- Schräg eingeschnittener Stoß mit eingesetztem doppeltem Haken und Keilen
- Einsatzschloß mit Sicherung
Zapfenstöße
- Zapfenstoß
- Französisches Schräges Blatt mit Zapfen
- Schwalbenschwanzzapfen
Schäftungen
- Stumpfer Stoß mit Dollen und Bauklammern
- Stumpfer Stoß mit Stahlring
- Kreuzstoß mit Stahlbändern
- doppelte Schäftung
Stöße über Eck
- Gehrungsstoß
Stöße quer
- Stoß mit eingelassenen Holzlaschen
Zapfenverbindungen

Zapfenverbindungen gehören mit den Blättern nicht nur zu den ältesten Verbindungen, sondern auch zu den weitest verbreiteten und variierten Holzverbindungsarten. Um die exakten Entwicklungsstufen des Zapfens nachzuvollziehen, fehlen ausreichend frühe und datierte oder datierbare Belegstücke. Fest steht jedenfalls, dass spätestens 3000 v. Chr. Holzverbindungen in Form von „Einsatzlöchern“ (d. h. in voller Stärke in das zu verbindende Holz einbindende Holzenden), als gewöhnliche Zapfen, aber auch quadratische, also zweiseitig abgesteckte Zapfen ausgeführt wurden.[2]
Zapfenstöße
- Zapfenstoß
- Französisches Schräges Blatt mit Zapfen / einseitig schräg eingeschnittener Scherzapfen
- Französisches Schräges Blatt mit Zapfen / Französisches Schrägblatt mit Scherzapfen
- Französisches Schräges Blatt mit Zapfen / Schräges Blatt mit Brüstungszapfen
- Schwalbenschwanzzapfen / durchgehender Schwalbenschwanzzapfen
Scherzapfen, längs
- Scherzapfen / Scherblatt / Zapfenstoß / Nutzapfen
- einseitig schräg eingeschnittener Scherzapfen / Schlitzzapfen mit hinterschnittener Brüstung
- einseitig schräg eingeschnittener Scherzapfen / einseitig schräg abgesetzter Scherzapfen
- einseitig schräg eingeschnittener Scherzapfen / einseitig schräg abgesetzter Schlitzzapfen
- beidseitig schräg eingeschnittener Scherzapfen / beidseitig schräg eingeschnittenes Scherblatt
- beidseitig schräg eingeschnittener Scherzapfen / Schlitzzapfen mit hinterschnittener Brüstung
- beidseitig schräg eingeschnittener Scherzapfen / beidseitig schräg abgesetzter Scherzapfen
- beidseitig schräg eingeschnittener Scherzapfen / beidseitig schräg abgesetzter Schlitzzapfen
- Scherzapfen mit Grat / Scherblatt mit Grat
- Scherzapfen mit Grat / Führungszapfenstoß
- Scherzapfen mit Grat / schräg eingesetzter Scherzapfen mit Grat auf dem Stoß
- Scherzapfen mit Grat / schräg eingesetzter Schlitzzapfen mit Grat auf dem Stoß
Zapfenblätter
- Zapfenblatt / einfaches Zapfenblatt
- Zapfenblatt / zapfenförmiges Blatt mit Brüstung
- Zapfenblatt / Zapfenblattstoß
- Zapfenblatt / Gerader Zapfenstoß mit einfachem Blatt
- Zapfenblatt / Stufenblatt
- einseitig schräg eingeschnittenes Zapfenblatt / einseitig schräg eingeschnittenes zapfenförmiges Blatt mit Brüstung
- beidseitig schräg eingeschnittenes Zapfenblatt / beidseitig schräg eingeschnittenes zapfenförmiges Blatt mit Brüstung
- Schwalbenschwanzzapfenblatt / schwalbenschwanzförmiges Blatt mit Brüstung
- Schwalbenschwanzzapfenblatt / Schwalbenschwanz mit Blatt
- Schwalbenschwanzzapfenblatt / Schwalbenschwanzblattstoß
- einseitig schräg eingeschnittenes Schwalbenschwanzzapfenblatt
- doppeltes Zapfenblatt
- Gerades Blatt mit Doppelzapfen
- schräg eingeschnittenes Blatt Gerades Blatt mit Doppelzapfen
- Gerades Blatt mit doppeltem Schwalbenschwanzzapfen
- schräg eingeschnittenes Gerades Blatt mit doppeltem Schwalbenschwanzzapfen
Scherzapfen, übereck

- Scherzapfen
- verdeckter Scherzapfen
- einseitiger Gehrungszapfen
- Gehrungszapfen
- verdeckter Gehrungszapfen
Schwalbenschwanzeckzapfen
- durchgehender Schwalbenschwanzeckzapfen
- halb eingezapfter Schwalbenschwanzeckzapfen
Gerade Zapfen
- Gerader Zapfen / einfacher Gerader Zapfen
- durchgehender Gerader Zapfen
- keilförmig eingetriebener Zapfen
- Kreuzzapfen
- Doppelzapfen
Abgesteckte- oder Abgesetzte Zapfen

- einseitig abgesteckter Zapfen / geächselter Zapfen / Achselzapfen / zurückgesetzter Zapfen
- zweiseitig abgesteckter Zapfen / zweiseitig geächselter Zapfen
- versetzter einseitig abgesteckter Zapfen
- Türständerzapfen
Brustzapfen
- gerader Brustzapfen / Versatzung
- gerader Brustzapfen / Gerader Zapfen mit Brustverstärkung
- gerader Brustzapfen / einfacher gerader Brustzapfen
- schräger Brustzapfen / schräge Versatzung
-
Zapfenverstärkung: Brustzapfen mit gerader Brust -
Zapfenverstärkung: Brustzapfen mit schräger Brust
Zapfen mit Keilen oder Holznagel
- durchgehender Gerader Zapfen mit Keilen
- Gerader Zapfen mit Keilen
- halber Schwalbenschwanzzapfen mit Doppelkeil / Weichschwanzzapfen mit Doppelkeil
- Zapfenschloß / durchgesteckter Zapfen mit Holznagel
- Zapfenschloß / Durchsteckzapfen
- Zapfenschloß / mit Splinten gesicherter Zapfen
- zweifaches Zapfenschloß
-
Zapfenschloß: von Innen durchgesteckter Zapfen mit zwei Holznägeln gesichert -
Zapfenschloß: durchgesteckter Zapfen mit Keil
Blattzapfen
- bündiger einfacher Blattzapfen
- nicht bündiger einfache Blattzapfen
- doppelter Blattzapfen
Schräge Zapfen
Ein Jagdzapfen bezeichnet einen schrägen Zapfen an einem später eingebautem Kopfband in eine Holzkonstruktion. Im Gegensatz zum normalen schrägen Zapfen ist die rechtwinklige Abstirnung zum Kopfband und nicht zum Zapfen. Passend dazu ist das Zapfenloch ausgearbeitet. So entsteht nach dem Eintreiben des Kopfbandes eine kraftschlüssige Verbindung mit Zapfenloch und Zapfenstirn. Ein Kopfband mit Jagdzapfen wird auch als Jagdband bezeichnet.[13]
- schräger Zapfen
- Jagdzapfen
-
Schräger Zapfen an einem Kopfband (Bug) -
Jagdzapfen an einem Kopfband (Jagdband)[13]
Zapfen mit Versatz
- Fensterriegelzapfen
- Stirnversatz mit Zapfen
- einseitig verdeckter Stirnversatz mit Zapfen
- doppelter Stirnversatz mit halbem Zapfen
- doppelter Stirnversatz mit Zapfen
- Fersenversatz mit Zapfen
- einseitig verdeckter Fersenversatz mit Zapfen
- Stirn- und Fersenversatz mit Zapfen
- Versatz mit Zapfen im durchgehenden Holz
-
Schrägverbindung: Winkelhalbierender Stirnversatz mit Zapfen[14] -
Zapfenverbindung: Brüstungsriegel mit Zapfen und Versatz (Fensterriegelzapfen)
Zapfen, über Kreuz
- Seitenzapfen
Blattverbindungen
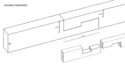
Eine Längsverbindung wird auch als Stoß bezeichnet und kann eine Überblattung, eine Zapfung (siehe tischlermäßige Holzverbindungen), eine Hakenblattung oder ein Pfettenstoß über Pfosten sein.[15]
Das Unterblatt bezeichnet dabei den unteren Teil einer Blattverbindung, also diejenige Fläche oder Aussparung, die am unteren der beiden verbundenen Hölzer liegt. Die Form und Tiefe des Unterblatts bestimmen maßgeblich die Tragfähigkeit und die Passgenauigkeit der Verbindung. Es wird meist zuerst hergestellt und dient als Auflager für das Oberblatt als oberen Teil einer Blattverbindung. Es wird passend eingearbeitet und greift formschlüssig in das Unterblatt ein. Die präzise Ausführung des Oberblatts ist entscheidend für die Stabilität und die gleichmäßige Kraftübertragung innerhalb der Verbindung.
Eine Hakenblattung kann gerade wie eine Standard-Überblattung oder schräg wie eine Schäftung (siehe tischlermäßige Holzverbindungen) sein. Der Pfettenstoß über Pfosten heißt auch Gerades Blatt mit Schwalbenschwanz. Bei ihm ist der Haken einer schrägen Hakenblattung weggelassen. Beide Verbindungen übertragen kein Biegemoment, weshalb sie sich über einer Stütze (Pfosten) oder nahe bei ihr befinden müssen.
- Zimmermannsmäßige Längsverbindungen
-
Längsverbindungen für flach liegende Kanthölzer und Balken -
Gerades Blatt: zwei restaurierte Pfettenstöße über Pfosten mit Loch und Zapfen und Bohrung für Holznagel -
Überblattung mit zusätzlichem Schwalbenschwanz-Zapfen (Verbindung noch nicht zusammengefügt) -
Schräges Blatt: Pfettenverbindung, die bei Verwendung an Gerbergelenkträger[16] auch als Gerberstoß bezeichnet und mit einem Bolzen und Ringdübel untergehängt wird[17] -
Schräges Blatt, auch als Gerberstoß bezeichnet, wenn durchlaufende Gerberträger verbunden werden -
Schräges Hakenblatt: Zugfest in Längsrichtung -
Schräge Hakenblattung mit Unterblatt und Oberblatt -
Gerades Hakenblatt: Zugfest in Längsrichtung
Die zimmermannsmäßigen Eckverbindungen ähneln den entsprechenden tischlermäßige Holzverbindungen. Eine Besonderheit ist die schräge (französische) Überblattung.[18]
- Zimmermannsmäßige Eckverbindungen
-
Geschlitzte Eckverbindung (Scherblatt), auch Scherzapfen genannt, eine traditionelle Firstknotenverbindung von Sparren- und Kehlbalkendächern -
Schräge (französische) Überblattung -
Doppelt schräge (französische) Überblattung, auch Eckdruckblatt genannt[19]
- Zimmermannsmäßige Quer- und Schrägverbindungen
-
Schwalbenschwanzförmige Verblattung, Hölzer bündig zusammengefügt; bei schrägem Anschluss (etwa zwischen Kehlbalken und Sparren) und einseitigem Schwalbenschwanz auch als Weißschwanzblatt bezeichnet[20] -
Einseitige schwalbenschwanzförmige Verblattung mit Holznagel gesichert, Kopfband (Stebe)
-
Fußbänder an einem Arbeitsbock von Zimmerleuten mit Loch und abgestirnten Zapfen angeschlossen. Durchgesteckter Riegelzapfen mit Keil am Pfosten.
Kammverbindungen
Verkämmungen sind Querverbindungen, bei denen die Konstruktionshölzer nicht in einer Ebene liegen (z. B. Verkämmung mit Rähm, Deckenbalken und Schwelle übereinander im Fachwerkbau oder Verkämmung mit Pfosten und Doppeltzange bei Kehlgebinden). Verkämmungen verbinden die Konstruktion ohne Verbindungsmittel und geben ihr eine bessere Steifigkeit.[21] Bei tischlermäßigen Verbindungen liegen sie auch in ein und derselben Ebene (Abbildung 3).
- Zimmermannsmäßige und Tischlermäßige Verkämmungen
-
Verschiedene Aufkämmungen (Verkämmungen) im Fachwerkbau[21] -
Kreuzkamm: Kreuzförmig ausgeschnittene Kämmung, die Hölzer greifen zur Hälfte ineinander. -
Einseitig gerader Kamm: Hölzer bündig zusammengefügt.
Überkämmte Verbindung
Von einer überkämmten Verbindung spricht man im Blockbau, wenn die Enden der Hölzer nicht bündig eingekürzt werden, sondern auskragen.[22]
Verkämmte Verbindung
Anders als bei der überkämmten Verbindung werden bei der verkämmten Verbindung die Enden der Hölzer eingekürzt und schließen so bündig ab.[22]

Halsverbindungen
Zimmermannsmäßige Halsverbindungen sind Querverbindungen in einer T-form. Eine historische Halsverbindung besteht aus einem Pfosten (Stütze) mit großem Querschnitt, der am oberen Ende in einer U-förmigen Ausarbeitung[24] einen Unterzug aufnimmt, der die Deckenbalken trägt.[25] Heute wird meist beidseitig eine Lasche oder ein Lochblech angenagelt.
Versatzverbindungen
Alle (auf Druck belasteten) Schrägverbindungen werden traditionell ausschließlich in diversen Varianten der Versatzung ausgeführt, die eine typische zimmermannsmäßige Holzverbindung ist.[26] Die wichtigste Verwendung findet die Versatzung bei Streben z. B. im historischen Fachwerk und bei Sparren im traditionellen Sparrendach. Die Sparren sind auf horizontal liegende Dachbalken aufgesetzt. Die verbindende Versatzung ist so gestaltet, dass neben der Auflagekraft auch die parallel zum Dachbalken nach außen wirkende Schubkraft vom Dachbalken aufgenommen wird.
Die wichtigsten Versatzarten sind:
- Stirnversatz
- Brustversatz
- Fersenversatz (Rückversatz)
- Vorteil ist die automatisch größere Vorholzlänge, also ein größerer Abstand des Einschnitts von der Stirn des Dachbalkens.
- Doppelter Versatz (Stirn-Fersenversatz)
Die Versatzung nimmt ausschließlich die Normalkräfte (hier: Druckkräfte) des Sparrendachs auf. Gegen Abheben und Verschieben (seitlich und nach innen) ist diese Verbindung zu sichern (Heftbolzen, Stift, Nagel, Schraube).
Versatzungen können einseitig oder beidseitig verdeckt sein, indem die Verbindungen nicht bis an die Kante des Holzes, in das versatzt wird, reicht.
- Versatz-Arten
-

-

-

-
![[27]](./Doppelversatz.svg.png)
Klauenverbindungen
Verwandte oder auch synonym zu Versatzung gebrauchte Begriffe sind Klauung oder Kervung. Eine klauenähnliche Form entsteht an der Stirnseite eines Balkens der auf die Kante eines anderen stößt. Nach einem dreieckigen Einschnitt bleiben am Rand der Stirn zwei „Klauen“ stehen, die die Kante des Gegenbalkens umfassen.[28]
- Zimmermannsmäßige Klauenverbindungen
-
Einfache Klauenverbindung[29] -
Gratklauenverbindung, Klaue mit unterstützender Funktion[30] -
Kehlklauenverbindung[30] -
Klauenverbindung als Eckverbindung[29] -
Klauenverbindung Sparren-Pfette[31]
Verbindungen des Blockbaus
Blockwände aus Rund- und Kanthölzern
- Zimmermannsmäßige Blockverblattungen und -Verzapfungen
-
Gezapfte Eckverbindung, Teile beidseits der Ecke in Höhe gegeneinander versetzt -
Gerade Überblattung, Teile beidseits der Ecke in Höhe gegeneinander versetzt
- Zimmermannsmäßige Blockverkämmungen und -Verzinkungen
-
Eckverkämmung bei Blockwänden mit Rundhölzern[32]
-
Verkämmungen, verdeckter Schwalbenschwanzförmiger Endkamm, Hölzer beidseits der Ecke in Höhe gegeneinander versetzt. -
Verzinkung im Schwalbenschwanz-verband mit Eckdruckblätter

Verbindungen des Stabbaus/Breitenverbindungen
Die Spundung ist mit der Verbindung mittels zweier Nuten und einer Feder verwandt. Die Feder wird jedoch nicht als separates Element eingelegt, sondern wird aus dem gespundeten Brett auf der Fräse einseitig herausgearbeitet. Auf der Gegenseite befindet sich eine Nut.
- Gerader Spund
- Trapezspund
Reparaturverbindungen
Wenn beschädigte Balkenstücke in einem Fachwerk ersetzt werden müssen, so werden die neu eingesetzten Stücke meist mit einer Stoßverbindung an den verbleibenden Balken angeschlossen. Um Ungenauigkeiten auszugleichen, werden die Verbindungsflächen häufig mit einem aufschäumenden PU-Holzleim bestrichen, der die Festigkeit der Verbindung erhöht und zugleich Spalten auffüllt, so dass der Eintritt von flüssigem Wasser in die Verbindungsstelle vermindert wird.
Holzverbindung mit zusätzlichem Verbindungsteil
Die klassischen Holzverbindungen sind soweit formschlüssig, dass sie die Betriebskräfte übertragen. In den normalerweise kraftfreien Richtungen werden sie häufig gegen zufällige Relativbewegungen gesichert. Bei zimmermannsmäßigen Verbindungen geschieht das meist durch ein drittes Verbindungsteil während tischlermässige Verbindungen zu diesem Zweck üblicherweise verleimt werden.
Holznagel
Holznägel werden zum Beispiel verwendet, um zu verhindern, dass sich Holzverbindungen wie Loch und Zapfen, Kamm- oder Blattverbindungen auch ohne Verleimung lösen können. Ein Holznagel besteht aus einem langen, oft vierkantigen, am Ende zugespitzten Schaft und kann einen verdickt ausgebildeten Kopf besitzen. Die häufigste Holzart bei Holznägeln ist Eiche. Die kraftschlüssige Verbindung des Holznagels wird durch das Verkeilen der Schaftkanten in dem kleiner gebohrten Loch des Gegenholzes hergestellt.[33]
Holznägel haben heute üblicherweise einen Durchmesser von etwa zwei Zentimetern, laufen etwas konisch zu und sind etwas länger als die Stärke des Balkens, den sie sichern sollen. In einfachen Konstruktionen bleiben Holznägel überstehend sichtbar, zum Beispiel in Dachwerken. In Sichtfachwerkfassaden werden Holznagelköpfe oft bündig abgeschnitten. Dagegen besteht in Süddeutschland eine handwerkliche Tradition, dass die Köpfe der Holznägel einige Zentimeter weit gleichmäßig vorstehend bleiben, was insbesondere bei Mehrfachnagelungen zu einer ornamental schattenwerfenden Fassadengestaltung führt.
Eine bautechnikgeschichtliche Besonderheit sind die Holznagel-, Holzdübelverbindungen in historischen Bohlendächern des frühen 19. Jahrhunderts, bei denen der kraftschlüssige Verbund der Bohlenlagen durch runde Holznägel mit Gegenkeilen zusätzlich gesichert wurde.[34][35]
- Holzverbindung mit Holznagel
-
Ca. 400 Jahre alter Holznagel aus Fichtenholz -
Sechs Holzverbindungen mit Holznägeln, vier Blattverbindungen und zwei Zapfenverbindungen -
Gestalterisch betonte Holznägelköpfe in einem Fachwerkgebäude von 1478 (Kloster Blaubeuren) -
Vorstehende Holznagelköpfe bei einem Fachwerkhaus in Esslingen am Neckar. -
Wasserrad: Krümmlinge durch zwei Schetterbretter (Laschen) und Holznägel verbunden. -
Prinzip der Holzverbindung aus Holznagel und Gegenteil bei historischen Bohlendächern
Metallnagel, -bolzen oder -schraube
Nägel, Bolzen oder Schrauben aus Stahl ersetzen heute weitgehend den Holznagel.
Im Zimmereigewerbe können die meisten klassischen Holzverbindungen heute vollständig durch die Verwendung von genagelten, geschraubten, verbolzten oder mit Krallen versehenen und eingepreßten Stahlblechen (Nagelplatten) ersetzt werden.
Im einfachsten Falle werden gelochte Bleche von außen auf die Verbindungsstelle genagelt. Um die Metallverbindung weniger sichtbar werden zu lassen, werden auch Bleche in Schlitze in die Balken geschoben und von außen mit Drahtstiften oder Sondernägeln durch die Bleche vernagelt.
Solche Lösungen werden Verbindungen des Holzingenieurbaus genannt.[36] Sie sind keine Holzverbindungen im klassischen Sinn.
-
Nagelplattenbinder -
Untersicht einer Leimträgerbrücke über eine Küstenstraße. Speziell angefertigte, verzinkte Stahlschuhe verbinden mit je drei Bolzen die Quer- mit den Längsträger. -
Geländerverbindung mit Edelstahlholzschrauben -
Winkelverbinder verzinkt mit Winkelbeschlagschrauben -
Sparrenpfettenanker verbindet Sparren mit Rähm
Dübel und Feder
Dübel und Feder kommen überwiegend im Tischlergewerbe vor. Sie sind primär an der Holzverbindung beteiligt, weil die beiden zu verbindenden Hauptteile meistens nur aneinander stoßen, ohne selbst eine formschlüssige Verbindung miteinander einzugehen. Im Vergleich zu klassischen Holzverbindungen ist die Stabilität der Verbindungen mit einzelnen Dübeln oder Federn gering. Dieser Nachteil kann durch die Aneinanderreihung von mehreren Dübeln oder Federn jedoch meist ausgeglichen werden. Von Vorteil sind die geringen Herstellkosten auf automatisierten Maschinen.
Dübel

Dübel sind Stücke von Rundhölzern meist aus Buche oder Esche, aber auch Kunststoff, von unterschiedlicher Länge und Durchmesser. Sie werden in Bohrungen mit entsprechendem Durchmesser (im Allgemeinen) eingeleimt. Am meisten verwendet wird der glatte oder der geriffelte Dübel. Eine moderne Form ist der Winkeldübel.[37]
Flachdübel

Als Flachdübel oder Formfeder wird ein kleines Stück einer Feder bezeichnet, ähnlich der älteren Nut-Feder-Verbindung. Die Verbindung damit besteht nur an einigen Stellen, während die Nut-Feder-Verbindung durchgehend ist. Die zugehörige Nut wird mit einer Flachdübelfräse eingefräst.
Nut und Feder
Zwei Nuten und eine Feder bilden die klassische Verbindung mit zusätzlichem Verbindungsteil an den Längsseiten von Brettern.
- Holzverbindung mit zusätzlichem Dübel oder zusätzlicher Feder
-
Holzdübel und Winkeldübel -
Holzdübel und Winkeldübel -
Flachdübel (Formfeder) -
Zwei Nuten und eine Feder
In Japan: Sashimono

Das japanische Sashimono (bzw. Edo Sashimono)[38] bezeichnet traditionelle konstruktive, sehr haltbare, teils recht aufwändige und grazil bis kunstvoll handwerklich hergestellte, auch „unsichtbare“ passgenaue Verbindungen von Holzbauteilen ohne Zuhilfenahme weiterer Hilfsmittel wie Leim oder Metall-Beschläge; es wird von der japanischen Regierung als traditionelles japanisches Handwerk bezeichnet. Der Begriff leitet sich von der traditionellen Praxis ab, ein Holzlineal namens Monosash zu verwenden, um Holzmaterialien sorgfältig zu messen.[39]
Siehe auch
- Beschlag – Verbindungs- und Sicherungselemente für Holzverbindungen, die nicht allein aus Holz gefertigt sind
Literatur
- Tage Frid: Holzverbindungen (= Ravensburger Holzwerkstatt, Band 2). Übersetzt und bearbeitet von Sabine Sarre. Otto Maier, Ravensburg 1987, ISBN 3-473-42558-3.
- Manfred Gerner: Handwerkliche Holzverbindungen der Zimmerer. Deutsche Verlagsanstalt, Stuttgart 1992, ISBN 3-421-03027-8.
- Heinz Hömmerich: Holzarchitektur. Traditionelle und neuzeitliche Holzverbindungen. Rudolf Müller Verlag, Köln 1988, ISBN 3-481-13941-1.
- Theodor Krauth, Franz Sales Meyer: Die Bau- und Kunstzimmerei mit besonderer Berücksichtigung der äußeren Form. E. A. Seemann, Leipzig 1893. (Erster Band: Text, S. 79 ff. Kapitel IV: Die Holzverbindungen für sich betrachtet; Digitalisat).
Theodor Krauth, Franz Sales Meyer: Das Zimmermannsbuch 1895. Th. Schäfer, Hannover 1981, ISBN 3-88746-004-9 (Nachdruck). - Hans-Jürgen Schneider (Hrsg.): Bautabellen für Ingenieure. Werner Verlag
- Otto W. Wetzell (Hrsg.): Wendehorst – Bautechnische Zahlentafeln. Beuth Verlag, Berlin
Weblinks
- schreiner-seiten.de: Holzverbindungen
- Youtube.com, Dorian Bracht: Video-Serie Joint Ventur
Einzelnachweise
- ↑ Steinzeit jenseits der Steine. In: Spektrum der Wissenschaft. März 2010, Archäologie, S. 62 ff., Zitat S. 64 (dendrochronologisch auf Winterhalbjahr 5098/97 v. Chr. datiert).
- ↑ a b c d e Manfred Gerner: Handwerkliche Holzverbindungen der Zimmerer. Deutsche Verlags-Anstalt, Stuttgart 1992, S. 11 ff.
- ↑ Fachwissen Bau Zimmerer. Handwerk und Technik, Hamburg 1995, ISBN 3-582-03506-9, S. 93–99.
- ↑ a b Gary Rogowski: Holzverbindungen – auswählen, konstruieren, bauen. Vincentz Network, Hannover 2011, ISBN 978-3-86630-951-7.
- ↑ Holzverbindungen auf holz-technik.de
- ↑ Verbindungen auf schreiner-seiten.de.
- ↑ DIN 1052:2008-12, Abschnitt 15.
- ↑ Gary Rogowski: Holzverbindungen – auswählen, konstruieren, bauen. Vincentz Network, Hannover 2011, ISBN 978-3-86630-951-7, S. 226.
- ↑ Abbildung siehe zum Beispiel auf www.schreiner-seiten.de.
- ↑ Thomas Eißing, Benno Furrer, Stefan King, Ulrich Knapp, Anja Krämer, Burghard Lohrum, Tilmann Marstaller, Claudia Mohn, Heinz Pantli, Daniel Reicke: Vorindustrieller Holzbau in Südwestdeutschland und der deutschsprachigen Schweiz. Terminologie und Systematik. (= Südwestdeutsche Beiträge zur historischen Bauforschung, Sonderband). Eßlingen 2012, ISBN 978-3-942227-11-7 (Digitalisat auf journals.ub.uni-heidelberg.de, abgerufen am 4. Oktober 2024), Seite 44, Abb.: Fußzonige Verzapfung.
- ↑ Die Konstruktionen in Holz 1900. Th. Schäfer, Hannover 1994, ISBN 3-88746-019-7, S. 28.
- ↑ Thomas Eißing, Benno Furrer, Stefan King, Ulrich Knapp, Anja Krämer, Burghard Lohrum, Tilmann Marstaller, Claudia Mohn, Heinz Pantli, Daniel Reicke: Vorindustrieller Holzbau in Südwestdeutschland und der deutschsprachigen Schweiz. Terminologie und Systematik. (= Südwestdeutsche Beiträge zur historischen Bauforschung, Sonderband). Eßlingen 2012, ISBN 978-3-942227-11-7 (Digitalisat auf journals.ub.uni-heidelberg.de, abgerufen am 4. Oktober 2024), Seite 45, Abb.: Fußzonig einseitig abgesetzte Verzapfung.
- ↑ a b Jagdzapfen, Jagdband. In: Lueger, Otto: Lexikon der gesamten Technik und ihrer Hilfswissenschaften, Bd. 5 Stuttgart, Leipzig 1907., S. 223. [1].
- ↑ Thomas Eißing, Benno Furrer, Stefan King, Ulrich Knapp, Anja Krämer, Burghard Lohrum, Tilmann Marstaller, Claudia Mohn, Heinz Pantli, Daniel Reicke: Vorindustrieller Holzbau in Südwestdeutschland und der deutschsprachigen Schweiz. Terminologie und Systematik. (= Südwestdeutsche Beiträge zur historischen Bauforschung, Sonderband). Eßlingen 2012, ISBN 978-3-942227-11-7 (Digitalisat auf journals.ub.uni-heidelberg.de, abgerufen am 4. Oktober 2024), Seite 35, Abb. 45 (unten): Anschlussholz.
- ↑ Fachwissen Bau Zimmerer. Handwerk und Technik, Hamburg 1995, ISBN 3-582-03506-9, S. 87.
- ↑ Gelenkträger (Gerberträger). In: Schneider Bautabellen. 8. Auflage. 1988 Werner-Verlag, ISBN 3-8041-3399-1, S. 4.4.
- ↑ Fritz Kress: DER ZIMMERERPOLIER. Bruderverlag Karlsruhe, 1991, ISBN 3-87104-085-1, S. 108.
- ↑ Fachwissen Bau Zimmerer. Handwerk und Technik, Hamburg 1995, ISBN 3-582-03506-9, S. 89.
- ↑ Thomas Eißing, Benno Furrer, Stefan King, Ulrich Knapp, Anja Krämer, Burghard Lohrum, Tilmann Marstaller, Claudia Mohn, Heinz Pantli, Daniel Reicke: Vorindustrieller Holzbau in Südwestdeutschland und der deutschsprachigen Schweiz. Terminologie und Systematik. (= Südwestdeutsche Beiträge zur historischen Bauforschung, Sonderband). Eßlingen 2012, ISBN 978-3-942227-11-7 (Digitalisat auf journals.ub.uni-heidelberg.de, abgerufen am 4. Oktober 2024), Seite 51, schräge Druckblattung.
- ↑ Stefan Holzer: Statische Beurteilung historischer Tragwerke: Band 2 – Holzkonstruktionen, S. 133, John Wiley & Sons, 26. Mai 2015
- ↑ a b Fachwissen Bau Zimmerer. Handwerk und Technik, Hamburg 1995, ISBN 3-582-03506-9, S. 93.
- ↑ a b Zimmermannstechniken auf burgenseite.com, abgerufen am 23. August 2019
- ↑ Thomas Eißing, Benno Furrer, Christian Kayser, Stefan King, Ulrich Klein, Ulrich Knapp, Burghard Lohrum, Tilmann Marstaller, Claudia Mohn, Heinz Pantli, Hans-Hermann Reck, Daniel Reicke: Vorindustrieller Holzbau. Terminologie und Systematik für Südwestdeutschland und die deutschsprachige Schweiz (= Südwestdeutsche Beiträge zur historischen Bauforschung, Sonderband.) 2., überarbeitete Auflage. Universität Heidelberg / Universitätsbibliothek, Heidelberg 2023, ISBN 978-3-96929-223-5 (Digitalisat auf journals.ub.uni-heidelberg.de, abgerufen am 20. Juli 2024), S. 90 (mit Abbildung), S. 93. – Die Konstruktion der sogenannten Gabelaufblattung wird ohne Fachbegriff auch andernorts beschrieben („mit zwei seitlichen Blättern“) und abgebildet, etwa bei Theodor Böhm: Handbuch der Holzkonstruktionen des Zimmermanns mit besonderer Berücksichtigung des Hochbaues. Julius Springer, Berlin 1911, S. 141 f.
- ↑ Thomas Eißing, Benno Furrer, Stefan King, Ulrich Knapp, Anja Krämer, Burghard Lohrum, Tilmann Marstaller, Claudia Mohn, Heinz Pantli, Daniel Reicke: Vorindustrieller Holzbau in Südwestdeutschland und der deutschsprachigen Schweiz. Terminologie und Systematik. (= Südwestdeutsche Beiträge zur historischen Bauforschung, Sonderband). Eßlingen 2012, ISBN 978-3-942227-11-7 (Digitalisat auf journals.ub.uni-heidelberg.de, abgerufen am 30. Juli 2024), S. 43, 85 (mit Abbildung).
- ↑ Halsverbindungen. In: materialarchiv.ch. Abgerufen am 24. Juli 2024.
- ↑ Fachwissen Bau Zimmerer. Handwerk und Technik, Hamburg 1995, ISBN 3-582-03506-9, S. 90–91.
- ↑ a b Holzverbindungen. In: Schneider Bautabellen. 8. Auflage. 1988 Werner-Verlag, ISBN 3-8041-3399-1, S. 9.31.
- ↑ Alois Peyer: Architektur für die Tropen, Holz als Material, 1.3.5. Verklauungen.
- ↑ a b Thomas Eißing, Benno Furrer, Stefan King, Ulrich Knapp, Anja Krämer, Burghard Lohrum, Tilmann Marstaller, Claudia Mohn, Heinz Pantli, Daniel Reicke: Vorindustrieller Holzbau in Südwestdeutschland und der deutschsprachigen Schweiz. Terminologie und Systematik. (= Südwestdeutsche Beiträge zur historischen Bauforschung, Sonderband). Eßlingen 2012, ISBN 978-3-942227-11-7 (Digitalisat auf journals.ub.uni-heidelberg.de, abgerufen am 4. Oktober 2024), Seite 57, Aufklauung, Klauung.
- ↑ a b Thomas Eißing, Benno Furrer, Stefan King, Ulrich Knapp, Anja Krämer, Burghard Lohrum, Tilmann Marstaller, Claudia Mohn, Heinz Pantli, Daniel Reicke: Vorindustrieller Holzbau in Südwestdeutschland und der deutschsprachigen Schweiz. Terminologie und Systematik. (= Südwestdeutsche Beiträge zur historischen Bauforschung, Sonderband). Eßlingen 2012, ISBN 978-3-942227-11-7 (Digitalisat auf journals.ub.uni-heidelberg.de, abgerufen am 4. Oktober 2024), Seite 38, Abb. 57 (links): Klaue.
- ↑ Thomas Eißing, Benno Furrer, Stefan King, Ulrich Knapp, Anja Krämer, Burghard Lohrum, Tilmann Marstaller, Claudia Mohn, Heinz Pantli, Daniel Reicke: Vorindustrieller Holzbau in Südwestdeutschland und der deutschsprachigen Schweiz. Terminologie und Systematik. (= Südwestdeutsche Beiträge zur historischen Bauforschung, Sonderband). Eßlingen 2012, ISBN 978-3-942227-11-7 (Digitalisat auf journals.ub.uni-heidelberg.de, abgerufen am 4. Oktober 2024), Seite 38, Abb. 58 (rechts): Kerve.
- ↑ Franz Krämer: Grundwissen des Zimmerers. 2. Auflage. Bruderverlag, Karlsruhe 1988, ISBN 3-87104-052-5, S. 279.
- ↑ Thomas Eißing, Benno Furrer, Christian Kayser, Stefan King, Ulrich Klein, Ulrich Knapp, Burghard Lohrum, Tilmann Marstaller, Claudia Mohn, Heinz Pantli, Hans-Hermann Reck, Daniel Reicke: Vorindustrieller Holzbau. Terminologie und Systematik für Südwestdeutschland und die deutschsprachige Schweiz (= Südwestdeutsche Beiträge zur historischen Bauforschung, Sonderband.) 2., überarbeitete Auflage. Universität Heidelberg / Universitätsbibliothek, Heidelberg 2023, ISBN 978-3-96929-223-5 (Digitalisat), S. 62.
- ↑ D[avid] Gilly: Anleitung zur Anwendung der Bohlen-Dächer bey ökonomischen Gebäuden und insonderheit bey den Scheunen. Georg Decker, Berlin 1801, S. 7. (Digitalisat, abgerufen am 3. Oktober 2024)
- ↑ Eckart Rüsch: Baukonstruktion zwischen Innovation und Scheitern. Verona, Langhans, Gilly und die Bohlendächer um 1800. Verlag Michael Imhof, Petersberg 1997, ISBN 3-932526-00-7, S. 79 f.
- ↑ Fachwissen Bau Zimmerer. Handwerk und Technik, Hamburg 1995, ISBN 3-582-03506-9, S. 93–99.
- ↑ Wolfgang Nutsch und andere: Fachkunde für Schreiner (12. Auflage), Verlag Europa-Lehrmittel, Wuppertal 1980, Seite 175, ISBN 3-8085-4011-7.
- ↑ Sashimono. In: Japan Woodcraft Association. 25. November 2019, abgerufen am 2. April 2024 (englisch).
- ↑ Sashimono: The Gorgeous Art of Japanese Wood Joinery. 6. April 2021, abgerufen am 2. April 2024.
![Zapfenverbindung: Gerader Zapfen[10]](./LochZapfen.png)
![Zapfenverbindung: Kreuzzapfen[11]](./Kreuzzapfen01.png)