Haus Lichtenstein


Das Haus Lichtenstein, häufig nur Lichtenstein oder auch Kleiner Römer genannt, war ein historisches Gebäude in der Altstadt von Frankfurt am Main mit einer interessanten Baugeschichte aus Gotik und Barock. Es befand sich am Römerberg südlich des Römers in einem Häuserblock; die Hausanschrift war Römerberg 11.
Im Mittelalter war es ein beliebtes Messequartier, in der frühen Neuzeit begehrter Aussichts- und Treffpunkt der europäischen Hofgesellschaften anlässlich der am Römerberg stattfindenden Kaiserkrönungen und in der ersten Hälfte des 20. Jahrhunderts eines der Zentren der Frankfurter Künstlerszene.
Im März 1944 brannte Haus Lichtenstein nach den alliierten Bombenangriffen auf Frankfurt vollständig aus. Die weitestgehend intakten Umfassungsmauern wurden erst 1946 durch einen Sturm niedergerissen. Wenig später wurde die Parzelle des Gebäudes modern überbaut, so dass es zu den verlorenen Baudenkmälern der Frankfurter Altstadt gezählt werden muss.
Geschichte
Entstehungszeit bis zum barocken Umbau (1326 bis 1725)

Die zwei urkundlichen Ersterwähnungen des Hauses Lichtenstein[1][2] fallen in das Jahr 1326. Ferner ist es laut dem entsprechenden Faszikel des Instituts für Stadtgeschichte bereits in jener Zeit als Stammhaus der Patrizierfamilie Schurge zu Lichtenstein benannt – ohne jedoch eine Aussage über die damalige Erscheinungsform des Hauses zu treffen.[3] Tatsächlich fehlen konkrete Angaben aus der Entstehungszeit des Gebäudes völlig, andererseits fiel es als nachweislich im Kern gotisches Steinhaus einem Typus von nur etwa 20 Frankfurter Gebäuden mit untereinander so großen Ähnlichkeiten zu, dass die frühe Baugeschichte anhand von Analogien näherungsweise rekonstruiert werden kann.
Der Kern der Altstadt mit dem Römerberg war bereits um 1150 so dicht besiedelt, dass eine erste Stadterweiterung nötig wurde. Die Ersterwähnung der Steinbauten des nahen Römerkomplexes fällt in das frühe 14. Jahrhundert, womit es wahrscheinlich ist, dass auch der Kernbau des Lichtensteins in jener Zeit anzusiedeln war. Ein Blick auf die Größe der Parzelle im Vergleich zu den umgebenden Parzellen, etwa der Häuser Schrothaus (Hausanschrift: Römerberg 13) und Jungfrau (Hausanschrift: Römerberg 15), legt zudem nahe, dass das Gebäude auf zwei für den Neubau zusammengefassten Parzellen von Vorgängerbauten errichtet wurde. Ein derartiges Vorgehen ist für einen weiteren gotischen Steinbau, das Steinerne Haus am Markt, sogar urkundlich belegt.

Walter Sage hielt dagegen,[4] dass die Traufstellung sowie die Dachtürmchen (vgl. Bild nach Caspar Merian), die erst in der Spätgotik in Frankfurt an Gebäuden nachweisbar sind, für einen Neubau Ende des 15. Jahrhunderts sprechen. Andererseits sprach sich auch der Kunsthistoriker und Kenner der Frankfurter Altstadt, Fried Lübbecke, in seinem Hauptwerk für eine Erbauung im 14. Jahrhundert aus.[5]
Beide Auffassungen sind aber problemlos darin vereinbar, dass ein im frühen 14. Jahrhundert erbautes Haus Lichtenstein um 1500 im Dachbereich unter Erhalt der restlichen Konstruktion umgebaut wurde. Ob allerdings in der Patrizierfamilie Schurge, die wie einige spätere Hausbesitzer den Hausnamen zum Nachnamen hinzufügte, oder in der etwas bekannteren Patrizierfamilie Glauburg, der das Lichtenstein ab 1460 gehörte,[5] die Bauherren des Gebäudes zu suchen sind, ist aufgrund der lückenhaften Überlieferung nicht mehr eindeutig zu klären.
Wie bei der Mehrzahl der Häuser der Frankfurter Altstadt[6] dürfte die Etymologie des Hausnamens in einem auf das Gebäude übergangenen Familiennamen zu suchen sein. Der allein stehende Familienname Lichtenstein kommt in erhaltenen Urkunden des 14. Jahrhunderts mehrfach vor, wenn auch aufgrund der damals noch fehlenden Rechtschreibung in den verschiedensten Schreibweisen. Ein direkter Zusammenhang zwischen der eigenständigen Familie Lichtenstein und dem gleichnamigen Haus ist nicht zu belegen. Es bleibt somit Spekulation, dass ihr die Vorgängerbauten gehörten, die die Familie Schurge im frühen 14. Jahrhundert für den Neubau erwarb.
Unabhängig davon zeichnete sich das Lichtenstein wie seine baulichen Verwandten, etwa das 1362 an der Fahrgasse erbaute Haus Fürsteneck oder das bereits genannte, 1464 errichtete Steinerne Haus allem voran durch die kluge und vorausschauende Ortswahl des Bauherren aus. Nahe dem Fahrtor gelegen, durch das über den Main nach Frankfurt eingeschiffte Handelswaren in die Stadt gebracht wurden, war es mit seinen feuerfesten Gewölben ein willkommener und mit Sicherheit gut bezahlter Schutz vor den ständig drohenden Feuersbrünsten der hölzernen Fachwerkstädte.
Dass die Angst hiervor selbst in der Stadtverwaltung umging, zeigt, dass diese, bis das 1405 am Römerberg erworbene Rathaus 1438 um einen eigenen steinernen Archivturm erweitert wurde, alle wichtigen Dokumente und Privilegien im Gewölbe des 1808 abgebrochenen Festungsturms am Leonhardstor lagerte.[7]
Eng mit Handelsgütern verknüpft war die im 14. Jahrhundert bereits äußerst wichtige Frankfurter Warenmesse. Mit der Unterbringung der Messegäste verdiente, wie es die Steuerbücher dieser Zeit belegen, mancher Hausbesitzer mehr als im ganzen restlichen Jahr. Die für jene Zeit luxuriösen Raumgrößen des Lichtensteins dürften wiederum insbesondere wohlhabende Messebesucher angezogen haben. So verwundert auch nicht ein Beleg aus dem Jahr 1474, nach dem im ganzen Haus 48 Gästebetten zur Verfügung standen.[3]

In der Reformationszeit wohnte Johann von Glauburg im Lichtenstein[5], der zu den wichtigsten politischen Persönlichkeiten des 16. Jahrhunderts in Frankfurt zu zählen ist. Nach seinem Studium kehrte er 1526 in seine Heimatstadt zurück und war dort bereits 1532 Schöffe, später mehrfach Älterer Bürgermeister und ein geschickter Diplomat.
Als Frankfurt ab 1562 neben der Wahl- auch zur Krönungsstadt der Kaiser des Heiligen Römischen Reiches und der Römerberg zum Ort dieser regelmäßig stattfindenden Zeremonie wurde, dürfte sich der Wert des Gebäudes nochmals vervielfacht haben. Die zu den Feiern übliche Vermietung von Fensterplätzen in guter Lage bescherte, ähnlich wie die bereits erwähnte Möglichkeit der Unterbringung von Messegästen, dem jeweiligen Besitzer erhebliche Einnahmen. Obgleich für das Lichtenstein keine genauen Zahlen hierzu erhalten sind, lassen sich auch hier wieder Analogien zu anderen Gebäuden in gleicher Lage ziehen. Dabei kann bereits die Tatsache, dass der enorme Fensterreichtum der meisten zum Römerberg gewandten Gebäude einzig in der hohen dadurch erzielbaren Fenstermiete erklärbar ist, als weitere Bestätigung gelten.
Wohl nur wenig später entstand ein sich westlich des Lichtensteins bis zur Kerbengasse erstreckender Hofbau, dessen spätgotische Reste mit dem Wappen der Familie Glauburg noch Carl Theodor Reiffenstein Mitte des 19. Jahrhunderts in einigen Skizzen festhielt.[4] Er diente in seinen schmucklosen Nutzformen vermutlich längste Zeit mehr als Lager denn als Wohnstätte und verfügte auch über einen sehr geräumigen, von ausnahmslos allen Besitzern des Lichtensteins für die Weinlagerung[5] genutzten Gewölbekeller.
Auf dem berühmten Vogelschauplan von Matthäus Merian, der das Frankfurt des Jahres 1628 zeigt, wurde die Hausrückseite zum ersten Mal detailliert abgebildet (vgl. Bild). Demnach befand sich im Hof zwischen Lichtenstein und dem Hinterhaus zur Kerbengasse auch ein markanter, an der Rückseite angebauter Treppenturm, der sich stilistisch ebenfalls zwischen Spätgotik und Frührenaissance bewegte.
Vom barocken Umbau bis zum Zweiten Weltkrieg (1725 bis 1944)

1694 wechselte das Lichtenstein abermals den Besitzer und ging an die im selben Jahrhundert aus dem niederländischen Breda nach Frankfurt eingewanderte Familie Leerse über. In dieser Zeit kam auch der alternative Hausname Zum kleinen Römer vor,[8] was mit Sicherheit auf die Treppengiebel der nördlichen und südlichen Brandmauern sowie die ansonsten am Römerberg nicht wiederholte Steinarchitektur zurückzuführen war.
Im Zeitgeschmack des bald angebrochenen 18. Jahrhunderts galten die Bauten der Gotik als wenig sehenswert und wurden massenhaft abgebrochen oder massiv barock umgebaut. Insofern ging der damalige Hausherr, Johann Georg Leerse, beim 1725 vorgenommenen Umbau des Hauses vergleichsweise sorgsam vor, den der Darmstädter Baumeister Louis Remy de la Fosse ausführte. De la Fosse hatte sich zuvor bereits durch den Bau des Darmstädter Schlosses ausgezeichnet und erwarb sich auch in Frankfurt durch seine Arbeit am Römerberg schnell große Anerkennung.
So beauftragte ihn nur zwei Jahre später, 1727, die Frankfurter Adelsfamilie Holzhausen mit dem Bau des nach ihr benannten, bis heute im Holzhausenpark erhaltenen Schlösschens. Dieses wurde interessanterweise auf den Grundmauern einer mittelalterlichen Wasserburg errichtet, die Ende des 14. Jahrhunderts den möglichen Bauherren des Lichtensteins, der Familie Schurge zu Lichtenstein, gehörte.[9]
Wie vielleicht schon mehr als zwei Jahrhunderte zuvor veränderte der Umbau nur das Dach des Lichtensteins in seiner Substanz wirklich tiefgreifend, indem man diesem ein Zwerchhaus vorblendete. Die Fassade wurde in ihrem Erscheinungsbild vereinheitlicht und Architekturteile wie Fenster und Portale barockisiert. Innerlich versah man die zum Römerberg gewandten Räume des ersten Obergeschosses mit Stuckdecken von außerordentlich hoher Qualität, ihre Ausführung lässt allerdings vermuten, dass sie erst gegen Mitte des 18. Jahrhunderts entstanden.[8]
1774 wechselte das Gebäude erneut den Besitzer und ging als Erbe (Fideicommiss) für Leerses Urenkel Jakob Philipp Manskopf (der sich in der Folge Leerse nennen musste) an die Frankfurter Weinhändlerfamilie Manskopf über.[5] Unter ihr wurde das Gebäude 1777 abermals sorgsam umgebaut. Das Hinterhaus an der Kerbengasse legte man bis auf sein spätgotisches Erdgeschoss nieder, die Straßenzugänge wurden vermauert und in Fenster umgewandelt. Die Geschosse darüber errichtete man architektonisch unscheinbar neu und schuf vom Hof her einen Zugang über eine im Stil des Rokoko verzierte Treppe.

Das Heilige Römische Reich befand sich zu jener Zeit bereits im Niedergang, und der Römerberg erlebte nur noch zwei pompöse Kaiserkrönungen in den 1790er Jahren. Noch einmal rückte das Gebäude ins Zentrum der europäischen Geschichte: Der zukünftige König einer der neuen europäischen Großmächte, Friedrich Wilhelm III. von Preußen, lernte am 14. März 1793 auf einem Ball im Lichtenstein seine spätere Frau, die Herzogin Luise von Mecklenburg-Strelitz, kennen (vgl. Bild).[10]
1806 war das Heilige Römische Reich nach fast einem Jahrtausend zerfallen, und mit dem Ende der Kaiserkrönungen und der schwindenden Bedeutung der Messe setzte im 19. Jahrhundert ein rascher Niedergang der Frankfurter Altstadt ein. Mit ihr verfiel auch das Haus Lichtenstein in einen Dornröschenschlaf, aber auch eine Zeit, in der es im abermals gewandelten Zeitgeschmack nur noch wenig Wertschätzung genießen konnte. Die Schaufassade wäre 1822 fast wie einige Häuser am Römerberg einem klassizistischen Umbau zum Opfer gefallen, der jedoch nie zur Ausführung kam.[8]

Wohl am ehesten die massive Bauweise bewahrte es mehr als die zahlreichen Fachwerkbauten der Altstadt insbesondere in der zweiten Hälfte des 19. Jahrhunderts vor dem totalen Verfall und hielt die Mieten auf einem Niveau, das es nicht der totalen Zweckentfremdung preisgab. Dennoch zeigen es zeitgenössische Bilder des Fotografen Carl Friedrich Mylius mit zerbrochenen Fenstern und durch großflächige Werbeschilder an der Schaufassade entstellt.
Wie ein Adressbuch Frankfurts aus dem Jahre 1877 verrät, war das Lichtenstein, in dem Anfang des Jahrhunderts noch der Frankfurter Historiker und Schulreformer Anton Kirchner als Hauslehrer der Familie Manskopf gewirkt hatte, längst nur noch eine Immobilie, die an einfaches Bürgertum und Arbeiter vermietet wurde. Die Eigentümerfamilie hatte zu diesem Zeitpunkt bereits eine Wohnanschrift im Fischerfeld, wo großangelegte und für die Zeit luxuriöse Neubauviertel im klassizistischen Zeitgeschmack entstanden waren. Das damalige Familienoberhaupt, Gustav D. Manskopf, wirkte dennoch als großzügiger Mäzen: Zu seinen bekanntesten Stiftungen zählte der 1887 auf dem Römerberg eingeweihte neue Gerechtigkeitsbrunnen in Bronze.
Kurz vor dem Ersten Weltkrieg wurde das Gebäude von der Stadt gekauft und umfassend saniert. Dabei zeigte sich, wie gut in den vergangenen Jahrhunderten mit ursprünglichen Bausubstanz umgegangen worden war: Unter den Stuckdecken befanden sich noch die ursprünglichen Holzbalken mit gotischer Bemalung, hinter dem Verputz der Rundbögen des Erdgeschosses waren noch die einstigen Spitzbögen sichtbar.[10]
Nach Abschluss der sorgsamen Renovierung stellte die Stadt das Lichtenstein der Frankfurter Kunstwelt zur Verfügung. Im Hof wurde in den frühen 1920er Jahren die so genannte Künstlerküche abgehalten, die Räumlichkeiten dienten Frankfurter Künstlern wie Rudolf Gudden, Hans Brasch oder Wilhelm Reiss gleichermaßen als Wohnraum und Galerie für Ausstellungszwecke.[8]
Zweiter Weltkrieg und Gegenwart (1944 bis heute)

Im Zweiten Weltkrieg wurde das Dach des Gebäudes bereits beim ersten schweren Luftangriff am 4. Oktober 1943 durch Brandbomben schwer beschädigt. Bei der Bombardierung Frankfurts im März 1944, die die gesamte mittelalterliche Altstadt in wenigen Stunden vernichtete, brannte auch das Lichtenstein bis auf Bodenniveau herab aus. Die Umfassungsmauern blieben aufgrund der massiven Bauweise und mangels direkter Sprengbombentreffer fast vollständig stehen, womit das Haus noch verhältnismäßig gut erhalten war.[11]
Aus kunsthistorischer und städtebaulicher Sicht ist die mangelnde Sicherung der Ruine direkt nach dem Krieg zu bedauern, wie sie etwa beim nahen Römerkomplex nach Ende der Kampfhandlungen sofort stattfand. Bis Ende 1945 waren vor allem infolge von Frostschäden immer mehr, jedoch nur kleine Teile der instabilen Fassade eingebrochen. Anfang 1946 riss ein schwerer Sturm dann alles bis auf die Bogenöffnungen zum Römerberg nieder, sodass man sich 1948 für ein Abräumen der Reste entschied[5], obwohl man den Wiederaufbau bereits auf 380.000 Reichsmark veranschlagt hatte.[10]
In den 1950er Jahren wurden die Grundstücke der einstigen Häuser Römerberg 3–17 und damit auch des Lichtensteins historisierend überbaut. Obgleich die Häuser die Architektur ihrer Vorgänger zumindest ansatzweise zitieren, etwa durch leichte Vorkragungen gegenüber dem Erdgeschoss, ist die ursprüngliche Parzellierung des Gebiets an ihnen nicht mehr ablesbar (vgl. Bild).
Architektur
Allgemeines
Die architektonischen Details des Lichtensteins, insbesondere der Innenräume, sind nur in einer äußerst knapp gehaltenen Monographie von Ende des 19. Jahrhunderts überliefert.[8] Fast alle Unterlagen, die über den Gehalt der baulichen Veränderungen vergangener Jahrhunderte heute noch Aufschluss geben könnten, wurden mit dem Aktenbestand des städtischen Bauamtes im Zweiten Weltkrieg vernichtet. Insofern müssen sie aus einer höchst überschaubaren Anzahl Fotografien sowie älteren nichtfotografischen Abbildungen rekonstruiert werden. Vieles kann daher nur Vermutung bleiben, die, wie schon manches geschichtliche Detail, höchstens durch Analogien zu vergleichbaren Gebäuden mehr oder minder gestützt wird.
Dennoch ist die lokale kunstgeschichtliche Bedeutung des Lichtensteins nicht zu unterschätzen: Es war eines der wenigen bis 1944 erhaltenen Beispiele für einen größeren, künstlerisch anspruchsvollen Barockumbau eines Frankfurter Altstadthauses. Nur selten gingen in jener Zeit die Umbauten über das Hinzufügen von Stuckdecken oder die Veränderung der Dächer hinaus, viel häufiger wurde völlig neu gebaut, dies aber dann auch nur im Rahmen der klassischen Handwerkstradition und schon gar nicht unter Hinzuziehung eines ortsfremden Baumeisters wie Louis Remy de la Fosse. Schließlich war das Lichtenstein schon in seinem Bautypus betrachtet eine Seltenheit, gab es doch selbst im mittelalterlichen Frankfurt geschätzt nur knapp 20 vergleichbare Steinbauten[12], von denen letztlich nur das Steinerne Haus und das Leinwandhaus nach schwersten Kriegszerstörungen und Wiederaufbau auf uns gekommen sind.
Äußeres
Der mittelalterliche Bau (1326 bis 1725)


Das massiv aus Bruchsteinen erbaute Gebäude bedeckte eine fast quadratische Parzelle. Diese war mit größter Sicherheit aus der Zusammenlegung zweier kleinerer Grundstücke entstanden, wenn man sich auf älteren Katasterplänen die Größe der ehemals umliegenden Parzellen vergegenwärtigt. Da das Lichtenstein zwischen den Gebäuden Schrothaus und Alt-Strahlenberg (Hausanschrift: Römerberg 9) gelegen war, besaß es, abgesehen vom Dach, nur zwei architektonisch ausgestaltete Seiten.
Eine der architektonisch genauesten Abbildungen der Römerbergfassade des mittelalterlichen Lichtensteins vor dem barocken Umbau stammt aus dem Krönungsdiarium Leopolds I., das von Caspar Merian, dem Sohn des berühmten Matthäus Merian gestochen wurde (vgl. Bild). Auf Basis dieser Ansicht fertigte der bekannte Frankfurter Maler Carl Theodor Reiffenstein Mitte des 19. Jahrhunderts eine Detailskizze (vgl. Bild), die auch aus heutiger wissenschaftlicher Perspektive das Gebäude in seinem damaligen Zustand sehr genau wiedergibt.
Sie zeigt das 5 Meter hohe Erdgeschoss von Süden nach Norden bzw. links nach rechts mit einem kleinen rundbogigen Eingang, gefolgt von einem großen rundbogigen Zugang, woran wieder zwei kleinere spitzbögige Zugängen anschließen. Der große, rundbogige Zugang hatte eine Höhe von 4,50 Metern und führte entlang eines geschlossenen Korridors im Inneren auf der Rückseite des Hauses durch ein Tor gleicher Größe in den Hinterhof. Die anderen Zugänge öffneten sich in die Innenräume. Über den Portalen befanden sich die im mittelalterlichen Frankfurt recht häufigen, Schoppen genannten Vordächer (vgl. etwa die Darstellung von Caspar Merian, in der fast alle Häuser die Vordächer aufweisen).
Während die Fensteranzahl der schmucklosen, zum Hof gewandten Westseite des mittelalterlichen Lichtensteins nicht überliefert ist, verfügte die Ost- und eigentliche Schauseite zum Römerberg in jedem der knapp 4 Meter hohen Obergeschosse über vier große Kreuzstockfenster. Dieser für mittelalterliche Verhältnisse sehr große und teure Typus Fenster ist heute in Frankfurt nur noch am Steinernen Haus zu sehen.
Das hohe Satteldach, am südlichen und nördlichen Ende der Fassade von staffelförmig auslaufenden Brandmauern begrenzt, war das einzige, das in diesem Bereich des Römerberges traufständig ausgerichtet war. Es verfügte auf allen Abbildungen und somit wohl zu allen Zeiten über vier kleine Gauben je Dachseite, von denen immer zwei in Reihe gebaut waren. Darüber hinaus hatte man in das obere Ende der Brandmauern auf jeder Seite halbkreisförmige Fenster geschlagen, die das oberste der drei Dachgeschosse zusätzlich beleuchteten.
Bereits auf dem Dach des mittelalterlichen Lichtenstein saß auf Höhe des ersten Dachgeschosses eine Art von Zwerchhäusern, denen, drei an der Zahl, kleine Türmchen mit Spitzhelmabschluss vorgeblendet waren. Sie stellten wohl am ehesten Zitate sakraler Architektur dar und wurden möglicherweise erst im frühen 16. Jahrhundert einem vorher nur mit Gauben besetzten Dachstuhl aufgeblendet (vgl. geschichtlicher Teil). Am Haus zum Engel am Samstagsberg kann diese Form von Dachturm heute noch beobachtet werden.
Der Hinterhof verfügte, abgesehen von einem Treppenturm, bis 1725 über keine zusätzlichen, direkt an das Lichtenstein angebauten Hinterhäuser. Der Treppenturm hatte mit Sicherheit seit Erbauung des Hauses bestanden, da die Balkendecken des Haupthauses keinerlei Durchbrüche für eine einst intern verlegte Treppe aufwiesen. Zudem hätte dies wohl eine Holzträgerkonstruktion nötig gemacht, die das Lichtenstein im Gegensatz zu den meisten anderen gotischen Steinhäusern aber ebenfalls nicht aufwies. Aufgrund der immer noch relativ kleinen Parzelle kamen die Balkendecken ohne zusätzliche Unterstützung aus.
Dem Hinterhof gegenüber lag ein irgendwann im 16. Jahrhundert im spätgotischen Stil erbautes, nach Westen zur Kerbengasse zeigendes Gebäude. Die Tatsache, dass es auf Vorder- wie auf Rückseite über einen rundbogigen Durchgang verfügte, der direkt in den Hinterhof führte, lässt rückschließen, dass es von Anfang an dem Lichtenstein als Hinterhaus zuzurechnen war. Der Vogelschauplan von Matthäus Merian aus dem Jahr 1628 zeigt es als einfaches, zweistöckiges Haus mit Giebeldach.
Der barock überformte Bau (1725 bis 1944)


Beim barocken Umbau veränderte man das Erdgeschoss nur gering dahingehend, das Erscheinungsbild zu vereinheitlichen: Die spitzbogigen Tore wurden zu rundbogigen Toren umgebaut und das große Tor der Durchfahrt etwas verkleinert. Die Schoppen brach man zugunsten in jener Zeit beliebter, Ochsenaugen genannter runder Oberlichter über jedem Tor ab.
Auch die Anzahl der Fensteröffnungen der Schauseite am Römerberg wurde beibehalten und lediglich etwas verschmälert. Die neuen Fenster versah man mit einer feineren Unterteilung, Schlusssteinen, Ohren und einer reicheren Profilierung. Den Fenstern des zweiten Obergeschosses wurde darüber hinaus ein filigranes, kunstgeschmiedetes Gitter im unteren Bereich hinzugefügt.
Im Bereich des Daches ersetzte man die drei spätgotischen Türme durch ein Zwerchhaus, dem man einen großen Volutengiebel vorblendete. Dieser brachte die barock aufgefrischte Fassade zu einem beruhigten Abschluss, der das Gebäude zwischen den umgebenden, größtenteils mittelalterlichen Häusern nicht übermäßig hervorstechen ließ. Die zwei Voluten sowie das obere Ende des Giebels krönten antikisierende Vasen. Zwischen den zwei im Giebel befindlichen barocken Fenstern, die zwar ebenfalls reich gefasst waren, aber im Gegensatz zu den darunter liegenden Stockwerken keinen Schlussstein hatten, befand sich auf einer Konsole eine Kartusche mit den Initialen des Bauherren Johann Georg Leerse. Es war ebenso wie das darüber befindliche ovale Fenster reich mit barockem Schweifwerk eingefasst.
Da man bei dieser Gelegenheit nicht die unzeitgemäßen Staffelgiebel beseitigte, kann es als sicher gelten, dass die gesamte Dachkonstruktion nur verändert, aber nicht ganz neu erbaut wurde. Dass man darüber hinaus sogar die vier Dachgauben nur versetzte und die unteren zwei in einer etwas feiner detaillierten Fassung beibehielt, lässt darüber hinaus sogar darauf schließen, dass an der grundsätzlichen inneren Einteilung des Daches nichts verändert wurde.
Tiefgreifender erscheinen demgegenüber die Veränderungen, die man an der Hofseite vornahm. Der alte Treppenturm wurde abgebrochen und zwei längliche, nördlich und südlich bis zum Hinterhaus an der Kerbengasse reichende Häuser in Fachwerkbauweise auf steinernen Erdgeschossen errichtet:
Der südliche der beiden Anbauten reichte nur auf dem ersten Drittel seiner Länge bis unter das Dach des Haupthauses, da er eine Treppe als Ersatz für den niedergelegten Turm beherbergte. Die übrigen zwei Drittel waren nur als ein auf Pfeilern ruhendes, an das Hinterhaus gebautes Obergeschoss ausgeführt. Der nördliche Längsbau ruhte auf einem von Rundbögen durchbrochenen Erdgeschoss, die zwei Stockwerke darüber kragten auf mit barockem Blattwerk verzierten Kragsteinen aus. Er wurde von einem zweistöckigen Mansarddach mit Zwerchhaus abgeschlossen. Dessen Ladeluke belegt, dass wenigstens das Dach, vielleicht auch das ganze Nebengebäude vornehmlich Lagerzwecken diente.
1777 wurde auch das Hinterhaus zur Kerbengasse unter Erhalt des spätgotischen Erdgeschosses mit seinem großen Kellergewölbe abgerissen und darüber im schlichten, bereits ins Louis-seize mündenden Stil der Zeit mit zwei Geschossen und einem Mansarddach neu erbaut (vgl. Bild). Im Hof wurde eine hier frei beginnende, mit kunstgeschmiedeten Gitter geschmückte und in das neu geschaffene Haus führende Treppe errichtet. Das Haus hatte auf dieser Seite aufgrund der Verschränkung mit den anderen Hinterhäusern im ersten Obergeschoss nur zwei, in dem darüber und im Mansarddach vier Fenster, auf dem Dach befanden sich nochmals drei Gauben. Auf der Seite zur Kerbengasse war die Einteilung mit vier Fenstern je Stockwerk und im Mansarddach einheitlicher.
Unklar bleibt, ob bereits zu dieser Zeit oder erst im 19. Jahrhundert auf beiden Seiten die rundbogige Durchfahrt vermauert wurde, um das Erdgeschoss als Ganzes räumlich nutzbar zu machen. Auf der Seite zur Kerbengasse wurde die Durchfahrt in ein großes mittiges, die Türen rechts und links davon in zwei kleinere Fenster verwandelt, deren rundbogige Stürze noch an die ursprüngliche Nutzung erinnerten. In den vermauerten Bogen auf der Hofseite wurde mittig eine einfache Tür gebrochen, die links, rechts und darüber von einem zusätzlich hineingebrochenen Fenster umgeben wurde.
- Innenhofansichten des Hauses Lichtenstein, Virtuelles Altstadtmodell Jörg Ott
-
Blick Richtung Westen -
Blick Richtung Osten
Inneres
Erdgeschoss
Wie bei fast allen mittelalterlichen Steinbauten der Frankfurter Altstadt waren Fußböden, Zwischenwände und Decken auch im Lichtenstein nicht massiv, sondern dem Fachwerkbau entlehnte Holzkonstruktionen. Möglicherweise war die Decke des Erdgeschosses sogar mit einem Gewölbe ausgestattet, das späteren Umbauten zum Opfer fiel; sicherer ist das ursprüngliche Vorhandensein eines im alten Frankfurt häufigen, Bobbelage genannten Zwischengeschosses zur Warenlagerung – Nachrichten finden sich allerdings über beide Merkmale nicht.
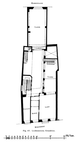
Die ursprüngliche innere Einteilung des Erdgeschosses bleibt mangels Überlieferung unklar. Ein Vergleich des einzigen existierenden Grundrisses von Ende des 19. Jahrhunderts (vgl. Bild) mit dem Grundriss des Steinernen Hauses, in dem sich nachweislich die originale Inneneinteilung erhalten hatte, lässt jedoch vermuten, dass der Grundriss die mittelalterliche Situation wiedergibt.
Demnach befand sich hinter den vom Römerberg aus gesehen zwei rechten Toren ein großer Raum, der im Mittelalter in den hinten am Haus angebauten Treppenturm führte. In neuerer Zeit hatte man eine einfache Tür zum Hof in die westliche Wand gebrochen. Der Raum diente im Mittelalter wohl vornehmlich Handels- und Messzwecken. Hinter dem vom Römerberg aus gesehen zweiten Tor links erstreckte sich wohl eine links und rechts durch Fachwerkwände abgetrennte Durchfahrt, die durch ein rundbogiges Tor auf der Rückseite in den Hinterhof führte. Das ganz links gelegene Tor am Haus führte nach 1725 in den südwestlichen Hofanbau. Dieser beherbergte eine aufwändig gedrechselte, aus Edelhölzern bestehende und den ursprünglichen Turmanbau ersetzende Treppe des 18. Jahrhunderts, die von hier aus die zwei darüber liegenden Stockwerke erschloss.
Bei der Sanierung des Hauses im frühen 20. Jahrhundert stellte man, wohl entgegen dem ursprünglichen Grundriss, aber zugunsten von mehr Nutzfläche, den gesamten Raum zusammenhängend her; soweit es die im Institut für Stadtgeschichte erhaltenen Fotos der Sanierung erkennen lassen. Das sich rückwärtig in den Hof öffnende Tor vermauerte man und versah es mit Fenstern, um den ansonsten nur durch die Oberlichter zum Römerberg beleuchteten Raum etwas aufzuhellen.
Obergeschosse und Dach

Über die vorgenannte Treppe des südwestlichen Hofanbaus gelangte man in die oberen Geschosse. Ihre innere Einteilung hatte sich vergleichsweise wenig verändert. Jedes Stockwerk zerfiel in zwei große, miteinander verbundene Stuben mit jeweils zwei Fenstern zum Römerberg. Ob diese Einteilung aus dem Mittelalter überkommen war, oder ob erst der Barock sogar nur einen Raum pro Stockwerk weiter unterteilte, muss unklar bleiben. Klar ist dagegen, dass der Umbau von 1725 den beiden Räumen des ersten Stocks prachtvolle Stuckdecken hinzufügte. Der Stuckateur ist unbekannt, vielleicht handelt es sich um den nur mit seinem Familiennamen bekannten Mainzer Künstler Hennicke, der in jenen Jahren im Kurfürstenzimmer des nahen Römers tätigt war. Die Ausführung spricht auf jeden Fall für einen Künstler, der auch höfischen Qualitäten genügte.
Über die drei Geschosse des Dachstuhls ist nichts bekannt. Abgesehen vom unteren, in jeder Zeit durch größere Fenster erleuchteten Stockwerk – ob nun durch spätgotische Türmchen oder den barocken Zwerchgiebel – dürfte es hier so dunkel gewesen sein, dass er für wenig mehr als reine Lagerzwecken zu gebrauchen war. Darüber hinaus boten die Gauben allerdings einen hervorragenden Blick über die Dächer der gesamten Altstadt, überragte das Lichtenstein doch fast alle umstehenden Bauten erheblich.
Literatur
- Johann Georg Battonn: Oertliche Beschreibung der Stadt Frankfurt am Main – Band IV. Verein für Geschichte und Alterthumskunde zu Frankfurt am Main, Frankfurt am Main 1866. (Digitalisat)
- Rudolf Jung, Julius Hülsen: Die Baudenkmäler in Frankfurt am Main. Dritter Band. Privatbauten. Heinrich Keller, Frankfurt am Main 1914, S. 78–81 (Digitalisat [PDF]).
- Paul Wolff, Fried Lübbecke: Alt-Frankfurt, Neue Folge. Verlag Englert & Schlosser, Frankfurt am Main 1924, S. 36–39.
- Walter Sage: Das Bürgerhaus in Frankfurt a. M. bis zum Ende des Dreißigjährigen Krieges. Wasmuth, Tübingen 1959 (Das Deutsche Bürgerhaus 2), S. 30, 31.
- Georg Hartmann, Fried Lübbecke: Alt-Frankfurt. Ein Vermächtnis. Verlag Sauer und Auvermann, Glashütten 1971, S. 45, 65–67.
- Hans Pehl: Kaiser und Könige im Römer. Das Frankfurter Rathaus und seine Umgebung. Verlag Josef Knecht, Frankfurt 1980, S. 87–90, ISBN 3-7820-0455-8.
- Wolfgang Klötzer: Frankfurts alte Gassen. Ariel Verlag, Sulzbach im Taunus 1982, S. 18, 19.
- Hartwig Beseler, Niels Gutschow: Kriegsschicksale Deutscher Architektur – Verluste, Schäden, Wiederaufbau. Band 2: Süd. Karl Wachholtz Verlag, Neumünster 1988, S. 820.
Weblinks
- Haus Lichtenstein. In: altfrankfurt.com., archiviert vom Original.
Einzelnachweise
- ↑ Johann Friedrich Boehmer, Friedrich Lau: Urkundenbuch der Reichsstadt Frankfurt. J. Baer & Co, Frankfurt am Main 1901–1905, Band II, Urkunde Nr. 291, 12. Februar 1326: […] de domo dicta Lithinstein [...]
- ↑ Johann Friedrich Boehmer, Friedrich Lau: Urkundenbuch der Reichsstadt Frankfurt. J. Baer & Co, Frankfurt am Main 1901–1905, Band II, Urkunde Nr. 293, 12. März 1326: […] der ligin fiere uf dem hus zu Liehtenstein uf Hennekins deyl gein der winschroder hus […] (Anmerkung: mit der winschroder hus kann im Kontext der Quelle nur das Haus der alten Lit. J 160 gemeint sein – als das noch im 20. Jahrhundert als Schrothaus bekannte Haus mit der Anschrift Römerberg 13, das in der Tat an das Lichtenstein stieß und sich mit ihm die Brandmauer teilte).
- ↑ a b Kaiser und Könige im Römer. Das Frankfurter Rathaus und seine Umgebung. Verlag Josef Knecht, Frankfurt 1980, S. 87–90.
- ↑ a b Das Bürgerhaus in Frankfurt a. M. bis zum Ende des Dreißigjährigen Krieges. Wasmuth, Tübingen 1959, S. 30 & 31.
- ↑ a b c d e f Alt-Frankfurt. Ein Vermächtnis. Verlag Sauer und Auvermann, Glashütten 1971, S. 45, 65–67.
- ↑ Dr. Heinrich Voelcker: Die Altstadt in Frankfurt am Main innerhalb der Hohenstaufenmauer. Verlag Moritz Diesterweg, Frankfurt am Main 1937, S. 28–37.
- ↑ Georg Ludwig Kriegk: Geschichte von Frankfurt am Main in ausgewählten Darstellungen. Heyder und Zimmer, Frankfurt am Main 1871, S. 195, 196.
- ↑ a b c d e Die Baudenkmäler von Frankfurt am Main – Band 3, Privatbauten. Selbstverlag/Völcker, Frankfurt am Main 1914, S. 78–81.
- ↑ Gerhard Bott: Frankfurt am Main. Deutscher Kunstverlag, München 1953, S. 40.
- ↑ a b c Frankfurts alte Gassen. Ariel Verlag, Sulzbach im Taunus 1982, S. 18 & 19.
- ↑ Kriegsschicksale Deutscher Architektur. Verluste, Schäden, Wiederaufbau – Band 2, Süd. Karl Wachholtz Verlag, Neumünster 1988, S. 820.
- ↑ Die Altstadt in Frankfurt am Main innerhalb der Hohenstaufenmauer. Verlag Moritz Diesterweg, Frankfurt am Main 1937, S. 49.
Koordinaten: 50° 6′ 36,2″ N, 8° 40′ 54,6″ O