Chiesa degli Ottimati


Die Chiesa degli Ottimati (auch: Chiesa di Santa Maria Annunziata, dt. „Kirche der Optimaten“/„Mariä-Verkündigung-Kirche“) ist eine antike byzantinisch-normannische Kirche in Reggio Calabria. Sie steht an der Piazza Castello.
Die Kirche entstand im 10. Jahrhundert und erhielt ihren Namen von der antiken Cripta degli Ottimati, welche als Fundament der Kirche verwendet worden war, und die aus der Normannenzeit stammte (12. Jh.). Sie war Gregor dem Großen geweiht. Eine Legende erzählt, dass bereits Sant’Alberto del Convento dell’Annunziata di Trapani, bei einem Besuch in Reggio (ca. 1256/57) die Kirche bewunderte. Heute wird sie vom angrenzenden Kolleg der Jesuiten betreut.
Optimaten
Die Ottimati (Congregazione degli Ottimati) waren in diesem Fall eine Kongregation von Adligen, welche von den Normannen gegründet worden war. Aus dieser Zeit gibt es noch Familienwappen, unter denen die Familien Filocamo, Griso, Altavilla und Borbone di Napoli zu erkennen sind, und es waren wahrscheinlich noch weitere Wappen der Nesci, Spanò und Genoese-Zerbi vorhanden.
Geschichte
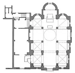
Ein alter Gebäudeplan, der bei der Soprintendenza Archeologica della Calabria (Archäologischen Superintendentur von Kalabrien) aufbewahrt wird, zeigt, dass das ursprüngliche Gebäude starke Ähnlichkeiten zu anderen byzantinischen Kirchen in Kalabrien aufweist. Dies ist ein Indiz dafür, dass die Chiesa degli Ottimati ins 10. Jahrhundert datiert werden kann.
Die ursprüngliche Kirche hatte einen quadratischen Grundriss und drei östlich ausgerichtete Apsiden die nach außen von einer zusätzlichen Mauer verdeckt waren. Die drei Schiffe waren mit fünf Kuppeln nach byzantinischem Vorbild überdeckt, wie man sie beispielsweise auch bei der Cattolica di Stilo, bei der Kirche San Marco in Rossano und der San Giorgio di Pietra Cappa bei San Luca findet.
In normannischer Zeit, möglicherweise unter Roger II., wurde auf die alte Kirche eine zweite Kirche aufgesetzt, die Gregor dem Großen geweiht wurde und in der das Kuppeldach durch Kreuzgewölbe ersetzt wurde. Auch die spitzbogigen Wandöffnungen, Westportal und Fenster, dürften aus dieser Zeit stammen.
Im Laufe der sarazenischen Invasion am 3. September 1594 wurde die Kirche beschädigt und in Brand gesetzt.
Nach der Zerstörung des Antiken Bildes der l’Annunciazione gab die Kongregation bei dem jungen Agostino Ciampelio Fiorentino ein neues Altarbild in Auftrag und im Dezember 1597 erhielten sie das neue Bild aus Rom von „SS. Vergine Annunciata“, ein Werk Ciampelios von großem künstlerischen Wert.
Nach der Unterdrückung des Jesuitenordens 1767 wurde die Kirche zeitweise aufgegeben, aber 1780 erhielt die Kirche besonderen Schutz durch Ferdinand I. Nach schweren Schäden durch die Erdbeben 1783 und 1908 wurde die Kirche Anfang des 20. Jahrhunderts wieder aufgebaut, was die Unterscheidung zwischen original mittelalterlichen und nachempfundenen Bauteilen erschwert.

1916 wurde ein Teil zunächst abgetragen und größere Baumaßnahmen in Angriff genommen, die bis 1933 andauerten. Der Wiederaufbau stand unter der Aufsicht der Scuola del Beato Angelico aus Mailand, unter der Leitung des Architekten Pompilio Seno. Er behielt den byzantinischen Bauplan der Cappella degli Ottimati bei.
Auch die heutige Kirche im arabisch-normannischen Stil verfügt über einen dreischiffigen Bauplan. Sie hat Kreuzgewölbe, die von zentralen Säulen getragen werden. Einige Tesserae des herrlichen Mosaikbodens und fehlende Säulen wurden durch sehr ähnliche Stücke ergänzt, die aus der normannischen Basilika Santa Maria di Terreti stammen, welche im Erdbeben komplett zerstört worden war.
Galerie
-
„l'Annunciazione“ von Agostino Ciampelli -
Byzantinischer Mosaikboden -
Blick auf die Kirche von der Via Castello -
Portal der Kirche.
Weblinks
- Googlemaps
- Homepage einer Tourismusinformation.
- maridelsud.com
Koordinaten: 38° 6′ 25,6″ N, 15° 38′ 36″ O