Borbetomagus


Borbetomagus war eine römische Siedlung im Bereich der Altstadt von Worms.
Bezeichnung

Neben der heute meist verwendeten Schreibweise Borbetomagus gibt es historisch auch noch andere[1]
- Borbitomago (Itinerarium Antonini)[2]
- Βορβητόμαγος (Borbitomagos – Claudius Ptolemäus, etwa 90–168 n. Chr.)
- [Borb]itomag(us) (Meilensäule von Aduatuca, heute: Tongern[3])
- Borgetomagi (Tabula Peutingeriana)
- Bormitomago (Itinerarium Antonini)
Der lateinische Name der Siedlung ist keltischen Ursprungs. Die Namensgebung hatte den politischen Hintergrund, dass Rom damit demonstrieren wollte, nun über „Germanien“ zu herrschen.[4]
Ursprung
- Borbeto-
- wird nach einer Deutung auf den keltischen Wortstamm für *borvo-, *borbo- zurückgeführt, der sich auch im Namen des Bädergottes Borvo oder Bormo wiederfindet. Der Ort wäre also nach einer Heilquelle oder dem entsprechenden Gott benannt.[5] Der Wortstamm könnte „Flüssiges“ oder „warme Quelle“ bedeutet haben.[6] Warme Quellen sind in Worms nicht bekannt.
- Eine andere Deutung bezieht den Namen auf das keltische Wort *borba, das auch Bedeutungen wie „Schmutz“ und „Unrat“ enthält.[7] Es könnte sich auf die Lage der Stadt in dem wasserreichen und sumpfigen Gebiet zwischen den Mündungen des Eisbachs und der Pfrimm in den Rhein beziehen.
- Eine weitere Deutung geht dahin, den Ursprung in der indogermanischen Wortwurzel *bher- („aufwallen“) zu suchen, zu der auch *bherm („sprudelndes Wasser“) gehört.[8][9] So könnte mit Borbetomagus ursprünglich auch „Quellenfeld“ gemeint sein. Quellen im Stadtgebiet sind ebenfalls nicht bekannt.
- -magus
enthält das latinisierte keltische Wort für „Feld, Ebene, Markt“.[10] Der Ortsname wurde daher vielfach mit „Feld an der Bormita“ übersetzt.[11]
Im 19. und der ersten Hälfte des 20. Jahrhunderts gab es eine Reihe von Theorien zur Herkunft des Namens Borbetomagus, die heute nicht mehr vertreten werden.[12] Dabei wurde der Name auch von einer angeblichen germanischen Sonnengöttin Borbet abgeleitet und Borbetomagus als Heimstätte der Sonne übersetzt.[13]
Von Borbetomagus zu Worms
Der Geograph von Ravenna verwendet im 7./8. Jahrhundert die sprachlich jüngere Form Gormetia.[14] Durch einen späteren Lautwandel wurde das anlautende B zu G und zu W. So wandelte sich Borbetomagus in der Sprache der germanischen Siedler im Frühmittelalter am Ende zu „Worms“. Dass nur die erste Silbe übrigblieb, liegt an der Betonung auf dieser ersten Silbe im Germanischen, im Gegensatz zur Betonung im Lateinischen.
Geografische Lage
Borbetomagus lag auf dem Hochufer und unmittelbar hinter der Abbruchkante zum Rhein hin. Der Gießen und der Woog flossen noch zusätzlich vor der Abbruchkante und mündeten hier im spitzen Winkel in den Rhein. Das Areal im Osten von Borbetomagus war also sumpfig, während die höher gelegene Siedlung – außer in Extremfällen – hochwasserfrei war.[15] Das Siedlungsgebiet wurde vom Eisbach durchflossen, zusätzlich fließt im Norden die Pfrimm, so dass die Siedlung auch mit Frischwasser gut versorgt war.
Das Stadtgebiet umfasste bei seiner größten Ausdehnung in der Mitte des 3. Jahrhunderts n. Chr. den überwiegenden Teil der Fläche, die später der innere mittelalterliche Mauerring umschloss, und einen Bereich südlich davon. Es erstreckte sich über etwa 78 ha.[16] Insgesamt war es etwa um 50 % größer als dieser mittelalterlich ummauerte Bereich mit einer Nord-Süd-Ausdehnung von etwa 1200 m.[17] Im Norden erreichte Borbetomagus dagegen nicht die Grenze, die dann die innere mittelalterliche Stadtmauer bildete, denn im Bereich der Judengasse befand sich – außerhalb der römischen Stadt – bereits ein römischer Friedhof.[18]
Entlang dem Hochufer verlief die Römische Rheintalstraße von den Alpen zur Nordsee. Nächste größere Städte waren Mogontiacum (Mainz) im Norden und Noviomagus Nemetum (Speyer) im Süden. Von Westen kamen die Straßen von Divodurum Mediomatricorum (Metz) aus der Kaiserslauterer Senke, eine Verbindung nach Gallien, und die Straße von Altiaiensium (Alzey). Im Bereich von Borbetomagus kreuzten diese den Rhein und führten als Handelswege weiter in den Osten und das Gebiet jenseits der Reichsgrenze.[19]
Forschungsstand

Immer wieder zu beobachten ist, dass Angaben zu Worms in antiken Quellen und die archäologischen Befunde nur schwer zu vereinbaren sind. Hinzu kommt, dass im 19. und der ersten Hälfte des 20. Jahrhunderts die lokale Geschichtsschreibung versuchte, das römische Worms als besonders bedeutend darzustellen, auch für Zeitabschnitte, für die es dafür keine Belege gibt – so etwa das immer vermutete oder gar vorausgesetzte frührömische Kastell oder eine Stadtmauer vor dem 4. Jahrhundert.[20]
Anfänge
Bodenforschung nach urgeschichtlichen Funden hat in Worms eine lange Tradition. So gab es seit der Renaissance eine Sammlung römischer Spolien, Sarkophage und Inschriften im Hof des Bischofshofs in Worms, die Bischof Johann XX. von Dalberg (1455–1503) begonnen hatte. Sie wurde in der großen Stadtzerstörung während des Pfälzischen Erbfolgekriegs durch Truppen König Ludwig XIV. 1689 vernichtet.[21]
Kaiser Friedrich III. ließ 1488 in einem Hügel südlich von Worms nach dem Grab des legendären Helden Siegfried graben, weil es dort vermutet wurde. Die Grabung war ein früher Ansatz für Bodenforschung.[22]
In der ersten Hälfte des 19. Jahrhunderts legte der ortsansässige Bäcker und Weinhändler Johann Philipp Bandel (1785–1866)[23] eine umfangreiche Sammlung all der römischen Gegenstände an, die im Bereich von Worms gefunden wurden – nicht zuletzt in seinen eigenen Weingärten.[24]
Archäologische Forschung


In der zweiten Hälfte des 19. Jahrhunderts begann die moderne archäologische Forschung in Worms. Sie ist vor allem mit den Namen August Weckerling (1846–1924), dem Arzt Dr. Karl Koehl (1847–1929) und dem 1879 gegründeten Altertumsverein Worms verbunden.[25] August Weckerling verfasste die ersten umfassenden Monografien zum römischen Worms.[26] Weckerling und Koehl arbeiteten ehrenamtlich als Kustoden des Paulus-Museums, des ersten historischen Museums in Worms.[27] Zahlreiche archäologische Ausgrabungen fanden statt, finanziell großzügig durch Maximilian von Heyl unterstützt. Diese Phase endete mit dem Ausscheiden und dem Tod der Akteure in den 1920er Jahren. Sie fanden zunächst keine Nachfolger. Die Arbeit von Verein und Museum wandte sich mehr historischen und kunsthistorischen Themen und dem Mittelalter zu. So beruhen bis heute viele Kenntnisse auf Beobachtungen aus dem 19. Jahrhundert, etwa die Feststellungen zum römischen Straßensystem.[28]
Bis 1980 gab es keine systematischen Grabungen mehr. So wurde die Chance versäumt, nach der großflächigen Zerstörung der Innenstadt im Zweiten Weltkrieg freie Flächen archäologisch zu untersuchen, bevor sie neu bebaut wurden. Umfangreiche weitere unbeachtete Zerstörungen erfolgten bei großflächigen Bauprojekten in den 1960er und 1970er Jahren. Erst ab etwa 1980, nachdem Mathilde Grünewald als Archäologin die Leitung des Museums der Stadt Worms übernommen hatte, änderte sich das. Jetzt bestand aber die Schwierigkeit, dass vieles unbeobachtet bereits zerstört und wieder überbaut worden war.[29]
2006 fasst die Autorin dann zusammen:
„Der Forschungsstand für die Römerzeit in Rheinhessen ist trotz der fundamentalen Bedeutung dieser Epoche für den Landesausbau und die Stadtwerdung […] beklagenswert.“
Kelten
Eine keltische Siedlung – kein Oppidum[30] – ist im Bereich nördlich der Stelle, an der die Mainzer Straße die Pfrimm überquert, nachgewiesen. Eine weitere keltische Siedlung bestand in Worms-Pfeddersheim.[31] Einige wenige Funde aus dem 2. Jahrhundert v. Chr. kamen auch im Bereich der Kernstadt von Worms zutage.[32] Es gab hier aber keine keltische Vorgängersiedlung.[33]
Um 80 v. Chr. brach die keltische Zivilisation innerhalb kurzer Zeit zusammen. Für das folgende halbe Jahrhundert gibt es im Bereich von Worms kaum archäologische Funde, weder Siedlungen noch Gräber. Die Besiedlung kann also nur ganz dünn gewesen sein, falls es sie überhaupt gab. Die früher gerne angenommene Siedlungskontinuität im Bereich der Stadt Worms bestand nicht, es gibt dafür keinerlei archäologische Belege.[34] Die mit einer durchgehenden Besiedlung seit der Keltenzeit reklamierte Stellung von Worms als eine der ältesten Städte Deutschlands kann damit auch nicht belegt werden. Borbetomagus war also eine römische Gründung oder entwickelte sich aus dem Vicus, der um einen römischen Militärstützpunkt entstand.[35]
Römische Zeit
Anfänge

Ab 15 v. Chr. reichte römischer Einfluss bis an den Rhein. Eine Generation später könnte es eine römische Militärpräsenz in Worms gegeben haben. Die strategische Position von Borbetomagus lässt eine solche Anlage sinnvoll erscheinen. Allerdings gibt es nur sehr wenige datierbare Bodenfunde aus augusteischer (31 v. Chr.–14 n. Chr.) und tiberischer (14–37 n. Chr.) Zeit, Terra-Sigillata und Münzen. Bauliche Spuren eines Kastells aus dem 1. Jahrhundert n. Chr. wurden in Worms nie gefunden. Wahrscheinlich gab es aber einen kleinen Militärstützpunkt, um Straße und Rheinübergang zu bewachen.[36] Ob es sich bei dem Rheinübergang um eine Brücke, eine Furt oder einen Fährbetrieb handelte, ist ebenfalls nicht bekannt.[37] In den beiden Nachbarstädten Mainz und Speyer sind dagegen gleich mehrere Kastelle des 1. Jahrhunderts n. Chr. archäologisch untersucht worden. Nur in Worms-Horchheim wurden die Spitzgräben eines Kastells beobachtet, ohne dass das näher untersucht wurde, eventuell ein Übungs- oder Marschlager.[38] Die mittel- und spätaugusteischen Terra-Sigillata-Funde konzentrieren sich im Altstadtbereich.[39]
Durch die Inschriften auf römischen Grabsteinen ist die Anwesenheit römischer Auxiliartruppen ab etwa 40 n. Chr. in Worms belegt.[40] Es handelte sich um Soldaten, die von Einheiten, die in Mainz stationiert waren, abkommandiert waren. Bekannt sind die Kavallerieeinheiten (alae): Ala I Hispanorum, Ala Gallorum Sebosiana, Ala Agrippiana Miniata und Ala Indiana Gallorum sowie die Infanterieeinheiten Cohors I Thracum Germanica, Cohors VII Breucorum, Cohors Raetorum und Cohors Raetorum et Vindelicorum.[41]
Die ursprünglich weiter nördlich gelegene keltische Siedlung verlagerte sich in die Nähe des Militärstützpunkts.[42] Die Bevölkerung von Borbetomagus nahm schnell zu.[43]
Römische Landstadt

Ende des 1. Jahrhunderts n. Chr. verlegte das Römische Reich die Grenze vom Rhein an den neu errichteten Neckar-Odenwald-Limes. Militärpräsenz war so in Borbetomagus nicht mehr erforderlich. Das Militär verließ die Stadt.[44] Die Außengrenze des Reiches war nun weit genug entfernt, um auch bei den Übergriffen der Germanen auf Reichsgebiet die Stadt nicht sofort zu bedrohen.[45]
Ebenfalls Ende des 1. Jahrhunderts n. Chr. verfestigte sich auch die Zivilverwaltung, als die Römische Provinz Germania superior („Obergermanien“) eingerichtet wurde.[46] Aus Borbetomagus und seinem Umland wurde die Civitas Vangionum geschaffen, eine sich selbst verwaltende Gebietskörperschaft. Der Name bezieht sich auf den Stamm der Vangionen. Sie wurden erstmals in dem Bericht des römischen Feldherrn Gaius Iulius Caesar über seine Kriege in Gallien erwähnt.[47] In den Bereich von Worms kamen sie erst durch eine gezielte Ansiedlung um die Zeitenwende. Zuvor waren in den (fast) unbesiedelten Bereich schon Kelten aus Gallien eingewandert.[48] Über die Vangionen ist wenig bekannt, nicht einmal, ob sie dem keltischen oder dem germanischen Kulturkreis zuzuordnen sind. Sie sollen im Bereich von Worms gesiedelt haben. Erkennbare archäologische Funde zu den Vangionen liegen nicht vor.[49] Auch tragen nur wenige Einwohner von Borbetomagus nicht-römische Namen. Eine Auswertung der aus Inschriften bekannten Personennamen (ausschließlich der Angehörigen des ja nur vorübergehend hier stationierten Militärs) ergab, dass das nur 14–20 % waren. Für Speyer ergab der Vergleich einen Anteil von mehr als der Hälfte nicht-römischer Namen.[50] Das lässt auch auf einen hohen Romanisierungsgrad der Oberschicht in Borbetomagus schließen – denn nur reiche Menschen konnten sich Steindenkmäler leisten, die die Zeiten überdauerten.
Im Laufe der Zeit wurden die Bezeichnungen Civitas Vangionum und Borbetomagus zunehmend synonym verwendet und auf die Stadt bezogen.
Die wirtschaftlichen Verhältnisse in der Stadt sind nur bruchstückhaft bekannt. Sicher bezeugt durch Arbeiten oder Produktionsstätten sind Glasherstellung[51], Steinmetze, Händler, das älteste Zeugnis für einen Rheinschiffer – ein Grabstein[52] – und Töpfer.[53] Nur wenige Zeugnisse gibt es für den Weinbau, obwohl den ja die Römer in Rheinhessen einführten.[54] Bekannt sind die Wormser Gesichtskrüge, bei denen am Hals ein Frauenkopf einmodelliert ist.[55]
Die Grenze kommt zurück
Erstmals 233 überschritten Alamannen den Limes, plünderten in Noricum, Raetia und der rechtsrheinischen Germania superior. Dafür, dass Borbetomagus von dem Überfall direkt betroffen war, ist nichts bekannt.[56] Wahrscheinlicher ist das für den Einfall um 260, als die Alamannen bis nach Gallien vorstießen. Allerdings fehlen auch dafür archäologische Zeugnisse im Bereich von Borbetomagus und dessen Umfeld.[57] Diese Aktionen führten dazu, dass die Römer die Grenze faktisch auf die Rheinlinie zurücknahmen (Limesfall): Borbetomagus war wieder Grenzstadt.[58] Erneut wurde hier Militär stationiert, nach der Notitia dignitatum die milites secundae Flaviae.[59] Das hatte den paradoxen Effekt, dass die Wirtschaft der Stadt boomte – belegt durch die reichen Grabbeigaben der Zeit.[60] Ein weiterer wirtschaftlich positiver Effekt könnten Zuwanderer aus dem bedrohten rechtsrheinischen Gebiet gewesen sein, die sich in Borbetomagus niederließen. In dieser Zeit erreichte die römische Stadt ihre größte Ausdehnung.[61]
Ab 293 Chr. kam es zu inneren Reformen im Römischen Reich: Provinzen wurden neu zugeschnitten, Germania superior verkleinert und eine neue Provinz, Germania prima gebildet, zu der auch die Civitas Vangionum mit Borbetomagus gehörte. 351 ging in der Schlacht bei Mursa die Legio XXII Primigenia zugrunde, die bis dahin von Mainz aus die Grenze der Provinz Germania prima gesichert hatte. Das führte dazu, dass Alamannen schon im folgenden Jahr die Germania prima überfielen und sich dort – linksrheinisch – einige Jahre festsetzen konnten, vermutlich bis 357.
Spätantike
Ereignisse

Aus der Zeit des Alamannen-Angriffs stammen zwei Depotfunde.[62] Ob die Stadt in dieser Zeit auch von Alamannen beherrscht wurde, ist unklar. Es lebten aber offenbar Germanen in der Stadt, was aus Bestattungen abzulesen ist. Die Einwanderer nutzten – offensichtlich im Einvernehmen mit den Einheimischen – die gleichen Friedhöfe und assimilierten sich schnell. Ab 357 siedelte der Staat in Germania prima gezielt in der Landwirtschaft tätige Personen an, darunter auch Germanen.[63]
Unter Kaiser Valentinian I., um 370[64] erhielt die Stadt eine neue Garnison, die nun auch eine Befestigung errichtete. Aus – allerdings wenigen – Baubefunden wurde der Schluss gezogen, dass diese als Rechteck etwa den Bereich von St. Paulus (Worms) im Nordwesten bis zum Dom im Südosten umschloss.[65] – was für eine spätrömische Anlage allerdings sehr groß ist.
Grabungen brachten Brandschichten aus diesen unruhigen Jahrzehnten zutage.[66] Ammianus Marcellinus (ca. 330–395) berichtet, dass in Obergermanien Mainz, Worms, Speyer und Straßburg für die Verwüstung durch Barbaren bekannt seien.[67] Nach diesem Ereignis versuchte der römische Staat die Grenze durch germanische Verbündete zu sichern[68], denen wieder römisches Militär, dann Ostgermanen und dann Angeln folgten. All diese Gruppen sind in der Civitas Vangionum durch entsprechende Gräber belegt. Dagegen sind die Burgunden, die nach dem hochmittelalterlichen Nibelungenlied ihren Hauptsitz in Worms gehabt haben sollen, archäologisch dort überhaupt nicht nachweisbar.[69]
Eusebius Hieronymus berichtet als „Nichtaugenzeuge“[70] in einem Brief, den er im fernen Bethlehem verfasste, über einen Einfall der Germanen in der Silvesternacht 406. Im Zuge einer längeren Beschreibung, in der er die Zerstörung Westeuropas durch die Barbaren schildert, erwähnt er auch, dass die einfallenden Germanen „Vangiones“ (Worms) lange hätten belagern müssen, bevor sie es eroberten. Aus rhetorischen Gründen stellt er das Ereignis allerdings extrem drastisch dar. In Worms und seiner Umgebung finden sich dazu keine archäologischen Spuren.[71] Die Erwähnung von Worms bei Eusebius Hieronymus ist die letzte schriftliche Erwähnung von Worms für mehrere hundert Jahre.[72]
Die Villenkultur im Umland der Stadt bestand bis in die Mitte des 5. Jahrhunderts fort, ebenso gibt es bis zu diesem Zeitpunkt Importgüter aus dem Fernhandel.[73]
„Das ‚Ende der Antike‘ [kann] für Worms nicht allzu dramatisch gewesen sein.[74]“
Die Gemeinde kam zunächst unter alamannische Herrschaft und wurde schließlich um 500 in das Frankenreich eingegliedert.[75]
Frühes Christentum in Worms

Die Zeugnisse des frühen Christentums in Worms verschwimmen teilweise im Legendären:
- Ein erster Bischof von Worms wird mit „Victor“ für das Jahr 346 genannt. Hauptquelle ist allerdings eine gefälschte Urkunde aus dem 8. Jahrhundert.[76] Ein Bischof „Victor“ wird auch unter den Teilnehmern des Konzils von Serdica (342/44) genannt, allerdings ohne Angabe seines Bischofssitzes.[77]
- Die Legende von der Einkerkerung des Heiligen Martin bei einem Truppenaufgebot in oder bei Worms anlässlich des Alamannen-Feldzuges von Kaiser Julian 351 wurde später mit der St. Martinskirche in Worms verbunden[78], wo es einen „Kerker des Heiligen Martin“ gab.[79]
- Der älteste archäologische Befund zum frühen Christentum in Worms ist das Grab der Pauta, 1842 entdeckt auf dem nördlichen Friedhof südlich der Liebfrauenkirche. Die Inschrift auf dem Grabstein wird von einem Christogramm begleitet.[80] Das Grab datiert in die erste Hälfte des 5. Jahrhunderts. Die Namen der genannten Angehörigen deuten darauf hin, dass die Verstorbene germanischer Herkunft war.[81]
Topografie
Straßennetz

„C • V“ steht für Civitas Vangionum

Die Römische Rheintalstraße verlief im Stadtgebiet auf der heutigen Trasse von Mainzer Straße–Friedrichstraße–Römerstraße–Schönauer Straße, die im Norden, am Eingang zur Stadt, von einer noch weiter westlich verlaufenden Straße in der Lage der heutigen Achse Kämmererstraße–Marktplatz–Valckenbergstraße–Speyerer Straße abzweigte. Zwischen beiden Straßen verlief im südlichen Bereich der Stadt noch eine weitere Straße, die sich im heutigen Stadtbild nicht mehr nachvollziehen lässt.[82] Diese ungefähr in Nord-Süd-Richtung verlaufenden Straßen wurden von mindestens 13 rechtwinklig dazu verlaufenden Querstraßen gekreuzt.[83] Völlig unbekannt ist, wo die Straße Richtung Mainz die Stadt verließ. Unter der Trasse der heutigen Mainzer Straße jedenfalls nicht. Dort wurden mehrfach Gräber, aber keine römische Straße angetroffen.[84]
Ein „0-Meilenstein“ der Civitas Vangionum wurde 1887 südlich der Wollstraße gefunden, einer der seltenen Ausgangssteine (caput viae) für die Entfernungsangaben entlang römischer Fernstraßen. Das führte zu der Annahme, an der Fundstelle habe der Mittelpunkt der Stadt gelegen.[85] Ein weiterer Meilenstein fand sich an der Klosterstraße, südlich der damaligen Stadt gelegen, der die Entfernung zu ihr mit 1 Leuge (ca. 2,25 km) angibt.[86]
Das innerstädtische Straßennetz entstand seit augusteischer/tiberischer Zeit und wurde in spätrömischer Zeit[87] – wohl nach Zerstörungen – ein zweites Mal auf- und ausgebaut.[88]
„Forum“


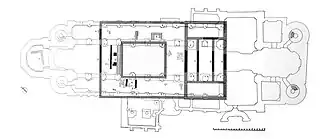
Unter dem mittelalterlichen Wormser Dom konnten 1906/07 anlässlich von Renovierungsarbeiten römische Mauern und Befunde festgestellt werden. Es dauerte bis 1938, bevor Gustav Behrens – der an den Grabungen selbst nicht teilgenommen hatte – diese publizierte.[89] Er deutete die Befunde als das Forum der Civitas Vangionum, eine dreischiffige Basilika mit westlich angrenzendem Peristyl (ein von einem überdachten Gang umgebener Hof). Er begründet diese Rekonstruktion: „Die Deutung der Bauanlage als Forum ist so naheliegend, daß sie kaum bezweifelt werden kann“.[90] Allerdings ließen sich die freigelegten Fundamente der „Basilika“ auch zu einem Tempel mit Cella ergänzen. Bei der Grabung 1906/07 und den Restaurierungsarbeiten am Dom wurden zahlreiche Fragmente von Weihesteinen und Altären gefunden. Um diesen Befund erklären zu können, wurde ein Tempelbezirk unmittelbarer nördlich des Forums angenommen, ohne das je Fundamente davon ergraben wurden. Dieser Bereich wurde bereits im Früh- und Hochmittelalter durch den Bischofshof überbaut.[91] Die Einschätzung zu den Grabungsergebnissen von 1906/07 ist daher heute eher skeptisch: „Bei Ausgrabungen 1906/07 erfasste vorromanische Mauerreste unter dem Wormser Dom sind sehr fragmentiert und erlauben keine weitere Einordnung“.[92]
Weitere Gebäude

Sicher hatte die Civitas Vangionum, wie alle römischen Städte dieser Größenordnung, ein Rathaus (Curia), öffentliche Thermen und ein Amphitheater. Nichts davon ist bekannt. Mit dem Fund einer Theatermaske gleich die Lage des Theaters lokalisieren zu wollen[93], überdehnt den Befund. Lediglich ein Marstempel im Bereich der Klosterstraße, südlich der Altstadt, wird vermutet, weil dort entsprechende Weiheinschriften zutage kamen.[94]
Von der römischen Wohnbebauung wurden – in der Regel in Folge moderner Baumaßnahmen im Stadtgebiet – immer wieder fragmentarische Befunde freigelegt.
Stadtmauer

Erst gegen Ende des Römischen Reiches gab es eine Befestigung, etwa um 360 n. Chr., als die Bedrohung durch Überfälle von der rechten Rheinseite latent wurde. Dieses Datum ist vor allem durch eine umfangreiche Grabung an der Ostseite der Befestigung gesichert, wo ein etwa 40 m langer Abschnitt archäologisch freigelegt und anschließend als Archäologisches Fenster offen gehalten wurde.[95] Zuvor hatte die Siedlung eine Mauer nicht gehabt.
Die ältere lokale Forschung dagegen war – ohne Belege – von einer umfangreichen römischen Mauer ausgegangen.[96] Als sich in den 1930er Jahren entgegenstehende archäologische Befunde ergaben, wurden diese von der „herrschenden Meinung“ unterdrückt, was bis zur Versetzung des Mitarbeiters führte, der diese „missliebigen“ Ergebnisse ergraben hatte.[97] Für eine in der älteren Literatur vielfach vermutete frühere römische Stadtmauer gibt es keine archäologischen Belege[98], dafür sprossen aber zahlreiche Vermutungen[99] und die Legende von einer älteren römischen Mauer wurde weiter tradiert.[100] Mathilde Grünewald zieht daraus „den Schluss, dass es von ihr [der römischen Mauer] nichts gibt, dass sie als Mythos aber sehr hartnäckig weiterlebt“.[101]
Vielleicht war die dann im 4. Jahrhundert errichtete Befestigung keine Mauer um die Stadt, sondern ein Kastell des römischen Militärs.[102] Die Mauer dieser Befestigung verlief südlich entlang der heutigen Andreas- und Wollstraße.[103] Im Osten entlang der Abbruchkante zum Rhein hin wurde die Mauer durch eine Ausgrabung nachgewiesen.[104] Der Verlauf des nördlichen und westlichen Abschnitts dagegen ist nicht bekannt. Es gibt keine archäologischen Befunde.[105] Der nördliche Abschnitt wird auf einer Linie zwischen Ludwigsplatz und einem Bereich nördlich der Paulusstraße vermutet.[106] In der mittelalterlichen, westlichen Stadtmauer von Worms ist römisches Mauerwerk sichtbar. Wahrscheinlich handelt es sich dabei aber nicht um die römische Stadtmauer, sondern um ein in der mittelalterlichen Stadtmauer sekundär verwendetes Gebäudeteil.[107]
Hafen
Ein Rheinhafen war sicher vorhanden, stellte der Fluss doch bis zum Eisenbahnanschluss 1853 die bevorzugte Transportroute für Massen- und schwere Güter dar. Archäologisch wurde er bis jetzt allerdings nicht nachgewiesen.[108] Vermutet wird er unterhalb des Geländeabfalls im Bereich zwischen Hagenstraße und Paulusstraße.[109]
Friedhöfe

Außer im Osten, wo der Rhein entlang floss, war Borbetomagus an allen Seiten entlang der Ausfallstraßen von Friedhöfen umgeben: Beidseits der Straße nach Mogontiacum (Mainz) bis hin zur Schillerstraße und der Liebfrauenkirche bestand ein Friedhof im Norden.[110] Bereits bei Schanzarbeiten vor der Martinspforte wurden dort 1666 römische Grabsteine gefunden.[111] Weitere Friedhöfe lagen im Westen entlang der Straßen nach Altiaiensium (Alzey)[112] und Divodurum Mediomatricorum (Metz)[113] sowie im Süden entlang der Straße nach Noviomagus Nemetum (Speyer)[114]. Merkwürdiger Weise gibt es auch einzelne Bestattungen innerhalb des Areals, das als in römischer Zeit besiedelt gilt.[115] Die Friedhöfe lieferten den Archäologen des 19. Jahrhunderts den überwiegenden Teil der Funde, anhand derer sie die römische Geschichte der Stadt rekonstruierten.[116]
Siehe auch
Literatur
- Karl Heinz Armknecht: Die Wormser Stadtmauern. In: Der Wormsgau 9 (1970/1971), S. 54–65.
- Gustav Behrens: Römische Anlagen auf dem Domhügel auf Grund des Protokolls und der zeichnerischen Aufnahmen der Ausgrabungen von Ph. Brand. In: Rudolf Kautzsch: Der Dom zu Worms = Denkmäler deutscher Kunst. Deutscher Verein für Kunstwissenschaft, Berlin 1938, Textband S. 51–64 – Tafelband 1, Taf. 2–9, 23.
- Helmut Bernhard: Die Situation im linksrheinischen Gebiet. Die Civitas Nemetum mit Noviomagus / Nemetae / Speyer und die Civitas Vangionum mit Borbetomagus / Vangiones / Worms zwischen Spätantike und Frühmittelalter. In: Roland Prien, Christian Witschel (Hrsg.): Lopodunum VII: Ladenburg und der Lobdengau zwischen ‚Limesfall‘ und den Karolingern (= Forschungen und Berichte zur Archäologie in Baden-Württemberg 17). Dr. Ludwig Reichert, Wiesbaden 2020. ISBN 978-3-95490-481-5, S. 67–106.
- Albrecht Greule, Ralph Häussler: Worms. In: Johannes Hoops: Reallexikon der Germanischen Altertumskunde Band 34. 2. Auflage. Walter de Gruyter, Berlin 2007, S. 225–234.
- Mathilde Grünewald: Neue Thesen zu den Wormser Stadtmauern. In: Mannheimer Geschichtsblätter NF 8 (2001), S. 11–44.
- Mathilde Grünewald: Die Römer in Worms. Stuttgart 1986. ISBN 3-8062-0479-9
- Mathilde Grünewald: Spätrömisches Worms. Grabungen an der Stiftskirche St. Paul in Worms (III.). In: Der Wormsgau 20 (2001) [Sonderdruck mit eigener Seitenzählung], S. 7–25.
- Mathilde Grünewald: Unter dem Pflaster von Worms. Archäologie in der Stadt. Josef Fink, Lindenberg 2012, ISBN 978-3-89870-754-1
- Mathilde Grünewald, Erwin Hahn: Zwischen Varusschlacht und Völkerwanderung. Die römerzeitlichen Gräberfunde aus Worms und Rheinhessen im Museum der Stadt Worms im Andreasstift. Josef Fink, Lindenberg im Allgäu 2006, ISBN 978-3-89870-325-3
- Mathilde Grünewald: Worms. Borbetomagus, Hauptort der Civitas Vangionum. In: Heinz Cüppers (Hrsg.): Die Römer in Rheinland-Pfalz. Theiss, Stuttgart 1990, ISBN 3-8062-0308-3, S. 673–679.
- Mathilde Grünewald: Worms in der Spätantike. Archäologie am Dom – Festungsbau – Grabfunde. In: Alexander Reis (Hrsg.): Das Rhein-Main-Gebiet in der Spätantike. Beiträge zur Archäologie und Geschichte. Akten der Tagung in Obernburg am Main vom 12.–13. April 2018. Dr. Faustus, Büchenbach 2022, ISBN 978-3-946387-39-8, S. 59–69.
- Mathilde Grünewald: Worms von der vorgeschichtlichen Epoche bis in die Karolingerzeit. In: Gerold Bönnen (Hrsg.): Geschichte der Stadt Worms. Theiss, Stuttgart 2005, ISBN 3-8062-1679-7, S. 44–101.
- Ralph Häussler: Worms. Eine kleine Stadtgeschichte. Sutton, Erfurt 2004.
- Maximilian Ihm: Borbetomagus. In: Paulys Realencyclopädie der classischen Altertumswissenschaft (RE). Band III,1, Stuttgart 1897, Sp. 719 f.
- Christoph Schöll: Borbetomagus – Worms. Ein Beitrag zur Sprach- und Religionsgeschichte unseres Volkes. In: Der Wormsgau 2, Heft 3 (1938), S. 105–109.
- Karl Koehl: Das römische Worms. In: Correspondenz-Blatt der Deutschen anthropologischen Gesellschaft 10 (1903), S. 85–90 und 11 (1903), S. 105–108.
- August Weckerling: Die Römische Abteilung des Paulus-Museums der Stadt Worms = Wissenschaftliche Beigabe zu dem Programm des Großherzoglichen Gymnasiums und der Realschule zu Worms für das Schuljahr 1884–85. Eugen Kranzbühler, Worms 1885.
- August Weckerling: Die Römische Abteilung des Paulus-Museums der Stadt Worms. Zweiter Teil. Eugen Kranzbühler, Worms 1887.
Weblinks
- Borbetomagus – Zentralort der civitas Vangionum auf Regionalgeschichte.net; abgerufen am 23. Dezember 2023.
Einzelnachweise
- ↑ Greuel: Worms, S. 225.
- ↑ Itinerarium Antonini 350–355.
- ↑ CIL XIII, 9158; Greuel / Häussler: Worms, S. 228.
- ↑ Grünewald: Worms in der Spätantike, S. 59 Anm. 4.
- ↑ Bernhard Maier: Kleines Lexikon der Namen und Wörter keltischen Ursprungs. C.H. Beck, München 2 Itinerarium Antonini003, 122. ISBN 3-406-49470-6. (Google Books).
- ↑ Xavier Delamarre: Dictionnaire de la langue gauloise. Errance 2003, S. 82–83.
- ↑ Johannes Kramer (Hrsg.): Etymologisches Wörterbuch des Dolomitenladinischen (EWD). Buske Verlag, 1988, ISBN 3-87118-991-X. S. 320.
- ↑ Oswald Szemerényi: Einführung in die vergleichende Sprachwissenschaft. Wissenschaftliche Buchgesellschaft, Darmstadt 1980, ISBN 3-534-04216-6, S. 111.
- ↑ Zeitschrift für celtische Philologie ( vom 14. Juli 2014 im Internet Archive), Nr. 52. Max Niemeyer Verlag, 2001. S. 163.
- ↑ Gerhard Rasch: Antike geographische Namen nördlich der Alpen. Walter de Gruyter, Berkub 2005, ISBN 978-3-11-017832-6, S. 140.
- ↑ Franz Cramer: Rheinische Ortsnamen aus vorrömischer und römischer Zeit. 1901 (Nachdruck Sändig Verlag 1970, ISBN 3-500-21650-1), S. 8.
- ↑ Eine Übersicht bietet Schöll: Borbetomagus.
- ↑ Schöll: Borbetomagus, S. 106.
- ↑ Grünewald: Die Römer in Worms, S. 25.
- ↑ Grünewald: Die Römer in Worms, S. 13.
- ↑ Bernhard: Die Situation, S. 84.
- ↑ Grünewald: Worms. Borbetomagus, Hauptort der Civitas Vangionum, S. 675.
- ↑ Grünewald: Die Römer in Worms, S. 25f.
- ↑ Grünewald: Die Römer in Worms, S. 32.
- ↑ So etwa Behrens: Römische Anlagen, S. 54, der sich sogar zu der Aussage versteigt: „Der Umfang der römischen Mauer ist uns dank der guten Beobachtungen von Professor Weckerling und Geh. Sanitätsrat Koehl im ganzen Verlauf bekannt“.
- ↑ Grünewald: Die Römer in Worms, S. 8, 28.
- ↑ Grünewald: Worms von der vorgeschichtlichen Epoche bis in die Karolingerzeit, S. 88.
- ↑ Zu seiner Person: Bandel, Johann Philipp. In: LAGIS: Hessische Biografie; Stand: 28. November 2023 – Fritz Reuter: Johann Philipp Bandel (1785–1866). Ein Wormser Demokrat, Altertümer- und Kunstsammler im 19. Jahrhundert. In: Der Wormsgau 8, 1967/1969, S. 41–67; Gunter Mahlerwein: Johann Philipp Bandel (1785–1866). Ein Wormser Demokrat und Kunstsammler. Worms-Verlag, Worms 2011, ISBN 978-3-936118-46-9.
- ↑ Grünewald: Die Römer in Worms, S. 8.
- ↑ Grünewald: Die Römer in Worms, S. 9f.; Grünewald, Erwin Hahn: Zwischen Varusschlacht und Völkerwanderung, S. 11.
- ↑ Weckerling (1885) und Weckerling (1887).
- ↑ Grünewald: Die Römer in Worms, S. 10.
- ↑ Grünewald: Die Römer in Worms, S. 26.
- ↑ Grünewald: Die Römer in Worms, S. 12.
- ↑ Das nächstgelegene keltische Oppidum befand sich wohl auf dem Donnersberg.
- ↑ Grünewald: Die Römer in Worms, S. 25.
- ↑ Grünewald: Worms von der vorgeschichtlichen Epoche bis in die Karolingerzeit, S. 60.
- ↑ Grünewald: Worms in der Spätantike, S. 59.
- ↑ Grünewald: Worms von der vorgeschichtlichen Epoche bis in die Karolingerzeit, S. 61; Grünewald / Hahn: Zwischen Varusschlacht und Völkerwanderung, S. 17.
- ↑ Grünewald / Hahn: Zwischen Varusschlacht und Völkerwanderung, S. 17.
- ↑ Grünewald / Hahn: Zwischen Varusschlacht und Völkerwanderung, S. 16.
- ↑ Grünewald: Die Römer in Worms, S. 15.
- ↑ Grünewald: Die Römer in Worms, S. 15, 21.
- ↑ Grünewald: Worms. Borbetomagus, Hauptort der Civitas Vangionum, S. 673.
- ↑ Grünewald / Hahn: Zwischen Varusschlacht und Völkerwanderung, S. 16.
- ↑ Grünewald: Die Römer in Worms, S. 15.
- ↑ Grünewald: Die Römer in Worms, S. 25f.
- ↑ Grünewald: Worms von der vorgeschichtlichen Epoche bis in die Karolingerzeit, S. 67.
- ↑ Grünewald: Die Römer in Worms, S. 15.
- ↑ Grünewald: Die Römer in Worms, S. 54.
- ↑ Grünewald: Die Römer in Worms, S. 33, 53.
- ↑ Gaius Iulius Caesar: De bello Gallico 1, 51.
- ↑ Grünewald: Worms von der vorgeschichtlichen Epoche bis in die Karolingerzeit, S. 62, 67.
- ↑ Grünewald: Die Römer in Worms, S. 13; Häussler: Worms. Eine kleine Stadtgeschichte, S. 16.
- ↑ Grünewald: Die Römer in Worms, S. 43.
- ↑ Grünewald: Worms von der vorgeschichtlichen Epoche bis in die Karolingerzeit, S. 75.
- ↑ Grünewald: Worms von der vorgeschichtlichen Epoche bis in die Karolingerzeit, S. 74f.
- ↑ Grünewald: Die Römer in Worms, S. 55, 57.
- ↑ Grünewald: Worms von der vorgeschichtlichen Epoche bis in die Karolingerzeit, S. 75.
- ↑ Grünewald: Worms von der vorgeschichtlichen Epoche bis in die Karolingerzeit, S. 74.
- ↑ Bernhard: Die Situation, S. 69.
- ↑ Bernhard: Die Situation, S. 71.
- ↑ Grünewald: Die Römer in Worms, S. 82.
- ↑ Notitia dignitatum occ. 41; Grünewald: Worms. Borbetomagus, Hauptort der Civitas Vangionum, S. 673.
- ↑ Grünewald: Die Römer in Worms, S. 80.
- ↑ Grünewald: Worms von der vorgeschichtlichen Epoche bis in die Karolingerzeit, S. 77.
- ↑ Grünewald: Die Römer in Worms, S. 82.
- ↑ Grünewald: Die Römer in Worms, S. 83.
- ↑ Grünewald: Worms in der Spätantike, S. 63.
- ↑ Grünewald: Worms von der vorgeschichtlichen Epoche bis in die Karolingerzeit, S. 68, 81.
- ↑ Grünewald: Worms von der vorgeschichtlichen Epoche bis in die Karolingerzeit, S. 80.
- ↑ Wiedergegeben nach Häussler: Worms. Eine kleine Stadtgeschichte, S. 28.
- ↑ Grünewald: Die Römer in Worms, S. 85.
- ↑ Grünewald / Hahn: Zwischen Varusschlacht und Völkerwanderung, S. 18.
- ↑ Bernhard: Die Situation, S. 74.
- ↑ Grünewald: Worms von der vorgeschichtlichen Epoche bis in die Karolingerzeit, S. 82f.; Bernhard: Die Situation, S. 74, 92f.
- ↑ Grünewald: Worms von der vorgeschichtlichen Epoche bis in die Karolingerzeit, S. 83.
- ↑ Bernhard: Die Situation, S. 75.
- ↑ Bernhard: Die Situation, S. 86.
- ↑ Grünewald: Die Römer in Worms, S. 85.
- ↑ Thomas Kohl. Franz Josef Felten: Worms – Stadt und Region im frühen Mittelalter von 600–1000. Geschichte der Stadt Worms. In: Gerold Bönnen (Hg.): Geschichte der Stadt Worms. Theiss, Stuttgart 2005. ISBN 3-8062-1679-7, S. 856 Anm. 15.
- ↑ Sebastian Ristow: Die Glasschale von Obernburg und die frühchristlichen Zeugnisse in Südwestdeutschland und im Elsass. In: Alexander Reis: Das Rhein-Main-Gebiet in der Spätantike. Beiträge zur Archäologie und Geschichte. Akten der Tagung in Obernburg am Main vom 12.–13. April 2018. Dr. Faustus, Büchenbach 2022, ISBN 978-3-946387-39-8, S. 263–298, hier S. 285.
- ↑ Grünewald: Die Römer in Worms, S. 90.
- ↑ Berthold Schnabel: Der Kerker des Heiligen Martin. In: Der Wormsgau 38 (2022/2023), S. 95–102.
- ↑ CIL XIII, 6258
- ↑ Grünewald: Die Römer in Worms, S. 90.
- ↑ Grünewald: Die Römer in Worms, S. 26; Koehl, S. 88f.
- ↑ Grünewald: Die Römer in Worms, S. 26.
- ↑ Vgl. Grünewald / Hahn: Zwischen Varusschlacht und Völkerwanderung, S. 62.
- ↑ CIL XIII, 09086; Grünewald: Die Römer in Worms, S. 27.
- ↑ CIL XIII, 09087; Grünewald: Die Römer in Worms, S. 33.
- ↑ Diese relativ ungenauen Angaben beruhen alle auf Untersuchungen aus der zweiten Hälfte des 19. Jahrhunderts, als vor allem auf Funde und nur am Rande auf Befunde geachtet wurde. Die Funde wiederum sind heute zum Teil verloren (Grünewald: Die Römer in Worms, S. 32).
- ↑ Grünewald: Die Römer in Worms, S. 32; Koehl, S. 88f.
- ↑ Behrens: Römische Anlagen, S. 51–64.
- ↑ Behrens: Römische Anlagen, S. 63.
- ↑ Grünewald: Die Römer in Worms, S. 27f.
- ↑ Sebastian Ristow: Die Glasschale von Obernburg und die frühchristlichen Zeugnisse in Südwestdeutschland und im Elsass. In: Alexander Reis: Das Rhein-Main-Gebiet in der Spätantike. Beiträge zur Archäologie und Geschichte. Akten der Tagung in Obernburg am Main vom 12.–13. April 2018. Dr. Faustus, Büchenbach 2022, ISBN 978-3-946387-39-8, S. 263–298, hier S. 287.
- ↑ Greuel / Häussler, S. 230.
- ↑ Grünewald: Die Römer in Worms, S. 67.
- ↑ Grünewald: Worms von der vorgeschichtlichen Epoche bis in die Karolingerzeit, S. 80f.
- ↑ Monika Porsche: Stadtmauer und Stadtentstehung. Untersuchungen zur frühen Stadtbefestigung im mittelalterlichen deutschen Reich. Wesselkamp, Hertingen 2000, ISBN 3-930327-07-4, S. 57f.; Armknecht: Die Wormser Stadtmauern, S. 55; Friedrich M. Illert: Die Reichsbedeutung der Stadt Worms. Hinweis auf die geographische Lage der Stadt und ihre Auswirkungen. In: Der Wormsgau 2 (1939), S. 197–220, hier S. 210f.
- ↑ Grünewald: Neue Thesen, S. 11f.
- ↑ Grünewald: Worms von der vorgeschichtlichen Epoche bis in die Karolingerzeit, S. 79; Grünewald: Neue Thesen, S. 13. Insofern unzutreffend: Irene Spille: Denkmaltopographie Bundesrepublik Deutschland. Kulturdenkmäler in Rheinland-Pfalz. Band 10 (Stadt Worms). Wernersche Verlagsgesellschaft, Worms 1992, ISBN 978-3-88462-084-7, S. 13, 40.
- ↑ Vgl. Armknecht: Die Wormser Stadtmauern, S. 54–58.
- ↑ Häussler: Worms. Eine kleine Stadtgeschichte, S. 20.
- ↑ Grünewald: Neue Thesen, S. 16.
- ↑ Grünewald: Die Römer in Worms, S. 73.
- ↑ Grünewald: Neue Thesen, S. 18, bezeichnet ihre „Re“konstruktion selbst als „Gedankengebäude“.
- ↑ Grünewald: Unter dem Pflaster, S. 42.
- ↑ Grünewald: Worms von der vorgeschichtlichen Epoche bis in die Karolingerzeit, S. 95.
- ↑ Gerold Bönnen: Die Blütezeit des hohen Mittelalters: Von Bischof Buchard zum Rheinischen Bund (1000–1254), S. 133–179, hier S. 161; vgl. Rekonstruktion in Grünewald: Unter dem Pflaster, S. 13.
- ↑ Grünewald: Spätrömisches Worms, S. 25.
- ↑ Grünewald: Worms von der vorgeschichtlichen Epoche bis in die Karolingerzeit, S. 74, 92.
- ↑ Grünewald: Worms in der Spätantike, S. 60 u. Anm. 1.
- ↑ Mathilde Grünewald, Joachim Schütz, Klaus Vogt: Der römische Friedhof in Worms. Funde von der Mainzer Straße. Bücher Bessler, Worms 1990. ISBN 3-925518-06-1
- ↑ Vgl. Grünewald / Hahn: Zwischen Varusschlacht und Völkerwanderung, S. 62ff.
- ↑ Vgl. Grünewald / Hahn: Zwischen Varusschlacht und Völkerwanderung, S. 96ff.
- ↑ Vgl. Grünewald / Hahn: Zwischen Varusschlacht und Völkerwanderung, S. 104–141 (Areal „Bollwerk“) und S. 142–163 (Areal „Kirschgarten“).
- ↑ Vgl. Grünewald / Hahn: Zwischen Varusschlacht und Völkerwanderung, S. 164ff.
- ↑ Vgl. Grünewald / Hahn: Zwischen Varusschlacht und Völkerwanderung, S. 100ff.
- ↑ Grünewald: Die Römer in Worms, S. 75.

