Abtei Saint-Vincent (Senlis)
%252C_ancienne_abbaye_Saint-Vincent_depuis_le_nord-est.jpg)
Die Abtei Saint-Vincent in Senlis war ein im 11. Jahrhundert gegründetes Kloster der Augustiner-Chorherren. Es spielte während der Gründung der Congrégation de France eine zentrale Rolle, wurde während der Revolution aufgehoben und beherbergt heute ein privat geführtes katholisches Gymnasium. Die Abteikirche wurde bereits im Jahr 1862 als Monument historique anerkannt; die übrigen Gebäudeteile des Klosters wurden zwischen 1933 und 1948 sukzessive ebenfalls unter Denkmalschutz gestellt.[1]
Lage
Die ehemalige Abtei befindet sich im äußersten Südosten des alten Stadtzentrums von Senlis in der Rue de Meaux; sie grenzt an die mittelalterliche Stadtmauer, die hier Rempart Bellevue genannt wird. Bei ihrer Gründung befand sich die Abtei noch außerhalb der Stadt.
Geschichte
Die Abtei wurde 1065 von Anna von Kiew, der Witwe des Königs Heinrich, gegründet. Unklar ist dabei, ob es sich bei den in Ruinen liegenden Vorgängerbauten der Abtei lediglich um eine Kapelle oder bereits um ein Kloster gehandelt hat. Die Gründung geht auf ein Gelübde Annas zurück, die ein dem heiligen Vinzenz von Valencia geweihtes Kloster stiften wollte, falls ihre Ehe mit dem König nicht kinderlos bliebe. Sie hatte nach der Geburt ihres Sohnes Philipp 14 Jahre und nach dem Tod Heinrichs noch weitere 5 Jahre verstreichen lassen, bevor sie das Gelübde einlöste, wobei ihre neue Ehe mit Graf Rudolf IV. von Vexin und ihre dadurch ausgelöste Exkommunikation im Jahr 1064 eine Rolle gespielt haben wird. Am 29. Oktober 1065 wurde die Klosterkirche der Dreifaltigkeit, der Gottesmutter, Johannes dem Täufer und Vinzenz von Valencia geweiht. Die Abtei wurde den Augustiner-Chorherren übergeben, Philipp I. übernahm 1074 das Patronat und macht sie zum unmittelbar dem König unterstellten Kloster. Über die Gebäude aus dieser Zeit ist über die Existenz der Kirche hinaus nur bekannt, dass die Kanoniker eine Zehntscheune errichteten.
Bereits einige Jahre vor seinem Tod (1100) trat Philipp die Abtei an seinen Sohn Ludwig VI. ab, dem es jedoch nicht gelang, sie vor den Begehrlichkeiten weltlicher und kirchlicher Herren zu schützen. Vor allem die Cluniazenser wollten die reiche Abtei an sich bringen, was aber von einem Zusammenschluss lokaler Größen, darunter auch den drei großen Klöstern der Stadt (der Abtei der Kathedrale von Senlis, dem Stift Saint-Frambourg und dem Kloster Saint-Rieul), verhindert werden konnte. Um ähnliche Angriffe für die Zukunft abzuwehren, wurde die Abtei mit weiteren Gütern ausgestattet; Ludwig VI. gab ihr den Besitz zurück, der ihr zuvor weggenommen worden war. Zudem lehnte sich Saint-Vincent de Senlis an die Abtei Saint-Victor in Paris an; die Union, die 1138 von Ludwig VII. genehmigt wurde, gab Saint-Victor jedoch keinen Zugriff auf die Verwaltung oder die Einkünfte von Saint-Vincent.
Saint-Vincent wurde aufgrund der überlassenen landwirtschaftlichen Güter wohlhabend, eine erstmals 1124 erwähnte Schule wurde eingerichtet, die neue Gebäude benötigte, von denen in den Archiven der Abtei aber keine Beschreibung zu finden ist; lediglich das zwölf Joche lange neue Refektorium wird erwähnt, das in der Lage war, 80 Kanoniker aufzunehmen. Im 12. und 13. Jahrhundert gründete Saint-Vincent acht Prioreien, davon drei im Erzbistum Rouen und zwei im Bistum Arras.
Aufgrund des Reichtums der Abtei gestaltete sich die Beziehung zum Bischof von Senlis zunehmend schwierig. Ende des 12. Jahrhunderts wurden Konzessionen symbolischer Natur gemacht, und ab 1277 hielt es der Abt für sinnvoll, sich bei jeder Mahlzeit, die der Bischof in Saint-Vincent einnahm, bescheinigen zu lassen, dass er als Besucher und nicht als Vorgesetzter anwesend sei. Zudem ließ die Abtei häufig seine Priester und Priore von auswärtigen Bischöfen weihen. Ein Streit hierzu führte schließlich zu einer Bestätigung der Position der Abtei durch eines Bulle des Papstes Innozenz VIII. (1484–1492). Andererseits trat die Abtei ihre Gerichtsbarkeit bezüglich der Faubourg Saint-Vincent und ihrer Häuser in der Stadt gegen eine jährliche Zahlung an die Gemeinde ab. Nach der Aufhebung der Gemeindeverfassung im 14. Jahrhundert bestritt folglich der Bailli des Königs mehrfach der Abtei dieses Recht – jedoch ohne Erfolg.
Die Neutralität, die Saint-Vincent während des Hundertjährigen Kriegs zu wahren suchte, verhinderte nicht, dass die Abtei sowohl von den Truppen des Königs als auch denen des Herzogs von Burgund geplündert wurde. In der Folgezeit sanken die Disziplin der Kanoniker und der Wohlstand der Abtei zusehends, auch durch Steuerforderungen ausgelöst, die sowohl von Konzil von Basel als auch vom König für seine Kriegführung erhoben wurden. Die Zahl der Bewohner der Abtei sank auf 16.
Dennoch wurde im Jahr 1491 und dann noch einmal 1505 versucht, das Abtswahlrecht der Kanoniker mit Hilfe des Parlement de Paris auszuhebeln und die Abtswürde zu usurpieren – noch allerdings im Ergebnis erfolglos. Der Wohlstand der Abtei nahm in dieser Zeit weiter ab. Ein dritter Versuch wurde durch das Konkordat von Bologna überflüssig, da jetzt das System der Kommendataräbte eingeführt wurde, das zur Folge hatte, dass die Äbte ab 1536 vom König ernannt wurden und die die Einkünfte des Klosters nur noch für ihre eigene Lebensführung verwandten. Ende des 16. Jahrhunderts wohnten auch die meisten Kanoniker nicht mehr in der Abtei, so dass vorgeschlagen wurde, Saint-Vincent den Kapuzinern zu überlassen.
Mit Unterstützung von Kardinal François de La Rochefoucauld, Bischof von Senlis, gelang es einigen jungen Mönchen ab dem Jahr 1618, im Kloster wieder die Augustinerregel und auch die Gütergemeinschaft durchzusetzen. Im Jahr 1622 erhielt La Rochefoucauld vom König und vom Papst den Auftrag, die französischen Klöster zu reformieren, und er begann damit bei 40, die in der Umgebung von Paris lagen. Robert Baudouin, der neue Prior von Saint-Vincent (das System der Kommendataräbte war unangetastet geblieben), und Charles Faure, ein junger Priester aus dem Kloster, wurden mit der Visitation der ausgewählten Klöster beauftragt, die am 12. Oktober 1623 abgeschlossen wurde und deren Ergebnisse La Rochefoucauld zur Gründung der Congrégation de France nutzte, zu deren Superior dann Charles Faure gewählt wurde, der wiederum zur Umsetzung der Reformen Kanoniker aus Saint-Vincent in die vierzig Klöster schickte – auch wenn die Abtei Sainte-Geneviève in Paris aufgrund ihrer Lage zum Zentrum der Reform wurde, Ausgangspunkt war das Kloster Saint-Vincent in Senlis. Am 10. August 1628 wurde dann auch in Saint-Vincent das erste Generalkapitel der Congrégation abgehalten. Die weiteren Generalkapital fanden in Sainte-Geneviève statt; in Saint-Vincent wurden im dreijährlichen Turnus bis 1786 die 43 Kapitel der Province de France durchgeführt.
Auf Abt Jean-Philippe Berthier (1620–1667) geht der Neubau der Klostergebäude mit Ausnahme des Abteikirche zurück, die lediglich umgestaltet wurde. Die Arbeiten dauerten bis ins Jahr 1689 an. Das Kloster wurde während der Revolution 1791 aufgelöst. Die Gebäude dienten danach als Militärhospital, Kaserne und Gefängnis für Kriegsgefangene, und wurden 1804 als Manufaktur vermietet. Der auf 60 Jahre abgeschlossene Vertrag, erlosch jedoch schon 1826, die Gebäude wurden 1835 zum Abriss verkauft. Ein Jahr später jedoch kauften drei Kanoniker aus Beauvais das Kloster zurück und gründeten eine Schule für Jungen, die heute noch existiert.
-
Chor der Abteikirche -
Nordfassade des Hauptgebäudes -
Kreuzgang -
Nordgalerie des Kreuzgangs -
Querschiff und Apsis
-
Kirchenschiff mit Orgel
Architektur

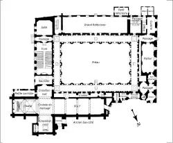
Das ehemalige Kloster besteht im Wesentlichen aus zwei Gebäudekomplexen: der Abteikirche aus der Zeit um 1138 und den Konventsgebäuden aus den 1660er Jahren. Weitere Gebäude westlich gehörten zum Konvent Notre Dame de la Présentation, der unmittelbar an die Abtei Saint-Vincent angrenzte und nur durch eine Mauer von ihr getrennt war.
Die kreuzförmig angelegte, aber nicht exakt geostete Kirche stammt im Wesentlichen aus der Zeit ab 1138; sie besteht aus einem vier Joche umfassenden Kirchenschiff, einem deutlich vorspringenden Querschiff sowie einem zwei Joche langen Chor mit flacher Apsis. Der nahezu schmucklose Innenraum ist ca. 47 m lang (davon ca. 27 m für das Hauptschiff), hat eine Breite von ca. 8,40 m im Schiff und 7,40 m im Chor und ist. ca. 14,10 m hoch (Apsisjoch nur 11,60 m). In der Ecke von Hauptschiff und nördlichem Querschiff steht der gegen Ende des 12. Jahrhunderts errichtete, äußerst schlanke und durch hohe Arkaden geöffnete ca. 41 m hohe Glockenturm. Die Westfassade wurde im 17. und 19. Jahrhundert erneuert und hat dabei ihren ursprünglichen Charakter verloren. Die Gewölbe des Haupt- und Querschiffs wurden um 1670 erneuert und dabei erhöht, um sie der Höhe des neuen Konventsgebäudes anzugleichen. Das einschiffige Langhaus der Kirche ist kreuzgratgewölbt, wohingegen die Vierung und die flachschließende Apsis rippengewölbt sind.
Der in den 1660er Jahren, also in der Barockzeit, zusammen mit den Konventsgebäuden neu errichtete Kreuzgang (cloître) befindet sich auf der Südwestseite der Kirche. Er misst ca. 43 × 28 m und ist in die Konventsgebäude integriert.
Äbte
Reguläre Äbte
- Lieutauld (1065 – ?)
- Felinand
- Baudouin (ab 1119)
- Baudouin II. (ab 1138)
- Hugues (ab 1147)
- Baudouin III. (ab 1154)
- Hugues II. (ab 1162 oder 1163)
- Guillaume
- R.
- Odo (ab 1192)
- Pierre (um 1205)
- Henry (um 1220)
- Adam (um 1230)
- Foulque (um 1240)
- Pierre II. (um 1248)
- Henry II. (ab 1250)
- Adam II. (Koadjutor 1273, Abt 1276)
- Jean (um 1292)
- Guillaume II. (1316–1325)
- Jean II. de Montataire (um 1336)
- Jacques (Koadjutor 1355, Abt 1356)
- Guillaume III Billard (ab 1376)
- Jean III. de Sainctes (um 1380)
- N. (1398 – ?)
- Oudard oder Odo II. (um 1402)
- Guillaume IV Le Clerc (ab 1415)
- Jean IV. (um 1433)
- Jean V. Bonissent (um 1450)
- Pierre II. Richevillan (ab 1462)
- Robert Foulon (ab 1482)
- Charles du Bec (beansprucht den Titel ab 1491)
- Nicolas Barbe (ab 1492)
- Bernard de Vauldray, (beansprucht den Titel ab 1505)
- Jean VI. Thibaud (ab 1505)
Kommendataräbte
- Guillaume V. Thibaud (ab 1536)
- Jean VII. Mazile (ab 1572)
- Nicolas du Val (ab 1580)
- Jean VIII. Berthier (ab 1604)
- Jean-Philippe Berthier (ab 1620)
- Louis Armand de Simiane de Gordes (ab 1667–1680), 1671 Bischof von Langres
- Laurent de Bergerat (ab 1680)
- Charles-Alexandre de Salians d’Estain (ab 1693)
- Louis de Chaumejan de Fourille (ab 1718)
- vielleicht ein weiterer Abt, dessen Name aber nicht bekannt ist
- Claude-Charles de Mostuejouls (ab 1765)
Literatur
- Marc Durand, Philippe Bonnet-Laborderie, Senlis et son patrimoine: La ville en ses forêts. erweiterte Ausgabe. 2004, ISSN 1255-0078, S. 113–116.
- Fortuné Magne: Abbaye Royale de Saint-Vincent à Senlis: Histoire et description. 1860.
- Comité Archéologique de Senlis, Comptes-rendus et Mémoires. Teil 4: Eugène Müller: Essai d'une monographie des rues, places et monuments de Senlis. 2. Serie, Band 7, 1881, S. 121–330.
Weblinks
Einzelnachweise
- ↑ Ancienne abbaye Saint-Vincent, Senlis in der Base Mérimée des französischen Kulturministeriums (französisch)
Koordinaten: 49° 12′ 9″ N, 2° 35′ 22″ O